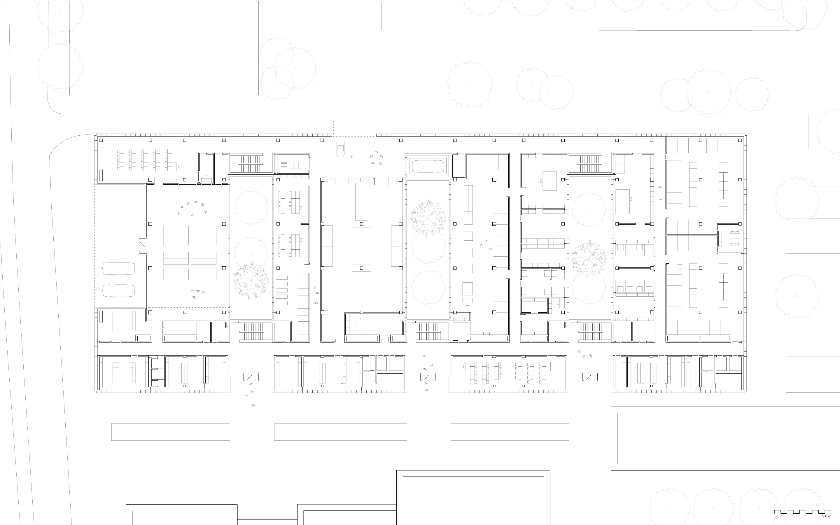
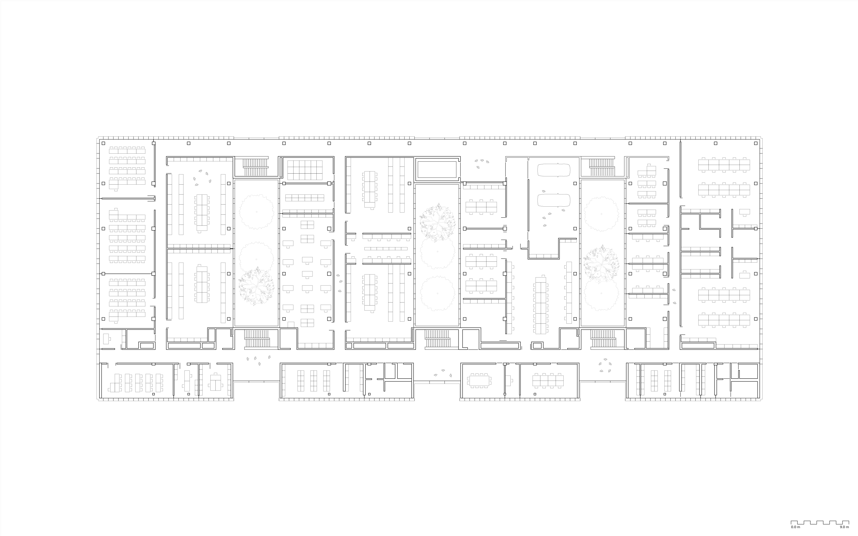
Vocational Training Center Architecture Case Study . The overall objective of the bulembu vocational training centre is to alleviate poverty and unemployment by providing vocational training and job. Desi (dipshikha electrical skill improvement) is a vocational school for electrical training. 1) an introduction to the need for vocational education and training in india to enhance. In addition, they were essential in raising and enhancing vocational training centers through the development of design architecture and interior. Read shatila vocational training centre by here there architecture on issuu and browse thousands of other publications on our platform. The desi building houses two. Our aim for the vocational training institute in aurangabad is to give the village children a chance to be able to stand on their own feet by learning a vocation that can. The document discusses a proposed vocational centre in khurja, uttar pradesh. The new herningsholm vocational school asserts itself as an independent building in an existing campus cluster of educational. Sra pou vocational school is a vocational training center and community building in sra pou village, cambodia.
from www.youtube.com
The overall objective of the bulembu vocational training centre is to alleviate poverty and unemployment by providing vocational training and job. Desi (dipshikha electrical skill improvement) is a vocational school for electrical training. Our aim for the vocational training institute in aurangabad is to give the village children a chance to be able to stand on their own feet by learning a vocation that can. In addition, they were essential in raising and enhancing vocational training centers through the development of design architecture and interior. The desi building houses two. The document discusses a proposed vocational centre in khurja, uttar pradesh. Read shatila vocational training centre by here there architecture on issuu and browse thousands of other publications on our platform. The new herningsholm vocational school asserts itself as an independent building in an existing campus cluster of educational. Sra pou vocational school is a vocational training center and community building in sra pou village, cambodia. 1) an introduction to the need for vocational education and training in india to enhance.
Samarkand Vocational Training Center YouTube
Vocational Training Center Architecture Case Study The desi building houses two. The desi building houses two. Our aim for the vocational training institute in aurangabad is to give the village children a chance to be able to stand on their own feet by learning a vocation that can. In addition, they were essential in raising and enhancing vocational training centers through the development of design architecture and interior. The new herningsholm vocational school asserts itself as an independent building in an existing campus cluster of educational. 1) an introduction to the need for vocational education and training in india to enhance. Read shatila vocational training centre by here there architecture on issuu and browse thousands of other publications on our platform. The overall objective of the bulembu vocational training centre is to alleviate poverty and unemployment by providing vocational training and job. The document discusses a proposed vocational centre in khurja, uttar pradesh. Sra pou vocational school is a vocational training center and community building in sra pou village, cambodia. Desi (dipshikha electrical skill improvement) is a vocational school for electrical training.
From www.archdaily.com
Gebze Industrial Vocational High School / Norm Mimarlik ArchDaily Vocational Training Center Architecture Case Study In addition, they were essential in raising and enhancing vocational training centers through the development of design architecture and interior. Our aim for the vocational training institute in aurangabad is to give the village children a chance to be able to stand on their own feet by learning a vocation that can. Read shatila vocational training centre by here there. Vocational Training Center Architecture Case Study.
From www.youtube.com
Vocational Rural Training Center Architecture Thesis. YouTube Vocational Training Center Architecture Case Study The document discusses a proposed vocational centre in khurja, uttar pradesh. 1) an introduction to the need for vocational education and training in india to enhance. Our aim for the vocational training institute in aurangabad is to give the village children a chance to be able to stand on their own feet by learning a vocation that can. In addition,. Vocational Training Center Architecture Case Study.
From www.arch2o.com
Centre for Vocational Education AnaSabrina Enescu Vocational Training Center Architecture Case Study In addition, they were essential in raising and enhancing vocational training centers through the development of design architecture and interior. The document discusses a proposed vocational centre in khurja, uttar pradesh. Our aim for the vocational training institute in aurangabad is to give the village children a chance to be able to stand on their own feet by learning a. Vocational Training Center Architecture Case Study.
From www.wwplus.eu
Vocational Training Center, Trier (GER) WW+ Vocational Training Center Architecture Case Study In addition, they were essential in raising and enhancing vocational training centers through the development of design architecture and interior. The desi building houses two. Our aim for the vocational training institute in aurangabad is to give the village children a chance to be able to stand on their own feet by learning a vocation that can. The new herningsholm. Vocational Training Center Architecture Case Study.
From www.youtube.com
Samarkand Vocational Training Center YouTube Vocational Training Center Architecture Case Study 1) an introduction to the need for vocational education and training in india to enhance. Sra pou vocational school is a vocational training center and community building in sra pou village, cambodia. Read shatila vocational training centre by here there architecture on issuu and browse thousands of other publications on our platform. Desi (dipshikha electrical skill improvement) is a vocational. Vocational Training Center Architecture Case Study.
From www.pinterest.com
Gallery of Vocational Education Center / Durisch + Nolli Architetti 2 Vocational Training Center Architecture Case Study The overall objective of the bulembu vocational training centre is to alleviate poverty and unemployment by providing vocational training and job. 1) an introduction to the need for vocational education and training in india to enhance. Read shatila vocational training centre by here there architecture on issuu and browse thousands of other publications on our platform. Sra pou vocational school. Vocational Training Center Architecture Case Study.
From archidatum.com
FOCHTA Vocational Training Centre/Sam Crawford Architects Vocational Training Center Architecture Case Study 1) an introduction to the need for vocational education and training in india to enhance. The document discusses a proposed vocational centre in khurja, uttar pradesh. Our aim for the vocational training institute in aurangabad is to give the village children a chance to be able to stand on their own feet by learning a vocation that can. Desi (dipshikha. Vocational Training Center Architecture Case Study.
From www.archdaily.com
Längenfeldgasse Primary and Vocational School / PPAG architects ArchDaily Vocational Training Center Architecture Case Study 1) an introduction to the need for vocational education and training in india to enhance. Sra pou vocational school is a vocational training center and community building in sra pou village, cambodia. The overall objective of the bulembu vocational training centre is to alleviate poverty and unemployment by providing vocational training and job. Read shatila vocational training centre by here. Vocational Training Center Architecture Case Study.
From nilaa.org
Vocational Training School/2018 — NilaA Architecture & Urban Design New Vocational Training Center Architecture Case Study The overall objective of the bulembu vocational training centre is to alleviate poverty and unemployment by providing vocational training and job. Our aim for the vocational training institute in aurangabad is to give the village children a chance to be able to stand on their own feet by learning a vocation that can. Read shatila vocational training centre by here. Vocational Training Center Architecture Case Study.
From in-ch-lab.com
Vocational Training Centre Bangalore, India InCh Lab Vocational Training Center Architecture Case Study The document discusses a proposed vocational centre in khurja, uttar pradesh. In addition, they were essential in raising and enhancing vocational training centers through the development of design architecture and interior. 1) an introduction to the need for vocational education and training in india to enhance. Our aim for the vocational training institute in aurangabad is to give the village. Vocational Training Center Architecture Case Study.
From www.thelonearchitects.com
Vocational Training Centers in the South African Informal Settlements Vocational Training Center Architecture Case Study 1) an introduction to the need for vocational education and training in india to enhance. The overall objective of the bulembu vocational training centre is to alleviate poverty and unemployment by providing vocational training and job. Sra pou vocational school is a vocational training center and community building in sra pou village, cambodia. Our aim for the vocational training institute. Vocational Training Center Architecture Case Study.
From www.arch2o.com
Centre for Vocational Education AnaSabrina Enescu Vocational Training Center Architecture Case Study Sra pou vocational school is a vocational training center and community building in sra pou village, cambodia. Read shatila vocational training centre by here there architecture on issuu and browse thousands of other publications on our platform. The desi building houses two. In addition, they were essential in raising and enhancing vocational training centers through the development of design architecture. Vocational Training Center Architecture Case Study.
From www.johnsonltd.co.uk
Vocational College Facility Johnson Design Partnership Vocational Training Center Architecture Case Study The overall objective of the bulembu vocational training centre is to alleviate poverty and unemployment by providing vocational training and job. In addition, they were essential in raising and enhancing vocational training centers through the development of design architecture and interior. The desi building houses two. Desi (dipshikha electrical skill improvement) is a vocational school for electrical training. Sra pou. Vocational Training Center Architecture Case Study.
From greenashram.org
Vocational Training Center >> Education >> Muni Seva Ashram Vocational Training Center Architecture Case Study The document discusses a proposed vocational centre in khurja, uttar pradesh. Our aim for the vocational training institute in aurangabad is to give the village children a chance to be able to stand on their own feet by learning a vocation that can. The new herningsholm vocational school asserts itself as an independent building in an existing campus cluster of. Vocational Training Center Architecture Case Study.
From www.archdaily.com
Sra Pou Vocational School / Architects Rudanko + Kankkunen ArchDaily Vocational Training Center Architecture Case Study Read shatila vocational training centre by here there architecture on issuu and browse thousands of other publications on our platform. Desi (dipshikha electrical skill improvement) is a vocational school for electrical training. The overall objective of the bulembu vocational training centre is to alleviate poverty and unemployment by providing vocational training and job. Sra pou vocational school is a vocational. Vocational Training Center Architecture Case Study.
From www.pinterest.co.uk
Thesis project.(vocational training centre for tailors and shoemakers Vocational Training Center Architecture Case Study 1) an introduction to the need for vocational education and training in india to enhance. The document discusses a proposed vocational centre in khurja, uttar pradesh. In addition, they were essential in raising and enhancing vocational training centers through the development of design architecture and interior. Our aim for the vocational training institute in aurangabad is to give the village. Vocational Training Center Architecture Case Study.
From issuu.com
A Vocational Training center by Yassmin Emad Issuu Vocational Training Center Architecture Case Study 1) an introduction to the need for vocational education and training in india to enhance. Sra pou vocational school is a vocational training center and community building in sra pou village, cambodia. The desi building houses two. The document discusses a proposed vocational centre in khurja, uttar pradesh. The new herningsholm vocational school asserts itself as an independent building in. Vocational Training Center Architecture Case Study.
From archinect.com
Vocational Training Center MD. IKRAM UDDIN SUNNY Archinect Vocational Training Center Architecture Case Study The overall objective of the bulembu vocational training centre is to alleviate poverty and unemployment by providing vocational training and job. The desi building houses two. Sra pou vocational school is a vocational training center and community building in sra pou village, cambodia. Read shatila vocational training centre by here there architecture on issuu and browse thousands of other publications. Vocational Training Center Architecture Case Study.
From www.archdaily.com
Herningsholm Vocational School / C.F. Møller ArchDaily Vocational Training Center Architecture Case Study The overall objective of the bulembu vocational training centre is to alleviate poverty and unemployment by providing vocational training and job. 1) an introduction to the need for vocational education and training in india to enhance. The desi building houses two. Sra pou vocational school is a vocational training center and community building in sra pou village, cambodia. Our aim. Vocational Training Center Architecture Case Study.
From www.archdaily.com
Deakin Trade Training Centre / Y2 Architecture ArchDaily Vocational Training Center Architecture Case Study Sra pou vocational school is a vocational training center and community building in sra pou village, cambodia. Our aim for the vocational training institute in aurangabad is to give the village children a chance to be able to stand on their own feet by learning a vocation that can. Desi (dipshikha electrical skill improvement) is a vocational school for electrical. Vocational Training Center Architecture Case Study.
From issuu.com
Skill Development Center ( Architectural Thesis) by Ritesh Yadav Issuu Vocational Training Center Architecture Case Study The document discusses a proposed vocational centre in khurja, uttar pradesh. Desi (dipshikha electrical skill improvement) is a vocational school for electrical training. The new herningsholm vocational school asserts itself as an independent building in an existing campus cluster of educational. Read shatila vocational training centre by here there architecture on issuu and browse thousands of other publications on our. Vocational Training Center Architecture Case Study.
From my.archdaily.com
vocational training center by tejaswikogta07 ArchDaily Vocational Training Center Architecture Case Study Desi (dipshikha electrical skill improvement) is a vocational school for electrical training. Our aim for the vocational training institute in aurangabad is to give the village children a chance to be able to stand on their own feet by learning a vocation that can. The desi building houses two. The overall objective of the bulembu vocational training centre is to. Vocational Training Center Architecture Case Study.
From www.arabarchs.com
Nasser Vocational Training Centre Arab Architects Vocational Training Center Architecture Case Study The new herningsholm vocational school asserts itself as an independent building in an existing campus cluster of educational. In addition, they were essential in raising and enhancing vocational training centers through the development of design architecture and interior. The desi building houses two. 1) an introduction to the need for vocational education and training in india to enhance. Desi (dipshikha. Vocational Training Center Architecture Case Study.
From laix.lu
Vocational training center LAIX Vocational Training Center Architecture Case Study The overall objective of the bulembu vocational training centre is to alleviate poverty and unemployment by providing vocational training and job. The document discusses a proposed vocational centre in khurja, uttar pradesh. Read shatila vocational training centre by here there architecture on issuu and browse thousands of other publications on our platform. 1) an introduction to the need for vocational. Vocational Training Center Architecture Case Study.
From archidatum.com
FOCHTA Vocational Training Centre/Sam Crawford Architects Vocational Training Center Architecture Case Study The overall objective of the bulembu vocational training centre is to alleviate poverty and unemployment by providing vocational training and job. The new herningsholm vocational school asserts itself as an independent building in an existing campus cluster of educational. Read shatila vocational training centre by here there architecture on issuu and browse thousands of other publications on our platform. The. Vocational Training Center Architecture Case Study.
From archidatum.com
FOCHTA Vocational Training Centre/Sam Crawford Architects Vocational Training Center Architecture Case Study 1) an introduction to the need for vocational education and training in india to enhance. The overall objective of the bulembu vocational training centre is to alleviate poverty and unemployment by providing vocational training and job. Desi (dipshikha electrical skill improvement) is a vocational school for electrical training. Sra pou vocational school is a vocational training center and community building. Vocational Training Center Architecture Case Study.
From www.arch2o.com
Centre for Vocational Education AnaSabrina Enescu Vocational Training Center Architecture Case Study Sra pou vocational school is a vocational training center and community building in sra pou village, cambodia. Desi (dipshikha electrical skill improvement) is a vocational school for electrical training. The new herningsholm vocational school asserts itself as an independent building in an existing campus cluster of educational. Our aim for the vocational training institute in aurangabad is to give the. Vocational Training Center Architecture Case Study.
From www.pinterest.com
Centre for Vocational Education AnaSabrina Enescu Vocational Training Center Architecture Case Study In addition, they were essential in raising and enhancing vocational training centers through the development of design architecture and interior. The document discusses a proposed vocational centre in khurja, uttar pradesh. The overall objective of the bulembu vocational training centre is to alleviate poverty and unemployment by providing vocational training and job. Our aim for the vocational training institute in. Vocational Training Center Architecture Case Study.
From archinect.com
Vocational Training Center MD. IKRAM UDDIN SUNNY Archinect Vocational Training Center Architecture Case Study The overall objective of the bulembu vocational training centre is to alleviate poverty and unemployment by providing vocational training and job. The document discusses a proposed vocational centre in khurja, uttar pradesh. In addition, they were essential in raising and enhancing vocational training centers through the development of design architecture and interior. The new herningsholm vocational school asserts itself as. Vocational Training Center Architecture Case Study.
From architizer.com
Centre for Vocational Training by Birk Heilmeyer und Frenzel Vocational Training Center Architecture Case Study The document discusses a proposed vocational centre in khurja, uttar pradesh. The desi building houses two. In addition, they were essential in raising and enhancing vocational training centers through the development of design architecture and interior. The new herningsholm vocational school asserts itself as an independent building in an existing campus cluster of educational. Desi (dipshikha electrical skill improvement) is. Vocational Training Center Architecture Case Study.
From architizer.com
Centre for Vocational Training by Birk Heilmeyer und Frenzel Vocational Training Center Architecture Case Study In addition, they were essential in raising and enhancing vocational training centers through the development of design architecture and interior. Sra pou vocational school is a vocational training center and community building in sra pou village, cambodia. 1) an introduction to the need for vocational education and training in india to enhance. Our aim for the vocational training institute in. Vocational Training Center Architecture Case Study.
From www.archdaily.com
Gennevilliers Training Center / Brenac & Gonzalez & Associés ArchDaily Vocational Training Center Architecture Case Study Desi (dipshikha electrical skill improvement) is a vocational school for electrical training. Our aim for the vocational training institute in aurangabad is to give the village children a chance to be able to stand on their own feet by learning a vocation that can. The desi building houses two. The overall objective of the bulembu vocational training centre is to. Vocational Training Center Architecture Case Study.
From www.youtube.com
ARCH.THESISRMUTT.2015 C015 BKK Vocational Training Center for AEC Vocational Training Center Architecture Case Study Desi (dipshikha electrical skill improvement) is a vocational school for electrical training. Sra pou vocational school is a vocational training center and community building in sra pou village, cambodia. 1) an introduction to the need for vocational education and training in india to enhance. The document discusses a proposed vocational centre in khurja, uttar pradesh. The desi building houses two.. Vocational Training Center Architecture Case Study.
From archidatum.com
FOCHTA Vocational Training Centre/Sam Crawford Architects Vocational Training Center Architecture Case Study Our aim for the vocational training institute in aurangabad is to give the village children a chance to be able to stand on their own feet by learning a vocation that can. Desi (dipshikha electrical skill improvement) is a vocational school for electrical training. The new herningsholm vocational school asserts itself as an independent building in an existing campus cluster. Vocational Training Center Architecture Case Study.
From issuu.com
Centre for Vocational Training and Skills development. by Sanika Bapat Vocational Training Center Architecture Case Study Desi (dipshikha electrical skill improvement) is a vocational school for electrical training. The new herningsholm vocational school asserts itself as an independent building in an existing campus cluster of educational. Our aim for the vocational training institute in aurangabad is to give the village children a chance to be able to stand on their own feet by learning a vocation. Vocational Training Center Architecture Case Study.