What Do You Need To Register A Trailer In Nevada . While each area’s regulations may vary, they all need required paperwork, such as registration applications and titles. You can obtain a movement permit at any dmv office without an. For trailers under 1,000 pounds, a small. You must have a permit to drive the vehicle more than three days after purchase. Do trailers need to be registered in nevada? Both you and the dmv representative inspecting your trailer will need to complete a certificate of inspection and affidavit of trailer construction. Except as otherwise provided in this chapter and nrs 706.188, every owner of a motor vehicle, trailer or semitrailer intended to be operated. When you get a utility trailer new or used, you usually need to register it with your area’s department of motor vehicles (dmv) so it’s legal to use on the road. Utility or travel trailers intended for the public roads in nevada must be registered and have a title per state law. The state of nevada requires all utility and travel trailers to be properly registered and titled before being operated on public streets.
from www.wikihow.com
When you get a utility trailer new or used, you usually need to register it with your area’s department of motor vehicles (dmv) so it’s legal to use on the road. Do trailers need to be registered in nevada? While each area’s regulations may vary, they all need required paperwork, such as registration applications and titles. Except as otherwise provided in this chapter and nrs 706.188, every owner of a motor vehicle, trailer or semitrailer intended to be operated. For trailers under 1,000 pounds, a small. You must have a permit to drive the vehicle more than three days after purchase. The state of nevada requires all utility and travel trailers to be properly registered and titled before being operated on public streets. Both you and the dmv representative inspecting your trailer will need to complete a certificate of inspection and affidavit of trailer construction. Utility or travel trailers intended for the public roads in nevada must be registered and have a title per state law. You can obtain a movement permit at any dmv office without an.
How to Register a Utility Trailer 10 Steps (with Pictures)
What Do You Need To Register A Trailer In Nevada For trailers under 1,000 pounds, a small. You can obtain a movement permit at any dmv office without an. For trailers under 1,000 pounds, a small. Both you and the dmv representative inspecting your trailer will need to complete a certificate of inspection and affidavit of trailer construction. Except as otherwise provided in this chapter and nrs 706.188, every owner of a motor vehicle, trailer or semitrailer intended to be operated. The state of nevada requires all utility and travel trailers to be properly registered and titled before being operated on public streets. You must have a permit to drive the vehicle more than three days after purchase. Utility or travel trailers intended for the public roads in nevada must be registered and have a title per state law. When you get a utility trailer new or used, you usually need to register it with your area’s department of motor vehicles (dmv) so it’s legal to use on the road. While each area’s regulations may vary, they all need required paperwork, such as registration applications and titles. Do trailers need to be registered in nevada?
From brechbilltrailers.com
How To Register A Trailer Brechbill Trailer Sales What Do You Need To Register A Trailer In Nevada Utility or travel trailers intended for the public roads in nevada must be registered and have a title per state law. The state of nevada requires all utility and travel trailers to be properly registered and titled before being operated on public streets. You must have a permit to drive the vehicle more than three days after purchase. Except as. What Do You Need To Register A Trailer In Nevada.
From www.rvandplaya.com
How To Register A Trailer Without A VIN Number? (Do This) What Do You Need To Register A Trailer In Nevada The state of nevada requires all utility and travel trailers to be properly registered and titled before being operated on public streets. Except as otherwise provided in this chapter and nrs 706.188, every owner of a motor vehicle, trailer or semitrailer intended to be operated. Both you and the dmv representative inspecting your trailer will need to complete a certificate. What Do You Need To Register A Trailer In Nevada.
From justvanlife.com
How To Register A Trailer Without A Title Just Van Life What Do You Need To Register A Trailer In Nevada Except as otherwise provided in this chapter and nrs 706.188, every owner of a motor vehicle, trailer or semitrailer intended to be operated. Do trailers need to be registered in nevada? When you get a utility trailer new or used, you usually need to register it with your area’s department of motor vehicles (dmv) so it’s legal to use on. What Do You Need To Register A Trailer In Nevada.
From brechbilltrailers.com
How To Register A Trailer Brechbill Trailer Sales What Do You Need To Register A Trailer In Nevada While each area’s regulations may vary, they all need required paperwork, such as registration applications and titles. Do trailers need to be registered in nevada? You must have a permit to drive the vehicle more than three days after purchase. Utility or travel trailers intended for the public roads in nevada must be registered and have a title per state. What Do You Need To Register A Trailer In Nevada.
From www.wikihow.com
How to Register a Homemade Trailer 15 Steps (with Pictures) What Do You Need To Register A Trailer In Nevada Except as otherwise provided in this chapter and nrs 706.188, every owner of a motor vehicle, trailer or semitrailer intended to be operated. While each area’s regulations may vary, they all need required paperwork, such as registration applications and titles. Utility or travel trailers intended for the public roads in nevada must be registered and have a title per state. What Do You Need To Register A Trailer In Nevada.
From www.wikihow.com
How to Register a Homemade Trailer 15 Steps (with Pictures) What Do You Need To Register A Trailer In Nevada Do trailers need to be registered in nevada? The state of nevada requires all utility and travel trailers to be properly registered and titled before being operated on public streets. You can obtain a movement permit at any dmv office without an. While each area’s regulations may vary, they all need required paperwork, such as registration applications and titles. Both. What Do You Need To Register A Trailer In Nevada.
From www.wikihow.com
How to Register a Homemade Trailer 15 Steps (with Pictures) What Do You Need To Register A Trailer In Nevada Both you and the dmv representative inspecting your trailer will need to complete a certificate of inspection and affidavit of trailer construction. For trailers under 1,000 pounds, a small. Except as otherwise provided in this chapter and nrs 706.188, every owner of a motor vehicle, trailer or semitrailer intended to be operated. When you get a utility trailer new or. What Do You Need To Register A Trailer In Nevada.
From www.youcallwehaul.com
How to Transfer Nevada Title and instructions for filling out your title What Do You Need To Register A Trailer In Nevada Except as otherwise provided in this chapter and nrs 706.188, every owner of a motor vehicle, trailer or semitrailer intended to be operated. Utility or travel trailers intended for the public roads in nevada must be registered and have a title per state law. When you get a utility trailer new or used, you usually need to register it with. What Do You Need To Register A Trailer In Nevada.
From es.wikihow.com
Cómo registrar un tráiler hecho en casa 15 Pasos What Do You Need To Register A Trailer In Nevada The state of nevada requires all utility and travel trailers to be properly registered and titled before being operated on public streets. You must have a permit to drive the vehicle more than three days after purchase. Both you and the dmv representative inspecting your trailer will need to complete a certificate of inspection and affidavit of trailer construction. Except. What Do You Need To Register A Trailer In Nevada.
From www.youtube.com
How to Register a Trailer in Qld Part 2 Self Assessment YouTube What Do You Need To Register A Trailer In Nevada While each area’s regulations may vary, they all need required paperwork, such as registration applications and titles. Except as otherwise provided in this chapter and nrs 706.188, every owner of a motor vehicle, trailer or semitrailer intended to be operated. The state of nevada requires all utility and travel trailers to be properly registered and titled before being operated on. What Do You Need To Register A Trailer In Nevada.
From www.youtube.com
How to Register a Homebuilt Trailer How to get a VIN, Title, and Tag What Do You Need To Register A Trailer In Nevada You can obtain a movement permit at any dmv office without an. Both you and the dmv representative inspecting your trailer will need to complete a certificate of inspection and affidavit of trailer construction. The state of nevada requires all utility and travel trailers to be properly registered and titled before being operated on public streets. Do trailers need to. What Do You Need To Register A Trailer In Nevada.
From blog.sportfishtrader.com
How To Register A Boat Trailer What Do You Need To Register A Trailer In Nevada You can obtain a movement permit at any dmv office without an. For trailers under 1,000 pounds, a small. Utility or travel trailers intended for the public roads in nevada must be registered and have a title per state law. Both you and the dmv representative inspecting your trailer will need to complete a certificate of inspection and affidavit of. What Do You Need To Register A Trailer In Nevada.
From www.wikihow.com
How to Register a Utility Trailer 10 Steps (with Pictures) What Do You Need To Register A Trailer In Nevada You can obtain a movement permit at any dmv office without an. Both you and the dmv representative inspecting your trailer will need to complete a certificate of inspection and affidavit of trailer construction. While each area’s regulations may vary, they all need required paperwork, such as registration applications and titles. When you get a utility trailer new or used,. What Do You Need To Register A Trailer In Nevada.
From fisherupdate.com
How to register a trailer with no paperwork? What Do You Need To Register A Trailer In Nevada You can obtain a movement permit at any dmv office without an. You must have a permit to drive the vehicle more than three days after purchase. Utility or travel trailers intended for the public roads in nevada must be registered and have a title per state law. When you get a utility trailer new or used, you usually need. What Do You Need To Register A Trailer In Nevada.
From boatsgeek.com
How to Register a Trailer Without a Title A Stepwise Guide What Do You Need To Register A Trailer In Nevada When you get a utility trailer new or used, you usually need to register it with your area’s department of motor vehicles (dmv) so it’s legal to use on the road. Both you and the dmv representative inspecting your trailer will need to complete a certificate of inspection and affidavit of trailer construction. Do trailers need to be registered in. What Do You Need To Register A Trailer In Nevada.
From www.templateroller.com
Form VP222 Download Fillable PDF or Fill Online Application for What Do You Need To Register A Trailer In Nevada Do trailers need to be registered in nevada? You must have a permit to drive the vehicle more than three days after purchase. Utility or travel trailers intended for the public roads in nevada must be registered and have a title per state law. For trailers under 1,000 pounds, a small. The state of nevada requires all utility and travel. What Do You Need To Register A Trailer In Nevada.
From brechbilltrailers.com
How To Register A Trailer Brechbill Trailer Sales What Do You Need To Register A Trailer In Nevada You must have a permit to drive the vehicle more than three days after purchase. When you get a utility trailer new or used, you usually need to register it with your area’s department of motor vehicles (dmv) so it’s legal to use on the road. You can obtain a movement permit at any dmv office without an. The state. What Do You Need To Register A Trailer In Nevada.
From www.wikihow.com
How to Register a Homemade Trailer 15 Steps (with Pictures) What Do You Need To Register A Trailer In Nevada Except as otherwise provided in this chapter and nrs 706.188, every owner of a motor vehicle, trailer or semitrailer intended to be operated. You can obtain a movement permit at any dmv office without an. When you get a utility trailer new or used, you usually need to register it with your area’s department of motor vehicles (dmv) so it’s. What Do You Need To Register A Trailer In Nevada.
From brechbilltrailers.com
How To Register A Trailer Brechbill Trailer Sales What Do You Need To Register A Trailer In Nevada Do trailers need to be registered in nevada? Utility or travel trailers intended for the public roads in nevada must be registered and have a title per state law. For trailers under 1,000 pounds, a small. When you get a utility trailer new or used, you usually need to register it with your area’s department of motor vehicles (dmv) so. What Do You Need To Register A Trailer In Nevada.
From www.pinterest.com
How to Register a Trailer All Pro Trailer Superstore Blog Trailer What Do You Need To Register A Trailer In Nevada Do trailers need to be registered in nevada? You must have a permit to drive the vehicle more than three days after purchase. For trailers under 1,000 pounds, a small. When you get a utility trailer new or used, you usually need to register it with your area’s department of motor vehicles (dmv) so it’s legal to use on the. What Do You Need To Register A Trailer In Nevada.
From tistashome.com
How To Register A Homemade Trailer What Do You Need To Register A Trailer In Nevada When you get a utility trailer new or used, you usually need to register it with your area’s department of motor vehicles (dmv) so it’s legal to use on the road. Utility or travel trailers intended for the public roads in nevada must be registered and have a title per state law. While each area’s regulations may vary, they all. What Do You Need To Register A Trailer In Nevada.
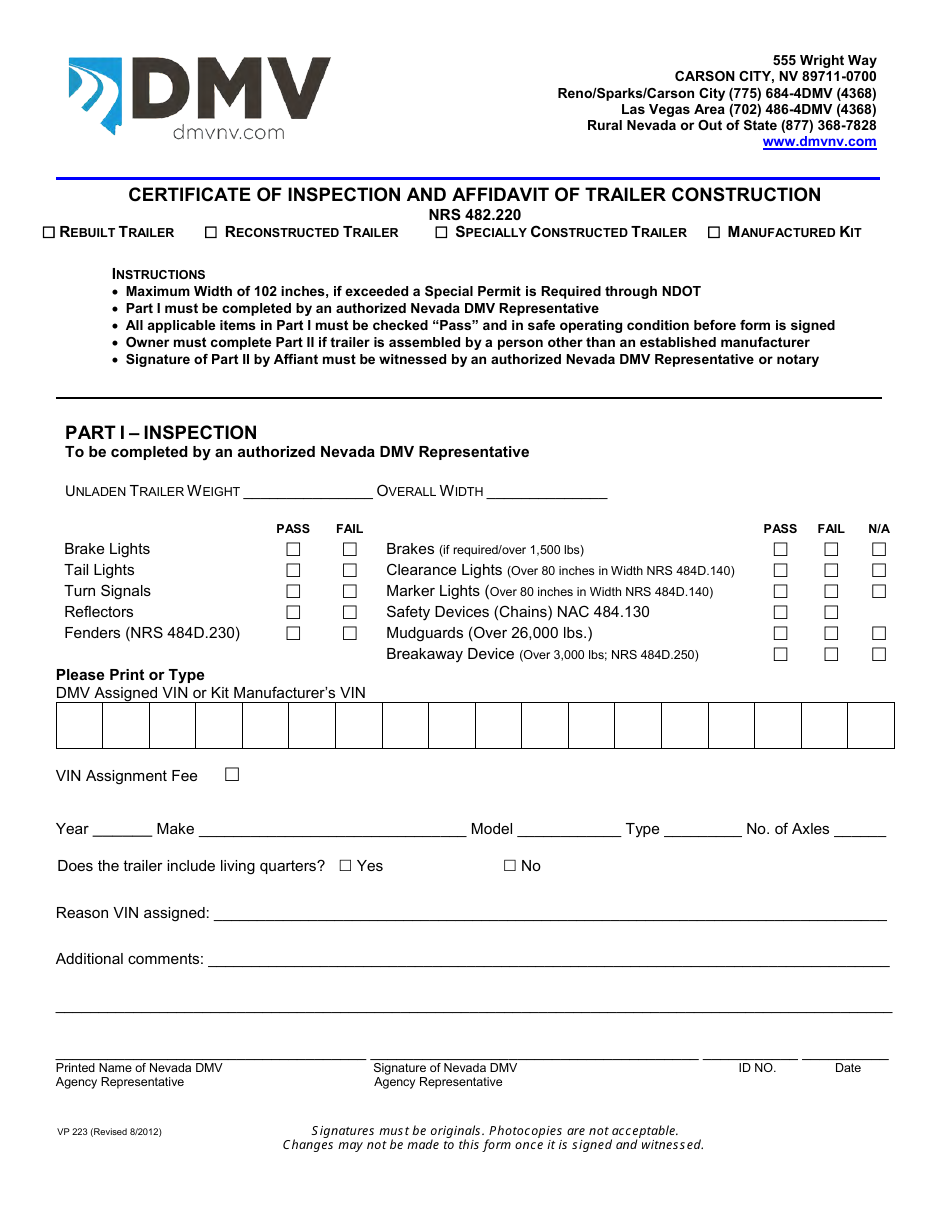
From www.templateroller.com
Form VP223 Fill Out, Sign Online and Download Printable PDF, Nevada What Do You Need To Register A Trailer In Nevada You can obtain a movement permit at any dmv office without an. Except as otherwise provided in this chapter and nrs 706.188, every owner of a motor vehicle, trailer or semitrailer intended to be operated. For trailers under 1,000 pounds, a small. While each area’s regulations may vary, they all need required paperwork, such as registration applications and titles. Utility. What Do You Need To Register A Trailer In Nevada.
From www.pinterest.com
Do some research into the laws as they apply in your jurisdiction What Do You Need To Register A Trailer In Nevada Except as otherwise provided in this chapter and nrs 706.188, every owner of a motor vehicle, trailer or semitrailer intended to be operated. Utility or travel trailers intended for the public roads in nevada must be registered and have a title per state law. Do trailers need to be registered in nevada? You must have a permit to drive the. What Do You Need To Register A Trailer In Nevada.
From www.wikihow.com
How to Register a Utility Trailer 10 Steps (with Pictures) What Do You Need To Register A Trailer In Nevada While each area’s regulations may vary, they all need required paperwork, such as registration applications and titles. Except as otherwise provided in this chapter and nrs 706.188, every owner of a motor vehicle, trailer or semitrailer intended to be operated. Both you and the dmv representative inspecting your trailer will need to complete a certificate of inspection and affidavit of. What Do You Need To Register A Trailer In Nevada.
From www.wikihow.com
How to Register a Homemade Trailer 15 Steps (with Pictures) What Do You Need To Register A Trailer In Nevada Both you and the dmv representative inspecting your trailer will need to complete a certificate of inspection and affidavit of trailer construction. You must have a permit to drive the vehicle more than three days after purchase. Utility or travel trailers intended for the public roads in nevada must be registered and have a title per state law. When you. What Do You Need To Register A Trailer In Nevada.
From boatsgeek.com
How to Register a Trailer Without a Title A Stepwise Guide What Do You Need To Register A Trailer In Nevada For trailers under 1,000 pounds, a small. When you get a utility trailer new or used, you usually need to register it with your area’s department of motor vehicles (dmv) so it’s legal to use on the road. Except as otherwise provided in this chapter and nrs 706.188, every owner of a motor vehicle, trailer or semitrailer intended to be. What Do You Need To Register A Trailer In Nevada.
From www.wikihow.com
How to Register a Homemade Trailer 15 Steps (with Pictures) What Do You Need To Register A Trailer In Nevada While each area’s regulations may vary, they all need required paperwork, such as registration applications and titles. When you get a utility trailer new or used, you usually need to register it with your area’s department of motor vehicles (dmv) so it’s legal to use on the road. The state of nevada requires all utility and travel trailers to be. What Do You Need To Register A Trailer In Nevada.
From www.milltrailers.com
How to Register a Trailer Milltrailers What Do You Need To Register A Trailer In Nevada When you get a utility trailer new or used, you usually need to register it with your area’s department of motor vehicles (dmv) so it’s legal to use on the road. You must have a permit to drive the vehicle more than three days after purchase. Both you and the dmv representative inspecting your trailer will need to complete a. What Do You Need To Register A Trailer In Nevada.
From www.wikihow.com
How to Register a Utility Trailer 8 Steps (with Pictures) What Do You Need To Register A Trailer In Nevada For trailers under 1,000 pounds, a small. Utility or travel trailers intended for the public roads in nevada must be registered and have a title per state law. Except as otherwise provided in this chapter and nrs 706.188, every owner of a motor vehicle, trailer or semitrailer intended to be operated. Do trailers need to be registered in nevada? You. What Do You Need To Register A Trailer In Nevada.
From www.wikihow.com
How to Register a Utility Trailer 10 Steps (with Pictures) What Do You Need To Register A Trailer In Nevada Except as otherwise provided in this chapter and nrs 706.188, every owner of a motor vehicle, trailer or semitrailer intended to be operated. The state of nevada requires all utility and travel trailers to be properly registered and titled before being operated on public streets. Utility or travel trailers intended for the public roads in nevada must be registered and. What Do You Need To Register A Trailer In Nevada.
From www.templateroller.com
Nevada Trailer Bill of Sale Template Fill Out, Sign Online and What Do You Need To Register A Trailer In Nevada When you get a utility trailer new or used, you usually need to register it with your area’s department of motor vehicles (dmv) so it’s legal to use on the road. The state of nevada requires all utility and travel trailers to be properly registered and titled before being operated on public streets. Utility or travel trailers intended for the. What Do You Need To Register A Trailer In Nevada.
From homeminimalisite.com
How To Register A Homemade Trailer What Do You Need To Register A Trailer In Nevada You must have a permit to drive the vehicle more than three days after purchase. Utility or travel trailers intended for the public roads in nevada must be registered and have a title per state law. Both you and the dmv representative inspecting your trailer will need to complete a certificate of inspection and affidavit of trailer construction. When you. What Do You Need To Register A Trailer In Nevada.
From www.rvandplaya.com
How To Get A Title For A Homemade Trailer? (Helpful Steps) What Do You Need To Register A Trailer In Nevada Utility or travel trailers intended for the public roads in nevada must be registered and have a title per state law. You must have a permit to drive the vehicle more than three days after purchase. You can obtain a movement permit at any dmv office without an. Both you and the dmv representative inspecting your trailer will need to. What Do You Need To Register A Trailer In Nevada.
From www.wikihow.com
How to Register a Utility Trailer 10 Steps (with Pictures) What Do You Need To Register A Trailer In Nevada Both you and the dmv representative inspecting your trailer will need to complete a certificate of inspection and affidavit of trailer construction. The state of nevada requires all utility and travel trailers to be properly registered and titled before being operated on public streets. You must have a permit to drive the vehicle more than three days after purchase. You. What Do You Need To Register A Trailer In Nevada.
From harrislawyers.com
Nevada Trailer Laws Harris & Harris Injury Lawyers What Do You Need To Register A Trailer In Nevada When you get a utility trailer new or used, you usually need to register it with your area’s department of motor vehicles (dmv) so it’s legal to use on the road. Do trailers need to be registered in nevada? While each area’s regulations may vary, they all need required paperwork, such as registration applications and titles. You can obtain a. What Do You Need To Register A Trailer In Nevada.