Scaffold Jsa Example .  australian scaffold swms & jsa 2009 scaffold swms & jsa ohs form 05:  this document provides a job safety analysis for scaffolding work.  job safety analysis for scaffolding activities is a critical component of ensuring safety in the construction industry.  the document provides a job safety analysis for the erection and removal of scaffolding at a work site. It identifies potential hazards such as physical.  scaffolding more than 14 inches (35.5 cm) from the planking to the face of the building or structure shall be guardrails and/or the use of personal fall protection. It identifies potential hazards for each activity including.
        
        from www.slideshare.net 
     
        
         this document provides a job safety analysis for scaffolding work.  scaffolding more than 14 inches (35.5 cm) from the planking to the face of the building or structure shall be guardrails and/or the use of personal fall protection. It identifies potential hazards such as physical. It identifies potential hazards for each activity including.  australian scaffold swms & jsa 2009 scaffold swms & jsa ohs form 05:  the document provides a job safety analysis for the erection and removal of scaffolding at a work site.  job safety analysis for scaffolding activities is a critical component of ensuring safety in the construction industry.
    
    	
            
	
		 
         
    Aha samplescaffolding 
    Scaffold Jsa Example  It identifies potential hazards for each activity including. It identifies potential hazards for each activity including.  scaffolding more than 14 inches (35.5 cm) from the planking to the face of the building or structure shall be guardrails and/or the use of personal fall protection.  job safety analysis for scaffolding activities is a critical component of ensuring safety in the construction industry.  australian scaffold swms & jsa 2009 scaffold swms & jsa ohs form 05:  the document provides a job safety analysis for the erection and removal of scaffolding at a work site.  this document provides a job safety analysis for scaffolding work. It identifies potential hazards such as physical.
            
	
		 
         
 
    
        From www.oparya.com 
                    Free download all types of Job Safety Analysis (JSA/JHA) Safety World Scaffold Jsa Example   australian scaffold swms & jsa 2009 scaffold swms & jsa ohs form 05:  this document provides a job safety analysis for scaffolding work.  scaffolding more than 14 inches (35.5 cm) from the planking to the face of the building or structure shall be guardrails and/or the use of personal fall protection.  the document provides a job. Scaffold Jsa Example.
     
    
        From www.scribd.com 
                    Scaffolding Safety Checklist PDF En Scaffolding Lumber Scaffold Jsa Example   job safety analysis for scaffolding activities is a critical component of ensuring safety in the construction industry.  australian scaffold swms & jsa 2009 scaffold swms & jsa ohs form 05:  the document provides a job safety analysis for the erection and removal of scaffolding at a work site. It identifies potential hazards such as physical.  scaffolding. Scaffold Jsa Example.
     
    
        From www.scribd.com 
                    Scaffolding JSA PDF Personal Protective Equipment Hazards Scaffold Jsa Example  It identifies potential hazards for each activity including.  the document provides a job safety analysis for the erection and removal of scaffolding at a work site.  job safety analysis for scaffolding activities is a critical component of ensuring safety in the construction industry.  this document provides a job safety analysis for scaffolding work. It identifies potential hazards. Scaffold Jsa Example.
     
    
        From www.safetymgmtstudy.com 
                    Scaffolding JSA Pdf/Doc Scaffold Jsa Example   this document provides a job safety analysis for scaffolding work.  the document provides a job safety analysis for the erection and removal of scaffolding at a work site.  australian scaffold swms & jsa 2009 scaffold swms & jsa ohs form 05: It identifies potential hazards for each activity including.  job safety analysis for scaffolding activities is. Scaffold Jsa Example.
     
    
        From naileditsafetydocs.co.nz 
                    Mobile Scaffold at Heights Task Analysis / JSA / SWMS NailedIt Safety Scaffold Jsa Example   scaffolding more than 14 inches (35.5 cm) from the planking to the face of the building or structure shall be guardrails and/or the use of personal fall protection. It identifies potential hazards such as physical. It identifies potential hazards for each activity including.  this document provides a job safety analysis for scaffolding work.  the document provides a. Scaffold Jsa Example.
     
    
        From www.scribd.com 
                    JSA Scaffolding (Perancah) Scaffold Jsa Example  It identifies potential hazards such as physical. It identifies potential hazards for each activity including.  the document provides a job safety analysis for the erection and removal of scaffolding at a work site.  australian scaffold swms & jsa 2009 scaffold swms & jsa ohs form 05:  job safety analysis for scaffolding activities is a critical component of. Scaffold Jsa Example.
     
    
        From www.slideshare.net 
                    Aha samplescaffolding Scaffold Jsa Example   job safety analysis for scaffolding activities is a critical component of ensuring safety in the construction industry. It identifies potential hazards such as physical. It identifies potential hazards for each activity including.  australian scaffold swms & jsa 2009 scaffold swms & jsa ohs form 05:  scaffolding more than 14 inches (35.5 cm) from the planking to the. Scaffold Jsa Example.
     
    
        From www.scribd.com 
                    06 Scaffold Erection and Dismantling (JHAJSA) PDF Scaffolding Scaffold Jsa Example   scaffolding more than 14 inches (35.5 cm) from the planking to the face of the building or structure shall be guardrails and/or the use of personal fall protection.  australian scaffold swms & jsa 2009 scaffold swms & jsa ohs form 05:  job safety analysis for scaffolding activities is a critical component of ensuring safety in the construction. Scaffold Jsa Example.
     
    
        From www.hsedot.com 
                    [Doc] JSA for Scaffolding Work Scaffold Jsa Example   the document provides a job safety analysis for the erection and removal of scaffolding at a work site.  scaffolding more than 14 inches (35.5 cm) from the planking to the face of the building or structure shall be guardrails and/or the use of personal fall protection. It identifies potential hazards for each activity including.  australian scaffold swms. Scaffold Jsa Example.
     
    
        From id.scribd.com 
                    JSA 034 Pemasangan Scaffolding PDF Scaffold Jsa Example   australian scaffold swms & jsa 2009 scaffold swms & jsa ohs form 05:  this document provides a job safety analysis for scaffolding work.  scaffolding more than 14 inches (35.5 cm) from the planking to the face of the building or structure shall be guardrails and/or the use of personal fall protection. It identifies potential hazards for each. Scaffold Jsa Example.
     
    
        From www.scribd.com 
                    Jsa Excavation Personal Protective Equipment Scaffolding Scaffold Jsa Example   scaffolding more than 14 inches (35.5 cm) from the planking to the face of the building or structure shall be guardrails and/or the use of personal fall protection.  the document provides a job safety analysis for the erection and removal of scaffolding at a work site. It identifies potential hazards such as physical. It identifies potential hazards for. Scaffold Jsa Example.
     
    
        From k3lh.com 
                    Jsa Safety Analysis » Scaffold Jsa Example   the document provides a job safety analysis for the erection and removal of scaffolding at a work site.  australian scaffold swms & jsa 2009 scaffold swms & jsa ohs form 05: It identifies potential hazards for each activity including.  job safety analysis for scaffolding activities is a critical component of ensuring safety in the construction industry. . Scaffold Jsa Example.
     
    
        From id.scribd.com 
                    Jsa Scaffolding PDF Scaffold Jsa Example   australian scaffold swms & jsa 2009 scaffold swms & jsa ohs form 05:  this document provides a job safety analysis for scaffolding work.  job safety analysis for scaffolding activities is a critical component of ensuring safety in the construction industry.  scaffolding more than 14 inches (35.5 cm) from the planking to the face of the building. Scaffold Jsa Example.
     
    
        From www.hseprof.com 
                    Donwload Job Safety Analysis ( JSA ) Jobs Portal Scaffold Jsa Example   scaffolding more than 14 inches (35.5 cm) from the planking to the face of the building or structure shall be guardrails and/or the use of personal fall protection. It identifies potential hazards for each activity including.  australian scaffold swms & jsa 2009 scaffold swms & jsa ohs form 05: It identifies potential hazards such as physical.  the. Scaffold Jsa Example.
     
    
        From studylib.net 
                    AHA Example for Scaffolding Scaffold Jsa Example  It identifies potential hazards for each activity including. It identifies potential hazards such as physical.  job safety analysis for scaffolding activities is a critical component of ensuring safety in the construction industry.  this document provides a job safety analysis for scaffolding work.  the document provides a job safety analysis for the erection and removal of scaffolding at. Scaffold Jsa Example.
     
    
        From www.myxxgirl.com 
                    Job Safety Analysis Construction Examples My XXX Hot Girl Scaffold Jsa Example   australian scaffold swms & jsa 2009 scaffold swms & jsa ohs form 05: It identifies potential hazards such as physical.  job safety analysis for scaffolding activities is a critical component of ensuring safety in the construction industry.  this document provides a job safety analysis for scaffolding work. It identifies potential hazards for each activity including.  the. Scaffold Jsa Example.
     
    
        From www.scribd.com 
                    Jsa Scaffold PDF Personal Protective Equipment Safety Scaffold Jsa Example   scaffolding more than 14 inches (35.5 cm) from the planking to the face of the building or structure shall be guardrails and/or the use of personal fall protection. It identifies potential hazards for each activity including. It identifies potential hazards such as physical.  this document provides a job safety analysis for scaffolding work.  australian scaffold swms &. Scaffold Jsa Example.
     
    
        From www.pinterest.com 
                    Printable 13 Job Safety Analysis Examples Pdf Word Pages Examples Job Scaffold Jsa Example  It identifies potential hazards such as physical.  job safety analysis for scaffolding activities is a critical component of ensuring safety in the construction industry. It identifies potential hazards for each activity including.  australian scaffold swms & jsa 2009 scaffold swms & jsa ohs form 05:  this document provides a job safety analysis for scaffolding work.  scaffolding. Scaffold Jsa Example.
     
    
        From k3lh.com 
                    Jsa Scaffolding Work » Scaffold Jsa Example   job safety analysis for scaffolding activities is a critical component of ensuring safety in the construction industry.  this document provides a job safety analysis for scaffolding work.  scaffolding more than 14 inches (35.5 cm) from the planking to the face of the building or structure shall be guardrails and/or the use of personal fall protection.  the. Scaffold Jsa Example.
     
    
        From www.dexform.com 
                    Job safety analysis (JSA) template operating forklift in Word and Pdf Scaffold Jsa Example  It identifies potential hazards for each activity including.  the document provides a job safety analysis for the erection and removal of scaffolding at a work site. It identifies potential hazards such as physical.  this document provides a job safety analysis for scaffolding work.  job safety analysis for scaffolding activities is a critical component of ensuring safety in. Scaffold Jsa Example.
     
    
        From www.scribd.com 
                    Job Safety Analysis Sheet Erection & Use of Scaffolding PDF Scaffold Jsa Example  It identifies potential hazards such as physical. It identifies potential hazards for each activity including.  this document provides a job safety analysis for scaffolding work.  job safety analysis for scaffolding activities is a critical component of ensuring safety in the construction industry.  australian scaffold swms & jsa 2009 scaffold swms & jsa ohs form 05:  scaffolding. Scaffold Jsa Example.
     
    
        From www.mrscaffold.com.au 
                    Safety tips for Mobile Scaffolding Mr Scaffold 1300 677 223 Scaffold Jsa Example   job safety analysis for scaffolding activities is a critical component of ensuring safety in the construction industry.  this document provides a job safety analysis for scaffolding work.  australian scaffold swms & jsa 2009 scaffold swms & jsa ohs form 05: It identifies potential hazards such as physical. It identifies potential hazards for each activity including.  scaffolding. Scaffold Jsa Example.
     
    
        From www.scribd.com 
                    Scaffold Inspection Checklist Scaffolding Transport Scaffold Jsa Example   scaffolding more than 14 inches (35.5 cm) from the planking to the face of the building or structure shall be guardrails and/or the use of personal fall protection.  the document provides a job safety analysis for the erection and removal of scaffolding at a work site.  this document provides a job safety analysis for scaffolding work. It. Scaffold Jsa Example.
     
    
        From mungfali.com 
                    Scaffolding Risk Assessment Scaffold Jsa Example   the document provides a job safety analysis for the erection and removal of scaffolding at a work site.  this document provides a job safety analysis for scaffolding work.  job safety analysis for scaffolding activities is a critical component of ensuring safety in the construction industry. It identifies potential hazards for each activity including.  australian scaffold swms. Scaffold Jsa Example.
     
    
        From mavink.com 
                    Scaffold Safety Checklist Form Scaffold Jsa Example   the document provides a job safety analysis for the erection and removal of scaffolding at a work site.  job safety analysis for scaffolding activities is a critical component of ensuring safety in the construction industry.  australian scaffold swms & jsa 2009 scaffold swms & jsa ohs form 05: It identifies potential hazards such as physical.  scaffolding. Scaffold Jsa Example.
     
    
        From www.scribd.com 
                    Example JSA Job Safety Analysis PDF Personal Protective Equipment Scaffold Jsa Example   this document provides a job safety analysis for scaffolding work.  australian scaffold swms & jsa 2009 scaffold swms & jsa ohs form 05:  the document provides a job safety analysis for the erection and removal of scaffolding at a work site. It identifies potential hazards for each activity including.  scaffolding more than 14 inches (35.5 cm). Scaffold Jsa Example.
     
    
        From www.scribd.com 
                    JSA Installation Scaffolding PDF Scaffold Jsa Example   australian scaffold swms & jsa 2009 scaffold swms & jsa ohs form 05:  the document provides a job safety analysis for the erection and removal of scaffolding at a work site.  scaffolding more than 14 inches (35.5 cm) from the planking to the face of the building or structure shall be guardrails and/or the use of personal. Scaffold Jsa Example.
     
    
        From www.scribd.com 
                    New Jsa for Mobile Scaffold Erection and Checking of Camera PDF Scaffold Jsa Example   job safety analysis for scaffolding activities is a critical component of ensuring safety in the construction industry.  the document provides a job safety analysis for the erection and removal of scaffolding at a work site.  australian scaffold swms & jsa 2009 scaffold swms & jsa ohs form 05:  scaffolding more than 14 inches (35.5 cm) from. Scaffold Jsa Example.
     
    
        From www.vrogue.co 
                    What Is Job Safety Analysis Jsa What Is Jha What Is T vrogue.co Scaffold Jsa Example  It identifies potential hazards such as physical.  scaffolding more than 14 inches (35.5 cm) from the planking to the face of the building or structure shall be guardrails and/or the use of personal fall protection.  the document provides a job safety analysis for the erection and removal of scaffolding at a work site.  australian scaffold swms &. Scaffold Jsa Example.
     
    
        From www.scribd.com 
                    JSA For Working at Height PDF Prevention Safety Scaffold Jsa Example  It identifies potential hazards for each activity including.  scaffolding more than 14 inches (35.5 cm) from the planking to the face of the building or structure shall be guardrails and/or the use of personal fall protection.  job safety analysis for scaffolding activities is a critical component of ensuring safety in the construction industry.  australian scaffold swms &. Scaffold Jsa Example.
     
    
        From www.scribd.com 
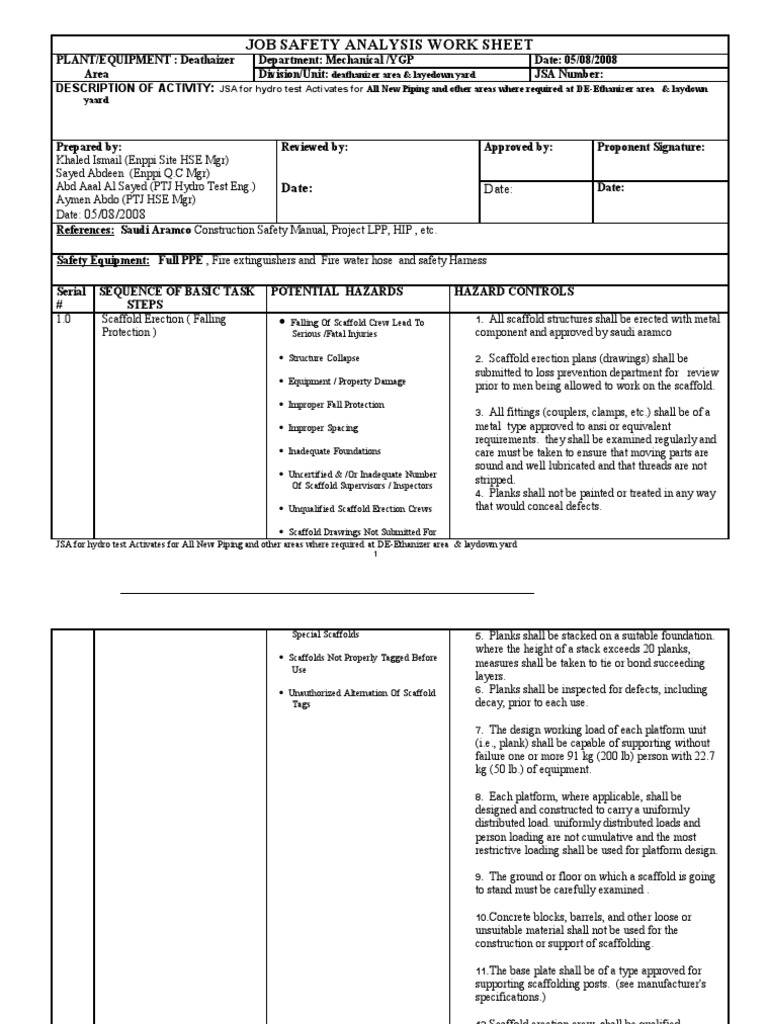
                    JSA for Hydro Test Activites ( Generic ) Scaffolding Scaffold Jsa Example   job safety analysis for scaffolding activities is a critical component of ensuring safety in the construction industry. It identifies potential hazards such as physical.  this document provides a job safety analysis for scaffolding work.  scaffolding more than 14 inches (35.5 cm) from the planking to the face of the building or structure shall be guardrails and/or the. Scaffold Jsa Example.
     
    
        From www.scribd.com 
                    Confined Space JSA Personal Protective Equipment Prevention Scaffold Jsa Example   australian scaffold swms & jsa 2009 scaffold swms & jsa ohs form 05: It identifies potential hazards such as physical.  this document provides a job safety analysis for scaffolding work.  scaffolding more than 14 inches (35.5 cm) from the planking to the face of the building or structure shall be guardrails and/or the use of personal fall. Scaffold Jsa Example.
     
    
        From studylib.net 
                    Generic JSA for Removal & Fixing of Insulation Scaffold Jsa Example   the document provides a job safety analysis for the erection and removal of scaffolding at a work site.  job safety analysis for scaffolding activities is a critical component of ensuring safety in the construction industry.  scaffolding more than 14 inches (35.5 cm) from the planking to the face of the building or structure shall be guardrails and/or. Scaffold Jsa Example.
     
    
        From www.scribd.com 
                    JSA Scaffolding C 2003 Scaffold Jsa Example  It identifies potential hazards for each activity including.  the document provides a job safety analysis for the erection and removal of scaffolding at a work site.  australian scaffold swms & jsa 2009 scaffold swms & jsa ohs form 05: It identifies potential hazards such as physical.  this document provides a job safety analysis for scaffolding work. . Scaffold Jsa Example.
     
    
        From k3lh.com 
                    Jsa Scaffolding » Scaffold Jsa Example   the document provides a job safety analysis for the erection and removal of scaffolding at a work site. It identifies potential hazards for each activity including.  this document provides a job safety analysis for scaffolding work.  australian scaffold swms & jsa 2009 scaffold swms & jsa ohs form 05:  scaffolding more than 14 inches (35.5 cm). Scaffold Jsa Example.