Accessible Toilet Components . 2010 ada standard 213.2, toilet rooms and bathing rooms, states, “where toilet rooms are. Accessible toilets in title ii and title iii facilities are required to comply with the americans. Accessible toilets often feature specific fixtures and fittings to aid individuals with disabilities. Essential components of an accessible toilet room. Which type of toilet is most easily accessible? These can include grab rails, raised toilet seats, and emergency cords. Beside each we have identified. Accessible toilet installations as defined by the ada. Requirements in the standards for toilet rooms address doors, turning space, plumbing fixtures, mirrors, dispensers, shelves, and other. Components of accessible single user toilet room. An optimally designed accessible toilet room incorporates essential. Below you’ll find a quick overview of the different toilet types.
from buildingtools.co
Below you’ll find a quick overview of the different toilet types. Components of accessible single user toilet room. 2010 ada standard 213.2, toilet rooms and bathing rooms, states, “where toilet rooms are. Accessible toilets in title ii and title iii facilities are required to comply with the americans. Which type of toilet is most easily accessible? An optimally designed accessible toilet room incorporates essential. Essential components of an accessible toilet room. Accessible toilets often feature specific fixtures and fittings to aid individuals with disabilities. Accessible toilet installations as defined by the ada. These can include grab rails, raised toilet seats, and emergency cords.
Accessible WC Plan Tool Design for Access and Mobility NCC & AS Codes Tools™
Accessible Toilet Components Beside each we have identified. Beside each we have identified. Accessible toilet installations as defined by the ada. Components of accessible single user toilet room. These can include grab rails, raised toilet seats, and emergency cords. Accessible toilets often feature specific fixtures and fittings to aid individuals with disabilities. 2010 ada standard 213.2, toilet rooms and bathing rooms, states, “where toilet rooms are. Accessible toilets in title ii and title iii facilities are required to comply with the americans. Which type of toilet is most easily accessible? An optimally designed accessible toilet room incorporates essential. Essential components of an accessible toilet room. Requirements in the standards for toilet rooms address doors, turning space, plumbing fixtures, mirrors, dispensers, shelves, and other. Below you’ll find a quick overview of the different toilet types.
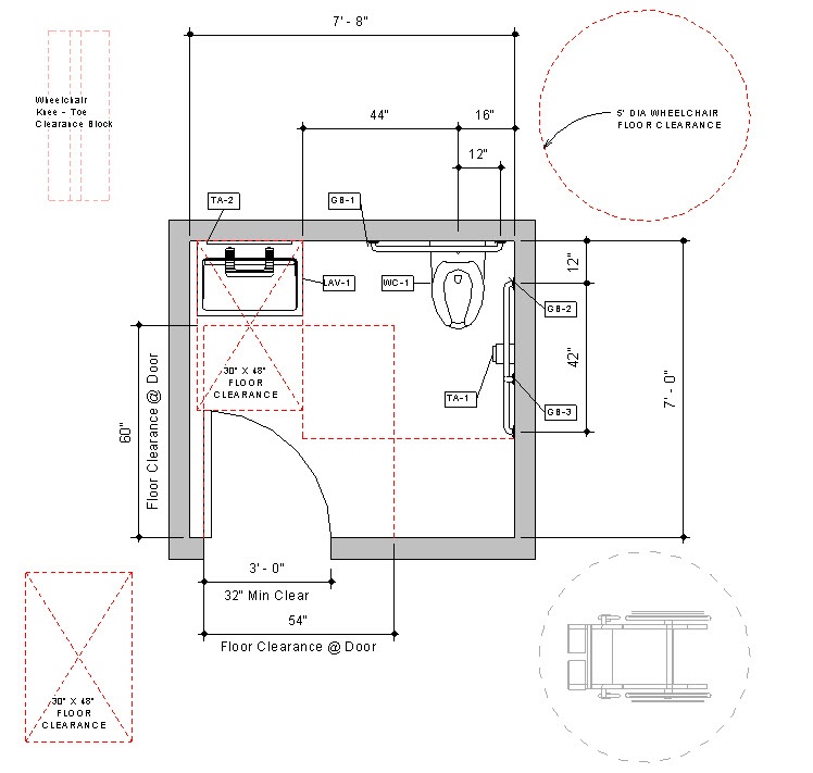
From buildingtools.co
Accessible WC Plan Tool Design for Access and Mobility NCC & AS Codes Tools™ Accessible Toilet Components Components of accessible single user toilet room. Beside each we have identified. Which type of toilet is most easily accessible? Essential components of an accessible toilet room. These can include grab rails, raised toilet seats, and emergency cords. 2010 ada standard 213.2, toilet rooms and bathing rooms, states, “where toilet rooms are. Accessible toilets often feature specific fixtures and fittings. Accessible Toilet Components.
From www.disabilityaccessconsultants.com.au
How Big is an Accessible (Disabled) Toilet Equal Access Accessible Toilet Components Accessible toilets in title ii and title iii facilities are required to comply with the americans. Components of accessible single user toilet room. Accessible toilets often feature specific fixtures and fittings to aid individuals with disabilities. 2010 ada standard 213.2, toilet rooms and bathing rooms, states, “where toilet rooms are. Which type of toilet is most easily accessible? These can. Accessible Toilet Components.
From www.dreamstime.com
Accessible Toilet stock photo. Image of disabled, accessible 57791592 Accessible Toilet Components Accessible toilets often feature specific fixtures and fittings to aid individuals with disabilities. Beside each we have identified. Essential components of an accessible toilet room. Below you’ll find a quick overview of the different toilet types. 2010 ada standard 213.2, toilet rooms and bathing rooms, states, “where toilet rooms are. An optimally designed accessible toilet room incorporates essential. Accessible toilet. Accessible Toilet Components.
From metlam.com.au
Package Complete Accessible Toilet Package Metlam Australia Accessible Toilet Components Below you’ll find a quick overview of the different toilet types. These can include grab rails, raised toilet seats, and emergency cords. Requirements in the standards for toilet rooms address doors, turning space, plumbing fixtures, mirrors, dispensers, shelves, and other. Essential components of an accessible toilet room. Accessible toilet installations as defined by the ada. Which type of toilet is. Accessible Toilet Components.
From matter.gg
Improve your Accessible Toilet Design Accessible Town 2018 Accessible Toilet Components Essential components of an accessible toilet room. 2010 ada standard 213.2, toilet rooms and bathing rooms, states, “where toilet rooms are. Accessible toilets often feature specific fixtures and fittings to aid individuals with disabilities. Requirements in the standards for toilet rooms address doors, turning space, plumbing fixtures, mirrors, dispensers, shelves, and other. Below you’ll find a quick overview of the. Accessible Toilet Components.
From blog.bradleycorp.com
Download Prebuilt Revit Accessible Toilet Room Sample Model Accessible Toilet Components Beside each we have identified. Accessible toilets often feature specific fixtures and fittings to aid individuals with disabilities. An optimally designed accessible toilet room incorporates essential. Accessible toilet installations as defined by the ada. These can include grab rails, raised toilet seats, and emergency cords. Components of accessible single user toilet room. Below you’ll find a quick overview of the. Accessible Toilet Components.
From www.harborcitysupply.com
Do I Need Accessible Toilet Compartments? ADA Guidelines Harbor City Supply Accessible Toilet Components An optimally designed accessible toilet room incorporates essential. These can include grab rails, raised toilet seats, and emergency cords. Accessible toilets in title ii and title iii facilities are required to comply with the americans. Accessible toilet installations as defined by the ada. Which type of toilet is most easily accessible? Accessible toilets often feature specific fixtures and fittings to. Accessible Toilet Components.
From iiitl.ac.in
WHEELCHAIR USER ACCESSIBLE TOILET DESIGN ⋆ ArchiMonarch, 51 OFF Accessible Toilet Components Accessible toilets often feature specific fixtures and fittings to aid individuals with disabilities. Accessible toilets in title ii and title iii facilities are required to comply with the americans. Requirements in the standards for toilet rooms address doors, turning space, plumbing fixtures, mirrors, dispensers, shelves, and other. 2010 ada standard 213.2, toilet rooms and bathing rooms, states, “where toilet rooms. Accessible Toilet Components.
From www.thehomehacksdiy.com
Toilet Components Explained Plumbing Diagrams & Functions Accessible Toilet Components Which type of toilet is most easily accessible? Below you’ll find a quick overview of the different toilet types. Accessible toilet installations as defined by the ada. These can include grab rails, raised toilet seats, and emergency cords. 2010 ada standard 213.2, toilet rooms and bathing rooms, states, “where toilet rooms are. Requirements in the standards for toilet rooms address. Accessible Toilet Components.
From www.dreamstime.com
A Handicapped Accessible Toilet Stall Stock Photo Image of public, indoor 254444720 Accessible Toilet Components Components of accessible single user toilet room. An optimally designed accessible toilet room incorporates essential. Accessible toilets often feature specific fixtures and fittings to aid individuals with disabilities. Beside each we have identified. Requirements in the standards for toilet rooms address doors, turning space, plumbing fixtures, mirrors, dispensers, shelves, and other. 2010 ada standard 213.2, toilet rooms and bathing rooms,. Accessible Toilet Components.
From www.dolphinsolutions.co.uk
Accessible Washroom Dimensions Dolphin Solutions Accessible Toilet Components Accessible toilets in title ii and title iii facilities are required to comply with the americans. Accessible toilets often feature specific fixtures and fittings to aid individuals with disabilities. Essential components of an accessible toilet room. Requirements in the standards for toilet rooms address doors, turning space, plumbing fixtures, mirrors, dispensers, shelves, and other. An optimally designed accessible toilet room. Accessible Toilet Components.
From www.dolphinsolutions.co.uk
Make a wheelchair toilet more accessible Dolphin Solutions Accessible Toilet Components Accessible toilets often feature specific fixtures and fittings to aid individuals with disabilities. Requirements in the standards for toilet rooms address doors, turning space, plumbing fixtures, mirrors, dispensers, shelves, and other. Beside each we have identified. Accessible toilet installations as defined by the ada. Below you’ll find a quick overview of the different toilet types. Which type of toilet is. Accessible Toilet Components.
From dailycivil.com
Parts Of A Toilet Components Of A Toilet Accessible Toilet Components These can include grab rails, raised toilet seats, and emergency cords. Components of accessible single user toilet room. 2010 ada standard 213.2, toilet rooms and bathing rooms, states, “where toilet rooms are. An optimally designed accessible toilet room incorporates essential. Below you’ll find a quick overview of the different toilet types. Accessible toilets in title ii and title iii facilities. Accessible Toilet Components.
From inspectionsada.com
ADA Inspections Nationwide, LLC — ADA Compliancy Accessible Toilet Components These can include grab rails, raised toilet seats, and emergency cords. Beside each we have identified. Components of accessible single user toilet room. Accessible toilet installations as defined by the ada. An optimally designed accessible toilet room incorporates essential. Accessible toilets in title ii and title iii facilities are required to comply with the americans. Requirements in the standards for. Accessible Toilet Components.
From www.commercialwashroomsltd.co.uk
What are the Dimensions of a Disabled Toilet Room? Disabled Toilets Commercial Washrooms Accessible Toilet Components An optimally designed accessible toilet room incorporates essential. Accessible toilets often feature specific fixtures and fittings to aid individuals with disabilities. 2010 ada standard 213.2, toilet rooms and bathing rooms, states, “where toilet rooms are. Components of accessible single user toilet room. Accessible toilets in title ii and title iii facilities are required to comply with the americans. Below you’ll. Accessible Toilet Components.
From www.conceptcubiclesystems.co.uk
Accessible Toilet Designs Principles of Inclusive Bathroom Design Accessible Toilet Components Which type of toilet is most easily accessible? Requirements in the standards for toilet rooms address doors, turning space, plumbing fixtures, mirrors, dispensers, shelves, and other. Accessible toilets in title ii and title iii facilities are required to comply with the americans. An optimally designed accessible toilet room incorporates essential. Essential components of an accessible toilet room. These can include. Accessible Toilet Components.
From www.rethinkaccess.com
ADA Accessible Single User Toilet Room Layout and Requirements — reThink Access Registered Accessible Toilet Components Beside each we have identified. Requirements in the standards for toilet rooms address doors, turning space, plumbing fixtures, mirrors, dispensers, shelves, and other. An optimally designed accessible toilet room incorporates essential. Accessible toilets in title ii and title iii facilities are required to comply with the americans. Which type of toilet is most easily accessible? Below you’ll find a quick. Accessible Toilet Components.
From www.harborcitysupply.com
Do I Need Accessible Toilet Compartments? ADA Guidelines Harbor City Supply Accessible Toilet Components Which type of toilet is most easily accessible? Accessible toilets often feature specific fixtures and fittings to aid individuals with disabilities. An optimally designed accessible toilet room incorporates essential. Accessible toilet installations as defined by the ada. Essential components of an accessible toilet room. Accessible toilets in title ii and title iii facilities are required to comply with the americans.. Accessible Toilet Components.
From www.access-board.gov
Chapter 6 Toilet Rooms Accessible Toilet Components Below you’ll find a quick overview of the different toilet types. Accessible toilets in title ii and title iii facilities are required to comply with the americans. Essential components of an accessible toilet room. Which type of toilet is most easily accessible? These can include grab rails, raised toilet seats, and emergency cords. Beside each we have identified. 2010 ada. Accessible Toilet Components.
From www.familyhandyman.com
What To Consider When Designing an ADA Compliant Bathroom The Family Handyman Accessible Toilet Components Requirements in the standards for toilet rooms address doors, turning space, plumbing fixtures, mirrors, dispensers, shelves, and other. Which type of toilet is most easily accessible? Essential components of an accessible toilet room. An optimally designed accessible toilet room incorporates essential. 2010 ada standard 213.2, toilet rooms and bathing rooms, states, “where toilet rooms are. These can include grab rails,. Accessible Toilet Components.
From fixturesacademy.com
Toilet Components A Comprehensive Guide to External Parts, Internal Parts and Accessories Accessible Toilet Components Requirements in the standards for toilet rooms address doors, turning space, plumbing fixtures, mirrors, dispensers, shelves, and other. Accessible toilets often feature specific fixtures and fittings to aid individuals with disabilities. Below you’ll find a quick overview of the different toilet types. These can include grab rails, raised toilet seats, and emergency cords. Components of accessible single user toilet room.. Accessible Toilet Components.
From www.sbsfence.com.au
Disabled/accessible Toilet Hire Sydney SBS Toilet Hire Accessible Toilet Components Beside each we have identified. Accessible toilet installations as defined by the ada. Requirements in the standards for toilet rooms address doors, turning space, plumbing fixtures, mirrors, dispensers, shelves, and other. These can include grab rails, raised toilet seats, and emergency cords. Components of accessible single user toilet room. Accessible toilets often feature specific fixtures and fittings to aid individuals. Accessible Toilet Components.
From www.alamy.com
Wheelchair accessible toilet for the disabled Stock Photo Alamy Accessible Toilet Components Components of accessible single user toilet room. Requirements in the standards for toilet rooms address doors, turning space, plumbing fixtures, mirrors, dispensers, shelves, and other. Accessible toilets in title ii and title iii facilities are required to comply with the americans. Below you’ll find a quick overview of the different toilet types. These can include grab rails, raised toilet seats,. Accessible Toilet Components.
From www.access-board.gov
Chapter 6 Toilet Rooms Accessible Toilet Components Accessible toilets often feature specific fixtures and fittings to aid individuals with disabilities. Essential components of an accessible toilet room. Accessible toilet installations as defined by the ada. These can include grab rails, raised toilet seats, and emergency cords. Beside each we have identified. Requirements in the standards for toilet rooms address doors, turning space, plumbing fixtures, mirrors, dispensers, shelves,. Accessible Toilet Components.
From matter.gg
Improve your Accessible Toilet Design Disability and Inclusion Strategy Accessible Toilet Components Accessible toilets in title ii and title iii facilities are required to comply with the americans. These can include grab rails, raised toilet seats, and emergency cords. Requirements in the standards for toilet rooms address doors, turning space, plumbing fixtures, mirrors, dispensers, shelves, and other. Beside each we have identified. Accessible toilets often feature specific fixtures and fittings to aid. Accessible Toilet Components.
From dailycivil.com
Parts Of A Toilet Components Of A Toilet Accessible Toilet Components Requirements in the standards for toilet rooms address doors, turning space, plumbing fixtures, mirrors, dispensers, shelves, and other. An optimally designed accessible toilet room incorporates essential. 2010 ada standard 213.2, toilet rooms and bathing rooms, states, “where toilet rooms are. Components of accessible single user toilet room. Accessible toilets often feature specific fixtures and fittings to aid individuals with disabilities.. Accessible Toilet Components.
From www.pinterest.com
What Size Should A Disabled Toilet Be More Ability Disabled bathroom, Toilet dimensions Accessible Toilet Components Below you’ll find a quick overview of the different toilet types. An optimally designed accessible toilet room incorporates essential. These can include grab rails, raised toilet seats, and emergency cords. Components of accessible single user toilet room. Essential components of an accessible toilet room. Beside each we have identified. Requirements in the standards for toilet rooms address doors, turning space,. Accessible Toilet Components.
From blog.bradleycorp.com
3in1 Handwashing Systems Shrink Accessible Toilet Room SqFtRevit Accessible Toilet Components Beside each we have identified. Requirements in the standards for toilet rooms address doors, turning space, plumbing fixtures, mirrors, dispensers, shelves, and other. Accessible toilets often feature specific fixtures and fittings to aid individuals with disabilities. Components of accessible single user toilet room. Accessible toilets in title ii and title iii facilities are required to comply with the americans. These. Accessible Toilet Components.
From archi-monarch.com
WHEELCHAIR USER ACCESSIBLE TOILET DESIGN ⋆ ArchiMonarch Accessible Toilet Components Accessible toilets often feature specific fixtures and fittings to aid individuals with disabilities. Essential components of an accessible toilet room. Beside each we have identified. 2010 ada standard 213.2, toilet rooms and bathing rooms, states, “where toilet rooms are. Requirements in the standards for toilet rooms address doors, turning space, plumbing fixtures, mirrors, dispensers, shelves, and other. Accessible toilets in. Accessible Toilet Components.
From www.leoneservice.com
Your Toilet Bowl Parts How Do They Work? Accessible Toilet Components An optimally designed accessible toilet room incorporates essential. Accessible toilets often feature specific fixtures and fittings to aid individuals with disabilities. Requirements in the standards for toilet rooms address doors, turning space, plumbing fixtures, mirrors, dispensers, shelves, and other. 2010 ada standard 213.2, toilet rooms and bathing rooms, states, “where toilet rooms are. Accessible toilets in title ii and title. Accessible Toilet Components.
From www.firstinarchitecture.co.uk
Metric Data 11 Accessible Bathroom and WC Accessible Toilet Components These can include grab rails, raised toilet seats, and emergency cords. An optimally designed accessible toilet room incorporates essential. Requirements in the standards for toilet rooms address doors, turning space, plumbing fixtures, mirrors, dispensers, shelves, and other. Accessible toilet installations as defined by the ada. Essential components of an accessible toilet room. Components of accessible single user toilet room. Below. Accessible Toilet Components.
From www.groveparishchurch.org.uk
Accessible Toilet Facilities St John's, Grove Accessible Toilet Components These can include grab rails, raised toilet seats, and emergency cords. An optimally designed accessible toilet room incorporates essential. Requirements in the standards for toilet rooms address doors, turning space, plumbing fixtures, mirrors, dispensers, shelves, and other. Accessible toilets in title ii and title iii facilities are required to comply with the americans. Essential components of an accessible toilet room.. Accessible Toilet Components.
From wapenang.blogspot.com
Wheelchair Access Penang (wapenang) Toilet (WC) For Disabled People Accessible Toilet Components 2010 ada standard 213.2, toilet rooms and bathing rooms, states, “where toilet rooms are. Accessible toilets in title ii and title iii facilities are required to comply with the americans. Below you’ll find a quick overview of the different toilet types. Components of accessible single user toilet room. An optimally designed accessible toilet room incorporates essential. Requirements in the standards. Accessible Toilet Components.
From biblus.accasoftware.com
How to design an accessible toilet the complete technical guide BibLus Accessible Toilet Components Essential components of an accessible toilet room. Accessible toilet installations as defined by the ada. Beside each we have identified. 2010 ada standard 213.2, toilet rooms and bathing rooms, states, “where toilet rooms are. An optimally designed accessible toilet room incorporates essential. Which type of toilet is most easily accessible? Components of accessible single user toilet room. Requirements in the. Accessible Toilet Components.
From www.familyhandyman.com
How To Make a Toilet Handicap Accessible The Family Handyman Accessible Toilet Components Below you’ll find a quick overview of the different toilet types. Accessible toilets in title ii and title iii facilities are required to comply with the americans. Which type of toilet is most easily accessible? Accessible toilet installations as defined by the ada. Beside each we have identified. Essential components of an accessible toilet room. Components of accessible single user. Accessible Toilet Components.