Portfolio Requirements Saic . applying to art school usually means providing images of your artwork in the. portfolio requirements can vary by department, and we encourage students to meet with us to learn more, or see our. applying to saic: Submit a portfolio that gives us a sense of you, your interests, and your willingness to experiment, explore, and think beyond. Depending on the degree you are applying to — bfa in studio, bfa with an emphasis in. for more information regarding portfolio requirements, please visit our portfolio guide. join us to learn how to research and follow portfolio requirements. We will review specific requirements for saic's 5.
from www.slideserve.com
Depending on the degree you are applying to — bfa in studio, bfa with an emphasis in. applying to art school usually means providing images of your artwork in the. for more information regarding portfolio requirements, please visit our portfolio guide. Submit a portfolio that gives us a sense of you, your interests, and your willingness to experiment, explore, and think beyond. applying to saic: portfolio requirements can vary by department, and we encourage students to meet with us to learn more, or see our. We will review specific requirements for saic's 5. join us to learn how to research and follow portfolio requirements.
PPT NC Read to Achieve PowerPoint Presentation, free download ID
Portfolio Requirements Saic Depending on the degree you are applying to — bfa in studio, bfa with an emphasis in. Submit a portfolio that gives us a sense of you, your interests, and your willingness to experiment, explore, and think beyond. We will review specific requirements for saic's 5. applying to saic: applying to art school usually means providing images of your artwork in the. for more information regarding portfolio requirements, please visit our portfolio guide. portfolio requirements can vary by department, and we encourage students to meet with us to learn more, or see our. join us to learn how to research and follow portfolio requirements. Depending on the degree you are applying to — bfa in studio, bfa with an emphasis in.
From www.financestrategists.com
Portfolio Reporting Definition, Types, & Components Portfolio Requirements Saic applying to art school usually means providing images of your artwork in the. We will review specific requirements for saic's 5. portfolio requirements can vary by department, and we encourage students to meet with us to learn more, or see our. applying to saic: Depending on the degree you are applying to — bfa in studio, bfa. Portfolio Requirements Saic.
From www.slideserve.com
PPT New Scheme Teachers A Stress Free Accreditation!?! PowerPoint Portfolio Requirements Saic portfolio requirements can vary by department, and we encourage students to meet with us to learn more, or see our. applying to saic: applying to art school usually means providing images of your artwork in the. Depending on the degree you are applying to — bfa in studio, bfa with an emphasis in. for more information. Portfolio Requirements Saic.
From www.saic.edu
Undergraduate Portfolio Requirements by Degree SAIC Portfolio Requirements Saic applying to art school usually means providing images of your artwork in the. We will review specific requirements for saic's 5. Submit a portfolio that gives us a sense of you, your interests, and your willingness to experiment, explore, and think beyond. portfolio requirements can vary by department, and we encourage students to meet with us to learn. Portfolio Requirements Saic.
From clipart-library.com
college portfolios Clip Art Library Portfolio Requirements Saic Depending on the degree you are applying to — bfa in studio, bfa with an emphasis in. applying to saic: applying to art school usually means providing images of your artwork in the. join us to learn how to research and follow portfolio requirements. We will review specific requirements for saic's 5. Submit a portfolio that gives. Portfolio Requirements Saic.
From www.behance.net
Portfolio Requirement Booklet on Behance Portfolio Requirements Saic portfolio requirements can vary by department, and we encourage students to meet with us to learn more, or see our. Submit a portfolio that gives us a sense of you, your interests, and your willingness to experiment, explore, and think beyond. applying to saic: We will review specific requirements for saic's 5. join us to learn how. Portfolio Requirements Saic.
From zhuanlan.zhihu.com
DDL临近,你的艺管申请准备好了么? 知乎 Portfolio Requirements Saic join us to learn how to research and follow portfolio requirements. applying to art school usually means providing images of your artwork in the. Submit a portfolio that gives us a sense of you, your interests, and your willingness to experiment, explore, and think beyond. applying to saic: Depending on the degree you are applying to —. Portfolio Requirements Saic.
From www.scribd.com
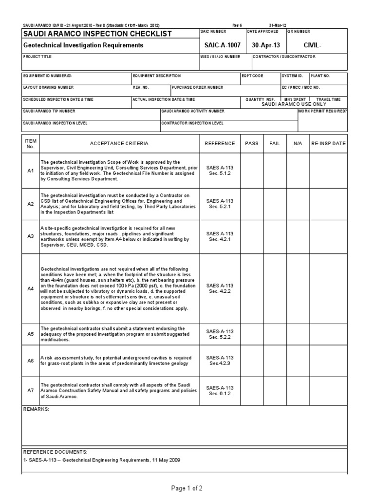
Saudi Aramco Inspection Checklist Geotechnical Investigation Portfolio Requirements Saic Submit a portfolio that gives us a sense of you, your interests, and your willingness to experiment, explore, and think beyond. portfolio requirements can vary by department, and we encourage students to meet with us to learn more, or see our. applying to art school usually means providing images of your artwork in the. Depending on the degree. Portfolio Requirements Saic.
From www.scribd.com
Saudi Aramco Inspection Checklist Geotechnical Investigation Portfolio Requirements Saic applying to art school usually means providing images of your artwork in the. We will review specific requirements for saic's 5. applying to saic: portfolio requirements can vary by department, and we encourage students to meet with us to learn more, or see our. Submit a portfolio that gives us a sense of you, your interests, and. Portfolio Requirements Saic.
From artistsdeservemoney.com
How To Build an Art Portfolio for College in 8 Easy Steps Portfolio Requirements Saic Depending on the degree you are applying to — bfa in studio, bfa with an emphasis in. applying to saic: Submit a portfolio that gives us a sense of you, your interests, and your willingness to experiment, explore, and think beyond. for more information regarding portfolio requirements, please visit our portfolio guide. portfolio requirements can vary by. Portfolio Requirements Saic.
From www.scribd.com
AssessmentGuidelines Portfolios PDF Portfolio Requirements Saic We will review specific requirements for saic's 5. Submit a portfolio that gives us a sense of you, your interests, and your willingness to experiment, explore, and think beyond. Depending on the degree you are applying to — bfa in studio, bfa with an emphasis in. applying to saic: for more information regarding portfolio requirements, please visit our. Portfolio Requirements Saic.
From studylib.net
Portfolio Requirements Checklist for Student Portfolio Requirements Saic portfolio requirements can vary by department, and we encourage students to meet with us to learn more, or see our. Submit a portfolio that gives us a sense of you, your interests, and your willingness to experiment, explore, and think beyond. Depending on the degree you are applying to — bfa in studio, bfa with an emphasis in. . Portfolio Requirements Saic.
From issuu.com
SAIC Portfolio Prep Guide 2020/21 by School of the Art Institute of Portfolio Requirements Saic applying to art school usually means providing images of your artwork in the. for more information regarding portfolio requirements, please visit our portfolio guide. Submit a portfolio that gives us a sense of you, your interests, and your willingness to experiment, explore, and think beyond. Depending on the degree you are applying to — bfa in studio, bfa. Portfolio Requirements Saic.
From exyeymwpk.blob.core.windows.net
Portfolio Requirements Pratt at Raymond Baty blog Portfolio Requirements Saic Submit a portfolio that gives us a sense of you, your interests, and your willingness to experiment, explore, and think beyond. join us to learn how to research and follow portfolio requirements. We will review specific requirements for saic's 5. Depending on the degree you are applying to — bfa in studio, bfa with an emphasis in. for. Portfolio Requirements Saic.
From www.youtube.com
PI ART CENTER PORTFOLIO REVIEW SAIC 2021 YouTube Portfolio Requirements Saic join us to learn how to research and follow portfolio requirements. Depending on the degree you are applying to — bfa in studio, bfa with an emphasis in. We will review specific requirements for saic's 5. applying to art school usually means providing images of your artwork in the. for more information regarding portfolio requirements, please visit. Portfolio Requirements Saic.
From www.slideserve.com
PPT Physics and Astronomy Writing PowerPoint Presentation, free Portfolio Requirements Saic applying to saic: join us to learn how to research and follow portfolio requirements. for more information regarding portfolio requirements, please visit our portfolio guide. Depending on the degree you are applying to — bfa in studio, bfa with an emphasis in. We will review specific requirements for saic's 5. applying to art school usually means. Portfolio Requirements Saic.
From www.studypool.com
SOLUTION Requirements management class lectures_242117293SPEEDEvents Portfolio Requirements Saic applying to saic: Submit a portfolio that gives us a sense of you, your interests, and your willingness to experiment, explore, and think beyond. applying to art school usually means providing images of your artwork in the. We will review specific requirements for saic's 5. join us to learn how to research and follow portfolio requirements. . Portfolio Requirements Saic.
From www.slideserve.com
PPT NC Read to Achieve PowerPoint Presentation, free download ID Portfolio Requirements Saic join us to learn how to research and follow portfolio requirements. applying to art school usually means providing images of your artwork in the. portfolio requirements can vary by department, and we encourage students to meet with us to learn more, or see our. We will review specific requirements for saic's 5. applying to saic: Submit. Portfolio Requirements Saic.
From www.slideserve.com
PPT DEA Qualification Assessment PowerPoint Presentation, free Portfolio Requirements Saic join us to learn how to research and follow portfolio requirements. for more information regarding portfolio requirements, please visit our portfolio guide. applying to art school usually means providing images of your artwork in the. portfolio requirements can vary by department, and we encourage students to meet with us to learn more, or see our. We. Portfolio Requirements Saic.
From www.youtube.com
My Art Portfolio (Accepted at Pratt, Parsons, MICA, SAIC, Art Center Portfolio Requirements Saic portfolio requirements can vary by department, and we encourage students to meet with us to learn more, or see our. applying to art school usually means providing images of your artwork in the. We will review specific requirements for saic's 5. applying to saic: Submit a portfolio that gives us a sense of you, your interests, and. Portfolio Requirements Saic.
From bodesewasude.github.io
Portfolio Fashion Design Sketch Set Fashion Design Portfolio Portfolio Requirements Saic join us to learn how to research and follow portfolio requirements. portfolio requirements can vary by department, and we encourage students to meet with us to learn more, or see our. for more information regarding portfolio requirements, please visit our portfolio guide. We will review specific requirements for saic's 5. applying to saic: applying to. Portfolio Requirements Saic.
From slideplayer.com
Structured Products in Pension Plans and Estate Planning ppt download Portfolio Requirements Saic join us to learn how to research and follow portfolio requirements. applying to art school usually means providing images of your artwork in the. Depending on the degree you are applying to — bfa in studio, bfa with an emphasis in. for more information regarding portfolio requirements, please visit our portfolio guide. Submit a portfolio that gives. Portfolio Requirements Saic.
From studylib.net
Senior Portfolio Requirements Portfolio Requirements Saic We will review specific requirements for saic's 5. for more information regarding portfolio requirements, please visit our portfolio guide. join us to learn how to research and follow portfolio requirements. Depending on the degree you are applying to — bfa in studio, bfa with an emphasis in. portfolio requirements can vary by department, and we encourage students. Portfolio Requirements Saic.
From www.slideserve.com
PPT MSU eportfolio beta test project PowerPoint Presentation, free Portfolio Requirements Saic We will review specific requirements for saic's 5. for more information regarding portfolio requirements, please visit our portfolio guide. applying to art school usually means providing images of your artwork in the. applying to saic: Depending on the degree you are applying to — bfa in studio, bfa with an emphasis in. portfolio requirements can vary. Portfolio Requirements Saic.
From www.slideserve.com
PPT Internship II Meeting PowerPoint Presentation, free download ID Portfolio Requirements Saic for more information regarding portfolio requirements, please visit our portfolio guide. Submit a portfolio that gives us a sense of you, your interests, and your willingness to experiment, explore, and think beyond. join us to learn how to research and follow portfolio requirements. Depending on the degree you are applying to — bfa in studio, bfa with an. Portfolio Requirements Saic.
From www.vrogue.co
Checklist Service Portfolio It Process Wiki vrogue.co Portfolio Requirements Saic applying to saic: join us to learn how to research and follow portfolio requirements. portfolio requirements can vary by department, and we encourage students to meet with us to learn more, or see our. Depending on the degree you are applying to — bfa in studio, bfa with an emphasis in. We will review specific requirements for. Portfolio Requirements Saic.
From www.slideshare.net
MUN for Classrooms Portfolio requirements Portfolio Requirements Saic join us to learn how to research and follow portfolio requirements. for more information regarding portfolio requirements, please visit our portfolio guide. Depending on the degree you are applying to — bfa in studio, bfa with an emphasis in. portfolio requirements can vary by department, and we encourage students to meet with us to learn more, or. Portfolio Requirements Saic.
From www.pinterest.com
Portfolio Prep Portfolio Review, Online Portfolio, Campus Events, Tech Portfolio Requirements Saic Submit a portfolio that gives us a sense of you, your interests, and your willingness to experiment, explore, and think beyond. applying to art school usually means providing images of your artwork in the. portfolio requirements can vary by department, and we encourage students to meet with us to learn more, or see our. We will review specific. Portfolio Requirements Saic.
From www.scribd.com
Portfolio Requirements PDF Portfolio Requirements Saic Submit a portfolio that gives us a sense of you, your interests, and your willingness to experiment, explore, and think beyond. portfolio requirements can vary by department, and we encourage students to meet with us to learn more, or see our. for more information regarding portfolio requirements, please visit our portfolio guide. Depending on the degree you are. Portfolio Requirements Saic.
From studylib.net
PORTFOLIO GUIDELINES Portfolio Requirements Saic Depending on the degree you are applying to — bfa in studio, bfa with an emphasis in. join us to learn how to research and follow portfolio requirements. Submit a portfolio that gives us a sense of you, your interests, and your willingness to experiment, explore, and think beyond. We will review specific requirements for saic's 5. for. Portfolio Requirements Saic.
From www.researchgate.net
Guidelines for implementing portfoliobased learning and assessment in Portfolio Requirements Saic applying to saic: applying to art school usually means providing images of your artwork in the. join us to learn how to research and follow portfolio requirements. We will review specific requirements for saic's 5. Depending on the degree you are applying to — bfa in studio, bfa with an emphasis in. Submit a portfolio that gives. Portfolio Requirements Saic.
From www.kubera.com
A Modern Guide to Portfolio Diversification Portfolio Requirements Saic join us to learn how to research and follow portfolio requirements. Depending on the degree you are applying to — bfa in studio, bfa with an emphasis in. portfolio requirements can vary by department, and we encourage students to meet with us to learn more, or see our. Submit a portfolio that gives us a sense of you,. Portfolio Requirements Saic.
From www.picpedia.org
Portfolios Free of Charge Creative Commons Keyboard image Portfolio Requirements Saic for more information regarding portfolio requirements, please visit our portfolio guide. join us to learn how to research and follow portfolio requirements. Depending on the degree you are applying to — bfa in studio, bfa with an emphasis in. Submit a portfolio that gives us a sense of you, your interests, and your willingness to experiment, explore, and. Portfolio Requirements Saic.
From www.lynalden.com
3 Simple Diversified Investment Portfolios for LongTerm Growth Lyn Alden Portfolio Requirements Saic Depending on the degree you are applying to — bfa in studio, bfa with an emphasis in. portfolio requirements can vary by department, and we encourage students to meet with us to learn more, or see our. applying to saic: for more information regarding portfolio requirements, please visit our portfolio guide. We will review specific requirements for. Portfolio Requirements Saic.
From emmanuelnwogu.github.io
GP ST1 Induction Portfolio Requirements Saic for more information regarding portfolio requirements, please visit our portfolio guide. We will review specific requirements for saic's 5. applying to art school usually means providing images of your artwork in the. applying to saic: Submit a portfolio that gives us a sense of you, your interests, and your willingness to experiment, explore, and think beyond. . Portfolio Requirements Saic.
From www.semanticscholar.org
Figure 1 from SAIC chart management system Semantic Scholar Portfolio Requirements Saic Submit a portfolio that gives us a sense of you, your interests, and your willingness to experiment, explore, and think beyond. Depending on the degree you are applying to — bfa in studio, bfa with an emphasis in. We will review specific requirements for saic's 5. applying to art school usually means providing images of your artwork in the.. Portfolio Requirements Saic.