Ashland Zoning Board . View current agendas and minutes for all boards and commissions. 233 tennessee waltz parkway, suite 103. For the purpose of this. Po box 36 | ashland city, tn 37015 | (615) 792‑4211. 21 rows chapter 18.2.1, zoning regulations and general provisions. 18.2.4 general regulations for base zones. Board of zoning and appeals. These zones, as established, are shown on the zoning map of the town of ashland, which is hereby declared to be part of this ordinance. 18.2.5 standards for residential zones. Previous years' agendas and minutes can be found in the document center. 18.2.1.020 zoning map and classification of zones. The planning board of ashland was established by warrant article at the annual town meeting of march 1950.
from www.ashlandmass.com
18.2.4 general regulations for base zones. The planning board of ashland was established by warrant article at the annual town meeting of march 1950. 21 rows chapter 18.2.1, zoning regulations and general provisions. Previous years' agendas and minutes can be found in the document center. View current agendas and minutes for all boards and commissions. 18.2.5 standards for residential zones. For the purpose of this. 18.2.1.020 zoning map and classification of zones. Po box 36 | ashland city, tn 37015 | (615) 792‑4211. 233 tennessee waltz parkway, suite 103.
229 East Union Street Ashland, MA
Ashland Zoning Board Board of zoning and appeals. Previous years' agendas and minutes can be found in the document center. Po box 36 | ashland city, tn 37015 | (615) 792‑4211. 18.2.5 standards for residential zones. View current agendas and minutes for all boards and commissions. The planning board of ashland was established by warrant article at the annual town meeting of march 1950. These zones, as established, are shown on the zoning map of the town of ashland, which is hereby declared to be part of this ordinance. Board of zoning and appeals. 18.2.4 general regulations for base zones. 18.2.1.020 zoning map and classification of zones. For the purpose of this. 233 tennessee waltz parkway, suite 103. 21 rows chapter 18.2.1, zoning regulations and general provisions.
From www.youtube.com
Ashland Zoning Board 1/14/21 YouTube Ashland Zoning Board 233 tennessee waltz parkway, suite 103. The planning board of ashland was established by warrant article at the annual town meeting of march 1950. View current agendas and minutes for all boards and commissions. These zones, as established, are shown on the zoning map of the town of ashland, which is hereby declared to be part of this ordinance. 21. Ashland Zoning Board.
From www.ashlandmass.com
Inclusionary Zoning Ashland, MA Ashland Zoning Board The planning board of ashland was established by warrant article at the annual town meeting of march 1950. 18.2.1.020 zoning map and classification of zones. For the purpose of this. Previous years' agendas and minutes can be found in the document center. Po box 36 | ashland city, tn 37015 | (615) 792‑4211. 18.2.5 standards for residential zones. These zones,. Ashland Zoning Board.
From www.colerain.org
Comprehensive Zoning Resolution Update Colerain Township, OH Ashland Zoning Board 18.2.4 general regulations for base zones. The planning board of ashland was established by warrant article at the annual town meeting of march 1950. For the purpose of this. Previous years' agendas and minutes can be found in the document center. Board of zoning and appeals. Po box 36 | ashland city, tn 37015 | (615) 792‑4211. View current agendas. Ashland Zoning Board.
From www.dailyindependent.com
Ashland zoning board denies detox center request News Ashland Zoning Board For the purpose of this. 18.2.4 general regulations for base zones. Po box 36 | ashland city, tn 37015 | (615) 792‑4211. 21 rows chapter 18.2.1, zoning regulations and general provisions. Previous years' agendas and minutes can be found in the document center. 233 tennessee waltz parkway, suite 103. 18.2.1.020 zoning map and classification of zones. Board of zoning and. Ashland Zoning Board.
From www.youtube.com
Ashland Housing Production Plan (HPP) & Inclusionary Zoning Public Ashland Zoning Board Previous years' agendas and minutes can be found in the document center. The planning board of ashland was established by warrant article at the annual town meeting of march 1950. Board of zoning and appeals. Po box 36 | ashland city, tn 37015 | (615) 792‑4211. 233 tennessee waltz parkway, suite 103. 18.2.5 standards for residential zones. For the purpose. Ashland Zoning Board.
From www.ashlandmass.com
9 Taggart Ct. Ashland, MA Ashland Zoning Board 18.2.1.020 zoning map and classification of zones. 21 rows chapter 18.2.1, zoning regulations and general provisions. Previous years' agendas and minutes can be found in the document center. View current agendas and minutes for all boards and commissions. Po box 36 | ashland city, tn 37015 | (615) 792‑4211. For the purpose of this. 233 tennessee waltz parkway, suite 103.. Ashland Zoning Board.
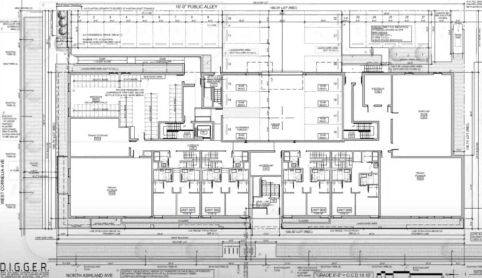
From chicagoyimby.com
Zoning Approves Residential Development At 605 N Ashland Avenue In West Ashland Zoning Board Board of zoning and appeals. 18.2.4 general regulations for base zones. View current agendas and minutes for all boards and commissions. For the purpose of this. These zones, as established, are shown on the zoning map of the town of ashland, which is hereby declared to be part of this ordinance. 21 rows chapter 18.2.1, zoning regulations and general provisions.. Ashland Zoning Board.
From www.childforallseasons.com
City Of Ashland Wi Zoning Map Map Resume Examples 9x8rRnw8dR Ashland Zoning Board View current agendas and minutes for all boards and commissions. For the purpose of this. Po box 36 | ashland city, tn 37015 | (615) 792‑4211. These zones, as established, are shown on the zoning map of the town of ashland, which is hereby declared to be part of this ordinance. 233 tennessee waltz parkway, suite 103. 18.2.1.020 zoning map. Ashland Zoning Board.
From sctv-17.com
Zoning Board 7/6/2023 65500 PM Ashland Zoning Board 21 rows chapter 18.2.1, zoning regulations and general provisions. 18.2.1.020 zoning map and classification of zones. These zones, as established, are shown on the zoning map of the town of ashland, which is hereby declared to be part of this ordinance. For the purpose of this. Previous years' agendas and minutes can be found in the document center. 18.2.5 standards. Ashland Zoning Board.
From ashland.municipal.codes
18.3.2.070 Open Space Zone Ashland Land Use Ordinance Ashland Zoning Board The planning board of ashland was established by warrant article at the annual town meeting of march 1950. 18.2.4 general regulations for base zones. 233 tennessee waltz parkway, suite 103. 18.2.5 standards for residential zones. For the purpose of this. Po box 36 | ashland city, tn 37015 | (615) 792‑4211. 18.2.1.020 zoning map and classification of zones. Previous years'. Ashland Zoning Board.
From www.town.ashland.va.us
Ashland, VA Official site Zoning Ashland Zoning Board 18.2.5 standards for residential zones. These zones, as established, are shown on the zoning map of the town of ashland, which is hereby declared to be part of this ordinance. For the purpose of this. 18.2.1.020 zoning map and classification of zones. 21 rows chapter 18.2.1, zoning regulations and general provisions. 233 tennessee waltz parkway, suite 103. Previous years' agendas. Ashland Zoning Board.
From q961.com
New Zoning Rules Help Businesses Locate in Aroostook County Ashland Zoning Board 21 rows chapter 18.2.1, zoning regulations and general provisions. 18.2.1.020 zoning map and classification of zones. The planning board of ashland was established by warrant article at the annual town meeting of march 1950. Previous years' agendas and minutes can be found in the document center. Po box 36 | ashland city, tn 37015 | (615) 792‑4211. 18.2.4 general regulations. Ashland Zoning Board.
From www.klcc.org
City of Ashland task force focuses on emergency evacuation strategy Ashland Zoning Board 18.2.1.020 zoning map and classification of zones. Previous years' agendas and minutes can be found in the document center. Po box 36 | ashland city, tn 37015 | (615) 792‑4211. Board of zoning and appeals. 233 tennessee waltz parkway, suite 103. View current agendas and minutes for all boards and commissions. 21 rows chapter 18.2.1, zoning regulations and general provisions.. Ashland Zoning Board.
From www.dailyindependent.com
Ashland zoning board denies detox center request News Ashland Zoning Board Previous years' agendas and minutes can be found in the document center. 21 rows chapter 18.2.1, zoning regulations and general provisions. Board of zoning and appeals. 18.2.4 general regulations for base zones. Po box 36 | ashland city, tn 37015 | (615) 792‑4211. 18.2.5 standards for residential zones. These zones, as established, are shown on the zoning map of the. Ashland Zoning Board.
From studylib.net
ZONING BOARD OF ADJUSTMENT Loca on About the Program Ashland Zoning Board 18.2.1.020 zoning map and classification of zones. 233 tennessee waltz parkway, suite 103. Po box 36 | ashland city, tn 37015 | (615) 792‑4211. The planning board of ashland was established by warrant article at the annual town meeting of march 1950. View current agendas and minutes for all boards and commissions. 18.2.5 standards for residential zones. Board of zoning. Ashland Zoning Board.
From www.westandersonville.com
Zoning Change Request 5400 N Ashland — West Andersonville Neighbors Ashland Zoning Board For the purpose of this. Board of zoning and appeals. 233 tennessee waltz parkway, suite 103. 18.2.5 standards for residential zones. 21 rows chapter 18.2.1, zoning regulations and general provisions. 18.2.4 general regulations for base zones. View current agendas and minutes for all boards and commissions. Previous years' agendas and minutes can be found in the document center. The planning. Ashland Zoning Board.
From www.youtube.com
Ashland Zoning Board 442017 YouTube Ashland Zoning Board 18.2.5 standards for residential zones. 18.2.1.020 zoning map and classification of zones. 233 tennessee waltz parkway, suite 103. The planning board of ashland was established by warrant article at the annual town meeting of march 1950. Po box 36 | ashland city, tn 37015 | (615) 792‑4211. View current agendas and minutes for all boards and commissions. 21 rows chapter. Ashland Zoning Board.
From ashland.municipal.codes
18.3.2.070 Open Space Zone Ashland Land Use Ordinance Ashland Zoning Board 18.2.1.020 zoning map and classification of zones. 21 rows chapter 18.2.1, zoning regulations and general provisions. Board of zoning and appeals. 18.2.4 general regulations for base zones. These zones, as established, are shown on the zoning map of the town of ashland, which is hereby declared to be part of this ordinance. 233 tennessee waltz parkway, suite 103. 18.2.5 standards. Ashland Zoning Board.
From www.uwsp.edu
University of WisconsinStevens Point Ashland Zoning Board View current agendas and minutes for all boards and commissions. 18.2.1.020 zoning map and classification of zones. Po box 36 | ashland city, tn 37015 | (615) 792‑4211. 21 rows chapter 18.2.1, zoning regulations and general provisions. Previous years' agendas and minutes can be found in the document center. The planning board of ashland was established by warrant article at. Ashland Zoning Board.
From chicagoyimby.com
Zoning Board of Appeals Passes Variances for 3449 N Ashland Avenue in Ashland Zoning Board 18.2.1.020 zoning map and classification of zones. The planning board of ashland was established by warrant article at the annual town meeting of march 1950. 21 rows chapter 18.2.1, zoning regulations and general provisions. 18.2.5 standards for residential zones. 18.2.4 general regulations for base zones. View current agendas and minutes for all boards and commissions. 233 tennessee waltz parkway, suite. Ashland Zoning Board.
From chicagoyimby.com
Zoning Board of Appeals Passes Variances for 3449 N Ashland Avenue in Ashland Zoning Board Po box 36 | ashland city, tn 37015 | (615) 792‑4211. Board of zoning and appeals. 18.2.1.020 zoning map and classification of zones. Previous years' agendas and minutes can be found in the document center. 21 rows chapter 18.2.1, zoning regulations and general provisions. 18.2.4 general regulations for base zones. 233 tennessee waltz parkway, suite 103. For the purpose of. Ashland Zoning Board.
From claudieogene.pages.dev
Ashland Ma Zoning Map Brandy Tabbitha Ashland Zoning Board 21 rows chapter 18.2.1, zoning regulations and general provisions. 18.2.4 general regulations for base zones. Board of zoning and appeals. For the purpose of this. These zones, as established, are shown on the zoning map of the town of ashland, which is hereby declared to be part of this ordinance. Previous years' agendas and minutes can be found in the. Ashland Zoning Board.
From www.boardmantwp.com
Zoning Resolution Boardman Planning and Zoning Ashland Zoning Board For the purpose of this. Previous years' agendas and minutes can be found in the document center. 233 tennessee waltz parkway, suite 103. 21 rows chapter 18.2.1, zoning regulations and general provisions. Board of zoning and appeals. 18.2.4 general regulations for base zones. View current agendas and minutes for all boards and commissions. These zones, as established, are shown on. Ashland Zoning Board.
From www.miltontwpohio.org
MIlton Township Zoning Milton Township, Ashland County, Ohio Ashland Zoning Board 18.2.1.020 zoning map and classification of zones. 233 tennessee waltz parkway, suite 103. Po box 36 | ashland city, tn 37015 | (615) 792‑4211. 21 rows chapter 18.2.1, zoning regulations and general provisions. 18.2.4 general regulations for base zones. View current agendas and minutes for all boards and commissions. Previous years' agendas and minutes can be found in the document. Ashland Zoning Board.
From www.ashlandmass.com
229 East Union Street Ashland, MA Ashland Zoning Board 233 tennessee waltz parkway, suite 103. 18.2.1.020 zoning map and classification of zones. For the purpose of this. 18.2.5 standards for residential zones. 21 rows chapter 18.2.1, zoning regulations and general provisions. Board of zoning and appeals. These zones, as established, are shown on the zoning map of the town of ashland, which is hereby declared to be part of. Ashland Zoning Board.
From ashland.municipal.codes
18.3.2.070 Open Space Zone Ashland Land Use Ordinance Ashland Zoning Board The planning board of ashland was established by warrant article at the annual town meeting of march 1950. 233 tennessee waltz parkway, suite 103. 18.2.4 general regulations for base zones. Board of zoning and appeals. Previous years' agendas and minutes can be found in the document center. For the purpose of this. 18.2.1.020 zoning map and classification of zones. Po. Ashland Zoning Board.
From www.enterprisepub.com
City amends zoning regs to include boarding houses Washington County Ashland Zoning Board Previous years' agendas and minutes can be found in the document center. 21 rows chapter 18.2.1, zoning regulations and general provisions. Board of zoning and appeals. For the purpose of this. The planning board of ashland was established by warrant article at the annual town meeting of march 1950. 18.2.5 standards for residential zones. 18.2.4 general regulations for base zones.. Ashland Zoning Board.
From ashland.municipal.codes
18.3.4.080 Review and Approval Procedure Ashland Land Use Ordinance Ashland Zoning Board 233 tennessee waltz parkway, suite 103. These zones, as established, are shown on the zoning map of the town of ashland, which is hereby declared to be part of this ordinance. For the purpose of this. 18.2.4 general regulations for base zones. 21 rows chapter 18.2.1, zoning regulations and general provisions. 18.2.1.020 zoning map and classification of zones. View current. Ashland Zoning Board.
From ashland.municipal.codes
18.3.2.070 Open Space Zone Ashland Land Use Ordinance Ashland Zoning Board Previous years' agendas and minutes can be found in the document center. 18.2.1.020 zoning map and classification of zones. 18.2.4 general regulations for base zones. For the purpose of this. 233 tennessee waltz parkway, suite 103. Board of zoning and appeals. 18.2.5 standards for residential zones. View current agendas and minutes for all boards and commissions. These zones, as established,. Ashland Zoning Board.
From ashlandva.gov
Zoning Ashland, VA Official site Ashland Zoning Board The planning board of ashland was established by warrant article at the annual town meeting of march 1950. 18.2.4 general regulations for base zones. For the purpose of this. 18.2.5 standards for residential zones. 21 rows chapter 18.2.1, zoning regulations and general provisions. Board of zoning and appeals. Previous years' agendas and minutes can be found in the document center.. Ashland Zoning Board.
From chicagoyimby.com
Zoning Board of Appeals Passes Variances for 3449 N Ashland Avenue in Ashland Zoning Board These zones, as established, are shown on the zoning map of the town of ashland, which is hereby declared to be part of this ordinance. 18.2.5 standards for residential zones. Previous years' agendas and minutes can be found in the document center. The planning board of ashland was established by warrant article at the annual town meeting of march 1950.. Ashland Zoning Board.
From ashland.municipal.codes
18.3.2.070 Open Space Zone Ashland Land Use Ordinance Ashland Zoning Board View current agendas and minutes for all boards and commissions. These zones, as established, are shown on the zoning map of the town of ashland, which is hereby declared to be part of this ordinance. The planning board of ashland was established by warrant article at the annual town meeting of march 1950. Po box 36 | ashland city, tn. Ashland Zoning Board.
From ashland.municipal.codes
18.3.2.070 Open Space Zone Ashland Land Use Ordinance Ashland Zoning Board 18.2.4 general regulations for base zones. These zones, as established, are shown on the zoning map of the town of ashland, which is hereby declared to be part of this ordinance. Po box 36 | ashland city, tn 37015 | (615) 792‑4211. 21 rows chapter 18.2.1, zoning regulations and general provisions. Previous years' agendas and minutes can be found in. Ashland Zoning Board.
From town.ashland.va.us
Zoning Ashland, VA Official site Ashland Zoning Board The planning board of ashland was established by warrant article at the annual town meeting of march 1950. 18.2.1.020 zoning map and classification of zones. 18.2.5 standards for residential zones. Previous years' agendas and minutes can be found in the document center. Board of zoning and appeals. These zones, as established, are shown on the zoning map of the town. Ashland Zoning Board.
From ashlandcountywi.gov
Interactive Maps Ashland County, WI Ashland Zoning Board The planning board of ashland was established by warrant article at the annual town meeting of march 1950. For the purpose of this. 18.2.1.020 zoning map and classification of zones. 18.2.4 general regulations for base zones. View current agendas and minutes for all boards and commissions. Board of zoning and appeals. Previous years' agendas and minutes can be found in. Ashland Zoning Board.