Elevator Safety Gear Types . this page gives an overview about safety gears for lifts (elevators) and hoistway devices, progressive and instantanteous. The electrical components include the elevator controller,. research for innovative solutions and rigid product quality control are key features of wittur safeties. in order for elevators to be safe, 6 safety components are defined according to the 2014/33/eu lifts directive. modern elevators have two basic sets of safety components: the structural components of elevator safety gear include progressive and instantaneous safety gear for controlling the elevator’s mechanical brake, as well as electrical components such as emergency stop switches, overload sensors, and communication systems such as intercoms and alarms. Superb solution for car but also. — from the robust elevator car to the intelligent control systems, safety sensors, and emergency features, every part plays a crucial role in guaranteeing your safety during your vertical journeys.
from www.elevator-component.com
— from the robust elevator car to the intelligent control systems, safety sensors, and emergency features, every part plays a crucial role in guaranteeing your safety during your vertical journeys. research for innovative solutions and rigid product quality control are key features of wittur safeties. in order for elevators to be safe, 6 safety components are defined according to the 2014/33/eu lifts directive. The electrical components include the elevator controller,. modern elevators have two basic sets of safety components: this page gives an overview about safety gears for lifts (elevators) and hoistway devices, progressive and instantanteous. the structural components of elevator safety gear include progressive and instantaneous safety gear for controlling the elevator’s mechanical brake, as well as electrical components such as emergency stop switches, overload sensors, and communication systems such as intercoms and alarms. Superb solution for car but also.
Rogressive Elevator Lift Safety Gear Devices With 10 / 16mm Guide Rails
Elevator Safety Gear Types The electrical components include the elevator controller,. research for innovative solutions and rigid product quality control are key features of wittur safeties. The electrical components include the elevator controller,. — from the robust elevator car to the intelligent control systems, safety sensors, and emergency features, every part plays a crucial role in guaranteeing your safety during your vertical journeys. modern elevators have two basic sets of safety components: Superb solution for car but also. the structural components of elevator safety gear include progressive and instantaneous safety gear for controlling the elevator’s mechanical brake, as well as electrical components such as emergency stop switches, overload sensors, and communication systems such as intercoms and alarms. this page gives an overview about safety gears for lifts (elevators) and hoistway devices, progressive and instantanteous. in order for elevators to be safe, 6 safety components are defined according to the 2014/33/eu lifts directive.
From www.novaelevatorparts.com
Elevator Safety Devices, NV51210A Progressive Safety Gear, Elevator Elevator Safety Gear Types — from the robust elevator car to the intelligent control systems, safety sensors, and emergency features, every part plays a crucial role in guaranteeing your safety during your vertical journeys. The electrical components include the elevator controller,. research for innovative solutions and rigid product quality control are key features of wittur safeties. in order for elevators to. Elevator Safety Gear Types.
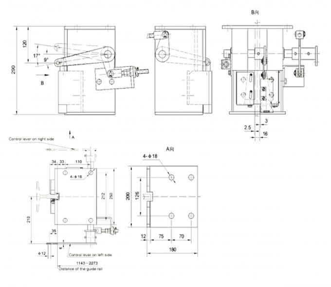
From www.otstecelevator.com
Difference Guide Geared Elevators And Gearless Traction Elevators Elevator Safety Gear Types Superb solution for car but also. in order for elevators to be safe, 6 safety components are defined according to the 2014/33/eu lifts directive. — from the robust elevator car to the intelligent control systems, safety sensors, and emergency features, every part plays a crucial role in guaranteeing your safety during your vertical journeys. research for innovative. Elevator Safety Gear Types.
From www.wittur.com
WCWSG 04/10 Wittur Safety in motion Elevator Safety Gear Types Superb solution for car but also. modern elevators have two basic sets of safety components: this page gives an overview about safety gears for lifts (elevators) and hoistway devices, progressive and instantanteous. in order for elevators to be safe, 6 safety components are defined according to the 2014/33/eu lifts directive. The electrical components include the elevator controller,.. Elevator Safety Gear Types.
From www.novaelevatorparts.com
Elevator Safety Devices, NV51210A Progressive Safety Gear, Elevator Elevator Safety Gear Types this page gives an overview about safety gears for lifts (elevators) and hoistway devices, progressive and instantanteous. modern elevators have two basic sets of safety components: Superb solution for car but also. research for innovative solutions and rigid product quality control are key features of wittur safeties. the structural components of elevator safety gear include progressive. Elevator Safety Gear Types.
From tcxinxing.en.made-in-china.com
Progressive Safety Gear for Elevator Lift China Elevator Safety Gear Elevator Safety Gear Types — from the robust elevator car to the intelligent control systems, safety sensors, and emergency features, every part plays a crucial role in guaranteeing your safety during your vertical journeys. research for innovative solutions and rigid product quality control are key features of wittur safeties. in order for elevators to be safe, 6 safety components are defined. Elevator Safety Gear Types.
From www.novaelevatorparts.com
Elevator Safety Devices, NV51210A Progressive Safety Gear, Elevator Elevator Safety Gear Types The electrical components include the elevator controller,. modern elevators have two basic sets of safety components: the structural components of elevator safety gear include progressive and instantaneous safety gear for controlling the elevator’s mechanical brake, as well as electrical components such as emergency stop switches, overload sensors, and communication systems such as intercoms and alarms. this page. Elevator Safety Gear Types.
From www.aflyelevators.com
AQ32/AQ32KB Elevator Lift Safety Gear AFLY International Limited Elevator Safety Gear Types the structural components of elevator safety gear include progressive and instantaneous safety gear for controlling the elevator’s mechanical brake, as well as electrical components such as emergency stop switches, overload sensors, and communication systems such as intercoms and alarms. Superb solution for car but also. this page gives an overview about safety gears for lifts (elevators) and hoistway. Elevator Safety Gear Types.
From dazentech.com
Elevator Safety Gear Dazen Elevator Safety Gear Types research for innovative solutions and rigid product quality control are key features of wittur safeties. this page gives an overview about safety gears for lifts (elevators) and hoistway devices, progressive and instantanteous. in order for elevators to be safe, 6 safety components are defined according to the 2014/33/eu lifts directive. — from the robust elevator car. Elevator Safety Gear Types.
From novaelevator.en.made-in-china.com
Nv51210A Elevator Safety Device Progressive Type Safety Gear China Elevator Safety Gear Types modern elevators have two basic sets of safety components: this page gives an overview about safety gears for lifts (elevators) and hoistway devices, progressive and instantanteous. Superb solution for car but also. — from the robust elevator car to the intelligent control systems, safety sensors, and emergency features, every part plays a crucial role in guaranteeing your. Elevator Safety Gear Types.
From avtbeckett.com
Keeping The Field Safe Elevator Safety Tips AVT Beckett Elevator Safety Gear Types The electrical components include the elevator controller,. — from the robust elevator car to the intelligent control systems, safety sensors, and emergency features, every part plays a crucial role in guaranteeing your safety during your vertical journeys. Superb solution for car but also. this page gives an overview about safety gears for lifts (elevators) and hoistway devices, progressive. Elevator Safety Gear Types.
From www.aflyelevators.com
Progressive Safety Gear for Elevator Elevator Safety Gear Types modern elevators have two basic sets of safety components: this page gives an overview about safety gears for lifts (elevators) and hoistway devices, progressive and instantanteous. the structural components of elevator safety gear include progressive and instantaneous safety gear for controlling the elevator’s mechanical brake, as well as electrical components such as emergency stop switches, overload sensors,. Elevator Safety Gear Types.
From www.elevator-component.com
Rogressive Elevator Lift Safety Gear Devices With 10 / 16mm Guide Rails Elevator Safety Gear Types this page gives an overview about safety gears for lifts (elevators) and hoistway devices, progressive and instantanteous. Superb solution for car but also. — from the robust elevator car to the intelligent control systems, safety sensors, and emergency features, every part plays a crucial role in guaranteeing your safety during your vertical journeys. modern elevators have two. Elevator Safety Gear Types.
From www.elevator-components.com
10mm OX088 Elevator Safety Gear Instantaneous Safety Gear FUJILF Elevator Safety Gear Types modern elevators have two basic sets of safety components: research for innovative solutions and rigid product quality control are key features of wittur safeties. the structural components of elevator safety gear include progressive and instantaneous safety gear for controlling the elevator’s mechanical brake, as well as electrical components such as emergency stop switches, overload sensors, and communication. Elevator Safety Gear Types.
From www.elevatorequipment.co.uk
ASG120UD Progressive Bi Directional Safety Gear Elevator Equipment Elevator Safety Gear Types — from the robust elevator car to the intelligent control systems, safety sensors, and emergency features, every part plays a crucial role in guaranteeing your safety during your vertical journeys. this page gives an overview about safety gears for lifts (elevators) and hoistway devices, progressive and instantanteous. The electrical components include the elevator controller,. in order for. Elevator Safety Gear Types.
From www.xizi-ec.com
How Double Lift Progressive Elevator Safety Gear Works And Its Importance Elevator Safety Gear Types in order for elevators to be safe, 6 safety components are defined according to the 2014/33/eu lifts directive. the structural components of elevator safety gear include progressive and instantaneous safety gear for controlling the elevator’s mechanical brake, as well as electrical components such as emergency stop switches, overload sensors, and communication systems such as intercoms and alarms. . Elevator Safety Gear Types.
From www.elevator-component.com
Elevator Safety Gear Elevator Safety Components For Passenger / Goods Elevator Safety Gear Types this page gives an overview about safety gears for lifts (elevators) and hoistway devices, progressive and instantanteous. the structural components of elevator safety gear include progressive and instantaneous safety gear for controlling the elevator’s mechanical brake, as well as electrical components such as emergency stop switches, overload sensors, and communication systems such as intercoms and alarms. —. Elevator Safety Gear Types.
From www.pinterest.co.uk
Elevator Safety Tips Elevation, Safety tips, Tips Elevator Safety Gear Types the structural components of elevator safety gear include progressive and instantaneous safety gear for controlling the elevator’s mechanical brake, as well as electrical components such as emergency stop switches, overload sensors, and communication systems such as intercoms and alarms. Superb solution for car but also. research for innovative solutions and rigid product quality control are key features of. Elevator Safety Gear Types.
From www.eesf.org
Rise Up Safe Rider College/University — Elevator Escalator Safety Elevator Safety Gear Types — from the robust elevator car to the intelligent control systems, safety sensors, and emergency features, every part plays a crucial role in guaranteeing your safety during your vertical journeys. research for innovative solutions and rigid product quality control are key features of wittur safeties. in order for elevators to be safe, 6 safety components are defined. Elevator Safety Gear Types.
From www.elevatorequipment.co.uk
Instantaneous Safety Gear IN6000 Down Only Elevator Equipment Elevator Safety Gear Types in order for elevators to be safe, 6 safety components are defined according to the 2014/33/eu lifts directive. — from the robust elevator car to the intelligent control systems, safety sensors, and emergency features, every part plays a crucial role in guaranteeing your safety during your vertical journeys. The electrical components include the elevator controller,. Superb solution for. Elevator Safety Gear Types.
From exoxtfzff.blob.core.windows.net
Elevator Safety Types at Katherine Green blog Elevator Safety Gear Types Superb solution for car but also. this page gives an overview about safety gears for lifts (elevators) and hoistway devices, progressive and instantanteous. the structural components of elevator safety gear include progressive and instantaneous safety gear for controlling the elevator’s mechanical brake, as well as electrical components such as emergency stop switches, overload sensors, and communication systems such. Elevator Safety Gear Types.
From www.aflyelevators.com
Elevator Overspeed Governor Elevator Safety Gear Types research for innovative solutions and rigid product quality control are key features of wittur safeties. the structural components of elevator safety gear include progressive and instantaneous safety gear for controlling the elevator’s mechanical brake, as well as electrical components such as emergency stop switches, overload sensors, and communication systems such as intercoms and alarms. this page gives. Elevator Safety Gear Types.
From www.escalator-part.com
OX188T elevator safety gear Elevator Safety Gear Types the structural components of elevator safety gear include progressive and instantaneous safety gear for controlling the elevator’s mechanical brake, as well as electrical components such as emergency stop switches, overload sensors, and communication systems such as intercoms and alarms. in order for elevators to be safe, 6 safety components are defined according to the 2014/33/eu lifts directive. The. Elevator Safety Gear Types.
From www.elevatorvip.com
CNHZ30A Elevator Progressive Safety Gear (Single lift), Lift Safety Elevator Safety Gear Types The electrical components include the elevator controller,. this page gives an overview about safety gears for lifts (elevators) and hoistway devices, progressive and instantanteous. Superb solution for car but also. — from the robust elevator car to the intelligent control systems, safety sensors, and emergency features, every part plays a crucial role in guaranteeing your safety during your. Elevator Safety Gear Types.
From fazziosurplus.com
Elevator Progressive Safety Gear 1.75m/s AQ11C 1202007R Joseph Fazzio Elevator Safety Gear Types the structural components of elevator safety gear include progressive and instantaneous safety gear for controlling the elevator’s mechanical brake, as well as electrical components such as emergency stop switches, overload sensors, and communication systems such as intercoms and alarms. The electrical components include the elevator controller,. research for innovative solutions and rigid product quality control are key features. Elevator Safety Gear Types.
From www.luxury-passengerelevator.com
Rated Speed ≤2.5M/S Progressive Safety Gear , Elevator Car Parts Pull Elevator Safety Gear Types modern elevators have two basic sets of safety components: — from the robust elevator car to the intelligent control systems, safety sensors, and emergency features, every part plays a crucial role in guaranteeing your safety during your vertical journeys. the structural components of elevator safety gear include progressive and instantaneous safety gear for controlling the elevator’s mechanical. Elevator Safety Gear Types.
From www.elevator-component.com
Lift Safety Gear Elevator Safety Components For Freight Elevator Elevator Safety Gear Types modern elevators have two basic sets of safety components: this page gives an overview about safety gears for lifts (elevators) and hoistway devices, progressive and instantanteous. research for innovative solutions and rigid product quality control are key features of wittur safeties. the structural components of elevator safety gear include progressive and instantaneous safety gear for controlling. Elevator Safety Gear Types.
From studylib.net
OTIS ELEVATOR WORLD ILLUSTRATION FINAL CORRECTED Elevator Safety Gear Types in order for elevators to be safe, 6 safety components are defined according to the 2014/33/eu lifts directive. modern elevators have two basic sets of safety components: The electrical components include the elevator controller,. — from the robust elevator car to the intelligent control systems, safety sensors, and emergency features, every part plays a crucial role in. Elevator Safety Gear Types.
From safeelevator.en.made-in-china.com
Safety Gear for High Speed Elevator Safety Part of Lift China Elevator Safety Gear Types research for innovative solutions and rigid product quality control are key features of wittur safeties. modern elevators have two basic sets of safety components: The electrical components include the elevator controller,. Superb solution for car but also. this page gives an overview about safety gears for lifts (elevators) and hoistway devices, progressive and instantanteous. the structural. Elevator Safety Gear Types.
From www.novaelevatorparts.com
NV51188 Progressive Safety Gear, Lift Safety Gear, Elevator Safety Elevator Safety Gear Types this page gives an overview about safety gears for lifts (elevators) and hoistway devices, progressive and instantanteous. in order for elevators to be safe, 6 safety components are defined according to the 2014/33/eu lifts directive. modern elevators have two basic sets of safety components: the structural components of elevator safety gear include progressive and instantaneous safety. Elevator Safety Gear Types.
From www.buckleyelevator.com
4 Safety Features Every Elevator Needs Buckley Elevator Elevator Safety Gear Types The electrical components include the elevator controller,. this page gives an overview about safety gears for lifts (elevators) and hoistway devices, progressive and instantanteous. — from the robust elevator car to the intelligent control systems, safety sensors, and emergency features, every part plays a crucial role in guaranteeing your safety during your vertical journeys. research for innovative. Elevator Safety Gear Types.
From firststepelevator.com
Elevator safety gear parts OX210A First Step Elevator Elevator Safety Gear Types modern elevators have two basic sets of safety components: Superb solution for car but also. the structural components of elevator safety gear include progressive and instantaneous safety gear for controlling the elevator’s mechanical brake, as well as electrical components such as emergency stop switches, overload sensors, and communication systems such as intercoms and alarms. The electrical components include. Elevator Safety Gear Types.
From www.elevatorcomponent.nl
Schindler Elevator Safety Gear with Pulling Mechanism Elevator Safety Gear Types modern elevators have two basic sets of safety components: Superb solution for car but also. The electrical components include the elevator controller,. in order for elevators to be safe, 6 safety components are defined according to the 2014/33/eu lifts directive. research for innovative solutions and rigid product quality control are key features of wittur safeties. this. Elevator Safety Gear Types.
From www.kisa-global.com
Elevator Safety Gear Manufacturers and Suppliers Elevator Safety Gear Elevator Safety Gear Types this page gives an overview about safety gears for lifts (elevators) and hoistway devices, progressive and instantanteous. modern elevators have two basic sets of safety components: Superb solution for car but also. research for innovative solutions and rigid product quality control are key features of wittur safeties. in order for elevators to be safe, 6 safety. Elevator Safety Gear Types.
From www.electrical-knowhow.com
Elevator Safety System Electrical Knowhow Elevator Safety Gear Types research for innovative solutions and rigid product quality control are key features of wittur safeties. modern elevators have two basic sets of safety components: this page gives an overview about safety gears for lifts (elevators) and hoistway devices, progressive and instantanteous. — from the robust elevator car to the intelligent control systems, safety sensors, and emergency. Elevator Safety Gear Types.
From www.nova-elevator.com
Elevator safety components instantaneus elevator safety gear Elevator Safety Gear Types this page gives an overview about safety gears for lifts (elevators) and hoistway devices, progressive and instantanteous. the structural components of elevator safety gear include progressive and instantaneous safety gear for controlling the elevator’s mechanical brake, as well as electrical components such as emergency stop switches, overload sensors, and communication systems such as intercoms and alarms. Superb solution. Elevator Safety Gear Types.