What Is A Project Exemption Certificate . Form 5060 is a document that exempts tangible personal property from sales tax for construction projects in missouri. Become familiar with exemption certificates in the states where you conduct business and design an exemption certificate. A local government official shares her experience and research on how to use sales tax exemptions for construction projects in illinois and other states. Learn about different types of exemptions,.
from www.pdffiller.com
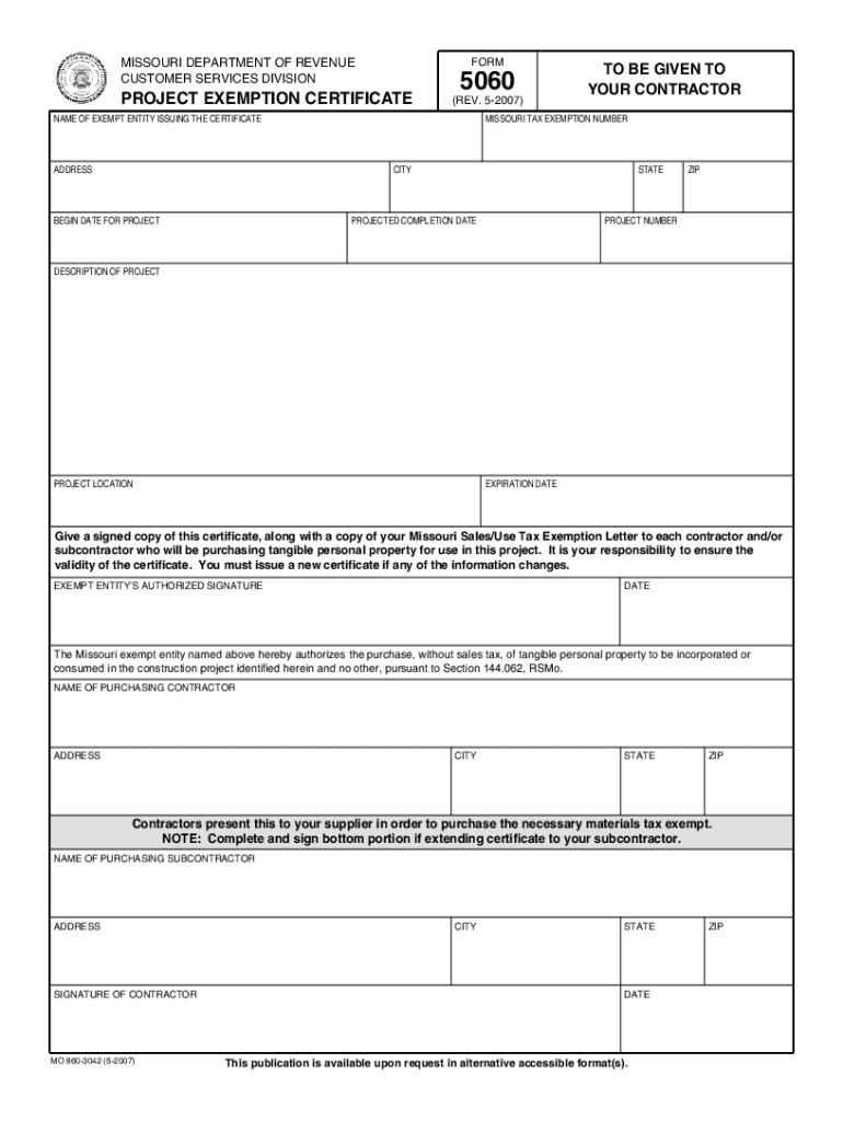
Form 5060 is a document that exempts tangible personal property from sales tax for construction projects in missouri. Become familiar with exemption certificates in the states where you conduct business and design an exemption certificate. A local government official shares her experience and research on how to use sales tax exemptions for construction projects in illinois and other states. Learn about different types of exemptions,.
Fillable Online Form 5060 Project Exemption Certificate MO.gov Fax Email Print pdfFiller
What Is A Project Exemption Certificate Learn about different types of exemptions,. A local government official shares her experience and research on how to use sales tax exemptions for construction projects in illinois and other states. Form 5060 is a document that exempts tangible personal property from sales tax for construction projects in missouri. Become familiar with exemption certificates in the states where you conduct business and design an exemption certificate. Learn about different types of exemptions,.
From tutore.org
Exemption Certificate Format Master of Documents What Is A Project Exemption Certificate Learn about different types of exemptions,. Become familiar with exemption certificates in the states where you conduct business and design an exemption certificate. A local government official shares her experience and research on how to use sales tax exemptions for construction projects in illinois and other states. Form 5060 is a document that exempts tangible personal property from sales tax. What Is A Project Exemption Certificate.
From www.formsbank.com
Fillable Form Pr76 Request For Project Exemption Certificate printable pdf download What Is A Project Exemption Certificate Learn about different types of exemptions,. Form 5060 is a document that exempts tangible personal property from sales tax for construction projects in missouri. A local government official shares her experience and research on how to use sales tax exemptions for construction projects in illinois and other states. Become familiar with exemption certificates in the states where you conduct business. What Is A Project Exemption Certificate.
From www.pdffiller.com
Fillable Online Form 5060 Project Exemption Certificate MO.gov Fax Email Print pdfFiller What Is A Project Exemption Certificate A local government official shares her experience and research on how to use sales tax exemptions for construction projects in illinois and other states. Form 5060 is a document that exempts tangible personal property from sales tax for construction projects in missouri. Become familiar with exemption certificates in the states where you conduct business and design an exemption certificate. Learn. What Is A Project Exemption Certificate.
From www.certificateof.com
?Free Sample Template of Certificate of Exemption? What Is A Project Exemption Certificate Become familiar with exemption certificates in the states where you conduct business and design an exemption certificate. Learn about different types of exemptions,. A local government official shares her experience and research on how to use sales tax exemptions for construction projects in illinois and other states. Form 5060 is a document that exempts tangible personal property from sales tax. What Is A Project Exemption Certificate.
From www.templateroller.com
Form PR76 Fill Out, Sign Online and Download Fillable PDF, Kansas Templateroller What Is A Project Exemption Certificate Learn about different types of exemptions,. Become familiar with exemption certificates in the states where you conduct business and design an exemption certificate. Form 5060 is a document that exempts tangible personal property from sales tax for construction projects in missouri. A local government official shares her experience and research on how to use sales tax exemptions for construction projects. What Is A Project Exemption Certificate.
From www.formsbank.com
Form S3c Sales Tax Exemption Certificate For Contractors Completing A Qualified Exempt What Is A Project Exemption Certificate A local government official shares her experience and research on how to use sales tax exemptions for construction projects in illinois and other states. Form 5060 is a document that exempts tangible personal property from sales tax for construction projects in missouri. Learn about different types of exemptions,. Become familiar with exemption certificates in the states where you conduct business. What Is A Project Exemption Certificate.
From dokumen.tips
(PDF) 5060 Project Exemption Certificate DOKUMEN.TIPS What Is A Project Exemption Certificate Become familiar with exemption certificates in the states where you conduct business and design an exemption certificate. Learn about different types of exemptions,. A local government official shares her experience and research on how to use sales tax exemptions for construction projects in illinois and other states. Form 5060 is a document that exempts tangible personal property from sales tax. What Is A Project Exemption Certificate.
From www.pinterest.com
12+ Certificate of Exemption Templates Free Printable Word & PDF Templates printable free What Is A Project Exemption Certificate Become familiar with exemption certificates in the states where you conduct business and design an exemption certificate. Learn about different types of exemptions,. Form 5060 is a document that exempts tangible personal property from sales tax for construction projects in missouri. A local government official shares her experience and research on how to use sales tax exemptions for construction projects. What Is A Project Exemption Certificate.
From www.templateroller.com
Form ST EXA2 Download Fillable PDF or Fill Online Application for Certificate of Exemption for What Is A Project Exemption Certificate A local government official shares her experience and research on how to use sales tax exemptions for construction projects in illinois and other states. Form 5060 is a document that exempts tangible personal property from sales tax for construction projects in missouri. Become familiar with exemption certificates in the states where you conduct business and design an exemption certificate. Learn. What Is A Project Exemption Certificate.
From www.templateroller.com
Form PR76 Fill Out, Sign Online and Download Fillable PDF, Kansas Templateroller What Is A Project Exemption Certificate Become familiar with exemption certificates in the states where you conduct business and design an exemption certificate. Learn about different types of exemptions,. Form 5060 is a document that exempts tangible personal property from sales tax for construction projects in missouri. A local government official shares her experience and research on how to use sales tax exemptions for construction projects. What Is A Project Exemption Certificate.
From www.signnow.com
Contractor Applicationfor Exemption Certificate Break Down How to Fill Out 20032024 Form Fill What Is A Project Exemption Certificate Learn about different types of exemptions,. Become familiar with exemption certificates in the states where you conduct business and design an exemption certificate. A local government official shares her experience and research on how to use sales tax exemptions for construction projects in illinois and other states. Form 5060 is a document that exempts tangible personal property from sales tax. What Is A Project Exemption Certificate.
From globaltopint.co.za
Exemption Certifications Global Top Int What Is A Project Exemption Certificate A local government official shares her experience and research on how to use sales tax exemptions for construction projects in illinois and other states. Form 5060 is a document that exempts tangible personal property from sales tax for construction projects in missouri. Become familiar with exemption certificates in the states where you conduct business and design an exemption certificate. Learn. What Is A Project Exemption Certificate.
From www.slideshare.net
Exemption Certificate Management What Is A Project Exemption Certificate Become familiar with exemption certificates in the states where you conduct business and design an exemption certificate. Learn about different types of exemptions,. A local government official shares her experience and research on how to use sales tax exemptions for construction projects in illinois and other states. Form 5060 is a document that exempts tangible personal property from sales tax. What Is A Project Exemption Certificate.
From www.youtube.com
How to Fill Out the SST and MTC Exemption Certificate Forms YouTube What Is A Project Exemption Certificate Become familiar with exemption certificates in the states where you conduct business and design an exemption certificate. A local government official shares her experience and research on how to use sales tax exemptions for construction projects in illinois and other states. Form 5060 is a document that exempts tangible personal property from sales tax for construction projects in missouri. Learn. What Is A Project Exemption Certificate.
From www.exemptax.com
Ultimate Guide to Exemption Certificate Management EXEMPTAX® Demystify Exemptions What Is A Project Exemption Certificate Become familiar with exemption certificates in the states where you conduct business and design an exemption certificate. Form 5060 is a document that exempts tangible personal property from sales tax for construction projects in missouri. A local government official shares her experience and research on how to use sales tax exemptions for construction projects in illinois and other states. Learn. What Is A Project Exemption Certificate.
From taxwalls.blogspot.com
How To Apply For A Sales Tax Exemption Certificate Tax Walls What Is A Project Exemption Certificate Become familiar with exemption certificates in the states where you conduct business and design an exemption certificate. Learn about different types of exemptions,. Form 5060 is a document that exempts tangible personal property from sales tax for construction projects in missouri. A local government official shares her experience and research on how to use sales tax exemptions for construction projects. What Is A Project Exemption Certificate.
From www.exemptform.com
California Tax Exempt Form 2020 Fill And Sign Printable Template What Is A Project Exemption Certificate Form 5060 is a document that exempts tangible personal property from sales tax for construction projects in missouri. A local government official shares her experience and research on how to use sales tax exemptions for construction projects in illinois and other states. Learn about different types of exemptions,. Become familiar with exemption certificates in the states where you conduct business. What Is A Project Exemption Certificate.
From www.templateroller.com
Form DR97 Fill Out, Sign Online and Download Printable PDF, Florida Templateroller What Is A Project Exemption Certificate A local government official shares her experience and research on how to use sales tax exemptions for construction projects in illinois and other states. Form 5060 is a document that exempts tangible personal property from sales tax for construction projects in missouri. Become familiar with exemption certificates in the states where you conduct business and design an exemption certificate. Learn. What Is A Project Exemption Certificate.
From www.slideserve.com
PPT MANAGING THE SALES TAX EXEMPTION CERTIFICATE Best Practices and legal considerations What Is A Project Exemption Certificate Learn about different types of exemptions,. Become familiar with exemption certificates in the states where you conduct business and design an exemption certificate. Form 5060 is a document that exempts tangible personal property from sales tax for construction projects in missouri. A local government official shares her experience and research on how to use sales tax exemptions for construction projects. What Is A Project Exemption Certificate.
From edhi.org
Exemption Certificate Edhi Welfare Organization What Is A Project Exemption Certificate Form 5060 is a document that exempts tangible personal property from sales tax for construction projects in missouri. Become familiar with exemption certificates in the states where you conduct business and design an exemption certificate. A local government official shares her experience and research on how to use sales tax exemptions for construction projects in illinois and other states. Learn. What Is A Project Exemption Certificate.
From www.formsbank.com
Fillable Form 5060 Project Exemption Certificate printable pdf download What Is A Project Exemption Certificate Learn about different types of exemptions,. A local government official shares her experience and research on how to use sales tax exemptions for construction projects in illinois and other states. Become familiar with exemption certificates in the states where you conduct business and design an exemption certificate. Form 5060 is a document that exempts tangible personal property from sales tax. What Is A Project Exemption Certificate.
From edhi.org
Exemption Certificate Edhi Welfare Organization What Is A Project Exemption Certificate Form 5060 is a document that exempts tangible personal property from sales tax for construction projects in missouri. Learn about different types of exemptions,. A local government official shares her experience and research on how to use sales tax exemptions for construction projects in illinois and other states. Become familiar with exemption certificates in the states where you conduct business. What Is A Project Exemption Certificate.
From www.scribd.com
Sample Template For Exemption Certificate PDF What Is A Project Exemption Certificate Become familiar with exemption certificates in the states where you conduct business and design an exemption certificate. Learn about different types of exemptions,. A local government official shares her experience and research on how to use sales tax exemptions for construction projects in illinois and other states. Form 5060 is a document that exempts tangible personal property from sales tax. What Is A Project Exemption Certificate.
From www.slideshare.net
Exemption Certificate Management What Is A Project Exemption Certificate A local government official shares her experience and research on how to use sales tax exemptions for construction projects in illinois and other states. Become familiar with exemption certificates in the states where you conduct business and design an exemption certificate. Learn about different types of exemptions,. Form 5060 is a document that exempts tangible personal property from sales tax. What Is A Project Exemption Certificate.
From www.formsbank.com
Form Pr70b Request For Project Exemption Certificate Kansas Department Of Revenue printable What Is A Project Exemption Certificate Learn about different types of exemptions,. Form 5060 is a document that exempts tangible personal property from sales tax for construction projects in missouri. A local government official shares her experience and research on how to use sales tax exemptions for construction projects in illinois and other states. Become familiar with exemption certificates in the states where you conduct business. What Is A Project Exemption Certificate.
From www.pdffiller.com
Fillable Online 5060, Project Exemption Certificate Fax Email Print pdfFiller What Is A Project Exemption Certificate A local government official shares her experience and research on how to use sales tax exemptions for construction projects in illinois and other states. Form 5060 is a document that exempts tangible personal property from sales tax for construction projects in missouri. Become familiar with exemption certificates in the states where you conduct business and design an exemption certificate. Learn. What Is A Project Exemption Certificate.
From www.formsbank.com
Fillable Form 5060 Project Exemption Certificate printable pdf download What Is A Project Exemption Certificate A local government official shares her experience and research on how to use sales tax exemptions for construction projects in illinois and other states. Form 5060 is a document that exempts tangible personal property from sales tax for construction projects in missouri. Become familiar with exemption certificates in the states where you conduct business and design an exemption certificate. Learn. What Is A Project Exemption Certificate.
From azmemory.azlibrary.gov
Active Management Area, Certificates of Exemption Key Arizona Memory Project What Is A Project Exemption Certificate Form 5060 is a document that exempts tangible personal property from sales tax for construction projects in missouri. Learn about different types of exemptions,. A local government official shares her experience and research on how to use sales tax exemptions for construction projects in illinois and other states. Become familiar with exemption certificates in the states where you conduct business. What Is A Project Exemption Certificate.
From www.pdffiller.com
Fillable Online Chapter 251 Project Exemption Form Fax Email Print pdfFiller What Is A Project Exemption Certificate Learn about different types of exemptions,. Form 5060 is a document that exempts tangible personal property from sales tax for construction projects in missouri. Become familiar with exemption certificates in the states where you conduct business and design an exemption certificate. A local government official shares her experience and research on how to use sales tax exemptions for construction projects. What Is A Project Exemption Certificate.
From www.scribd.com
Memo COMELEC Project Exemption PDF What Is A Project Exemption Certificate Learn about different types of exemptions,. A local government official shares her experience and research on how to use sales tax exemptions for construction projects in illinois and other states. Become familiar with exemption certificates in the states where you conduct business and design an exemption certificate. Form 5060 is a document that exempts tangible personal property from sales tax. What Is A Project Exemption Certificate.
From www.slideshare.net
Exemption Certificate Management What Is A Project Exemption Certificate Form 5060 is a document that exempts tangible personal property from sales tax for construction projects in missouri. A local government official shares her experience and research on how to use sales tax exemptions for construction projects in illinois and other states. Become familiar with exemption certificates in the states where you conduct business and design an exemption certificate. Learn. What Is A Project Exemption Certificate.
From www.rklesolutions.com
The Benefits of Exemption Certificate Management Software What Is A Project Exemption Certificate Become familiar with exemption certificates in the states where you conduct business and design an exemption certificate. Learn about different types of exemptions,. Form 5060 is a document that exempts tangible personal property from sales tax for construction projects in missouri. A local government official shares her experience and research on how to use sales tax exemptions for construction projects. What Is A Project Exemption Certificate.
From studylib.net
Specimen exemption certificate (Word 28KB) What Is A Project Exemption Certificate A local government official shares her experience and research on how to use sales tax exemptions for construction projects in illinois and other states. Become familiar with exemption certificates in the states where you conduct business and design an exemption certificate. Learn about different types of exemptions,. Form 5060 is a document that exempts tangible personal property from sales tax. What Is A Project Exemption Certificate.
From help.sterlingvolunteers.com
What is an example of a taxexemption certificate? What Is A Project Exemption Certificate Form 5060 is a document that exempts tangible personal property from sales tax for construction projects in missouri. A local government official shares her experience and research on how to use sales tax exemptions for construction projects in illinois and other states. Learn about different types of exemptions,. Become familiar with exemption certificates in the states where you conduct business. What Is A Project Exemption Certificate.
From www.scribd.com
Exemption Certificate 30062024 PDF What Is A Project Exemption Certificate Become familiar with exemption certificates in the states where you conduct business and design an exemption certificate. Learn about different types of exemptions,. Form 5060 is a document that exempts tangible personal property from sales tax for construction projects in missouri. A local government official shares her experience and research on how to use sales tax exemptions for construction projects. What Is A Project Exemption Certificate.