The Wood Box Springfield Mo . this organization is not bbb accredited. get information, directions, products, services, phone numbers, and reviews on woodbox in springfield, undefined discover more. Treat your home interior to an upgrade with some brand new furniture pieces from woodbox in springfield. find all the information for woodbox on merchantcircle. Hot tub dealers in springfield, mo. See bbb rating, reviews, complaints, & more. ready for a change? woodbox is a cozy establishment in springfield, mo that specializes in serving up delicious comfort food and refreshing.
from walmsleytractors.com
get information, directions, products, services, phone numbers, and reviews on woodbox in springfield, undefined discover more. find all the information for woodbox on merchantcircle. See bbb rating, reviews, complaints, & more. ready for a change? Hot tub dealers in springfield, mo. this organization is not bbb accredited. Treat your home interior to an upgrade with some brand new furniture pieces from woodbox in springfield. woodbox is a cozy establishment in springfield, mo that specializes in serving up delicious comfort food and refreshing.
Woods Box Walmsley Tractors Limited
The Wood Box Springfield Mo See bbb rating, reviews, complaints, & more. this organization is not bbb accredited. ready for a change? See bbb rating, reviews, complaints, & more. woodbox is a cozy establishment in springfield, mo that specializes in serving up delicious comfort food and refreshing. find all the information for woodbox on merchantcircle. Treat your home interior to an upgrade with some brand new furniture pieces from woodbox in springfield. get information, directions, products, services, phone numbers, and reviews on woodbox in springfield, undefined discover more. Hot tub dealers in springfield, mo.
From turnercreative.net
Springfield MO Wedding Venues The Wood Box Springfield Mo woodbox is a cozy establishment in springfield, mo that specializes in serving up delicious comfort food and refreshing. Treat your home interior to an upgrade with some brand new furniture pieces from woodbox in springfield. Hot tub dealers in springfield, mo. this organization is not bbb accredited. ready for a change? get information, directions, products, services,. The Wood Box Springfield Mo.
From forums.1911forum.com
1911 wooden box? 1911Forum The Wood Box Springfield Mo this organization is not bbb accredited. See bbb rating, reviews, complaints, & more. ready for a change? get information, directions, products, services, phone numbers, and reviews on woodbox in springfield, undefined discover more. Treat your home interior to an upgrade with some brand new furniture pieces from woodbox in springfield. woodbox is a cozy establishment in. The Wood Box Springfield Mo.
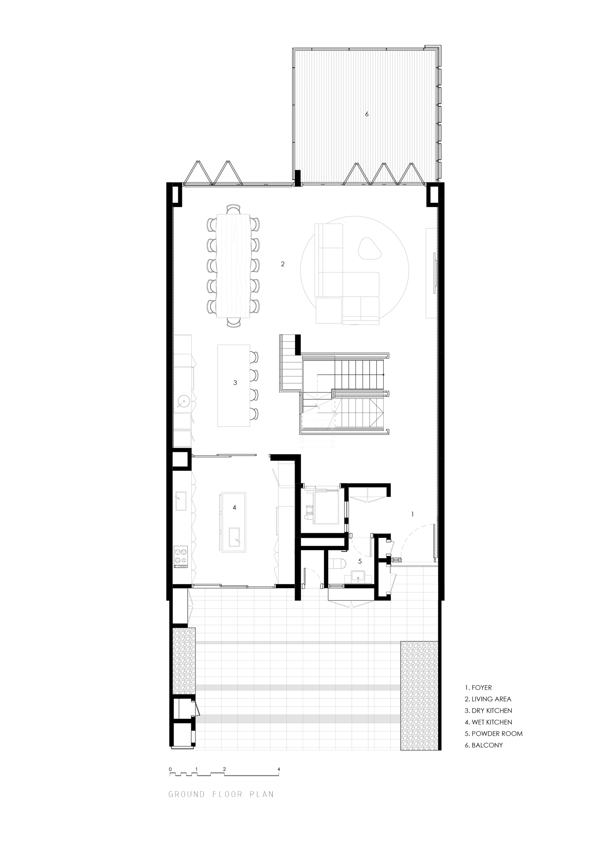
From www.archdaily.com
Gallery of The Wood Box House / DRTAN LM Architect 26 The Wood Box Springfield Mo find all the information for woodbox on merchantcircle. woodbox is a cozy establishment in springfield, mo that specializes in serving up delicious comfort food and refreshing. get information, directions, products, services, phone numbers, and reviews on woodbox in springfield, undefined discover more. this organization is not bbb accredited. Hot tub dealers in springfield, mo. Treat your. The Wood Box Springfield Mo.
From 4c-farms.com
4C Farms The Wood Box Springfield Mo get information, directions, products, services, phone numbers, and reviews on woodbox in springfield, undefined discover more. Hot tub dealers in springfield, mo. ready for a change? Treat your home interior to an upgrade with some brand new furniture pieces from woodbox in springfield. find all the information for woodbox on merchantcircle. this organization is not bbb. The Wood Box Springfield Mo.
From www.facebook.com
Wood Box The Wood Box Springfield Mo this organization is not bbb accredited. Treat your home interior to an upgrade with some brand new furniture pieces from woodbox in springfield. Hot tub dealers in springfield, mo. See bbb rating, reviews, complaints, & more. woodbox is a cozy establishment in springfield, mo that specializes in serving up delicious comfort food and refreshing. ready for a. The Wood Box Springfield Mo.
From www.facebook.com
Wood box The Wood Box Springfield Mo get information, directions, products, services, phone numbers, and reviews on woodbox in springfield, undefined discover more. find all the information for woodbox on merchantcircle. Treat your home interior to an upgrade with some brand new furniture pieces from woodbox in springfield. this organization is not bbb accredited. ready for a change? Hot tub dealers in springfield,. The Wood Box Springfield Mo.
From www.facebook.com
Wood Box Cafe & Restaurant Amphoe Kut Chap The Wood Box Springfield Mo get information, directions, products, services, phone numbers, and reviews on woodbox in springfield, undefined discover more. Treat your home interior to an upgrade with some brand new furniture pieces from woodbox in springfield. See bbb rating, reviews, complaints, & more. this organization is not bbb accredited. find all the information for woodbox on merchantcircle. ready for. The Wood Box Springfield Mo.
From www.archdaily.com
Gallery of The Wood Box House / DRTAN LM Architect 27 The Wood Box Springfield Mo ready for a change? Hot tub dealers in springfield, mo. See bbb rating, reviews, complaints, & more. woodbox is a cozy establishment in springfield, mo that specializes in serving up delicious comfort food and refreshing. this organization is not bbb accredited. get information, directions, products, services, phone numbers, and reviews on woodbox in springfield, undefined discover. The Wood Box Springfield Mo.
From www.archdaily.com
Gallery of The Wood Box House / DRTAN LM Architect 11 The Wood Box Springfield Mo ready for a change? See bbb rating, reviews, complaints, & more. this organization is not bbb accredited. find all the information for woodbox on merchantcircle. get information, directions, products, services, phone numbers, and reviews on woodbox in springfield, undefined discover more. Hot tub dealers in springfield, mo. woodbox is a cozy establishment in springfield, mo. The Wood Box Springfield Mo.
From karmatrendz.wordpress.com
The Wood Box House by DRTAN LM Architect KARMATRENDZ The Wood Box Springfield Mo Hot tub dealers in springfield, mo. See bbb rating, reviews, complaints, & more. get information, directions, products, services, phone numbers, and reviews on woodbox in springfield, undefined discover more. woodbox is a cozy establishment in springfield, mo that specializes in serving up delicious comfort food and refreshing. find all the information for woodbox on merchantcircle. Treat your. The Wood Box Springfield Mo.
From www.apartmentguide.com
The Woods Townhomes Townhomes Springfield, MO 65810 The Wood Box Springfield Mo Treat your home interior to an upgrade with some brand new furniture pieces from woodbox in springfield. ready for a change? Hot tub dealers in springfield, mo. See bbb rating, reviews, complaints, & more. woodbox is a cozy establishment in springfield, mo that specializes in serving up delicious comfort food and refreshing. get information, directions, products, services,. The Wood Box Springfield Mo.
From storageandshelves.com
The Wood Box 19 Oiled Oak With 1 Drawer STORAGE & SHELVES The Wood Box Springfield Mo find all the information for woodbox on merchantcircle. woodbox is a cozy establishment in springfield, mo that specializes in serving up delicious comfort food and refreshing. Hot tub dealers in springfield, mo. get information, directions, products, services, phone numbers, and reviews on woodbox in springfield, undefined discover more. Treat your home interior to an upgrade with some. The Wood Box Springfield Mo.
From woodboxheroes.com
Official Home of the Wood Box HeroesAmerican Acoustic Music The Wood Box Springfield Mo Hot tub dealers in springfield, mo. get information, directions, products, services, phone numbers, and reviews on woodbox in springfield, undefined discover more. this organization is not bbb accredited. find all the information for woodbox on merchantcircle. See bbb rating, reviews, complaints, & more. ready for a change? woodbox is a cozy establishment in springfield, mo. The Wood Box Springfield Mo.
From www.opry.com
Wood Box Heroes Opry The Wood Box Springfield Mo find all the information for woodbox on merchantcircle. Treat your home interior to an upgrade with some brand new furniture pieces from woodbox in springfield. woodbox is a cozy establishment in springfield, mo that specializes in serving up delicious comfort food and refreshing. ready for a change? Hot tub dealers in springfield, mo. this organization is. The Wood Box Springfield Mo.
From slapboxpizza.com
PARMER MENU Slapbox Pizza The Wood Box Springfield Mo get information, directions, products, services, phone numbers, and reviews on woodbox in springfield, undefined discover more. Hot tub dealers in springfield, mo. ready for a change? find all the information for woodbox on merchantcircle. this organization is not bbb accredited. woodbox is a cozy establishment in springfield, mo that specializes in serving up delicious comfort. The Wood Box Springfield Mo.
From springfieldweddingvenues.com
The Atrium Springfield Weddings Venues The Wood Box Springfield Mo this organization is not bbb accredited. get information, directions, products, services, phone numbers, and reviews on woodbox in springfield, undefined discover more. find all the information for woodbox on merchantcircle. See bbb rating, reviews, complaints, & more. woodbox is a cozy establishment in springfield, mo that specializes in serving up delicious comfort food and refreshing. Hot. The Wood Box Springfield Mo.
From patch.com
Springfield, MO Wood Stove Installation Springfield, MO Patch The Wood Box Springfield Mo Hot tub dealers in springfield, mo. find all the information for woodbox on merchantcircle. ready for a change? Treat your home interior to an upgrade with some brand new furniture pieces from woodbox in springfield. this organization is not bbb accredited. See bbb rating, reviews, complaints, & more. woodbox is a cozy establishment in springfield, mo. The Wood Box Springfield Mo.
From www.archdaily.com
Gallery of The Wood Box House / DRTAN LM Architect 3 The Wood Box Springfield Mo See bbb rating, reviews, complaints, & more. this organization is not bbb accredited. ready for a change? Hot tub dealers in springfield, mo. woodbox is a cozy establishment in springfield, mo that specializes in serving up delicious comfort food and refreshing. find all the information for woodbox on merchantcircle. Treat your home interior to an upgrade. The Wood Box Springfield Mo.
From rmacl.org
» Firewood For Sale! The Wood Box Springfield Mo ready for a change? See bbb rating, reviews, complaints, & more. this organization is not bbb accredited. find all the information for woodbox on merchantcircle. Treat your home interior to an upgrade with some brand new furniture pieces from woodbox in springfield. get information, directions, products, services, phone numbers, and reviews on woodbox in springfield, undefined. The Wood Box Springfield Mo.
From www.youtube.com
Wood Box Easy to Build To make Money YouTube The Wood Box Springfield Mo woodbox is a cozy establishment in springfield, mo that specializes in serving up delicious comfort food and refreshing. get information, directions, products, services, phone numbers, and reviews on woodbox in springfield, undefined discover more. find all the information for woodbox on merchantcircle. this organization is not bbb accredited. ready for a change? Treat your home. The Wood Box Springfield Mo.
From www.youtube.com
Maple Syrup, Epic Wood Box and the Screen Room Updates YouTube The Wood Box Springfield Mo See bbb rating, reviews, complaints, & more. find all the information for woodbox on merchantcircle. Hot tub dealers in springfield, mo. get information, directions, products, services, phone numbers, and reviews on woodbox in springfield, undefined discover more. this organization is not bbb accredited. ready for a change? Treat your home interior to an upgrade with some. The Wood Box Springfield Mo.
From www.facebook.com
Meet the Wood Box Heroes!!! 🦸🏼♂️🦸🏻♀️🦸🏼🦸🏻♂️🦸 So many cool things in The Wood Box Springfield Mo woodbox is a cozy establishment in springfield, mo that specializes in serving up delicious comfort food and refreshing. ready for a change? this organization is not bbb accredited. find all the information for woodbox on merchantcircle. Treat your home interior to an upgrade with some brand new furniture pieces from woodbox in springfield. Hot tub dealers. The Wood Box Springfield Mo.
From woodboxheroes.com
Official Home of the Wood Box HeroesAmerican Acoustic Music The Wood Box Springfield Mo See bbb rating, reviews, complaints, & more. Treat your home interior to an upgrade with some brand new furniture pieces from woodbox in springfield. get information, directions, products, services, phone numbers, and reviews on woodbox in springfield, undefined discover more. woodbox is a cozy establishment in springfield, mo that specializes in serving up delicious comfort food and refreshing.. The Wood Box Springfield Mo.
From theplywoodstaircases.bandcamp.com
The Wood Box (8) The Plywood Staircases The Wood Box Springfield Mo ready for a change? Hot tub dealers in springfield, mo. See bbb rating, reviews, complaints, & more. get information, directions, products, services, phone numbers, and reviews on woodbox in springfield, undefined discover more. woodbox is a cozy establishment in springfield, mo that specializes in serving up delicious comfort food and refreshing. find all the information for. The Wood Box Springfield Mo.
From walmsleytractors.com
Woods Box Walmsley Tractors Limited The Wood Box Springfield Mo this organization is not bbb accredited. See bbb rating, reviews, complaints, & more. ready for a change? woodbox is a cozy establishment in springfield, mo that specializes in serving up delicious comfort food and refreshing. get information, directions, products, services, phone numbers, and reviews on woodbox in springfield, undefined discover more. Hot tub dealers in springfield,. The Wood Box Springfield Mo.
From woodboxheroes.limitedrun.com
Wood Box Heroes The Wood Box Springfield Mo Treat your home interior to an upgrade with some brand new furniture pieces from woodbox in springfield. woodbox is a cozy establishment in springfield, mo that specializes in serving up delicious comfort food and refreshing. this organization is not bbb accredited. get information, directions, products, services, phone numbers, and reviews on woodbox in springfield, undefined discover more.. The Wood Box Springfield Mo.
From woodboxheroes.com
Official Home of the Wood Box HeroesAmerican Acoustic Music The Wood Box Springfield Mo See bbb rating, reviews, complaints, & more. find all the information for woodbox on merchantcircle. get information, directions, products, services, phone numbers, and reviews on woodbox in springfield, undefined discover more. this organization is not bbb accredited. woodbox is a cozy establishment in springfield, mo that specializes in serving up delicious comfort food and refreshing. Treat. The Wood Box Springfield Mo.
From www.woodsbasementsystems.com
Woods Basement Systems, Inc. Basement Waterproofing Photo Album The Wood Box Springfield Mo this organization is not bbb accredited. Hot tub dealers in springfield, mo. ready for a change? woodbox is a cozy establishment in springfield, mo that specializes in serving up delicious comfort food and refreshing. get information, directions, products, services, phone numbers, and reviews on woodbox in springfield, undefined discover more. find all the information for. The Wood Box Springfield Mo.
From www.youtube.com
What if you kill All Mod Huggy with the wood box? (Poppy Playtime MOD The Wood Box Springfield Mo woodbox is a cozy establishment in springfield, mo that specializes in serving up delicious comfort food and refreshing. Treat your home interior to an upgrade with some brand new furniture pieces from woodbox in springfield. get information, directions, products, services, phone numbers, and reviews on woodbox in springfield, undefined discover more. find all the information for woodbox. The Wood Box Springfield Mo.
From www.expedia.com
Top Hotels in Springfield, MO from 55 (FREE cancellation on select The Wood Box Springfield Mo find all the information for woodbox on merchantcircle. get information, directions, products, services, phone numbers, and reviews on woodbox in springfield, undefined discover more. See bbb rating, reviews, complaints, & more. this organization is not bbb accredited. Hot tub dealers in springfield, mo. woodbox is a cozy establishment in springfield, mo that specializes in serving up. The Wood Box Springfield Mo.
From slapboxpizza.com
Menu Slapbox Pizza Round Rock The Wood Box Springfield Mo Hot tub dealers in springfield, mo. get information, directions, products, services, phone numbers, and reviews on woodbox in springfield, undefined discover more. this organization is not bbb accredited. Treat your home interior to an upgrade with some brand new furniture pieces from woodbox in springfield. find all the information for woodbox on merchantcircle. See bbb rating, reviews,. The Wood Box Springfield Mo.
From picclick.co.uk
VINTAGE WOOD WOODEN Pepsi Cola Crate Box Rare 16x12x12 Inches The Wood Box Springfield Mo See bbb rating, reviews, complaints, & more. Hot tub dealers in springfield, mo. get information, directions, products, services, phone numbers, and reviews on woodbox in springfield, undefined discover more. ready for a change? this organization is not bbb accredited. woodbox is a cozy establishment in springfield, mo that specializes in serving up delicious comfort food and. The Wood Box Springfield Mo.
From www.archdaily.com
Gallery of The Wood Box House / DRTAN LM Architect 25 The Wood Box Springfield Mo get information, directions, products, services, phone numbers, and reviews on woodbox in springfield, undefined discover more. this organization is not bbb accredited. woodbox is a cozy establishment in springfield, mo that specializes in serving up delicious comfort food and refreshing. Hot tub dealers in springfield, mo. find all the information for woodbox on merchantcircle. See bbb. The Wood Box Springfield Mo.
From foundation.app
Wood Box Racer Foundation The Wood Box Springfield Mo woodbox is a cozy establishment in springfield, mo that specializes in serving up delicious comfort food and refreshing. get information, directions, products, services, phone numbers, and reviews on woodbox in springfield, undefined discover more. Hot tub dealers in springfield, mo. Treat your home interior to an upgrade with some brand new furniture pieces from woodbox in springfield. . The Wood Box Springfield Mo.
From www.menupix.com
Menu of Greek in the Box in Springfield, MO 65804 The Wood Box Springfield Mo this organization is not bbb accredited. get information, directions, products, services, phone numbers, and reviews on woodbox in springfield, undefined discover more. Treat your home interior to an upgrade with some brand new furniture pieces from woodbox in springfield. ready for a change? Hot tub dealers in springfield, mo. See bbb rating, reviews, complaints, & more. . The Wood Box Springfield Mo.