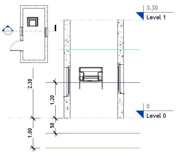
Revit View Depth Ceiling Plan . How do the view range options work in revit, and how they differ between floor plan views and. Learn how to use view range settings to control the visibility and display of elements in plan and reflected ceiling plan views in revit. Learn how to adjust the view range parameters in floor plan and ceiling plan views to display different levels of detail. These views include floor plans, reflected ceiling plans, and. Just make view range a rcp section or floor plan section that can be applied to a rcp or floor plan like a view template. How to set the view range in revit. The following elevation shows the view range of a plan. Change the view depth to show elements below the bottom clip plane. By default, the view depth coincides with the bottom clip plane.
from homeminimalisite.com
These views include floor plans, reflected ceiling plans, and. Just make view range a rcp section or floor plan section that can be applied to a rcp or floor plan like a view template. The following elevation shows the view range of a plan. Learn how to adjust the view range parameters in floor plan and ceiling plan views to display different levels of detail. Learn how to use view range settings to control the visibility and display of elements in plan and reflected ceiling plan views in revit. Change the view depth to show elements below the bottom clip plane. By default, the view depth coincides with the bottom clip plane. How to set the view range in revit. How do the view range options work in revit, and how they differ between floor plan views and.
How To Draw Ceiling Plan In Revit
Revit View Depth Ceiling Plan The following elevation shows the view range of a plan. Change the view depth to show elements below the bottom clip plane. The following elevation shows the view range of a plan. These views include floor plans, reflected ceiling plans, and. By default, the view depth coincides with the bottom clip plane. Learn how to use view range settings to control the visibility and display of elements in plan and reflected ceiling plan views in revit. How to set the view range in revit. Learn how to adjust the view range parameters in floor plan and ceiling plan views to display different levels of detail. Just make view range a rcp section or floor plan section that can be applied to a rcp or floor plan like a view template. How do the view range options work in revit, and how they differ between floor plan views and.
From www.youtube.com
Distinguish Far Elements with Depth Cueing in Revit YouTube Revit View Depth Ceiling Plan The following elevation shows the view range of a plan. Just make view range a rcp section or floor plan section that can be applied to a rcp or floor plan like a view template. These views include floor plans, reflected ceiling plans, and. Learn how to adjust the view range parameters in floor plan and ceiling plan views to. Revit View Depth Ceiling Plan.
From www.youtube.com
135 Revit Ceilings YouTube Revit View Depth Ceiling Plan How to set the view range in revit. Learn how to use view range settings to control the visibility and display of elements in plan and reflected ceiling plan views in revit. By default, the view depth coincides with the bottom clip plane. Just make view range a rcp section or floor plan section that can be applied to a. Revit View Depth Ceiling Plan.
From mavink.com
Ceiling Plan Revit Revit View Depth Ceiling Plan Learn how to adjust the view range parameters in floor plan and ceiling plan views to display different levels of detail. Just make view range a rcp section or floor plan section that can be applied to a rcp or floor plan like a view template. Change the view depth to show elements below the bottom clip plane. How to. Revit View Depth Ceiling Plan.
From bimchapters.blogspot.com
BIM Chapters Revit Basics View Range plus Discipline Revit View Depth Ceiling Plan By default, the view depth coincides with the bottom clip plane. How do the view range options work in revit, and how they differ between floor plan views and. Change the view depth to show elements below the bottom clip plane. Learn how to use view range settings to control the visibility and display of elements in plan and reflected. Revit View Depth Ceiling Plan.
From www.revitdesigner.co.uk
Understanding View Range in Revit revitdesigner.co.uk Revit View Depth Ceiling Plan By default, the view depth coincides with the bottom clip plane. These views include floor plans, reflected ceiling plans, and. Change the view depth to show elements below the bottom clip plane. How do the view range options work in revit, and how they differ between floor plan views and. Learn how to adjust the view range parameters in floor. Revit View Depth Ceiling Plan.
From bimchapters.blogspot.com
BIM Chapters Revit Basics View Range plus Discipline Revit View Depth Ceiling Plan The following elevation shows the view range of a plan. How do the view range options work in revit, and how they differ between floor plan views and. These views include floor plans, reflected ceiling plans, and. Learn how to use view range settings to control the visibility and display of elements in plan and reflected ceiling plan views in. Revit View Depth Ceiling Plan.
From shellysavonlea.net
Reflected Ceiling Plan View In Revit Shelly Lighting Revit View Depth Ceiling Plan Change the view depth to show elements below the bottom clip plane. The following elevation shows the view range of a plan. Just make view range a rcp section or floor plan section that can be applied to a rcp or floor plan like a view template. Learn how to use view range settings to control the visibility and display. Revit View Depth Ceiling Plan.
From lazybim.com
View Range Revit Everything you need to know LazyBim Revit View Depth Ceiling Plan How do the view range options work in revit, and how they differ between floor plan views and. Learn how to use view range settings to control the visibility and display of elements in plan and reflected ceiling plan views in revit. Learn how to adjust the view range parameters in floor plan and ceiling plan views to display different. Revit View Depth Ceiling Plan.
From www.youtube.com
View Range and Depth Clipping in Revit YouTube Revit View Depth Ceiling Plan Change the view depth to show elements below the bottom clip plane. By default, the view depth coincides with the bottom clip plane. How to set the view range in revit. The following elevation shows the view range of a plan. These views include floor plans, reflected ceiling plans, and. Learn how to adjust the view range parameters in floor. Revit View Depth Ceiling Plan.
From shellysavonlea.net
Reflected Ceiling Plan In Revit Structure Shelly Lighting Revit View Depth Ceiling Plan How do the view range options work in revit, and how they differ between floor plan views and. Learn how to use view range settings to control the visibility and display of elements in plan and reflected ceiling plan views in revit. The following elevation shows the view range of a plan. How to set the view range in revit.. Revit View Depth Ceiling Plan.
From reviewhomedecor.co
Reflected Ceiling Plan View In Revit Review Home Decor Revit View Depth Ceiling Plan Change the view depth to show elements below the bottom clip plane. How to set the view range in revit. How do the view range options work in revit, and how they differ between floor plan views and. These views include floor plans, reflected ceiling plans, and. Learn how to use view range settings to control the visibility and display. Revit View Depth Ceiling Plan.
From viewfloor.co
How To Create A Floor Framing Plan In Revit Family Viewfloor.co Revit View Depth Ceiling Plan Change the view depth to show elements below the bottom clip plane. How do the view range options work in revit, and how they differ between floor plan views and. The following elevation shows the view range of a plan. How to set the view range in revit. Just make view range a rcp section or floor plan section that. Revit View Depth Ceiling Plan.
From shellysavonlea.net
Revit Mep Reflected Ceiling Plan View Range Shelly Lighting Revit View Depth Ceiling Plan By default, the view depth coincides with the bottom clip plane. Learn how to adjust the view range parameters in floor plan and ceiling plan views to display different levels of detail. Learn how to use view range settings to control the visibility and display of elements in plan and reflected ceiling plan views in revit. Change the view depth. Revit View Depth Ceiling Plan.
From www.youtube.com
Revit Tutorial Video 13 Ceilings and View Range YouTube Revit View Depth Ceiling Plan Just make view range a rcp section or floor plan section that can be applied to a rcp or floor plan like a view template. Learn how to adjust the view range parameters in floor plan and ceiling plan views to display different levels of detail. The following elevation shows the view range of a plan. These views include floor. Revit View Depth Ceiling Plan.
From homeminimalisite.com
How To Draw Ceiling Plan In Revit Revit View Depth Ceiling Plan Learn how to adjust the view range parameters in floor plan and ceiling plan views to display different levels of detail. Just make view range a rcp section or floor plan section that can be applied to a rcp or floor plan like a view template. Learn how to use view range settings to control the visibility and display of. Revit View Depth Ceiling Plan.
From archi-lab.net
create ceiling plan by room archilab Revit View Depth Ceiling Plan Learn how to adjust the view range parameters in floor plan and ceiling plan views to display different levels of detail. Just make view range a rcp section or floor plan section that can be applied to a rcp or floor plan like a view template. These views include floor plans, reflected ceiling plans, and. How to set the view. Revit View Depth Ceiling Plan.
From homeminimalisite.com
How To Draw Ceiling Plan In Revit Revit View Depth Ceiling Plan How do the view range options work in revit, and how they differ between floor plan views and. These views include floor plans, reflected ceiling plans, and. Just make view range a rcp section or floor plan section that can be applied to a rcp or floor plan like a view template. Change the view depth to show elements below. Revit View Depth Ceiling Plan.
From therevitkid.blogspot.dk
Revit Tip Floor Plan and Ceiling Plan View Range Explained Revit View Depth Ceiling Plan By default, the view depth coincides with the bottom clip plane. Change the view depth to show elements below the bottom clip plane. The following elevation shows the view range of a plan. How to set the view range in revit. These views include floor plans, reflected ceiling plans, and. Just make view range a rcp section or floor plan. Revit View Depth Ceiling Plan.
From reviewhomedecor.co
Reflected Ceiling Plan View Range Revit Review Home Decor Revit View Depth Ceiling Plan The following elevation shows the view range of a plan. These views include floor plans, reflected ceiling plans, and. How to set the view range in revit. Learn how to adjust the view range parameters in floor plan and ceiling plan views to display different levels of detail. How do the view range options work in revit, and how they. Revit View Depth Ceiling Plan.
From www.youtube.com
Revit Creating Reflected Ceiling Plan YouTube Revit View Depth Ceiling Plan How to set the view range in revit. These views include floor plans, reflected ceiling plans, and. Just make view range a rcp section or floor plan section that can be applied to a rcp or floor plan like a view template. The following elevation shows the view range of a plan. By default, the view depth coincides with the. Revit View Depth Ceiling Plan.
From lazybim.com
View Range Revit Everything you need to know LazyBim Revit View Depth Ceiling Plan How do the view range options work in revit, and how they differ between floor plan views and. How to set the view range in revit. Change the view depth to show elements below the bottom clip plane. Learn how to use view range settings to control the visibility and display of elements in plan and reflected ceiling plan views. Revit View Depth Ceiling Plan.
From mashyo.com
9 Tips to Master Revit View Range Mashyo Revit View Depth Ceiling Plan These views include floor plans, reflected ceiling plans, and. How do the view range options work in revit, and how they differ between floor plan views and. Learn how to adjust the view range parameters in floor plan and ceiling plan views to display different levels of detail. How to set the view range in revit. Learn how to use. Revit View Depth Ceiling Plan.
From evolve-consultancy.com
REVIT VIEW DEPTHS Evolve Consultancy Revit View Depth Ceiling Plan Learn how to adjust the view range parameters in floor plan and ceiling plan views to display different levels of detail. Just make view range a rcp section or floor plan section that can be applied to a rcp or floor plan like a view template. The following elevation shows the view range of a plan. Learn how to use. Revit View Depth Ceiling Plan.
From lazybim.com
View Range Revit Everything you need to know LazyBim Revit View Depth Ceiling Plan Learn how to use view range settings to control the visibility and display of elements in plan and reflected ceiling plan views in revit. Learn how to adjust the view range parameters in floor plan and ceiling plan views to display different levels of detail. How to set the view range in revit. The following elevation shows the view range. Revit View Depth Ceiling Plan.
From shellysavonlea.net
Reflected Ceiling Plan View Range Revit Shelly Lighting Revit View Depth Ceiling Plan How to set the view range in revit. How do the view range options work in revit, and how they differ between floor plan views and. Just make view range a rcp section or floor plan section that can be applied to a rcp or floor plan like a view template. These views include floor plans, reflected ceiling plans, and.. Revit View Depth Ceiling Plan.
From www.youtube.com
Revit Reflected Ceiling Plans YouTube Revit View Depth Ceiling Plan The following elevation shows the view range of a plan. Just make view range a rcp section or floor plan section that can be applied to a rcp or floor plan like a view template. How to set the view range in revit. Learn how to adjust the view range parameters in floor plan and ceiling plan views to display. Revit View Depth Ceiling Plan.
From civilmix.com
Designing a Stunning Ceiling using Revit 2019. Where Civil Revit View Depth Ceiling Plan Change the view depth to show elements below the bottom clip plane. These views include floor plans, reflected ceiling plans, and. By default, the view depth coincides with the bottom clip plane. How do the view range options work in revit, and how they differ between floor plan views and. Learn how to use view range settings to control the. Revit View Depth Ceiling Plan.
From shellysavonlea.net
Reflected Ceiling Plan View Range Revit Shelly Lighting Revit View Depth Ceiling Plan The following elevation shows the view range of a plan. Learn how to use view range settings to control the visibility and display of elements in plan and reflected ceiling plan views in revit. Change the view depth to show elements below the bottom clip plane. Just make view range a rcp section or floor plan section that can be. Revit View Depth Ceiling Plan.
From homeminimalisite.com
How To Draw Ceiling Plan In Revit Revit View Depth Ceiling Plan Just make view range a rcp section or floor plan section that can be applied to a rcp or floor plan like a view template. These views include floor plans, reflected ceiling plans, and. How to set the view range in revit. The following elevation shows the view range of a plan. Learn how to use view range settings to. Revit View Depth Ceiling Plan.
From www.youtube.com
Revit Tutorials Ceilings YouTube Revit View Depth Ceiling Plan These views include floor plans, reflected ceiling plans, and. By default, the view depth coincides with the bottom clip plane. How to set the view range in revit. Just make view range a rcp section or floor plan section that can be applied to a rcp or floor plan like a view template. How do the view range options work. Revit View Depth Ceiling Plan.
From revitmep.es
Revit MEP design Understanding the View Range Revit View Depth Ceiling Plan Change the view depth to show elements below the bottom clip plane. How to set the view range in revit. These views include floor plans, reflected ceiling plans, and. How do the view range options work in revit, and how they differ between floor plan views and. By default, the view depth coincides with the bottom clip plane. Learn how. Revit View Depth Ceiling Plan.
From shellysavonlea.net
Revit Mep Reflected Ceiling Plan View Range Shelly Lighting Revit View Depth Ceiling Plan Learn how to adjust the view range parameters in floor plan and ceiling plan views to display different levels of detail. How do the view range options work in revit, and how they differ between floor plan views and. Change the view depth to show elements below the bottom clip plane. The following elevation shows the view range of a. Revit View Depth Ceiling Plan.
From www.youtube.com
6 Types of Ceilings Modeled in Revit Tutorial (Ceiling in Revit) YouTube Revit View Depth Ceiling Plan By default, the view depth coincides with the bottom clip plane. Learn how to adjust the view range parameters in floor plan and ceiling plan views to display different levels of detail. How to set the view range in revit. Just make view range a rcp section or floor plan section that can be applied to a rcp or floor. Revit View Depth Ceiling Plan.
From viewfloor.co
What Does C Mean On Floor Plan Views In Revit Viewfloor.co Revit View Depth Ceiling Plan How do the view range options work in revit, and how they differ between floor plan views and. These views include floor plans, reflected ceiling plans, and. The following elevation shows the view range of a plan. Learn how to adjust the view range parameters in floor plan and ceiling plan views to display different levels of detail. Learn how. Revit View Depth Ceiling Plan.
From viewfloor.co
Revit Create New Floor Plan View Viewfloor.co Revit View Depth Ceiling Plan Learn how to use view range settings to control the visibility and display of elements in plan and reflected ceiling plan views in revit. The following elevation shows the view range of a plan. Learn how to adjust the view range parameters in floor plan and ceiling plan views to display different levels of detail. Change the view depth to. Revit View Depth Ceiling Plan.