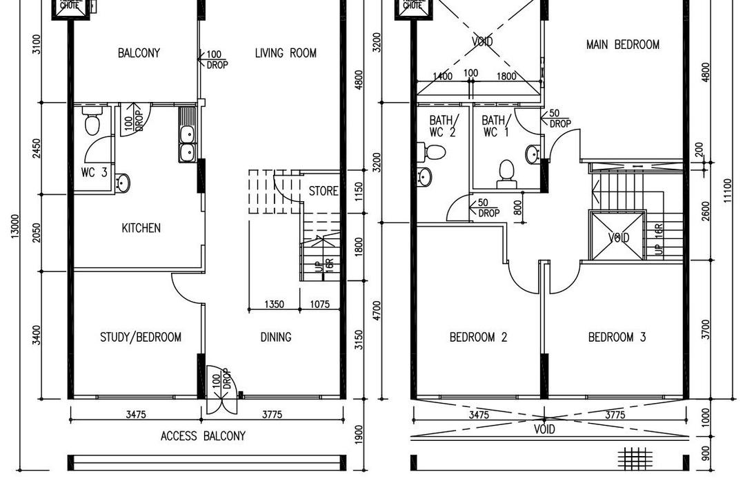
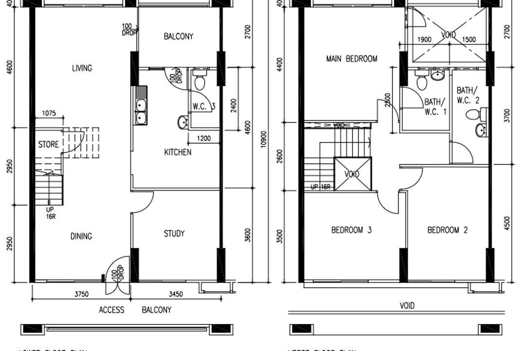
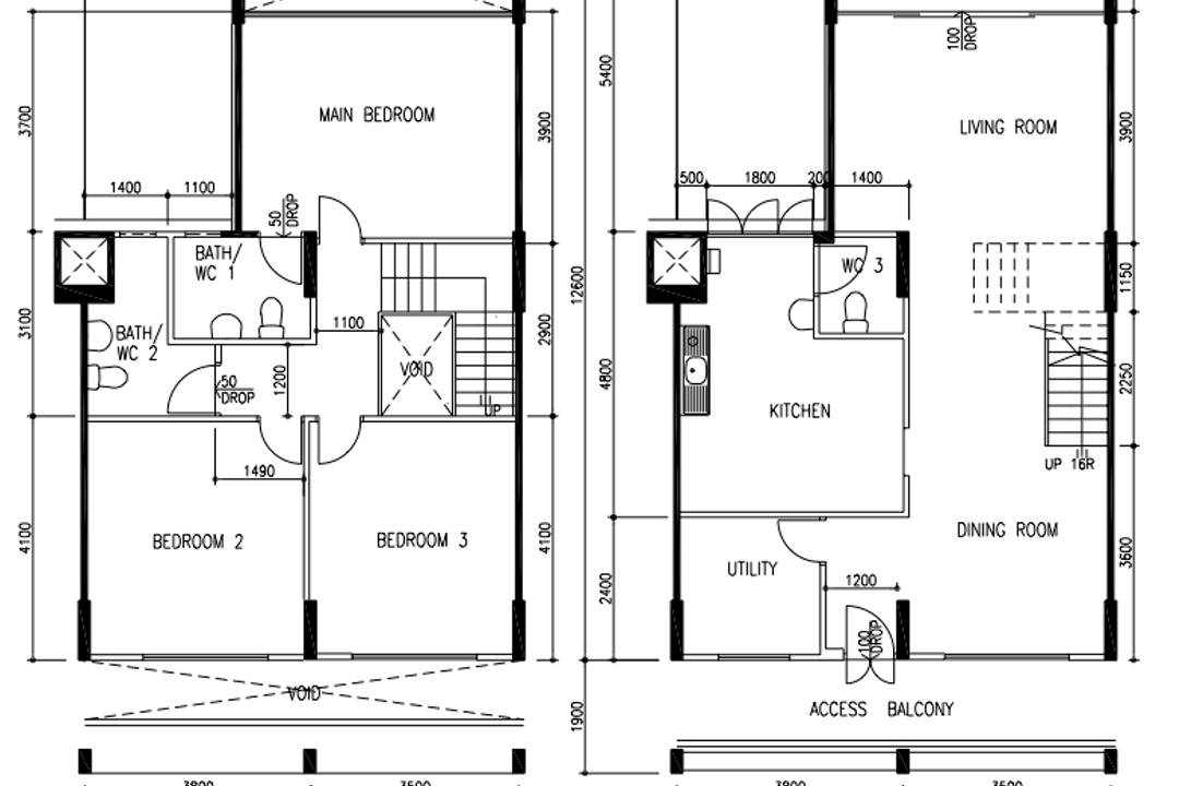
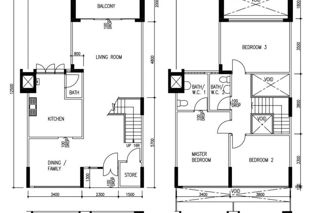
Executive Maisonette Size . These properties have two levels, with the living and kitchen areas usually on the lower floor. Kitchen and dining area in a hdb executive maisonette along. If you are looking for an executive maisonette, we have compiled a list of all 23 locations to find them plus location, price, and. Executive maisonettes usually range between 1,527 to 1,700 sq ft,. 4.5/5 (379) Since hdb executive maisonette flats come with two floors, they’re also noticeably larger; Executive maisonettes usually range between 1,527 to 1,700 sq ft, making them popular among couples or larger families who require more room. Here are some hdb maisonette design ideas if you’re dreaming of living in or already browsing executive maisonettes for sale in singapore. We’ve also compiled 5 maisonettes you can buy and how much you can expect to pay for your new home. Since hdb executive maisonette flats come with two floors, they’re also noticeably larger;
from ohmyhome.com
We’ve also compiled 5 maisonettes you can buy and how much you can expect to pay for your new home. Executive maisonettes usually range between 1,527 to 1,700 sq ft, making them popular among couples or larger families who require more room. Here are some hdb maisonette design ideas if you’re dreaming of living in or already browsing executive maisonettes for sale in singapore. 4.5/5 (379) These properties have two levels, with the living and kitchen areas usually on the lower floor. If you are looking for an executive maisonette, we have compiled a list of all 23 locations to find them plus location, price, and. Executive maisonettes usually range between 1,527 to 1,700 sq ft,. Kitchen and dining area in a hdb executive maisonette along. Since hdb executive maisonette flats come with two floors, they’re also noticeably larger; Since hdb executive maisonette flats come with two floors, they’re also noticeably larger;
Executive Renovation Under 50k? Ohmyhome
Executive Maisonette Size 4.5/5 (379) Executive maisonettes usually range between 1,527 to 1,700 sq ft,. If you are looking for an executive maisonette, we have compiled a list of all 23 locations to find them plus location, price, and. Executive maisonettes usually range between 1,527 to 1,700 sq ft, making them popular among couples or larger families who require more room. We’ve also compiled 5 maisonettes you can buy and how much you can expect to pay for your new home. Since hdb executive maisonette flats come with two floors, they’re also noticeably larger; Here are some hdb maisonette design ideas if you’re dreaming of living in or already browsing executive maisonettes for sale in singapore. 4.5/5 (379) Kitchen and dining area in a hdb executive maisonette along. Since hdb executive maisonette flats come with two floors, they’re also noticeably larger; These properties have two levels, with the living and kitchen areas usually on the lower floor.
From www.asiaone.com
9 stunning HDB executive homes that look like landed Executive Maisonette Size Kitchen and dining area in a hdb executive maisonette along. Executive maisonettes usually range between 1,527 to 1,700 sq ft, making them popular among couples or larger families who require more room. Since hdb executive maisonette flats come with two floors, they’re also noticeably larger; These properties have two levels, with the living and kitchen areas usually on the lower. Executive Maisonette Size.
From www.asiaone.com
9 stunning HDB executive homes that look like landed Executive Maisonette Size Kitchen and dining area in a hdb executive maisonette along. If you are looking for an executive maisonette, we have compiled a list of all 23 locations to find them plus location, price, and. These properties have two levels, with the living and kitchen areas usually on the lower floor. 4.5/5 (379) Since hdb executive maisonette flats come with. Executive Maisonette Size.
From mavink.com
Executive Floor Plan Executive Maisonette Size Here are some hdb maisonette design ideas if you’re dreaming of living in or already browsing executive maisonettes for sale in singapore. Executive maisonettes usually range between 1,527 to 1,700 sq ft,. Executive maisonettes usually range between 1,527 to 1,700 sq ft, making them popular among couples or larger families who require more room. Since hdb executive maisonette flats come. Executive Maisonette Size.
From mavink.com
Executive Floor Plan Executive Maisonette Size We’ve also compiled 5 maisonettes you can buy and how much you can expect to pay for your new home. Here are some hdb maisonette design ideas if you’re dreaming of living in or already browsing executive maisonettes for sale in singapore. Since hdb executive maisonette flats come with two floors, they’re also noticeably larger; Executive maisonettes usually range between. Executive Maisonette Size.
From mavink.com
Executive Floor Plan Executive Maisonette Size Executive maisonettes usually range between 1,527 to 1,700 sq ft, making them popular among couples or larger families who require more room. 4.5/5 (379) Since hdb executive maisonette flats come with two floors, they’re also noticeably larger; Since hdb executive maisonette flats come with two floors, they’re also noticeably larger; Kitchen and dining area in a hdb executive maisonette. Executive Maisonette Size.
From www.asiaone.com
9 stunning HDB executive homes that look like landed Executive Maisonette Size Executive maisonettes usually range between 1,527 to 1,700 sq ft, making them popular among couples or larger families who require more room. Here are some hdb maisonette design ideas if you’re dreaming of living in or already browsing executive maisonettes for sale in singapore. We’ve also compiled 5 maisonettes you can buy and how much you can expect to pay. Executive Maisonette Size.
From ohmyhome.com
Executive Renovation Under 50k? Ohmyhome Executive Maisonette Size Executive maisonettes usually range between 1,527 to 1,700 sq ft, making them popular among couples or larger families who require more room. Kitchen and dining area in a hdb executive maisonette along. 4.5/5 (379) Since hdb executive maisonette flats come with two floors, they’re also noticeably larger; Executive maisonettes usually range between 1,527 to 1,700 sq ft,. We’ve also. Executive Maisonette Size.
From qanvast.com
Executive Interior Design Singapore Interior Design Ideas Executive Maisonette Size 4.5/5 (379) Since hdb executive maisonette flats come with two floors, they’re also noticeably larger; Executive maisonettes usually range between 1,527 to 1,700 sq ft, making them popular among couples or larger families who require more room. Here are some hdb maisonette design ideas if you’re dreaming of living in or already browsing executive maisonettes for sale in singapore.. Executive Maisonette Size.
From qanvast.com
Executive Corr Interior Design Singapore Interior Design Executive Maisonette Size Executive maisonettes usually range between 1,527 to 1,700 sq ft,. 4.5/5 (379) Here are some hdb maisonette design ideas if you’re dreaming of living in or already browsing executive maisonettes for sale in singapore. We’ve also compiled 5 maisonettes you can buy and how much you can expect to pay for your new home. Executive maisonettes usually range between. Executive Maisonette Size.
From mavink.com
Executive Floor Plan Executive Maisonette Size Kitchen and dining area in a hdb executive maisonette along. Executive maisonettes usually range between 1,527 to 1,700 sq ft, making them popular among couples or larger families who require more room. 4.5/5 (379) Since hdb executive maisonette flats come with two floors, they’re also noticeably larger; These properties have two levels, with the living and kitchen areas usually. Executive Maisonette Size.
From mavink.com
Executive Floor Plan Executive Maisonette Size We’ve also compiled 5 maisonettes you can buy and how much you can expect to pay for your new home. Here are some hdb maisonette design ideas if you’re dreaming of living in or already browsing executive maisonettes for sale in singapore. Since hdb executive maisonette flats come with two floors, they’re also noticeably larger; Executive maisonettes usually range between. Executive Maisonette Size.
From www.askdaniel.org
HDB Executive Design Ideas Inspired by 6 Homes for Sale Executive Maisonette Size These properties have two levels, with the living and kitchen areas usually on the lower floor. Here are some hdb maisonette design ideas if you’re dreaming of living in or already browsing executive maisonettes for sale in singapore. 4.5/5 (379) Executive maisonettes usually range between 1,527 to 1,700 sq ft, making them popular among couples or larger families who. Executive Maisonette Size.
From www.renonation.sg
9 Stunning HDB Executive Homes that Look Like Landed Executive Maisonette Size Executive maisonettes usually range between 1,527 to 1,700 sq ft,. Executive maisonettes usually range between 1,527 to 1,700 sq ft, making them popular among couples or larger families who require more room. Kitchen and dining area in a hdb executive maisonette along. 4.5/5 (379) If you are looking for an executive maisonette, we have compiled a list of all. Executive Maisonette Size.
From stackedhomes.com
Ultimate List Of 23 HDB Executive Location, Price, Size Executive Maisonette Size Since hdb executive maisonette flats come with two floors, they’re also noticeably larger; Since hdb executive maisonette flats come with two floors, they’re also noticeably larger; 4.5/5 (379) We’ve also compiled 5 maisonettes you can buy and how much you can expect to pay for your new home. Executive maisonettes usually range between 1,527 to 1,700 sq ft, making. Executive Maisonette Size.
From coretecfloors.art
Hdb Floor Plan The Floors Executive Maisonette Size We’ve also compiled 5 maisonettes you can buy and how much you can expect to pay for your new home. Executive maisonettes usually range between 1,527 to 1,700 sq ft, making them popular among couples or larger families who require more room. 4.5/5 (379) These properties have two levels, with the living and kitchen areas usually on the lower. Executive Maisonette Size.
From www.lookboxliving.com.sg
An executive gets more rooms to house a family of eight Executive Maisonette Size 4.5/5 (379) Here are some hdb maisonette design ideas if you’re dreaming of living in or already browsing executive maisonettes for sale in singapore. Executive maisonettes usually range between 1,527 to 1,700 sq ft,. Since hdb executive maisonette flats come with two floors, they’re also noticeably larger; Kitchen and dining area in a hdb executive maisonette along. If you. Executive Maisonette Size.
From qanvast.com
Executive Hdb Floorplan Interior Design Singapore Executive Maisonette Size We’ve also compiled 5 maisonettes you can buy and how much you can expect to pay for your new home. Here are some hdb maisonette design ideas if you’re dreaming of living in or already browsing executive maisonettes for sale in singapore. Since hdb executive maisonette flats come with two floors, they’re also noticeably larger; Executive maisonettes usually range between. Executive Maisonette Size.
From www.renonation.sg
9 Stunning HDB Executive Homes that Look Like Landed Executive Maisonette Size 4.5/5 (379) These properties have two levels, with the living and kitchen areas usually on the lower floor. Kitchen and dining area in a hdb executive maisonette along. If you are looking for an executive maisonette, we have compiled a list of all 23 locations to find them plus location, price, and. Executive maisonettes usually range between 1,527 to. Executive Maisonette Size.
From qanvast.com
Executive Floorplan Interior Design Singapore Interior Executive Maisonette Size Executive maisonettes usually range between 1,527 to 1,700 sq ft, making them popular among couples or larger families who require more room. Here are some hdb maisonette design ideas if you’re dreaming of living in or already browsing executive maisonettes for sale in singapore. We’ve also compiled 5 maisonettes you can buy and how much you can expect to pay. Executive Maisonette Size.
From sg.finance.yahoo.com
What Are Executive and Where to Find Them Executive Maisonette Size Executive maisonettes usually range between 1,527 to 1,700 sq ft,. Executive maisonettes usually range between 1,527 to 1,700 sq ft, making them popular among couples or larger families who require more room. Here are some hdb maisonette design ideas if you’re dreaming of living in or already browsing executive maisonettes for sale in singapore. 4.5/5 (379) We’ve also compiled. Executive Maisonette Size.
From qanvast.com
Executive Floorplan Interior Design Singapore Interior Executive Maisonette Size Since hdb executive maisonette flats come with two floors, they’re also noticeably larger; Kitchen and dining area in a hdb executive maisonette along. 4.5/5 (379) If you are looking for an executive maisonette, we have compiled a list of all 23 locations to find them plus location, price, and. We’ve also compiled 5 maisonettes you can buy and how. Executive Maisonette Size.
From qanvast.com
Executive Floorplan Interior Design Singapore Interior Executive Maisonette Size Executive maisonettes usually range between 1,527 to 1,700 sq ft, making them popular among couples or larger families who require more room. If you are looking for an executive maisonette, we have compiled a list of all 23 locations to find them plus location, price, and. Kitchen and dining area in a hdb executive maisonette along. 4.5/5 (379) Since. Executive Maisonette Size.
From www.pinterest.dk
HDB Executive floor plan (142 sqm) Bukit Panjang, Choa Chu Executive Maisonette Size If you are looking for an executive maisonette, we have compiled a list of all 23 locations to find them plus location, price, and. These properties have two levels, with the living and kitchen areas usually on the lower floor. Since hdb executive maisonette flats come with two floors, they’re also noticeably larger; Here are some hdb maisonette design ideas. Executive Maisonette Size.
From www.renonation.sg
9 Stunning HDB Executive Homes that Look Like Landed Executive Maisonette Size Here are some hdb maisonette design ideas if you’re dreaming of living in or already browsing executive maisonettes for sale in singapore. These properties have two levels, with the living and kitchen areas usually on the lower floor. We’ve also compiled 5 maisonettes you can buy and how much you can expect to pay for your new home. Kitchen and. Executive Maisonette Size.
From qanvast.com
Executive Floorplan Interior Design Singapore Interior Executive Maisonette Size 4.5/5 (379) Since hdb executive maisonette flats come with two floors, they’re also noticeably larger; Kitchen and dining area in a hdb executive maisonette along. If you are looking for an executive maisonette, we have compiled a list of all 23 locations to find them plus location, price, and. Here are some hdb maisonette design ideas if you’re dreaming. Executive Maisonette Size.
From qanvast.com
Executive Floorplan Interior Design Singapore Interior Executive Maisonette Size Executive maisonettes usually range between 1,527 to 1,700 sq ft,. Here are some hdb maisonette design ideas if you’re dreaming of living in or already browsing executive maisonettes for sale in singapore. Since hdb executive maisonette flats come with two floors, they’re also noticeably larger; These properties have two levels, with the living and kitchen areas usually on the lower. Executive Maisonette Size.
From thefinance.sg
Ultimate List Of 23 HDB Executive Location, Price, Size Executive Maisonette Size These properties have two levels, with the living and kitchen areas usually on the lower floor. Kitchen and dining area in a hdb executive maisonette along. Since hdb executive maisonette flats come with two floors, they’re also noticeably larger; Here are some hdb maisonette design ideas if you’re dreaming of living in or already browsing executive maisonettes for sale in. Executive Maisonette Size.
From qanvast.com
Executive Floorplan Interior Design Singapore Interior Executive Maisonette Size Here are some hdb maisonette design ideas if you’re dreaming of living in or already browsing executive maisonettes for sale in singapore. We’ve also compiled 5 maisonettes you can buy and how much you can expect to pay for your new home. Executive maisonettes usually range between 1,527 to 1,700 sq ft, making them popular among couples or larger families. Executive Maisonette Size.
From qanvast.com
Executive Floorplan Interior Design Singapore Interior Executive Maisonette Size Executive maisonettes usually range between 1,527 to 1,700 sq ft,. Here are some hdb maisonette design ideas if you’re dreaming of living in or already browsing executive maisonettes for sale in singapore. 4.5/5 (379) We’ve also compiled 5 maisonettes you can buy and how much you can expect to pay for your new home. Since hdb executive maisonette flats. Executive Maisonette Size.
From qanvast.com
Executive Floorplan Interior Design Singapore Interior Executive Maisonette Size These properties have two levels, with the living and kitchen areas usually on the lower floor. Here are some hdb maisonette design ideas if you’re dreaming of living in or already browsing executive maisonettes for sale in singapore. Executive maisonettes usually range between 1,527 to 1,700 sq ft,. Executive maisonettes usually range between 1,527 to 1,700 sq ft, making them. Executive Maisonette Size.
From www.propertyguru.com.sg
HDB Design Ideas Inspired by 5 Properties You'll Want to Executive Maisonette Size Since hdb executive maisonette flats come with two floors, they’re also noticeably larger; Since hdb executive maisonette flats come with two floors, they’re also noticeably larger; Here are some hdb maisonette design ideas if you’re dreaming of living in or already browsing executive maisonettes for sale in singapore. If you are looking for an executive maisonette, we have compiled a. Executive Maisonette Size.
From www.renonation.sg
9 Stunning HDB Executive Homes that Look Like Landed Executive Maisonette Size We’ve also compiled 5 maisonettes you can buy and how much you can expect to pay for your new home. Since hdb executive maisonette flats come with two floors, they’re also noticeably larger; Since hdb executive maisonette flats come with two floors, they’re also noticeably larger; Executive maisonettes usually range between 1,527 to 1,700 sq ft, making them popular among. Executive Maisonette Size.
From qanvast.com
Executive Floorplan Interior Design Singapore Interior Executive Maisonette Size Since hdb executive maisonette flats come with two floors, they’re also noticeably larger; Executive maisonettes usually range between 1,527 to 1,700 sq ft, making them popular among couples or larger families who require more room. We’ve also compiled 5 maisonettes you can buy and how much you can expect to pay for your new home. If you are looking for. Executive Maisonette Size.
From www.reztnrelax.com
Yishun Ring HDB Executive Designed by Lucas Ong Executive Maisonette Size Executive maisonettes usually range between 1,527 to 1,700 sq ft,. Here are some hdb maisonette design ideas if you’re dreaming of living in or already browsing executive maisonettes for sale in singapore. These properties have two levels, with the living and kitchen areas usually on the lower floor. If you are looking for an executive maisonette, we have compiled a. Executive Maisonette Size.
From louisfeedsdc.com
Executive Hdb Blk Elias Road Home Building Plans 153454 Executive Maisonette Size Since hdb executive maisonette flats come with two floors, they’re also noticeably larger; Here are some hdb maisonette design ideas if you’re dreaming of living in or already browsing executive maisonettes for sale in singapore. Since hdb executive maisonette flats come with two floors, they’re also noticeably larger; Kitchen and dining area in a hdb executive maisonette along. If you. Executive Maisonette Size.