Fall Protection Inspection Form Pdf . Download a pdf form to create a fall protection plan for your job site, based on osha guidelines. Elevate your safety measures by accessing our complimentary fall protection inspection forms. This checklist is designed to assist with inspection of the body harness and its attachments for wear, defects or damage. Download a pdf form to inspect and record the condition of your fall protection equipment daily. Download a free pdf template to inspect fall protection equipment and systems in the workplace. These forms are thoughtfully designed in both. The form covers full body harness, lanyards, shock. Equipment inspections are essential to maintain equipment and ensure safety. Pass, safe for use red: Learn about key areas, common issues, best practices, and how to digitize inspections with safetymint software. Or download to print/email and. Identify fall hazards, prioritize corrective actions, and. Download these fillable forms for an easy checklist to inspect your equipment.
from www.roofingmagazine.com
Download these fillable forms for an easy checklist to inspect your equipment. Learn about key areas, common issues, best practices, and how to digitize inspections with safetymint software. Download a pdf form to create a fall protection plan for your job site, based on osha guidelines. Identify fall hazards, prioritize corrective actions, and. Pass, safe for use red: Or download to print/email and. Equipment inspections are essential to maintain equipment and ensure safety. Download a pdf form to inspect and record the condition of your fall protection equipment daily. The form covers full body harness, lanyards, shock. These forms are thoughtfully designed in both.
What Every Roofer Should Know About Ladder and Fall Protection Safety
Fall Protection Inspection Form Pdf Equipment inspections are essential to maintain equipment and ensure safety. The form covers full body harness, lanyards, shock. Identify fall hazards, prioritize corrective actions, and. Learn about key areas, common issues, best practices, and how to digitize inspections with safetymint software. Download a pdf form to create a fall protection plan for your job site, based on osha guidelines. Or download to print/email and. Pass, safe for use red: Equipment inspections are essential to maintain equipment and ensure safety. These forms are thoughtfully designed in both. This checklist is designed to assist with inspection of the body harness and its attachments for wear, defects or damage. Download a free pdf template to inspect fall protection equipment and systems in the workplace. Download a pdf form to inspect and record the condition of your fall protection equipment daily. Download these fillable forms for an easy checklist to inspect your equipment. Elevate your safety measures by accessing our complimentary fall protection inspection forms.
From www.fldata.com
Fall Protection Inspection Form Frontline Data Solutions Fall Protection Inspection Form Pdf Elevate your safety measures by accessing our complimentary fall protection inspection forms. This checklist is designed to assist with inspection of the body harness and its attachments for wear, defects or damage. Download a pdf form to create a fall protection plan for your job site, based on osha guidelines. Identify fall hazards, prioritize corrective actions, and. These forms are. Fall Protection Inspection Form Pdf.
From www.slideshare.net
Fall protection checklist usace Fall Protection Inspection Form Pdf Learn about key areas, common issues, best practices, and how to digitize inspections with safetymint software. Identify fall hazards, prioritize corrective actions, and. Pass, safe for use red: Download a free pdf template to inspect fall protection equipment and systems in the workplace. These forms are thoughtfully designed in both. Equipment inspections are essential to maintain equipment and ensure safety.. Fall Protection Inspection Form Pdf.
From mavink.com
Fall Protection Equipment Inspection Sheet Fall Protection Inspection Form Pdf This checklist is designed to assist with inspection of the body harness and its attachments for wear, defects or damage. Pass, safe for use red: These forms are thoughtfully designed in both. Download a pdf form to create a fall protection plan for your job site, based on osha guidelines. The form covers full body harness, lanyards, shock. Download these. Fall Protection Inspection Form Pdf.
From www.scribd.com
Helpside Fall Protection Inspection Form PDF Fall Protection Inspection Form Pdf Equipment inspections are essential to maintain equipment and ensure safety. Elevate your safety measures by accessing our complimentary fall protection inspection forms. The form covers full body harness, lanyards, shock. Download a pdf form to inspect and record the condition of your fall protection equipment daily. Or download to print/email and. These forms are thoughtfully designed in both. Download these. Fall Protection Inspection Form Pdf.
From www.elkriver.com
Body Harness Inspection Checklist Download Elk River Fall Protection Fall Protection Inspection Form Pdf Equipment inspections are essential to maintain equipment and ensure safety. The form covers full body harness, lanyards, shock. Learn about key areas, common issues, best practices, and how to digitize inspections with safetymint software. These forms are thoughtfully designed in both. Identify fall hazards, prioritize corrective actions, and. Download a free pdf template to inspect fall protection equipment and systems. Fall Protection Inspection Form Pdf.
From www.pdffiller.com
Fillable Online Guardian Fall Protection Inspection Forms. Guardian Fall Protection Inspection Form Pdf Learn about key areas, common issues, best practices, and how to digitize inspections with safetymint software. The form covers full body harness, lanyards, shock. Download a pdf form to create a fall protection plan for your job site, based on osha guidelines. Download a pdf form to inspect and record the condition of your fall protection equipment daily. Elevate your. Fall Protection Inspection Form Pdf.
From maltadynamics.com
Harness & Fall Protection Inspection Form Safety Checklists Fall Protection Inspection Form Pdf Elevate your safety measures by accessing our complimentary fall protection inspection forms. Download these fillable forms for an easy checklist to inspect your equipment. This checklist is designed to assist with inspection of the body harness and its attachments for wear, defects or damage. Download a pdf form to inspect and record the condition of your fall protection equipment daily.. Fall Protection Inspection Form Pdf.
From 1streporting.com
Fall Protection Safety Harness Daily Inspection Downloadable Template Fall Protection Inspection Form Pdf These forms are thoughtfully designed in both. Learn about key areas, common issues, best practices, and how to digitize inspections with safetymint software. Equipment inspections are essential to maintain equipment and ensure safety. Download a free pdf template to inspect fall protection equipment and systems in the workplace. Identify fall hazards, prioritize corrective actions, and. Elevate your safety measures by. Fall Protection Inspection Form Pdf.
From icwgroup.safetynow.com
Inspection Form, Fall Protection Equipment Safety Harness Inspection Fall Protection Inspection Form Pdf This checklist is designed to assist with inspection of the body harness and its attachments for wear, defects or damage. Or download to print/email and. Download a free pdf template to inspect fall protection equipment and systems in the workplace. These forms are thoughtfully designed in both. The form covers full body harness, lanyards, shock. Equipment inspections are essential to. Fall Protection Inspection Form Pdf.
From hsseworld.com
Fall protection Equipment Forms and Inspection Fall Protection Inspection Form Pdf Or download to print/email and. Download a pdf form to inspect and record the condition of your fall protection equipment daily. These forms are thoughtfully designed in both. Pass, safe for use red: Learn about key areas, common issues, best practices, and how to digitize inspections with safetymint software. Download a free pdf template to inspect fall protection equipment and. Fall Protection Inspection Form Pdf.
From www.sampletemplates.com
FREE 9+ Sample Fall Protection Plan Templates in PDF MS Word Fall Protection Inspection Form Pdf Elevate your safety measures by accessing our complimentary fall protection inspection forms. This checklist is designed to assist with inspection of the body harness and its attachments for wear, defects or damage. Learn about key areas, common issues, best practices, and how to digitize inspections with safetymint software. Download a pdf form to inspect and record the condition of your. Fall Protection Inspection Form Pdf.
From nationalsafety.wordpress.com
301 Moved Permanently Fall Protection Inspection Form Pdf These forms are thoughtfully designed in both. Or download to print/email and. Download a free pdf template to inspect fall protection equipment and systems in the workplace. Download a pdf form to inspect and record the condition of your fall protection equipment daily. Download a pdf form to create a fall protection plan for your job site, based on osha. Fall Protection Inspection Form Pdf.
From www.safetymint.com
OSHA Fall Protection Inspection Checklist Download Free PDF Fall Protection Inspection Form Pdf The form covers full body harness, lanyards, shock. Download a pdf form to create a fall protection plan for your job site, based on osha guidelines. Identify fall hazards, prioritize corrective actions, and. Pass, safe for use red: This checklist is designed to assist with inspection of the body harness and its attachments for wear, defects or damage. Download a. Fall Protection Inspection Form Pdf.
From hsseworld.com
Ladder Inspection Form Fall Protection Inspection Form Pdf Or download to print/email and. Learn about key areas, common issues, best practices, and how to digitize inspections with safetymint software. These forms are thoughtfully designed in both. Download a free pdf template to inspect fall protection equipment and systems in the workplace. Download a pdf form to inspect and record the condition of your fall protection equipment daily. Download. Fall Protection Inspection Form Pdf.
From projectopenletter.com
Pure Safety Fall Protection Inspection Form Printable Form, Templates Fall Protection Inspection Form Pdf Download a pdf form to inspect and record the condition of your fall protection equipment daily. These forms are thoughtfully designed in both. Or download to print/email and. Download a free pdf template to inspect fall protection equipment and systems in the workplace. Identify fall hazards, prioritize corrective actions, and. Equipment inspections are essential to maintain equipment and ensure safety.. Fall Protection Inspection Form Pdf.
From www.pdffiller.com
Fillable Online 3M Fall Protection Inspection Form Fax Email Print Fall Protection Inspection Form Pdf This checklist is designed to assist with inspection of the body harness and its attachments for wear, defects or damage. Pass, safe for use red: Download these fillable forms for an easy checklist to inspect your equipment. The form covers full body harness, lanyards, shock. Or download to print/email and. Download a free pdf template to inspect fall protection equipment. Fall Protection Inspection Form Pdf.
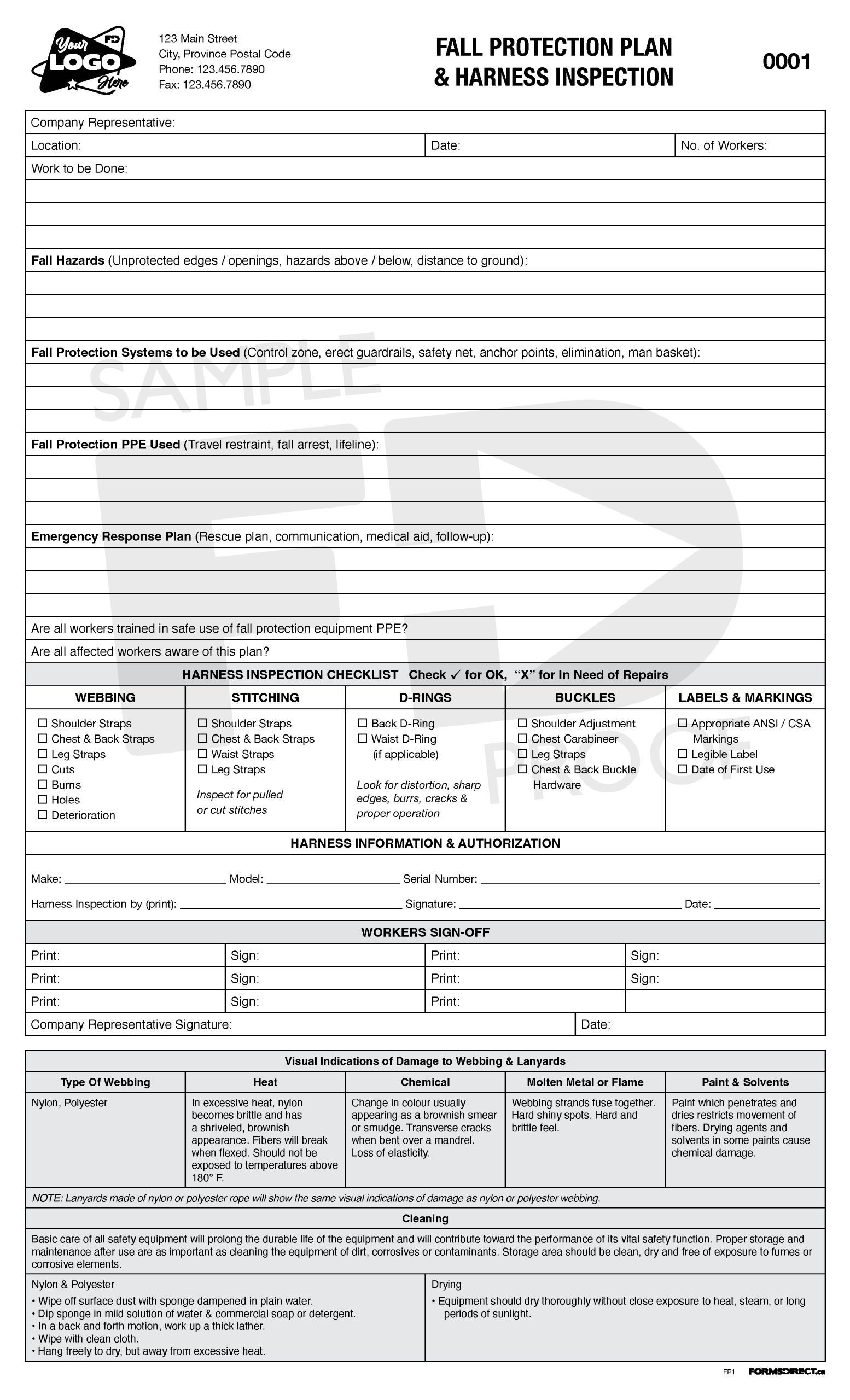
From formsdirect.ca
Fall Protection / Harness & Lanyard PreUse Inspection FP2 Fall Protection Inspection Form Pdf This checklist is designed to assist with inspection of the body harness and its attachments for wear, defects or damage. Learn about key areas, common issues, best practices, and how to digitize inspections with safetymint software. Pass, safe for use red: Identify fall hazards, prioritize corrective actions, and. Download these fillable forms for an easy checklist to inspect your equipment.. Fall Protection Inspection Form Pdf.
From www.sampletemplates.com
FREE 9+ Sample Fall Protection Plan Templates in PDF MS Word Fall Protection Inspection Form Pdf Identify fall hazards, prioritize corrective actions, and. Download a free pdf template to inspect fall protection equipment and systems in the workplace. Download a pdf form to inspect and record the condition of your fall protection equipment daily. Pass, safe for use red: These forms are thoughtfully designed in both. This checklist is designed to assist with inspection of the. Fall Protection Inspection Form Pdf.
From www.pinterest.ca
Fall Protection Plan Template Pdf Fresh Safety Harness Inspection Fall Protection Inspection Form Pdf Pass, safe for use red: Or download to print/email and. The form covers full body harness, lanyards, shock. Identify fall hazards, prioritize corrective actions, and. Elevate your safety measures by accessing our complimentary fall protection inspection forms. This checklist is designed to assist with inspection of the body harness and its attachments for wear, defects or damage. These forms are. Fall Protection Inspection Form Pdf.
From www.template.net
Fall Protection Equipment PPE Checklist Template in Word, PDF, Google Fall Protection Inspection Form Pdf These forms are thoughtfully designed in both. Download a pdf form to create a fall protection plan for your job site, based on osha guidelines. Identify fall hazards, prioritize corrective actions, and. Download a free pdf template to inspect fall protection equipment and systems in the workplace. The form covers full body harness, lanyards, shock. Equipment inspections are essential to. Fall Protection Inspection Form Pdf.
From industrialladder.com
Safety & Fall Protection Fall Protection Reference Material Fall Protection Inspection Form Pdf These forms are thoughtfully designed in both. Or download to print/email and. Elevate your safety measures by accessing our complimentary fall protection inspection forms. Download a pdf form to create a fall protection plan for your job site, based on osha guidelines. Learn about key areas, common issues, best practices, and how to digitize inspections with safetymint software. Identify fall. Fall Protection Inspection Form Pdf.
From www.roofingmagazine.com
What Every Roofer Should Know About Ladder and Fall Protection Safety Fall Protection Inspection Form Pdf Pass, safe for use red: Identify fall hazards, prioritize corrective actions, and. Download a pdf form to inspect and record the condition of your fall protection equipment daily. These forms are thoughtfully designed in both. Learn about key areas, common issues, best practices, and how to digitize inspections with safetymint software. This checklist is designed to assist with inspection of. Fall Protection Inspection Form Pdf.
From www.pdffiller.com
Fillable Online Site specific fall protection plan We The Safe Fax Fall Protection Inspection Form Pdf Or download to print/email and. This checklist is designed to assist with inspection of the body harness and its attachments for wear, defects or damage. Identify fall hazards, prioritize corrective actions, and. Download a free pdf template to inspect fall protection equipment and systems in the workplace. Download a pdf form to inspect and record the condition of your fall. Fall Protection Inspection Form Pdf.
From maltadynamics.com
Fall Protection Inspection Form Malta Dynamics Fall Protection Inspection Form Pdf Download a free pdf template to inspect fall protection equipment and systems in the workplace. Download a pdf form to create a fall protection plan for your job site, based on osha guidelines. These forms are thoughtfully designed in both. The form covers full body harness, lanyards, shock. This checklist is designed to assist with inspection of the body harness. Fall Protection Inspection Form Pdf.
From scaffoldingrentalandsales.com
Fall Protection Videos & Inspection Sheets Fall Protection Inspection Form Pdf Identify fall hazards, prioritize corrective actions, and. Learn about key areas, common issues, best practices, and how to digitize inspections with safetymint software. Download these fillable forms for an easy checklist to inspect your equipment. Equipment inspections are essential to maintain equipment and ensure safety. Download a free pdf template to inspect fall protection equipment and systems in the workplace.. Fall Protection Inspection Form Pdf.
From formsdirect.ca
Fall Protection Plan / Harness Inspection FP1 Forms Direct Fall Protection Inspection Form Pdf Elevate your safety measures by accessing our complimentary fall protection inspection forms. Equipment inspections are essential to maintain equipment and ensure safety. Download a free pdf template to inspect fall protection equipment and systems in the workplace. Pass, safe for use red: Download these fillable forms for an easy checklist to inspect your equipment. This checklist is designed to assist. Fall Protection Inspection Form Pdf.
From steemfriends.org
Fall Protection Inspection Form Template Fall Protection Inspection Form Pdf Download a pdf form to inspect and record the condition of your fall protection equipment daily. These forms are thoughtfully designed in both. Or download to print/email and. Equipment inspections are essential to maintain equipment and ensure safety. Elevate your safety measures by accessing our complimentary fall protection inspection forms. This checklist is designed to assist with inspection of the. Fall Protection Inspection Form Pdf.
From www.pdffiller.com
Fillable Online Fall Protection Inspection Form Anchors. Fax Email Fall Protection Inspection Form Pdf The form covers full body harness, lanyards, shock. This checklist is designed to assist with inspection of the body harness and its attachments for wear, defects or damage. Learn about key areas, common issues, best practices, and how to digitize inspections with safetymint software. Download a pdf form to create a fall protection plan for your job site, based on. Fall Protection Inspection Form Pdf.
From www.scribd.com
Fall Protection Harness & Lanyard Inspection Form PDF Manufactured Fall Protection Inspection Form Pdf Download these fillable forms for an easy checklist to inspect your equipment. Download a free pdf template to inspect fall protection equipment and systems in the workplace. Download a pdf form to inspect and record the condition of your fall protection equipment daily. Download a pdf form to create a fall protection plan for your job site, based on osha. Fall Protection Inspection Form Pdf.
From mavink.com
Fall Protection Inspection Checklist Template Fall Protection Inspection Form Pdf These forms are thoughtfully designed in both. Download a pdf form to inspect and record the condition of your fall protection equipment daily. Download these fillable forms for an easy checklist to inspect your equipment. Equipment inspections are essential to maintain equipment and ensure safety. The form covers full body harness, lanyards, shock. Download a pdf form to create a. Fall Protection Inspection Form Pdf.
From www.pshsa.ca
Public Services Health and Safety Association Personal Fall Fall Protection Inspection Form Pdf Learn about key areas, common issues, best practices, and how to digitize inspections with safetymint software. Or download to print/email and. Download a free pdf template to inspect fall protection equipment and systems in the workplace. These forms are thoughtfully designed in both. Elevate your safety measures by accessing our complimentary fall protection inspection forms. Pass, safe for use red:. Fall Protection Inspection Form Pdf.
From www.sampletemplates.com
FREE 9+ Sample Fall Protection Plan Templates in PDF MS Word Fall Protection Inspection Form Pdf The form covers full body harness, lanyards, shock. Download a free pdf template to inspect fall protection equipment and systems in the workplace. Download a pdf form to create a fall protection plan for your job site, based on osha guidelines. Equipment inspections are essential to maintain equipment and ensure safety. Identify fall hazards, prioritize corrective actions, and. Pass, safe. Fall Protection Inspection Form Pdf.
From industrialladder.com
Safety & Fall Protection Fall Protection Reference Material Fall Protection Inspection Form Pdf These forms are thoughtfully designed in both. Pass, safe for use red: Download a pdf form to inspect and record the condition of your fall protection equipment daily. Or download to print/email and. The form covers full body harness, lanyards, shock. Identify fall hazards, prioritize corrective actions, and. Download these fillable forms for an easy checklist to inspect your equipment.. Fall Protection Inspection Form Pdf.
From www.scribd.com
Fall Protection Self Inspection Checklist PDF Fall Protection Inspection Form Pdf Download these fillable forms for an easy checklist to inspect your equipment. This checklist is designed to assist with inspection of the body harness and its attachments for wear, defects or damage. Download a pdf form to inspect and record the condition of your fall protection equipment daily. Equipment inspections are essential to maintain equipment and ensure safety. Download a. Fall Protection Inspection Form Pdf.
From www.uslegalforms.com
Brink Constructors Annual Fall Protection Equipment Inspection Fall Protection Inspection Form Pdf Download a pdf form to create a fall protection plan for your job site, based on osha guidelines. This checklist is designed to assist with inspection of the body harness and its attachments for wear, defects or damage. Pass, safe for use red: Download these fillable forms for an easy checklist to inspect your equipment. The form covers full body. Fall Protection Inspection Form Pdf.