Soft Drawing Atau Shop Drawing

In the construction and architecture industry, shop drawings and as-built drawings are two types of drawings that are very important for the success of a project. Although both provide detailed information about project components, they differ significantly in purpose and function. This article will thoroughly examine the differences between shop drawings and as-built drawings, helping you.

Shop drawing biasanya perlu persetujuan oleh arsitek atau insinyur sebelum implementasi di lapangan karena shop drawing ini bisa saja berbeda dengan rencana yang dibuat oleh konsultan perencana. As Built Drawing (ASB) As built drawing adalah dokumentasi yang menggambarkan kondisi aktual dari proyek konstruksi setelah selesai dibangun.

Everything you need to know about shop drawings: their concept, various types, and the leading software used for drafting and detailing in construction.

Shop drawings are an essential part of structural and mechanical engineering projects. Learn what they are and why they matter, along with expert tips to create them accurately.

Teknik Dasar Shop Drawing Konstruksi Baja - Jasa Arsitektur Dan ...

Teknik Dasar Shop Drawing Konstruksi Baja - Jasa Arsitektur dan ...

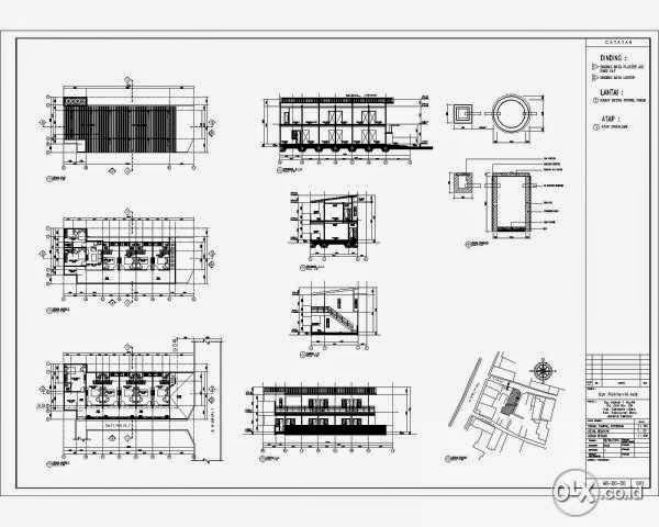
Kontraktor mengajukan shop drawing kepada Pengawas atau Manajemen Kontruksi proyek, kemudian setelah mendapat tanda tangan (di Acc) dan diterima, barulah pelaksanaan pekerjaan tersebut bisa dimulai. Baca juga: Titik, Garis, Bidang, Ruang dan Bentuk dalam Arsitektur 3. Gambar As built Drawing gambar as built drawing kondisi eksisting.

Everything you need to know about shop drawings: their concept, various types, and the leading software used for drafting and detailing in construction.

Untuk itu, setiap perubahan yang terjadi dan berbeda dari gambar shop drawing, maka harus dibuatkan gambar rivisinya, atau disebut dengan as built drawing. Namun jika selama proses pekerjaan konstruksi tidak terdapat perubahan, maka gambar kerja shop drawing dapat digunakan sebagai gambar jadi/ rekaman akhir.

In the construction and architecture industry, shop drawings and as-built drawings are two types of drawings that are very important for the success of a project. Although both provide detailed information about project components, they differ significantly in purpose and function. This article will thoroughly examine the differences between shop drawings and as-built drawings, helping you.

Perbedaan DED (Detail Engineering Desain), Shop Drawing Dan As Built ...

Perbedaan DED (Detail Engineering Desain), Shop Drawing dan As Built ...

In the construction and architecture industry, shop drawings and as-built drawings are two types of drawings that are very important for the success of a project. Although both provide detailed information about project components, they differ significantly in purpose and function. This article will thoroughly examine the differences between shop drawings and as-built drawings, helping you.

Dokumen tersebut membahas perbedaan antara Detail Engineering Design (DED), Shop Drawing, dan As Built Drawing untuk proyek konstruksi bangunan, di mana DED merupakan desain rinci dari konsultan, Shop Drawing digunakan sebagai panduan pelaksanaan, dan As Built Drawing merekam kondisi aktual setelah pembangunan.".

Untuk kalian yang baru saja memulai belajar tentang ilmu bangunan tentu saja harus mengetahui fungsi dan macam-macam jenis gambar tersebut. Tiga gambar tersebut adalah For Contruction Drawing atau yang umum di sebut For Con, Shop Drawing, dan As Built Drawing. Tentu saja ketiga jenis gambar tersebut tentu saja memiliki fungsi.

Untuk itu, setiap perubahan yang terjadi dan berbeda dari gambar shop drawing, maka harus dibuatkan gambar rivisinya, atau disebut dengan as built drawing. Namun jika selama proses pekerjaan konstruksi tidak terdapat perubahan, maka gambar kerja shop drawing dapat digunakan sebagai gambar jadi/ rekaman akhir.

Perbedaan Shop Drawing Dan As Built Drawing

Perbedaan Shop Drawing dan As Built Drawing

Learn the differences between shop, construction, and as-built drawings. Explore critical details about them & how they affect the project.

Shop drawing biasanya perlu persetujuan oleh arsitek atau insinyur sebelum implementasi di lapangan karena shop drawing ini bisa saja berbeda dengan rencana yang dibuat oleh konsultan perencana. As Built Drawing (ASB) As built drawing adalah dokumentasi yang menggambarkan kondisi aktual dari proyek konstruksi setelah selesai dibangun.

Untuk itu, setiap perubahan yang terjadi dan berbeda dari gambar shop drawing, maka harus dibuatkan gambar rivisinya, atau disebut dengan as built drawing. Namun jika selama proses pekerjaan konstruksi tidak terdapat perubahan, maka gambar kerja shop drawing dapat digunakan sebagai gambar jadi/ rekaman akhir.

In the construction and architecture industry, shop drawings and as-built drawings are two types of drawings that are very important for the success of a project. Although both provide detailed information about project components, they differ significantly in purpose and function. This article will thoroughly examine the differences between shop drawings and as-built drawings, helping you.

What Are Shop Drawing | Foundationinformation

What Are Shop Drawing | foundationinformation

Untuk kalian yang baru saja memulai belajar tentang ilmu bangunan tentu saja harus mengetahui fungsi dan macam-macam jenis gambar tersebut. Tiga gambar tersebut adalah For Contruction Drawing atau yang umum di sebut For Con, Shop Drawing, dan As Built Drawing. Tentu saja ketiga jenis gambar tersebut tentu saja memiliki fungsi.

Kontraktor mengajukan shop drawing kepada Pengawas atau Manajemen Kontruksi proyek, kemudian setelah mendapat tanda tangan (di Acc) dan diterima, barulah pelaksanaan pekerjaan tersebut bisa dimulai. Baca juga: Titik, Garis, Bidang, Ruang dan Bentuk dalam Arsitektur 3. Gambar As built Drawing gambar as built drawing kondisi eksisting.

In the construction and architecture industry, shop drawings and as-built drawings are two types of drawings that are very important for the success of a project. Although both provide detailed information about project components, they differ significantly in purpose and function. This article will thoroughly examine the differences between shop drawings and as-built drawings, helping you.

Dokumen tersebut membahas perbedaan antara Detail Engineering Design (DED), Shop Drawing, dan As Built Drawing untuk proyek konstruksi bangunan, di mana DED merupakan desain rinci dari konsultan, Shop Drawing digunakan sebagai panduan pelaksanaan, dan As Built Drawing merekam kondisi aktual setelah pembangunan.".

Shop Drawing Dalam Konstruksi Bangunan - PT Agnia Khassa Arkananta

Shop Drawing dalam Konstruksi Bangunan - PT Agnia Khassa Arkananta

Shop drawing biasanya perlu persetujuan oleh arsitek atau insinyur sebelum implementasi di lapangan karena shop drawing ini bisa saja berbeda dengan rencana yang dibuat oleh konsultan perencana. As Built Drawing (ASB) As built drawing adalah dokumentasi yang menggambarkan kondisi aktual dari proyek konstruksi setelah selesai dibangun.

Kontraktor mengajukan shop drawing kepada Pengawas atau Manajemen Kontruksi proyek, kemudian setelah mendapat tanda tangan (di Acc) dan diterima, barulah pelaksanaan pekerjaan tersebut bisa dimulai. Baca juga: Titik, Garis, Bidang, Ruang dan Bentuk dalam Arsitektur 3. Gambar As built Drawing gambar as built drawing kondisi eksisting.

In the construction and architecture industry, shop drawings and as-built drawings are two types of drawings that are very important for the success of a project. Although both provide detailed information about project components, they differ significantly in purpose and function. This article will thoroughly examine the differences between shop drawings and as-built drawings, helping you.

Shop drawing dapat membantu kegiatan pengendalian pada kegiatan perhitungan terhadap kebutuhan jumlah/volume material, sehingga optimalnya ketepatan perhitungan biaya dan pembelian suatu material. Sedangkan as-built drawing berfungsi untuk menunjukkan adanya perubahan yang terjadi antara gambar rencana, shop drawing, dan realisasinya.

Jasa Gambar Kerja (Shop Drawing) - IMB

Jasa Gambar Kerja (Shop Drawing) - IMB

Dokumen tersebut membahas perbedaan antara Detail Engineering Design (DED), Shop Drawing, dan As Built Drawing untuk proyek konstruksi bangunan, di mana DED merupakan desain rinci dari konsultan, Shop Drawing digunakan sebagai panduan pelaksanaan, dan As Built Drawing merekam kondisi aktual setelah pembangunan.".

Kontraktor mengajukan shop drawing kepada Pengawas atau Manajemen Kontruksi proyek, kemudian setelah mendapat tanda tangan (di Acc) dan diterima, barulah pelaksanaan pekerjaan tersebut bisa dimulai. Baca juga: Titik, Garis, Bidang, Ruang dan Bentuk dalam Arsitektur 3. Gambar As built Drawing gambar as built drawing kondisi eksisting.

Untuk itu, setiap perubahan yang terjadi dan berbeda dari gambar shop drawing, maka harus dibuatkan gambar rivisinya, atau disebut dengan as built drawing. Namun jika selama proses pekerjaan konstruksi tidak terdapat perubahan, maka gambar kerja shop drawing dapat digunakan sebagai gambar jadi/ rekaman akhir.

Shop drawing dapat membantu kegiatan pengendalian pada kegiatan perhitungan terhadap kebutuhan jumlah/volume material, sehingga optimalnya ketepatan perhitungan biaya dan pembelian suatu material. Sedangkan as-built drawing berfungsi untuk menunjukkan adanya perubahan yang terjadi antara gambar rencana, shop drawing, dan realisasinya.

Shop Drawing Dalam Konstruksi Bangunan - PT Agnia Khassa Arkananta

Shop Drawing dalam Konstruksi Bangunan - PT Agnia Khassa Arkananta

Untuk itu, setiap perubahan yang terjadi dan berbeda dari gambar shop drawing, maka harus dibuatkan gambar rivisinya, atau disebut dengan as built drawing. Namun jika selama proses pekerjaan konstruksi tidak terdapat perubahan, maka gambar kerja shop drawing dapat digunakan sebagai gambar jadi/ rekaman akhir.

Shop drawing dapat membantu kegiatan pengendalian pada kegiatan perhitungan terhadap kebutuhan jumlah/volume material, sehingga optimalnya ketepatan perhitungan biaya dan pembelian suatu material. Sedangkan as-built drawing berfungsi untuk menunjukkan adanya perubahan yang terjadi antara gambar rencana, shop drawing, dan realisasinya.

Untuk kalian yang baru saja memulai belajar tentang ilmu bangunan tentu saja harus mengetahui fungsi dan macam-macam jenis gambar tersebut. Tiga gambar tersebut adalah For Contruction Drawing atau yang umum di sebut For Con, Shop Drawing, dan As Built Drawing. Tentu saja ketiga jenis gambar tersebut tentu saja memiliki fungsi.

Dokumen tersebut membahas perbedaan antara Detail Engineering Design (DED), Shop Drawing, dan As Built Drawing untuk proyek konstruksi bangunan, di mana DED merupakan desain rinci dari konsultan, Shop Drawing digunakan sebagai panduan pelaksanaan, dan As Built Drawing merekam kondisi aktual setelah pembangunan.".

Garis Besar Bangunan: Gambar Bestek Dan Shop Drawing

Garis Besar Bangunan: Gambar Bestek dan Shop Drawing

Learn the differences between shop, construction, and as-built drawings. Explore critical details about them & how they affect the project.

Dokumen tersebut membahas perbedaan antara Detail Engineering Design (DED), Shop Drawing, dan As Built Drawing untuk proyek konstruksi bangunan, di mana DED merupakan desain rinci dari konsultan, Shop Drawing digunakan sebagai panduan pelaksanaan, dan As Built Drawing merekam kondisi aktual setelah pembangunan.".

Shop drawings are an essential part of structural and mechanical engineering projects. Learn what they are and why they matter, along with expert tips to create them accurately.

Shop drawing biasanya perlu persetujuan oleh arsitek atau insinyur sebelum implementasi di lapangan karena shop drawing ini bisa saja berbeda dengan rencana yang dibuat oleh konsultan perencana. As Built Drawing (ASB) As built drawing adalah dokumentasi yang menggambarkan kondisi aktual dari proyek konstruksi setelah selesai dibangun.

Shop Drawing Dalam Konstruksi Bangunan - PT Agnia Khassa Arkananta

Shop Drawing dalam Konstruksi Bangunan - PT Agnia Khassa Arkananta

Everything you need to know about shop drawings: their concept, various types, and the leading software used for drafting and detailing in construction.

Untuk itu, setiap perubahan yang terjadi dan berbeda dari gambar shop drawing, maka harus dibuatkan gambar rivisinya, atau disebut dengan as built drawing. Namun jika selama proses pekerjaan konstruksi tidak terdapat perubahan, maka gambar kerja shop drawing dapat digunakan sebagai gambar jadi/ rekaman akhir.

Untuk kalian yang baru saja memulai belajar tentang ilmu bangunan tentu saja harus mengetahui fungsi dan macam-macam jenis gambar tersebut. Tiga gambar tersebut adalah For Contruction Drawing atau yang umum di sebut For Con, Shop Drawing, dan As Built Drawing. Tentu saja ketiga jenis gambar tersebut tentu saja memiliki fungsi.

Shop drawings are an essential part of structural and mechanical engineering projects. Learn what they are and why they matter, along with expert tips to create them accurately.

Shop Drawing - Kamus Istilah Properti

Shop Drawing - Kamus Istilah Properti

Untuk itu, setiap perubahan yang terjadi dan berbeda dari gambar shop drawing, maka harus dibuatkan gambar rivisinya, atau disebut dengan as built drawing. Namun jika selama proses pekerjaan konstruksi tidak terdapat perubahan, maka gambar kerja shop drawing dapat digunakan sebagai gambar jadi/ rekaman akhir.

Shop drawing dapat membantu kegiatan pengendalian pada kegiatan perhitungan terhadap kebutuhan jumlah/volume material, sehingga optimalnya ketepatan perhitungan biaya dan pembelian suatu material. Sedangkan as-built drawing berfungsi untuk menunjukkan adanya perubahan yang terjadi antara gambar rencana, shop drawing, dan realisasinya.

Dokumen tersebut membahas perbedaan antara Detail Engineering Design (DED), Shop Drawing, dan As Built Drawing untuk proyek konstruksi bangunan, di mana DED merupakan desain rinci dari konsultan, Shop Drawing digunakan sebagai panduan pelaksanaan, dan As Built Drawing merekam kondisi aktual setelah pembangunan.".

Untuk kalian yang baru saja memulai belajar tentang ilmu bangunan tentu saja harus mengetahui fungsi dan macam-macam jenis gambar tersebut. Tiga gambar tersebut adalah For Contruction Drawing atau yang umum di sebut For Con, Shop Drawing, dan As Built Drawing. Tentu saja ketiga jenis gambar tersebut tentu saja memiliki fungsi.

Jual Jasa Shop Drawing Atau DED, Gedung, Pabrik, Gudang Lengkap Beserta ...

Jual Jasa shop drawing atau DED, Gedung, Pabrik, Gudang Lengkap Beserta ...

Shop drawing biasanya perlu persetujuan oleh arsitek atau insinyur sebelum implementasi di lapangan karena shop drawing ini bisa saja berbeda dengan rencana yang dibuat oleh konsultan perencana. As Built Drawing (ASB) As built drawing adalah dokumentasi yang menggambarkan kondisi aktual dari proyek konstruksi setelah selesai dibangun.

Dokumen tersebut membahas perbedaan antara Detail Engineering Design (DED), Shop Drawing, dan As Built Drawing untuk proyek konstruksi bangunan, di mana DED merupakan desain rinci dari konsultan, Shop Drawing digunakan sebagai panduan pelaksanaan, dan As Built Drawing merekam kondisi aktual setelah pembangunan.".

Untuk itu, setiap perubahan yang terjadi dan berbeda dari gambar shop drawing, maka harus dibuatkan gambar rivisinya, atau disebut dengan as built drawing. Namun jika selama proses pekerjaan konstruksi tidak terdapat perubahan, maka gambar kerja shop drawing dapat digunakan sebagai gambar jadi/ rekaman akhir.

Shop drawing dapat membantu kegiatan pengendalian pada kegiatan perhitungan terhadap kebutuhan jumlah/volume material, sehingga optimalnya ketepatan perhitungan biaya dan pembelian suatu material. Sedangkan as-built drawing berfungsi untuk menunjukkan adanya perubahan yang terjadi antara gambar rencana, shop drawing, dan realisasinya.

Pengertian Gambar Shop Drawing . Atau Gambar Kerja Adalah Gambar Teknis ...

Pengertian Gambar Shop Drawing . atau gambar kerja adalah gambar teknis ...

Kontraktor mengajukan shop drawing kepada Pengawas atau Manajemen Kontruksi proyek, kemudian setelah mendapat tanda tangan (di Acc) dan diterima, barulah pelaksanaan pekerjaan tersebut bisa dimulai. Baca juga: Titik, Garis, Bidang, Ruang dan Bentuk dalam Arsitektur 3. Gambar As built Drawing gambar as built drawing kondisi eksisting.

Shop drawing biasanya perlu persetujuan oleh arsitek atau insinyur sebelum implementasi di lapangan karena shop drawing ini bisa saja berbeda dengan rencana yang dibuat oleh konsultan perencana. As Built Drawing (ASB) As built drawing adalah dokumentasi yang menggambarkan kondisi aktual dari proyek konstruksi setelah selesai dibangun.

Shop drawings are an essential part of structural and mechanical engineering projects. Learn what they are and why they matter, along with expert tips to create them accurately.

Untuk kalian yang baru saja memulai belajar tentang ilmu bangunan tentu saja harus mengetahui fungsi dan macam-macam jenis gambar tersebut. Tiga gambar tersebut adalah For Contruction Drawing atau yang umum di sebut For Con, Shop Drawing, dan As Built Drawing. Tentu saja ketiga jenis gambar tersebut tentu saja memiliki fungsi.

Shop-drawing-la-gi-1

shop-drawing-la-gi-1

Everything you need to know about shop drawings: their concept, various types, and the leading software used for drafting and detailing in construction.

Kontraktor mengajukan shop drawing kepada Pengawas atau Manajemen Kontruksi proyek, kemudian setelah mendapat tanda tangan (di Acc) dan diterima, barulah pelaksanaan pekerjaan tersebut bisa dimulai. Baca juga: Titik, Garis, Bidang, Ruang dan Bentuk dalam Arsitektur 3. Gambar As built Drawing gambar as built drawing kondisi eksisting.

Shop drawings are an essential part of structural and mechanical engineering projects. Learn what they are and why they matter, along with expert tips to create them accurately.

Learn the differences between shop, construction, and as-built drawings. Explore critical details about them & how they affect the project.

Perbedaan Shop Drawing Dan As Built Drawing, Beserta Alur Pembuatannya ...

Perbedaan Shop Drawing dan As Built Drawing, Beserta Alur Pembuatannya ...

Shop drawing biasanya perlu persetujuan oleh arsitek atau insinyur sebelum implementasi di lapangan karena shop drawing ini bisa saja berbeda dengan rencana yang dibuat oleh konsultan perencana. As Built Drawing (ASB) As built drawing adalah dokumentasi yang menggambarkan kondisi aktual dari proyek konstruksi setelah selesai dibangun.

In the construction and architecture industry, shop drawings and as-built drawings are two types of drawings that are very important for the success of a project. Although both provide detailed information about project components, they differ significantly in purpose and function. This article will thoroughly examine the differences between shop drawings and as-built drawings, helping you.

Everything you need to know about shop drawings: their concept, various types, and the leading software used for drafting and detailing in construction.

Learn the differences between shop, construction, and as-built drawings. Explore critical details about them & how they affect the project.

Perbedaan Shop Drawing Dan As Built Drawing - Ilmu Kapal Dan Logistik

Perbedaan Shop Drawing dan As Built Drawing - Ilmu Kapal dan Logistik

Shop drawing dapat membantu kegiatan pengendalian pada kegiatan perhitungan terhadap kebutuhan jumlah/volume material, sehingga optimalnya ketepatan perhitungan biaya dan pembelian suatu material. Sedangkan as-built drawing berfungsi untuk menunjukkan adanya perubahan yang terjadi antara gambar rencana, shop drawing, dan realisasinya.

Learn the differences between shop, construction, and as-built drawings. Explore critical details about them & how they affect the project.

Shop drawings are an essential part of structural and mechanical engineering projects. Learn what they are and why they matter, along with expert tips to create them accurately.

Everything you need to know about shop drawings: their concept, various types, and the leading software used for drafting and detailing in construction.

Dokumen tersebut membahas perbedaan antara Detail Engineering Design (DED), Shop Drawing, dan As Built Drawing untuk proyek konstruksi bangunan, di mana DED merupakan desain rinci dari konsultan, Shop Drawing digunakan sebagai panduan pelaksanaan, dan As Built Drawing merekam kondisi aktual setelah pembangunan.".

Shop drawings are an essential part of structural and mechanical engineering projects. Learn what they are and why they matter, along with expert tips to create them accurately.

Untuk kalian yang baru saja memulai belajar tentang ilmu bangunan tentu saja harus mengetahui fungsi dan macam-macam jenis gambar tersebut. Tiga gambar tersebut adalah For Contruction Drawing atau yang umum di sebut For Con, Shop Drawing, dan As Built Drawing. Tentu saja ketiga jenis gambar tersebut tentu saja memiliki fungsi.

Learn the differences between shop, construction, and as-built drawings. Explore critical details about them & how they affect the project.

Kontraktor mengajukan shop drawing kepada Pengawas atau Manajemen Kontruksi proyek, kemudian setelah mendapat tanda tangan (di Acc) dan diterima, barulah pelaksanaan pekerjaan tersebut bisa dimulai. Baca juga: Titik, Garis, Bidang, Ruang dan Bentuk dalam Arsitektur 3. Gambar As built Drawing gambar as built drawing kondisi eksisting.

Everything you need to know about shop drawings: their concept, various types, and the leading software used for drafting and detailing in construction.

Untuk itu, setiap perubahan yang terjadi dan berbeda dari gambar shop drawing, maka harus dibuatkan gambar rivisinya, atau disebut dengan as built drawing. Namun jika selama proses pekerjaan konstruksi tidak terdapat perubahan, maka gambar kerja shop drawing dapat digunakan sebagai gambar jadi/ rekaman akhir.

Shop drawing biasanya perlu persetujuan oleh arsitek atau insinyur sebelum implementasi di lapangan karena shop drawing ini bisa saja berbeda dengan rencana yang dibuat oleh konsultan perencana. As Built Drawing (ASB) As built drawing adalah dokumentasi yang menggambarkan kondisi aktual dari proyek konstruksi setelah selesai dibangun.

In the construction and architecture industry, shop drawings and as-built drawings are two types of drawings that are very important for the success of a project. Although both provide detailed information about project components, they differ significantly in purpose and function. This article will thoroughly examine the differences between shop drawings and as-built drawings, helping you.

Shop drawing dapat membantu kegiatan pengendalian pada kegiatan perhitungan terhadap kebutuhan jumlah/volume material, sehingga optimalnya ketepatan perhitungan biaya dan pembelian suatu material. Sedangkan as-built drawing berfungsi untuk menunjukkan adanya perubahan yang terjadi antara gambar rencana, shop drawing, dan realisasinya.


Related Posts
Load Site Average 0,422 sec