10 X 12 Bathroom Ideas

But even in a 10 x 12 bathroom, there are plenty of ways to create a functional and stylish space. Here are 10 floor plans to inspire your next bathroom remodel: 1. Single-Sink Vanity with Shower and Toilet This classic layout features a single-sink vanity along one wall, with a shower and toilet on the opposite wall.

These 9 space-saving 10x12 bathroom layouts with showers include well-designed floor plans for shower, tub, storage and vanity placement.

When designing a 10 x 12 bathroom floor plan, there are several popular configurations to consider: 1. Standard Rectangle Layout The most basic and space-efficient layout, with the toilet and sink placed along one wall, the shower and bathtub on the opposite wall, and the window centered for natural light. 2. L.

Length: 10 feet 6 inches Specifics: The shape of your bathroom is unusual, and it creates mini-alcoves for the sink, tub, and toilet. The door has ample room to swing without hitting or squeezing anything. Downside, with twelve 'walls' instead of four, there's a lot more bathroom to clean. 3. Angular perfection 9×7 bathroom layout idea.

10x12 Master Bath - Traditional - Bathroom - Charlotte - By Howard ...

10x12 Master Bath - Traditional - Bathroom - Charlotte - by Howard ...

These 9 space-saving 10x12 bathroom layouts with showers include well-designed floor plans for shower, tub, storage and vanity placement.

When designing a 10 x 12 bathroom floor plan, there are several popular configurations to consider: 1. Standard Rectangle Layout The most basic and space-efficient layout, with the toilet and sink placed along one wall, the shower and bathtub on the opposite wall, and the window centered for natural light. 2. L.

Find and save ideas about 10 x 12 master bath layout on Pinterest.

This bathroom transformed from a standard secondary bathroom to a ergonomic spa without impacting the functionality of the bedroom. This project was super fun, we were working inside of a guest bedroom, to create a functional, yet expansive bathroom.

Master Bath Ideas 10x12

Master Bath Ideas 10x12

This bathroom transformed from a standard secondary bathroom to a ergonomic spa without impacting the functionality of the bedroom. This project was super fun, we were working inside of a guest bedroom, to create a functional, yet expansive bathroom.

This contemporary bathroom features an orange accent wall paired with black and white for a striking contrast. A white standalone tub with gold accents adds luxury. A light-colored rug, woven basket for towels, and beige slippers create a cozy atmosphere. Large windows let in natural light, enhancing the art-filled, functional space.

These 9 space-saving 10x12 bathroom layouts with showers include well-designed floor plans for shower, tub, storage and vanity placement.

But even in a 10 x 12 bathroom, there are plenty of ways to create a functional and stylish space. Here are 10 floor plans to inspire your next bathroom remodel: 1. Single-Sink Vanity with Shower and Toilet This classic layout features a single-sink vanity along one wall, with a shower and toilet on the opposite wall.

10x12 Bathroom Remodel In Orange County

10x12 Bathroom Remodel in Orange County

This contemporary bathroom features an orange accent wall paired with black and white for a striking contrast. A white standalone tub with gold accents adds luxury. A light-colored rug, woven basket for towels, and beige slippers create a cozy atmosphere. Large windows let in natural light, enhancing the art-filled, functional space.

When designing a 10 x 12 bathroom floor plan, there are several popular configurations to consider: 1. Standard Rectangle Layout The most basic and space-efficient layout, with the toilet and sink placed along one wall, the shower and bathtub on the opposite wall, and the window centered for natural light. 2. L.

Master Bathroom Floor Plans 10×12 There less common bathroom flooring options that you'll still find used, such as laminates or hardwood, carpet, cork, or rubber. You can include a touch of color by making use of colored grout in between tiles or maybe by scattering brightly colored tiles in between plain whitish or cream ones.

Find and save ideas about 10 x 12 master bath layout on Pinterest.

10 X 12 Ft Bathroom - Photos & Ideas | Houzz

10 X 12 Ft Bathroom - Photos & Ideas | Houzz

Find and save ideas about 10 x 12 master bath layout on Pinterest.

But even in a 10 x 12 bathroom, there are plenty of ways to create a functional and stylish space. Here are 10 floor plans to inspire your next bathroom remodel: 1. Single-Sink Vanity with Shower and Toilet This classic layout features a single-sink vanity along one wall, with a shower and toilet on the opposite wall.

These 9 space-saving 10x12 bathroom layouts with showers include well-designed floor plans for shower, tub, storage and vanity placement.

This bathroom transformed from a standard secondary bathroom to a ergonomic spa without impacting the functionality of the bedroom. This project was super fun, we were working inside of a guest bedroom, to create a functional, yet expansive bathroom.

10 X 12 Ft Bathroom - Photos & Ideas | Houzz

10 X 12 Ft Bathroom - Photos & Ideas | Houzz

But even in a 10 x 12 bathroom, there are plenty of ways to create a functional and stylish space. Here are 10 floor plans to inspire your next bathroom remodel: 1. Single-Sink Vanity with Shower and Toilet This classic layout features a single-sink vanity along one wall, with a shower and toilet on the opposite wall.

When it comes to designing a 10x12 bathroom, the possibilities are endless! This versatile space can be transformed into a serene oasis with the right ideas and planning. Whether you're looking to maximize functionality or create a stylish retreat, these design concepts will inspire you to make the most of your bathroom layout. 1.

Find and save ideas about 10 x 12 master bath layout on Pinterest.

Find and save ideas about 10x12 bathroom on Pinterest.

10 X 12 Ft Bathroom - Photos & Ideas | Houzz

10 X 12 Ft Bathroom - Photos & Ideas | Houzz

When it comes to designing a 10x12 bathroom, the possibilities are endless! This versatile space can be transformed into a serene oasis with the right ideas and planning. Whether you're looking to maximize functionality or create a stylish retreat, these design concepts will inspire you to make the most of your bathroom layout. 1.

Length: 10 feet 6 inches Specifics: The shape of your bathroom is unusual, and it creates mini-alcoves for the sink, tub, and toilet. The door has ample room to swing without hitting or squeezing anything. Downside, with twelve 'walls' instead of four, there's a lot more bathroom to clean. 3. Angular perfection 9×7 bathroom layout idea.

Find and save ideas about 10 x 12 master bath layout on Pinterest.

Master Bathroom Floor Plans 10×12 There less common bathroom flooring options that you'll still find used, such as laminates or hardwood, carpet, cork, or rubber. You can include a touch of color by making use of colored grout in between tiles or maybe by scattering brightly colored tiles in between plain whitish or cream ones.

10 X 12 Ft Bathroom - Photos & Ideas | Houzz

10 X 12 Ft Bathroom - Photos & Ideas | Houzz

Master Bathroom Floor Plans 10×12 There less common bathroom flooring options that you'll still find used, such as laminates or hardwood, carpet, cork, or rubber. You can include a touch of color by making use of colored grout in between tiles or maybe by scattering brightly colored tiles in between plain whitish or cream ones.

When designing a 10 x 12 bathroom floor plan, there are several popular configurations to consider: 1. Standard Rectangle Layout The most basic and space-efficient layout, with the toilet and sink placed along one wall, the shower and bathtub on the opposite wall, and the window centered for natural light. 2. L.

Find and save ideas about 10x12 bathroom on Pinterest.

This contemporary bathroom features an orange accent wall paired with black and white for a striking contrast. A white standalone tub with gold accents adds luxury. A light-colored rug, woven basket for towels, and beige slippers create a cozy atmosphere. Large windows let in natural light, enhancing the art-filled, functional space.

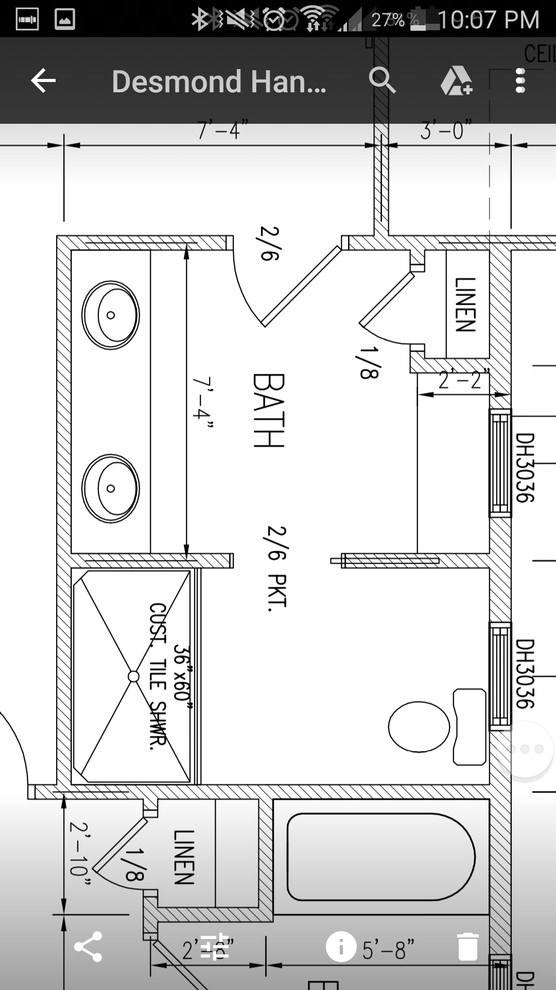
Help! Master Bathroom Layout! (10x12)

Help! Master bathroom layout! (10x12)

This bathroom transformed from a standard secondary bathroom to a ergonomic spa without impacting the functionality of the bedroom. This project was super fun, we were working inside of a guest bedroom, to create a functional, yet expansive bathroom.

When it comes to designing a 10x12 bathroom, the possibilities are endless! This versatile space can be transformed into a serene oasis with the right ideas and planning. Whether you're looking to maximize functionality or create a stylish retreat, these design concepts will inspire you to make the most of your bathroom layout. 1.

Length: 10 feet 6 inches Specifics: The shape of your bathroom is unusual, and it creates mini-alcoves for the sink, tub, and toilet. The door has ample room to swing without hitting or squeezing anything. Downside, with twelve 'walls' instead of four, there's a lot more bathroom to clean. 3. Angular perfection 9×7 bathroom layout idea.

Find and save ideas about 10 x 12 master bath layout on Pinterest.

10 X 12 Ft Bathroom - Photos & Ideas | Houzz

10 X 12 Ft Bathroom - Photos & Ideas | Houzz

This contemporary bathroom features an orange accent wall paired with black and white for a striking contrast. A white standalone tub with gold accents adds luxury. A light-colored rug, woven basket for towels, and beige slippers create a cozy atmosphere. Large windows let in natural light, enhancing the art-filled, functional space.

Find and save ideas about 10 x 12 master bath layout on Pinterest.

But even in a 10 x 12 bathroom, there are plenty of ways to create a functional and stylish space. Here are 10 floor plans to inspire your next bathroom remodel: 1. Single-Sink Vanity with Shower and Toilet This classic layout features a single-sink vanity along one wall, with a shower and toilet on the opposite wall.

Length: 10 feet 6 inches Specifics: The shape of your bathroom is unusual, and it creates mini-alcoves for the sink, tub, and toilet. The door has ample room to swing without hitting or squeezing anything. Downside, with twelve 'walls' instead of four, there's a lot more bathroom to clean. 3. Angular perfection 9×7 bathroom layout idea.

10 X 12 Ft Bathroom - Photos & Ideas | Houzz

10 X 12 Ft Bathroom - Photos & Ideas | Houzz

Length: 10 feet 6 inches Specifics: The shape of your bathroom is unusual, and it creates mini-alcoves for the sink, tub, and toilet. The door has ample room to swing without hitting or squeezing anything. Downside, with twelve 'walls' instead of four, there's a lot more bathroom to clean. 3. Angular perfection 9×7 bathroom layout idea.

This contemporary bathroom features an orange accent wall paired with black and white for a striking contrast. A white standalone tub with gold accents adds luxury. A light-colored rug, woven basket for towels, and beige slippers create a cozy atmosphere. Large windows let in natural light, enhancing the art-filled, functional space.

When designing a 10 x 12 bathroom floor plan, there are several popular configurations to consider: 1. Standard Rectangle Layout The most basic and space-efficient layout, with the toilet and sink placed along one wall, the shower and bathtub on the opposite wall, and the window centered for natural light. 2. L.

But even in a 10 x 12 bathroom, there are plenty of ways to create a functional and stylish space. Here are 10 floor plans to inspire your next bathroom remodel: 1. Single-Sink Vanity with Shower and Toilet This classic layout features a single-sink vanity along one wall, with a shower and toilet on the opposite wall.

10 X 12 Ft Bathroom - Photos & Ideas | Houzz

10 X 12 Ft Bathroom - Photos & Ideas | Houzz

These 9 space-saving 10x12 bathroom layouts with showers include well-designed floor plans for shower, tub, storage and vanity placement.

This bathroom transformed from a standard secondary bathroom to a ergonomic spa without impacting the functionality of the bedroom. This project was super fun, we were working inside of a guest bedroom, to create a functional, yet expansive bathroom.

When designing a 10 x 12 bathroom floor plan, there are several popular configurations to consider: 1. Standard Rectangle Layout The most basic and space-efficient layout, with the toilet and sink placed along one wall, the shower and bathtub on the opposite wall, and the window centered for natural light. 2. L.

Find and save ideas about 10x12 bathroom on Pinterest.

Help! Master Bathroom Layout! (10x12)

Help! Master bathroom layout! (10x12)

This contemporary bathroom features an orange accent wall paired with black and white for a striking contrast. A white standalone tub with gold accents adds luxury. A light-colored rug, woven basket for towels, and beige slippers create a cozy atmosphere. Large windows let in natural light, enhancing the art-filled, functional space.

Find and save ideas about 10 x 12 master bath layout on Pinterest.

Find and save ideas about 10x12 bathroom on Pinterest.

Length: 10 feet 6 inches Specifics: The shape of your bathroom is unusual, and it creates mini-alcoves for the sink, tub, and toilet. The door has ample room to swing without hitting or squeezing anything. Downside, with twelve 'walls' instead of four, there's a lot more bathroom to clean. 3. Angular perfection 9×7 bathroom layout idea.

10 X 12 Ft Bathroom - Photos & Ideas | Houzz

10 X 12 Ft Bathroom - Photos & Ideas | Houzz

When it comes to designing a 10x12 bathroom, the possibilities are endless! This versatile space can be transformed into a serene oasis with the right ideas and planning. Whether you're looking to maximize functionality or create a stylish retreat, these design concepts will inspire you to make the most of your bathroom layout. 1.

Length: 10 feet 6 inches Specifics: The shape of your bathroom is unusual, and it creates mini-alcoves for the sink, tub, and toilet. The door has ample room to swing without hitting or squeezing anything. Downside, with twelve 'walls' instead of four, there's a lot more bathroom to clean. 3. Angular perfection 9×7 bathroom layout idea.

But even in a 10 x 12 bathroom, there are plenty of ways to create a functional and stylish space. Here are 10 floor plans to inspire your next bathroom remodel: 1. Single-Sink Vanity with Shower and Toilet This classic layout features a single-sink vanity along one wall, with a shower and toilet on the opposite wall.

Master Bathroom Floor Plans 10×12 There less common bathroom flooring options that you'll still find used, such as laminates or hardwood, carpet, cork, or rubber. You can include a touch of color by making use of colored grout in between tiles or maybe by scattering brightly colored tiles in between plain whitish or cream ones.

10 X 12 Ft Bathroom - Photos & Ideas | Houzz

10 X 12 Ft Bathroom - Photos & Ideas | Houzz

These 9 space-saving 10x12 bathroom layouts with showers include well-designed floor plans for shower, tub, storage and vanity placement.

Find and save ideas about 10 x 12 master bath layout on Pinterest.

This contemporary bathroom features an orange accent wall paired with black and white for a striking contrast. A white standalone tub with gold accents adds luxury. A light-colored rug, woven basket for towels, and beige slippers create a cozy atmosphere. Large windows let in natural light, enhancing the art-filled, functional space.

This bathroom transformed from a standard secondary bathroom to a ergonomic spa without impacting the functionality of the bedroom. This project was super fun, we were working inside of a guest bedroom, to create a functional, yet expansive bathroom.

10 X 12 Ft Bathroom - Photos & Ideas | Houzz

10 X 12 Ft Bathroom - Photos & Ideas | Houzz

But even in a 10 x 12 bathroom, there are plenty of ways to create a functional and stylish space. Here are 10 floor plans to inspire your next bathroom remodel: 1. Single-Sink Vanity with Shower and Toilet This classic layout features a single-sink vanity along one wall, with a shower and toilet on the opposite wall.

Master Bathroom Floor Plans 10×12 There less common bathroom flooring options that you'll still find used, such as laminates or hardwood, carpet, cork, or rubber. You can include a touch of color by making use of colored grout in between tiles or maybe by scattering brightly colored tiles in between plain whitish or cream ones.

When it comes to designing a 10x12 bathroom, the possibilities are endless! This versatile space can be transformed into a serene oasis with the right ideas and planning. Whether you're looking to maximize functionality or create a stylish retreat, these design concepts will inspire you to make the most of your bathroom layout. 1.

When designing a 10 x 12 bathroom floor plan, there are several popular configurations to consider: 1. Standard Rectangle Layout The most basic and space-efficient layout, with the toilet and sink placed along one wall, the shower and bathtub on the opposite wall, and the window centered for natural light. 2. L.

When it comes to designing a 10x12 bathroom, the possibilities are endless! This versatile space can be transformed into a serene oasis with the right ideas and planning. Whether you're looking to maximize functionality or create a stylish retreat, these design concepts will inspire you to make the most of your bathroom layout. 1.

Find and save ideas about 10 x 12 master bath layout on Pinterest.

These 9 space-saving 10x12 bathroom layouts with showers include well-designed floor plans for shower, tub, storage and vanity placement.

Length: 10 feet 6 inches Specifics: The shape of your bathroom is unusual, and it creates mini-alcoves for the sink, tub, and toilet. The door has ample room to swing without hitting or squeezing anything. Downside, with twelve 'walls' instead of four, there's a lot more bathroom to clean. 3. Angular perfection 9×7 bathroom layout idea.

This bathroom transformed from a standard secondary bathroom to a ergonomic spa without impacting the functionality of the bedroom. This project was super fun, we were working inside of a guest bedroom, to create a functional, yet expansive bathroom.

Find and save ideas about 10x12 bathroom on Pinterest.

But even in a 10 x 12 bathroom, there are plenty of ways to create a functional and stylish space. Here are 10 floor plans to inspire your next bathroom remodel: 1. Single-Sink Vanity with Shower and Toilet This classic layout features a single-sink vanity along one wall, with a shower and toilet on the opposite wall.

This contemporary bathroom features an orange accent wall paired with black and white for a striking contrast. A white standalone tub with gold accents adds luxury. A light-colored rug, woven basket for towels, and beige slippers create a cozy atmosphere. Large windows let in natural light, enhancing the art-filled, functional space.

Master Bathroom Floor Plans 10×12 There less common bathroom flooring options that you'll still find used, such as laminates or hardwood, carpet, cork, or rubber. You can include a touch of color by making use of colored grout in between tiles or maybe by scattering brightly colored tiles in between plain whitish or cream ones.

When designing a 10 x 12 bathroom floor plan, there are several popular configurations to consider: 1. Standard Rectangle Layout The most basic and space-efficient layout, with the toilet and sink placed along one wall, the shower and bathtub on the opposite wall, and the window centered for natural light. 2. L.


Related Posts
Load Site Average 0,422 sec