Unisex Bathroom Designs . Let's dive into some creative unisex bathroom ideas that cater to diverse tastes while maximizing functionality. Learn about design, privacy solutions, accessibility, and cultural considerations for creating inclusive restroom spaces. Explore essential considerations and tips before planning a unisex bathroom. Explore creative unisex bathroom ideas that blend functionality and style for a welcoming, inclusive environment. Find and save ideas about unisex bathroom ideas on pinterest.
Drafthouse releases two possible designs for new bathrooms from www.kvue.com
Explore creative unisex bathroom ideas that blend functionality and style for a welcoming, inclusive environment. Find and save ideas about unisex bathroom ideas on pinterest. Learn about design, privacy solutions, accessibility, and cultural considerations for creating inclusive restroom spaces. Let's dive into some creative unisex bathroom ideas that cater to diverse tastes while maximizing functionality. Explore essential considerations and tips before planning a unisex bathroom. Get inspired for your space! They may have clear glass entryways or no door at all.
Drafthouse releases two possible designs for new bathrooms
They may have clear glass entryways or no door at all. Unisex Bathroom Designs Let's dive into some creative unisex bathroom ideas that cater to diverse tastes while maximizing functionality. Learn about design, privacy solutions, accessibility, and cultural considerations for creating inclusive restroom spaces. Find and save ideas about unisex bathroom ideas on pinterest. Explore creative unisex bathroom ideas that blend functionality and style for a welcoming, inclusive environment. Explore essential considerations and tips before planning a unisex bathroom.
image source : www.pinterest.com
unisex bathroom design Interiores comerciais, Vestiários pequenos Unisex Bathroom Designs Find and save ideas about unisex bathroom ideas on pinterest. Let's dive into some creative unisex bathroom ideas that cater to diverse tastes while maximizing functionality. They may have clear glass entryways or no door at all. Explore essential considerations and tips before planning a unisex bathroom. Learn about design, privacy solutions, accessibility, and cultural considerations for creating inclusive restroom. Unisex Bathroom Designs.
image source : shunshelter.com
Understanding The Concept Of Unisex Bathrooms A Definitive Guide Unisex Bathroom Designs They may have clear glass entryways or no door at all. Find and save ideas about unisex bathroom ideas on pinterest. Explore essential considerations and tips before planning a unisex bathroom. Learn about design, privacy solutions, accessibility, and cultural considerations for creating inclusive restroom spaces. Get inspired for your space! Explore creative unisex bathroom ideas that blend functionality and style. Unisex Bathroom Designs.
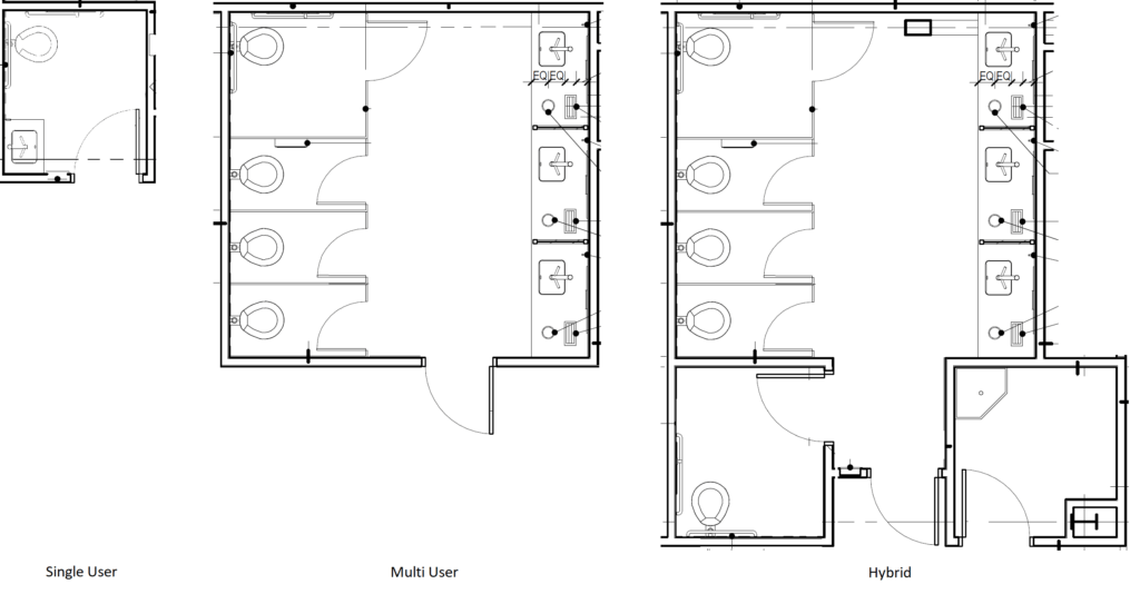
image source : ironwood-mfg.com
All Gender Bathroom Partition Layouts Unisex Bathroom Designs Let's dive into some creative unisex bathroom ideas that cater to diverse tastes while maximizing functionality. Find and save ideas about unisex bathroom ideas on pinterest. Get inspired for your space! Explore essential considerations and tips before planning a unisex bathroom. They may have clear glass entryways or no door at all. Explore creative unisex bathroom ideas that blend functionality. Unisex Bathroom Designs.
image source : ar.inspiredpencil.com
Unisex Bathroom Design Unisex Bathroom Designs Explore essential considerations and tips before planning a unisex bathroom. Find and save ideas about unisex bathroom ideas on pinterest. Get inspired for your space! They may have clear glass entryways or no door at all. Explore creative unisex bathroom ideas that blend functionality and style for a welcoming, inclusive environment. Let's dive into some creative unisex bathroom ideas that. Unisex Bathroom Designs.
image source : storage.googleapis.com
Ada Unisex Restroom Layout at Brandy Karen blog Unisex Bathroom Designs Learn about design, privacy solutions, accessibility, and cultural considerations for creating inclusive restroom spaces. Let's dive into some creative unisex bathroom ideas that cater to diverse tastes while maximizing functionality. Explore creative unisex bathroom ideas that blend functionality and style for a welcoming, inclusive environment. Find and save ideas about unisex bathroom ideas on pinterest. Explore essential considerations and tips. Unisex Bathroom Designs.
image source : www.dailymail.co.uk
The world's most Instagrammable bathrooms Daily Mail Online Unisex Bathroom Designs Explore creative unisex bathroom ideas that blend functionality and style for a welcoming, inclusive environment. Let's dive into some creative unisex bathroom ideas that cater to diverse tastes while maximizing functionality. Get inspired for your space! Learn about design, privacy solutions, accessibility, and cultural considerations for creating inclusive restroom spaces. Explore essential considerations and tips before planning a unisex bathroom.. Unisex Bathroom Designs.
image source : ar.inspiredpencil.com
Unisex Bathroom Design Unisex Bathroom Designs Explore creative unisex bathroom ideas that blend functionality and style for a welcoming, inclusive environment. Explore essential considerations and tips before planning a unisex bathroom. Get inspired for your space! They may have clear glass entryways or no door at all. Find and save ideas about unisex bathroom ideas on pinterest. Let's dive into some creative unisex bathroom ideas that. Unisex Bathroom Designs.
image source : ar.inspiredpencil.com
Unisex Bathroom Design Unisex Bathroom Designs Get inspired for your space! Explore essential considerations and tips before planning a unisex bathroom. Let's dive into some creative unisex bathroom ideas that cater to diverse tastes while maximizing functionality. They may have clear glass entryways or no door at all. Explore creative unisex bathroom ideas that blend functionality and style for a welcoming, inclusive environment. Learn about design,. Unisex Bathroom Designs.
image source : ar.inspiredpencil.com
Unisex Bathroom Design Unisex Bathroom Designs Learn about design, privacy solutions, accessibility, and cultural considerations for creating inclusive restroom spaces. Explore essential considerations and tips before planning a unisex bathroom. They may have clear glass entryways or no door at all. Explore creative unisex bathroom ideas that blend functionality and style for a welcoming, inclusive environment. Get inspired for your space! Find and save ideas about. Unisex Bathroom Designs.
image source : thesocietypages.org
A better public bathroom by design Graphic Sociology Unisex Bathroom Designs Get inspired for your space! They may have clear glass entryways or no door at all. Find and save ideas about unisex bathroom ideas on pinterest. Learn about design, privacy solutions, accessibility, and cultural considerations for creating inclusive restroom spaces. Explore creative unisex bathroom ideas that blend functionality and style for a welcoming, inclusive environment. Let's dive into some creative. Unisex Bathroom Designs.
image source : ar.inspiredpencil.com
Unisex Bathroom Design Unisex Bathroom Designs They may have clear glass entryways or no door at all. Get inspired for your space! Explore creative unisex bathroom ideas that blend functionality and style for a welcoming, inclusive environment. Let's dive into some creative unisex bathroom ideas that cater to diverse tastes while maximizing functionality. Find and save ideas about unisex bathroom ideas on pinterest. Learn about design,. Unisex Bathroom Designs.
image source : nessbloguje.blogspot.com
school bathroom design Google Search Restroom design, Public Unisex Bathroom Designs Get inspired for your space! Learn about design, privacy solutions, accessibility, and cultural considerations for creating inclusive restroom spaces. Let's dive into some creative unisex bathroom ideas that cater to diverse tastes while maximizing functionality. Explore essential considerations and tips before planning a unisex bathroom. They may have clear glass entryways or no door at all. Find and save ideas. Unisex Bathroom Designs.
image source : ar.inspiredpencil.com
Unisex Bathroom Design Unisex Bathroom Designs Explore essential considerations and tips before planning a unisex bathroom. They may have clear glass entryways or no door at all. Let's dive into some creative unisex bathroom ideas that cater to diverse tastes while maximizing functionality. Learn about design, privacy solutions, accessibility, and cultural considerations for creating inclusive restroom spaces. Explore creative unisex bathroom ideas that blend functionality and. Unisex Bathroom Designs.
image source : ar.inspiredpencil.com
Unisex Bathroom Design Unisex Bathroom Designs Explore creative unisex bathroom ideas that blend functionality and style for a welcoming, inclusive environment. Explore essential considerations and tips before planning a unisex bathroom. Get inspired for your space! Learn about design, privacy solutions, accessibility, and cultural considerations for creating inclusive restroom spaces. Find and save ideas about unisex bathroom ideas on pinterest. Let's dive into some creative unisex. Unisex Bathroom Designs.
image source : www.cbc.ca
Yukon government plans for its 1st multiple stall, genderinclusive Unisex Bathroom Designs Let's dive into some creative unisex bathroom ideas that cater to diverse tastes while maximizing functionality. They may have clear glass entryways or no door at all. Explore essential considerations and tips before planning a unisex bathroom. Find and save ideas about unisex bathroom ideas on pinterest. Explore creative unisex bathroom ideas that blend functionality and style for a welcoming,. Unisex Bathroom Designs.
image source : www.archdaily.com
Designing around Debate The GenderNeutral Bathroom ArchDaily Unisex Bathroom Designs Let's dive into some creative unisex bathroom ideas that cater to diverse tastes while maximizing functionality. Learn about design, privacy solutions, accessibility, and cultural considerations for creating inclusive restroom spaces. Get inspired for your space! Find and save ideas about unisex bathroom ideas on pinterest. Explore essential considerations and tips before planning a unisex bathroom. They may have clear glass. Unisex Bathroom Designs.
image source : www.youtube.com
Creative Unisex kids bathroom ideas YouTube Unisex Bathroom Designs Explore creative unisex bathroom ideas that blend functionality and style for a welcoming, inclusive environment. Learn about design, privacy solutions, accessibility, and cultural considerations for creating inclusive restroom spaces. Explore essential considerations and tips before planning a unisex bathroom. They may have clear glass entryways or no door at all. Let's dive into some creative unisex bathroom ideas that cater. Unisex Bathroom Designs.
image source : www.kvue.com
Drafthouse releases two possible designs for new bathrooms Unisex Bathroom Designs They may have clear glass entryways or no door at all. Find and save ideas about unisex bathroom ideas on pinterest. Learn about design, privacy solutions, accessibility, and cultural considerations for creating inclusive restroom spaces. Explore creative unisex bathroom ideas that blend functionality and style for a welcoming, inclusive environment. Explore essential considerations and tips before planning a unisex bathroom.. Unisex Bathroom Designs.
image source : www.saniflowcorp.com
Unisex Restrooms Pro or con? Blog of Saniflow Corporation Unisex Bathroom Designs Let's dive into some creative unisex bathroom ideas that cater to diverse tastes while maximizing functionality. They may have clear glass entryways or no door at all. Explore creative unisex bathroom ideas that blend functionality and style for a welcoming, inclusive environment. Explore essential considerations and tips before planning a unisex bathroom. Get inspired for your space! Learn about design,. Unisex Bathroom Designs.
image source : www.theodysseyonline.com
Unisex Bathrooms Are A Great Idea, But Let's Set Some Ground Rules Unisex Bathroom Designs They may have clear glass entryways or no door at all. Explore creative unisex bathroom ideas that blend functionality and style for a welcoming, inclusive environment. Get inspired for your space! Learn about design, privacy solutions, accessibility, and cultural considerations for creating inclusive restroom spaces. Find and save ideas about unisex bathroom ideas on pinterest. Let's dive into some creative. Unisex Bathroom Designs.
image source : ar.inspiredpencil.com
Unisex Bathroom Design Unisex Bathroom Designs Explore creative unisex bathroom ideas that blend functionality and style for a welcoming, inclusive environment. Get inspired for your space! Learn about design, privacy solutions, accessibility, and cultural considerations for creating inclusive restroom spaces. Let's dive into some creative unisex bathroom ideas that cater to diverse tastes while maximizing functionality. They may have clear glass entryways or no door at. Unisex Bathroom Designs.
image source : www.alamy.com
Unisex bathroom hires stock photography and images Alamy Unisex Bathroom Designs Let's dive into some creative unisex bathroom ideas that cater to diverse tastes while maximizing functionality. Explore creative unisex bathroom ideas that blend functionality and style for a welcoming, inclusive environment. Learn about design, privacy solutions, accessibility, and cultural considerations for creating inclusive restroom spaces. They may have clear glass entryways or no door at all. Find and save ideas. Unisex Bathroom Designs.
image source : ar.inspiredpencil.com
Unisex Bathroom Design Unisex Bathroom Designs They may have clear glass entryways or no door at all. Find and save ideas about unisex bathroom ideas on pinterest. Explore creative unisex bathroom ideas that blend functionality and style for a welcoming, inclusive environment. Learn about design, privacy solutions, accessibility, and cultural considerations for creating inclusive restroom spaces. Explore essential considerations and tips before planning a unisex bathroom.. Unisex Bathroom Designs.
image source : ar.inspiredpencil.com
Unisex Bathroom Plan Unisex Bathroom Designs Learn about design, privacy solutions, accessibility, and cultural considerations for creating inclusive restroom spaces. Explore creative unisex bathroom ideas that blend functionality and style for a welcoming, inclusive environment. Get inspired for your space! They may have clear glass entryways or no door at all. Find and save ideas about unisex bathroom ideas on pinterest. Let's dive into some creative. Unisex Bathroom Designs.
image source : www.kgw.com
Genderneutral restrooms coming to some Portland Schools Unisex Bathroom Designs Find and save ideas about unisex bathroom ideas on pinterest. Learn about design, privacy solutions, accessibility, and cultural considerations for creating inclusive restroom spaces. Explore essential considerations and tips before planning a unisex bathroom. They may have clear glass entryways or no door at all. Let's dive into some creative unisex bathroom ideas that cater to diverse tastes while maximizing. Unisex Bathroom Designs.
image source : ar.inspiredpencil.com
Unisex Bathroom Design Unisex Bathroom Designs Let's dive into some creative unisex bathroom ideas that cater to diverse tastes while maximizing functionality. Get inspired for your space! They may have clear glass entryways or no door at all. Learn about design, privacy solutions, accessibility, and cultural considerations for creating inclusive restroom spaces. Explore essential considerations and tips before planning a unisex bathroom. Find and save ideas. Unisex Bathroom Designs.
image source : www.architectmagazine.com
Unstalled Inclusive Bathroom Design Architect Magazine Unisex Bathroom Designs Let's dive into some creative unisex bathroom ideas that cater to diverse tastes while maximizing functionality. They may have clear glass entryways or no door at all. Explore creative unisex bathroom ideas that blend functionality and style for a welcoming, inclusive environment. Get inspired for your space! Explore essential considerations and tips before planning a unisex bathroom. Learn about design,. Unisex Bathroom Designs.
image source : ar.inspiredpencil.com
Unisex Bathroom Design Unisex Bathroom Designs Learn about design, privacy solutions, accessibility, and cultural considerations for creating inclusive restroom spaces. Explore essential considerations and tips before planning a unisex bathroom. Find and save ideas about unisex bathroom ideas on pinterest. Explore creative unisex bathroom ideas that blend functionality and style for a welcoming, inclusive environment. Let's dive into some creative unisex bathroom ideas that cater to. Unisex Bathroom Designs.
image source : ar.inspiredpencil.com
Unisex Bathroom Plan Unisex Bathroom Designs Learn about design, privacy solutions, accessibility, and cultural considerations for creating inclusive restroom spaces. Get inspired for your space! Explore creative unisex bathroom ideas that blend functionality and style for a welcoming, inclusive environment. They may have clear glass entryways or no door at all. Find and save ideas about unisex bathroom ideas on pinterest. Explore essential considerations and tips. Unisex Bathroom Designs.
image source : www.pinterest.jp
unisex bathroom Ada Bathroom, Unisex Bathroom, Bathroom Doors, Bathroom Unisex Bathroom Designs Explore creative unisex bathroom ideas that blend functionality and style for a welcoming, inclusive environment. Find and save ideas about unisex bathroom ideas on pinterest. Let's dive into some creative unisex bathroom ideas that cater to diverse tastes while maximizing functionality. Learn about design, privacy solutions, accessibility, and cultural considerations for creating inclusive restroom spaces. They may have clear glass. Unisex Bathroom Designs.
image source : www.pinterest.com
Пин на доске 厕所 Unisex Bathroom Designs Explore essential considerations and tips before planning a unisex bathroom. Let's dive into some creative unisex bathroom ideas that cater to diverse tastes while maximizing functionality. They may have clear glass entryways or no door at all. Get inspired for your space! Find and save ideas about unisex bathroom ideas on pinterest. Learn about design, privacy solutions, accessibility, and cultural. Unisex Bathroom Designs.
image source : ar.inspiredpencil.com
Unisex Bathroom Design Unisex Bathroom Designs Get inspired for your space! Explore essential considerations and tips before planning a unisex bathroom. Find and save ideas about unisex bathroom ideas on pinterest. Let's dive into some creative unisex bathroom ideas that cater to diverse tastes while maximizing functionality. Explore creative unisex bathroom ideas that blend functionality and style for a welcoming, inclusive environment. Learn about design, privacy. Unisex Bathroom Designs.
image source : www.pinterest.ph
unisex public toilet design Google Search Restroom design, Washroom Unisex Bathroom Designs Get inspired for your space! Find and save ideas about unisex bathroom ideas on pinterest. Explore creative unisex bathroom ideas that blend functionality and style for a welcoming, inclusive environment. Learn about design, privacy solutions, accessibility, and cultural considerations for creating inclusive restroom spaces. They may have clear glass entryways or no door at all. Explore essential considerations and tips. Unisex Bathroom Designs.
image source : www.pinterest.co.uk
Unisex washroom design using Expresslay Plus at St.Teilos High School Unisex Bathroom Designs Learn about design, privacy solutions, accessibility, and cultural considerations for creating inclusive restroom spaces. Explore creative unisex bathroom ideas that blend functionality and style for a welcoming, inclusive environment. Get inspired for your space! They may have clear glass entryways or no door at all. Explore essential considerations and tips before planning a unisex bathroom. Let's dive into some creative. Unisex Bathroom Designs.
image source : www.sloan.com
Gender Inclusive Restrooms—When They Make Sense, and How to Do Them Unisex Bathroom Designs Let's dive into some creative unisex bathroom ideas that cater to diverse tastes while maximizing functionality. Explore creative unisex bathroom ideas that blend functionality and style for a welcoming, inclusive environment. Explore essential considerations and tips before planning a unisex bathroom. Find and save ideas about unisex bathroom ideas on pinterest. Learn about design, privacy solutions, accessibility, and cultural considerations. Unisex Bathroom Designs.