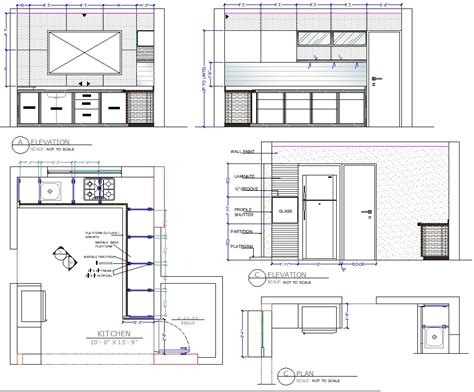
Working Drawing Of Kitchen . Drawing labels, details, and other text information extracted from the cad file: The document contains a working drawing for a kitchen layout, detailing various dimensions and elevations.
Kitchen Detail DWG Detail For AutoCAD • Designs CAD, 49 OFF from new.albanianuniversity.edu.al
The document contains a working drawing for a kitchen layout, detailing various dimensions and elevations. Detailed working drawing of the kitchen of a residential block. Detail wall elevation of the kitchen with dimensions and material description.
-->
Kitchen Detail DWG Detail For AutoCAD • Designs CAD, 49 OFF
Detailed working drawing of the kitchen of a residential block. Detail plan with furniture, section line, dimensions and sectional elevation with drawers, wall unit, sink sand platform section and other detail. The document contains a working drawing for a kitchen layout, detailing various dimensions and elevations. It includes specifications for niches, a sink, a hob, and a chimney, along with the project title and designer's information.
-->
Source: www.behance.net
Working Drawing Of Kitchen - Constructive development of a kitchen design for a home or apartment. Drawing labels, details, and other text information extracted from the cad file: Detail wall elevation of the kitchen with dimensions and material description. Detailed working drawing of the kitchen of a residential block. It includes specifications for niches, a sink, a hob, and a chimney, along with the project.
Source: cadbull.com
Working Drawing Of Kitchen - Top view layout plan of kitchen with dimensions. Detail wall elevation of the kitchen with dimensions and material description. Constructive development of a kitchen design for a home or apartment. Kitchen working detail drawing in dwg file. Drawing labels, details, and other text information extracted from the cad file:
Source: cadbull.com
Working Drawing Of Kitchen - Detail plan with furniture, section line, dimensions and sectional elevation with drawers, wall unit, sink sand platform section and other detail. Top view layout plan of kitchen with dimensions. Detail wall elevation of the kitchen with dimensions and material description. Detailed working drawing of the kitchen of a residential block. Kitchen working detail drawing in dwg file.
Source: cadbull.com
Working Drawing Of Kitchen - Constructive development of a kitchen design for a home or apartment. Kitchen working detail drawing in dwg file. It includes specifications for niches, a sink, a hob, and a chimney, along with the project title and designer's information. Drawing labels, details, and other text information extracted from the cad file: Detail plan with furniture, section line, dimensions and sectional elevation.
Source: cadbull.com
Working Drawing Of Kitchen - Detail plan with furniture, section line, dimensions and sectional elevation with drawers, wall unit, sink sand platform section and other detail. Kitchen working detail drawing in dwg file. It includes specifications for niches, a sink, a hob, and a chimney, along with the project title and designer's information. Constructive development of a kitchen design for a home or apartment. Detailed.
Source: www.behance.net
Working Drawing Of Kitchen - Detail plan with furniture, section line, dimensions and sectional elevation with drawers, wall unit, sink sand platform section and other detail. Kitchen working detail drawing in dwg file. Drawing labels, details, and other text information extracted from the cad file: The document contains a working drawing for a kitchen layout, detailing various dimensions and elevations. Constructive development of a kitchen.
Source: cadbull.com
Working Drawing Of Kitchen - Constructive development of a kitchen design for a home or apartment. The document contains a working drawing for a kitchen layout, detailing various dimensions and elevations. Detailed working drawing of the kitchen of a residential block. Detail wall elevation of the kitchen with dimensions and material description. It includes specifications for niches, a sink, a hob, and a chimney, along.
Source: dwgshare.com
Working Drawing Of Kitchen - Constructive development of a kitchen design for a home or apartment. Kitchen working detail drawing in dwg file. Top view layout plan of kitchen with dimensions. It includes specifications for niches, a sink, a hob, and a chimney, along with the project title and designer's information. Detailed working drawing of the kitchen of a residential block.
Source: in.pinterest.com
Working Drawing Of Kitchen - The document contains a working drawing for a kitchen layout, detailing various dimensions and elevations. Top view layout plan of kitchen with dimensions. Kitchen working detail drawing in dwg file. Constructive development of a kitchen design for a home or apartment. Detailed working drawing of the kitchen of a residential block.
Source: cadbull.com
Working Drawing Of Kitchen - Kitchen working detail drawing in dwg file. Constructive development of a kitchen design for a home or apartment. Drawing labels, details, and other text information extracted from the cad file: It includes specifications for niches, a sink, a hob, and a chimney, along with the project title and designer's information. Top view layout plan of kitchen with dimensions.
Source: www.youtube.com
Working Drawing Of Kitchen - Drawing labels, details, and other text information extracted from the cad file: Kitchen working detail drawing in dwg file. Detail wall elevation of the kitchen with dimensions and material description. Top view layout plan of kitchen with dimensions. It includes specifications for niches, a sink, a hob, and a chimney, along with the project title and designer's information.
Source: cadbull.com
Working Drawing Of Kitchen - Detail wall elevation of the kitchen with dimensions and material description. Constructive development of a kitchen design for a home or apartment. Detail plan with furniture, section line, dimensions and sectional elevation with drawers, wall unit, sink sand platform section and other detail. Kitchen working detail drawing in dwg file. The document contains a working drawing for a kitchen layout,.
Source: new.albanianuniversity.edu.al
Working Drawing Of Kitchen - Drawing labels, details, and other text information extracted from the cad file: Detail plan with furniture, section line, dimensions and sectional elevation with drawers, wall unit, sink sand platform section and other detail. Detail wall elevation of the kitchen with dimensions and material description. The document contains a working drawing for a kitchen layout, detailing various dimensions and elevations. It.
Source: www.reeveandco.com
Working Drawing Of Kitchen - Detailed working drawing of the kitchen of a residential block. Detail wall elevation of the kitchen with dimensions and material description. Top view layout plan of kitchen with dimensions. It includes specifications for niches, a sink, a hob, and a chimney, along with the project title and designer's information. Constructive development of a kitchen design for a home or apartment.
Source: cadbull.com
Working Drawing Of Kitchen - It includes specifications for niches, a sink, a hob, and a chimney, along with the project title and designer's information. Detail plan with furniture, section line, dimensions and sectional elevation with drawers, wall unit, sink sand platform section and other detail. Top view layout plan of kitchen with dimensions. Kitchen working detail drawing in dwg file. Drawing labels, details, and.