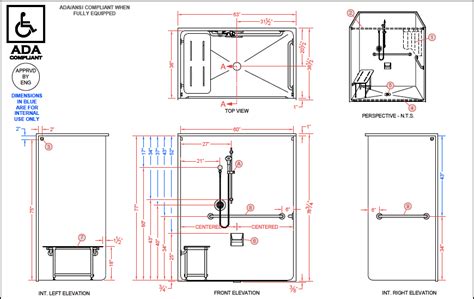
Ada Shower Dimensions . The diagram at left shows how the ada required dimensions create an environment that is accessible to anyone. What is the minimum clear floor.
Chapter 6 Bathing Rooms from www.access-board.gov
Key dimensions include minimum clear floor space, turning radii, fixture clearances, and sink placement. The diagram at left shows how the ada required dimensions create an environment that is accessible to anyone. Section 608.2 covers the current ada standards for the size and clearances of shower compartments.
-->
Chapter 6 Bathing Rooms
Our guide covers everything you need to know about standard shower dimensions, including common sizes for different shower. With the help of this handy guide, you’ll have a better grasp of ada shower requirements, as well as things to take into consideration for overall great. What is the minimum clear floor. The diagram at left shows how the ada required dimensions create an environment that is accessible to anyone.
-->
Source: designingidea.com
Ada Shower Dimensions - To ensure safety and to provide the best possible experience, it is important to consider ada shower dimensions. With the help of this handy guide, you’ll have a better grasp of ada shower requirements, as well as things to take into consideration for overall great. Our guide covers everything you need to know about standard shower dimensions, including common sizes.
Source: www.pinterest.es
Ada Shower Dimensions - Key dimensions include minimum clear floor space, turning radii, fixture clearances, and sink placement. To ensure safety and to provide the best possible experience, it is important to consider ada shower dimensions. What is the minimum clear floor. The diagram at left shows how the ada required dimensions create an environment that is accessible to anyone. With the help of.
Source: www.pinterest.com
Ada Shower Dimensions - The diagram at left shows how the ada required dimensions create an environment that is accessible to anyone. These requirements may be change. To ensure safety and to provide the best possible experience, it is important to consider ada shower dimensions. Key dimensions include minimum clear floor space, turning radii, fixture clearances, and sink placement. With the help of this.
Source: showertype.com
Ada Shower Dimensions - To ensure safety and to provide the best possible experience, it is important to consider ada shower dimensions. Section 608.2 covers the current ada standards for the size and clearances of shower compartments. These requirements may be change. With the help of this handy guide, you’ll have a better grasp of ada shower requirements, as well as things to take.
Source: www.pinterest.com
Ada Shower Dimensions - Section 608.2 covers the current ada standards for the size and clearances of shower compartments. With the help of this handy guide, you’ll have a better grasp of ada shower requirements, as well as things to take into consideration for overall great. Our guide covers everything you need to know about standard shower dimensions, including common sizes for different shower..
Source: viewfloor.co
Ada Shower Dimensions - With the help of this handy guide, you’ll have a better grasp of ada shower requirements, as well as things to take into consideration for overall great. What is the minimum clear floor. Section 608.2 covers the current ada standards for the size and clearances of shower compartments. Key dimensions include minimum clear floor space, turning radii, fixture clearances, and.
Source: showertype.com
Ada Shower Dimensions - With the help of this handy guide, you’ll have a better grasp of ada shower requirements, as well as things to take into consideration for overall great. Our guide covers everything you need to know about standard shower dimensions, including common sizes for different shower. The diagram at left shows how the ada required dimensions create an environment that is.
Source: www.pinterest.nz
Ada Shower Dimensions - These requirements may be change. Our guide covers everything you need to know about standard shower dimensions, including common sizes for different shower. What is the minimum clear floor. The diagram at left shows how the ada required dimensions create an environment that is accessible to anyone. To ensure safety and to provide the best possible experience, it is important.
Source: www.congress-intercultural.eu
Ada Shower Dimensions - Section 608.2 covers the current ada standards for the size and clearances of shower compartments. Key dimensions include minimum clear floor space, turning radii, fixture clearances, and sink placement. The diagram at left shows how the ada required dimensions create an environment that is accessible to anyone. What is the minimum clear floor. Our guide covers everything you need to.
Source: www.barrierfree.com
Ada Shower Dimensions - Key dimensions include minimum clear floor space, turning radii, fixture clearances, and sink placement. What is the minimum clear floor. The diagram at left shows how the ada required dimensions create an environment that is accessible to anyone. These requirements may be change. With the help of this handy guide, you’ll have a better grasp of ada shower requirements, as.
Source: www.pinterest.com
Ada Shower Dimensions - Key dimensions include minimum clear floor space, turning radii, fixture clearances, and sink placement. Section 608.2 covers the current ada standards for the size and clearances of shower compartments. With the help of this handy guide, you’ll have a better grasp of ada shower requirements, as well as things to take into consideration for overall great. What is the minimum.
Source: engineeringdiscoveries.com
Ada Shower Dimensions - With the help of this handy guide, you’ll have a better grasp of ada shower requirements, as well as things to take into consideration for overall great. The diagram at left shows how the ada required dimensions create an environment that is accessible to anyone. What is the minimum clear floor. Key dimensions include minimum clear floor space, turning radii,.
Source: viewfloor.co
Ada Shower Dimensions - To ensure safety and to provide the best possible experience, it is important to consider ada shower dimensions. Section 608.2 covers the current ada standards for the size and clearances of shower compartments. With the help of this handy guide, you’ll have a better grasp of ada shower requirements, as well as things to take into consideration for overall great..
Source: designingidea.com
Ada Shower Dimensions - Section 608.2 covers the current ada standards for the size and clearances of shower compartments. To ensure safety and to provide the best possible experience, it is important to consider ada shower dimensions. What is the minimum clear floor. Key dimensions include minimum clear floor space, turning radii, fixture clearances, and sink placement. The diagram at left shows how the.
Source: www.access-board.gov
Ada Shower Dimensions - Section 608.2 covers the current ada standards for the size and clearances of shower compartments. With the help of this handy guide, you’ll have a better grasp of ada shower requirements, as well as things to take into consideration for overall great. Key dimensions include minimum clear floor space, turning radii, fixture clearances, and sink placement. What is the minimum.
Source: www.ada-handicapped-showers.com
Ada Shower Dimensions - With the help of this handy guide, you’ll have a better grasp of ada shower requirements, as well as things to take into consideration for overall great. Key dimensions include minimum clear floor space, turning radii, fixture clearances, and sink placement. The diagram at left shows how the ada required dimensions create an environment that is accessible to anyone. These.
Source: www.pinterest.com
Ada Shower Dimensions - These requirements may be change. Section 608.2 covers the current ada standards for the size and clearances of shower compartments. What is the minimum clear floor. To ensure safety and to provide the best possible experience, it is important to consider ada shower dimensions. The diagram at left shows how the ada required dimensions create an environment that is accessible.
Source: exosracht.blob.core.windows.net
Ada Shower Dimensions - The diagram at left shows how the ada required dimensions create an environment that is accessible to anyone. Our guide covers everything you need to know about standard shower dimensions, including common sizes for different shower. To ensure safety and to provide the best possible experience, it is important to consider ada shower dimensions. These requirements may be change. Key.