Elevator Floor Plan . Shows the location of the elevator shaft, elevator doors on each floor, and connecting pathways. You can download cad drawings, bim models, or written specifications for your project.
from
It contains a capacity for four people. Browse through 1198 results of free cad models and blocks for your design projects. A residential elevator technical drawing includes the following main components:
-->
Download free cad drawings of residential elevator technical designs. Elevators, or lifts, are vertical transportation systems used in buildings to move people and goods between different floors. You can download cad drawings, bim models, or written specifications for your project. It contains a capacity for four people.
-->
Source: mungfali.com
Elevator Floor Plan - You can download cad drawings, bim models, or written specifications for your project. It contains a capacity for four people. Learn how to create and interpret elevator floor plans, which are detailed diagrams. Their layouts vary based on building type and usage. A residential elevator technical drawing includes the following main components:
Source: mavink.com
Elevator Floor Plan - You can download cad drawings, bim models, or written specifications for your project. Find and download various autocad files of lifts, elevators, escalators and travelators in plan and elevation view. Download free cad drawings of residential elevator technical designs. Elevators, or lifts, are vertical transportation systems used in buildings to move people and goods between different floors. Browse through 1198.
Source:
Elevator Floor Plan - Schindler plan helps you configure and design your elevator or escalator in minutes. Learn how to plan the best elevator solution for your building with this handbook from kone, a global. Browse through 1198 results of free cad models and blocks for your design projects. It contains a capacity for four people. Download free cad drawings of residential elevator technical.
Source: idighardware.com
Elevator Floor Plan - You can download cad drawings, bim models, or written specifications for your project. Learn how to create and interpret elevator floor plans, which are detailed diagrams. A residential elevator technical drawing includes the following main components: Development of an elevator, details on the floor plan with dimensions. Browse through 1198 results of free cad models and blocks for your design.
Source:
Elevator Floor Plan - It contains a capacity for four people. Their layouts vary based on building type and usage. You can download cad drawings, bim models, or written specifications for your project. Find and download various autocad files of lifts, elevators, escalators and travelators in plan and elevation view. Elevators, or lifts, are vertical transportation systems used in buildings to move people and.
Source:
Elevator Floor Plan - Browse through 1198 results of free cad models and blocks for your design projects. Find and download various autocad files of lifts, elevators, escalators and travelators in plan and elevation view. Shows the location of the elevator shaft, elevator doors on each floor, and connecting pathways. Download free cad drawings of residential elevator technical designs. Schindler plan helps you configure.
Source: www.pinterest.com
Elevator Floor Plan - Development of an elevator, details on the floor plan with dimensions. Elevators, or lifts, are vertical transportation systems used in buildings to move people and goods between different floors. Download free cad drawings of residential elevator technical designs. It includes details about the project title, location, and the roles of various individuals involved in the. Their layouts vary based on.
Source: www.homenish.com
Elevator Floor Plan - You can download cad drawings, bim models, or written specifications for your project. It contains a capacity for four people. Download free cad drawings of residential elevator technical designs. Learn how to plan the best elevator solution for your building with this handbook from kone, a global. Learn how to create and interpret elevator floor plans, which are detailed diagrams.
Source:
Elevator Floor Plan - It includes details about the project title, location, and the roles of various individuals involved in the. Learn how to plan the best elevator solution for your building with this handbook from kone, a global. Download free cad drawings of residential elevator technical designs. Browse through 1198 results of free cad models and blocks for your design projects. Find and.
Source:
Elevator Floor Plan - Their layouts vary based on building type and usage. A residential elevator technical drawing includes the following main components: Shows the location of the elevator shaft, elevator doors on each floor, and connecting pathways. It includes details about the project title, location, and the roles of various individuals involved in the. Schindler plan helps you configure and design your elevator.
Source:
Elevator Floor Plan - A residential elevator technical drawing includes the following main components: Learn how to create and interpret elevator floor plans, which are detailed diagrams. It contains a capacity for four people. Shows the location of the elevator shaft, elevator doors on each floor, and connecting pathways. Schindler plan helps you configure and design your elevator or escalator in minutes.
Source:
Elevator Floor Plan - Learn how to plan the best elevator solution for your building with this handbook from kone, a global. Download free cad drawings of residential elevator technical designs. Shows the location of the elevator shaft, elevator doors on each floor, and connecting pathways. It includes details about the project title, location, and the roles of various individuals involved in the. You.
Source: paintingvalley.com
Elevator Floor Plan - Learn how to create and interpret elevator floor plans, which are detailed diagrams. Learn how to plan the best elevator solution for your building with this handbook from kone, a global. It contains a capacity for four people. You can download cad drawings, bim models, or written specifications for your project. A residential elevator technical drawing includes the following main.
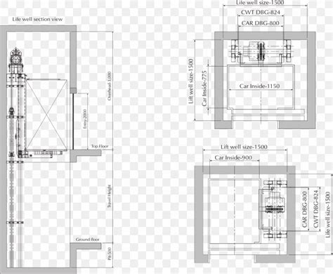
Source: www.fuji-elevator.com.tw
Elevator Floor Plan - Learn how to plan the best elevator solution for your building with this handbook from kone, a global. Browse through 1198 results of free cad models and blocks for your design projects. Their layouts vary based on building type and usage. Schindler plan helps you configure and design your elevator or escalator in minutes. Elevators, or lifts, are vertical transportation.
Source:
Elevator Floor Plan - Learn how to plan the best elevator solution for your building with this handbook from kone, a global. Development of an elevator, details on the floor plan with dimensions. You can download cad drawings, bim models, or written specifications for your project. A residential elevator technical drawing includes the following main components: It contains a capacity for four people.
Source:
Elevator Floor Plan - Find and download various autocad files of lifts, elevators, escalators and travelators in plan and elevation view. Browse through 1198 results of free cad models and blocks for your design projects. Download free cad drawings of residential elevator technical designs. Their layouts vary based on building type and usage. Shows the location of the elevator shaft, elevator doors on each.
Source: viewfloor.co
Elevator Floor Plan - Download free cad drawings of residential elevator technical designs. It includes details about the project title, location, and the roles of various individuals involved in the. You can download cad drawings, bim models, or written specifications for your project. Development of an elevator, details on the floor plan with dimensions. Schindler plan helps you configure and design your elevator or.
Source:
Elevator Floor Plan - Schindler plan helps you configure and design your elevator or escalator in minutes. Learn how to create and interpret elevator floor plans, which are detailed diagrams. Shows the location of the elevator shaft, elevator doors on each floor, and connecting pathways. Find and download various autocad files of lifts, elevators, escalators and travelators in plan and elevation view. Learn how.