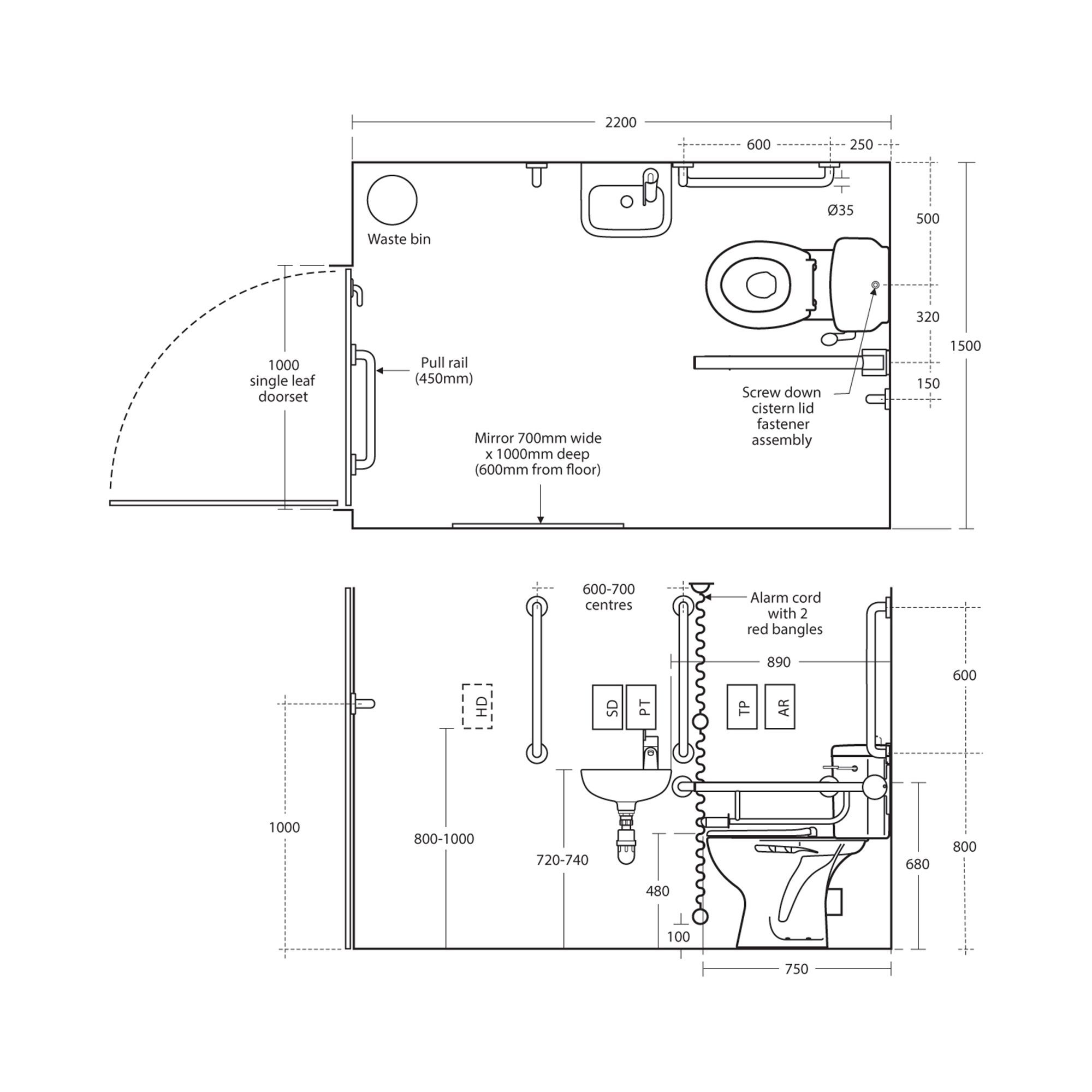
Toilet Dimensions For Disabled .  how big is an accessible (disabled) toilet.   figure 43 details a floor plan of an accessible toilet and shows the installation location of the toilet pan (i.e.   what does the dda say about accessible toilet dimensions?   toilet paper should be located between a least 24 (610 mm) and 42 (1070 mm) from the back wall and at least 18 above the finished floor, per the. A summary of key points is. Here, you can see the extensive use of grab rails around the bathroom sink,. The typical room size for an accessible toilet is at least 1900 x 2700mm or 2330. One size does not fit all!  below is a basic floor plan and dimensions for your disabled bathroom design. One of the most common questions we get asked in our. As 1428.1 has extensive detail on the design of accessible toilets.
        
         
         
        from exyshludx.blob.core.windows.net 
     
        
        Here, you can see the extensive use of grab rails around the bathroom sink,. One size does not fit all!  how big is an accessible (disabled) toilet. One of the most common questions we get asked in our. As 1428.1 has extensive detail on the design of accessible toilets.   what does the dda say about accessible toilet dimensions?   toilet paper should be located between a least 24 (610 mm) and 42 (1070 mm) from the back wall and at least 18 above the finished floor, per the. The typical room size for an accessible toilet is at least 1900 x 2700mm or 2330.  below is a basic floor plan and dimensions for your disabled bathroom design.   figure 43 details a floor plan of an accessible toilet and shows the installation location of the toilet pan (i.e.
    
    	
            
	
		 
	 
         
    Standard Toilet Door Size Singapore at John Shockley blog 
    Toilet Dimensions For Disabled  As 1428.1 has extensive detail on the design of accessible toilets.   what does the dda say about accessible toilet dimensions?   figure 43 details a floor plan of an accessible toilet and shows the installation location of the toilet pan (i.e.  below is a basic floor plan and dimensions for your disabled bathroom design. Here, you can see the extensive use of grab rails around the bathroom sink,. One of the most common questions we get asked in our. One size does not fit all!   toilet paper should be located between a least 24 (610 mm) and 42 (1070 mm) from the back wall and at least 18 above the finished floor, per the. As 1428.1 has extensive detail on the design of accessible toilets. A summary of key points is.  how big is an accessible (disabled) toilet. The typical room size for an accessible toilet is at least 1900 x 2700mm or 2330.
            
	
		 
	 
         
 
    
         
        From www.pinterest.com 
                    Pin on DETAILS TECHNIQUES Bathroom floor plans, Small bathroom floor Toilet Dimensions For Disabled   how big is an accessible (disabled) toilet. One size does not fit all!   figure 43 details a floor plan of an accessible toilet and shows the installation location of the toilet pan (i.e. As 1428.1 has extensive detail on the design of accessible toilets. One of the most common questions we get asked in our.   what does. Toilet Dimensions For Disabled.
     
    
         
        From ar.inspiredpencil.com 
                    Handicap Restroom Dimensions Toilet Dimensions For Disabled   below is a basic floor plan and dimensions for your disabled bathroom design.   figure 43 details a floor plan of an accessible toilet and shows the installation location of the toilet pan (i.e.   toilet paper should be located between a least 24 (610 mm) and 42 (1070 mm) from the back wall and at least 18 above. Toilet Dimensions For Disabled.
     
    
         
        From exyqjkpsi.blob.core.windows.net 
                    Disabled Bathroom Dimensions Uk at Theodore Kuhlman blog Toilet Dimensions For Disabled    figure 43 details a floor plan of an accessible toilet and shows the installation location of the toilet pan (i.e.  how big is an accessible (disabled) toilet. As 1428.1 has extensive detail on the design of accessible toilets.   toilet paper should be located between a least 24 (610 mm) and 42 (1070 mm) from the back wall. Toilet Dimensions For Disabled.
     
    
         
        From www.dunhamswashrooms.com 
                    Toilet Cubicle Sizes & Dimensions [Guide] Dunhams Washroom Toilet Dimensions For Disabled  One of the most common questions we get asked in our. The typical room size for an accessible toilet is at least 1900 x 2700mm or 2330.   toilet paper should be located between a least 24 (610 mm) and 42 (1070 mm) from the back wall and at least 18 above the finished floor, per the.  below is. Toilet Dimensions For Disabled.
     
    
         
        From www.commercialwashroomsltd.co.uk 
                    What are the Dimensions of a Disabled Toilet Room? Disabled Toilets Toilet Dimensions For Disabled  Here, you can see the extensive use of grab rails around the bathroom sink,.   figure 43 details a floor plan of an accessible toilet and shows the installation location of the toilet pan (i.e. The typical room size for an accessible toilet is at least 1900 x 2700mm or 2330.   what does the dda say about accessible toilet. Toilet Dimensions For Disabled.
     
    
         
        From imagetou.com 
                    Bathroom Floor Plans Australia Image to u Toilet Dimensions For Disabled  The typical room size for an accessible toilet is at least 1900 x 2700mm or 2330. One of the most common questions we get asked in our.  how big is an accessible (disabled) toilet. Here, you can see the extensive use of grab rails around the bathroom sink,.   figure 43 details a floor plan of an accessible toilet. Toilet Dimensions For Disabled.
     
    
         
        From wheelchairtravel.org 
                    Understanding ADA Design Requirements for Hotels Wheelchair Travel Toilet Dimensions For Disabled    figure 43 details a floor plan of an accessible toilet and shows the installation location of the toilet pan (i.e.  below is a basic floor plan and dimensions for your disabled bathroom design.   toilet paper should be located between a least 24 (610 mm) and 42 (1070 mm) from the back wall and at least 18 above. Toilet Dimensions For Disabled.
     
    
         
        From www.vivid.care 
                    What's the minimum size for a disabled wetroom? Vivid Care Toilet Dimensions For Disabled   below is a basic floor plan and dimensions for your disabled bathroom design. The typical room size for an accessible toilet is at least 1900 x 2700mm or 2330.   toilet paper should be located between a least 24 (610 mm) and 42 (1070 mm) from the back wall and at least 18 above the finished floor, per the.. Toilet Dimensions For Disabled.
     
    
         
        From www.pinterest.com.mx 
                    Accessibility Fundamentals Fairfax County, Virginia Bathroom floor Toilet Dimensions For Disabled  Here, you can see the extensive use of grab rails around the bathroom sink,. One size does not fit all!  how big is an accessible (disabled) toilet.  below is a basic floor plan and dimensions for your disabled bathroom design.   toilet paper should be located between a least 24 (610 mm) and 42 (1070 mm) from the. Toilet Dimensions For Disabled.
     
    
         
        From viewfloor.co 
                    Ada Bathroom Floor Plan Dimensions Viewfloor.co Toilet Dimensions For Disabled   below is a basic floor plan and dimensions for your disabled bathroom design. As 1428.1 has extensive detail on the design of accessible toilets. A summary of key points is.   what does the dda say about accessible toilet dimensions?   toilet paper should be located between a least 24 (610 mm) and 42 (1070 mm) from the back. Toilet Dimensions For Disabled.
     
    
         
        From wurld.blogspot.com 
                    disabled bathroom layout vba How big or what size is a Disabled Toilet Dimensions For Disabled   below is a basic floor plan and dimensions for your disabled bathroom design. One of the most common questions we get asked in our.   toilet paper should be located between a least 24 (610 mm) and 42 (1070 mm) from the back wall and at least 18 above the finished floor, per the. A summary of key points. Toilet Dimensions For Disabled.
     
    
         
        From www.pinterest.com 
                    Dimensions for Disabled WC Toilet dimensions, Toilet plan, Restroom Toilet Dimensions For Disabled   below is a basic floor plan and dimensions for your disabled bathroom design. Here, you can see the extensive use of grab rails around the bathroom sink,. A summary of key points is.   figure 43 details a floor plan of an accessible toilet and shows the installation location of the toilet pan (i.e. The typical room size for. Toilet Dimensions For Disabled.
     
    
         
        From www.moreability.co.uk 
                    What Size Should A Disabled Toilet Be More Ability Toilet Dimensions For Disabled  As 1428.1 has extensive detail on the design of accessible toilets. A summary of key points is. The typical room size for an accessible toilet is at least 1900 x 2700mm or 2330. One of the most common questions we get asked in our.  below is a basic floor plan and dimensions for your disabled bathroom design. One size. Toilet Dimensions For Disabled.
     
    
         
        From www.commercialwashroomsltd.co.uk 
                    What are the Dimensions of a Disabled Toilet Room? Disabled Toilets Toilet Dimensions For Disabled  The typical room size for an accessible toilet is at least 1900 x 2700mm or 2330.   toilet paper should be located between a least 24 (610 mm) and 42 (1070 mm) from the back wall and at least 18 above the finished floor, per the. A summary of key points is.  how big is an accessible (disabled) toilet.. Toilet Dimensions For Disabled.
     
    
         
        From www.pinterest.com 
                    ada bathroom dimensions,ada bathroom dimensions ada bathroom layouts Toilet Dimensions For Disabled    what does the dda say about accessible toilet dimensions? One of the most common questions we get asked in our. The typical room size for an accessible toilet is at least 1900 x 2700mm or 2330.  below is a basic floor plan and dimensions for your disabled bathroom design. A summary of key points is.  how big. Toilet Dimensions For Disabled.
     
    
         
        From cadbull.com 
                    The handicap bathroom plan detail dwg file. Cadbull Toilet Dimensions For Disabled  The typical room size for an accessible toilet is at least 1900 x 2700mm or 2330. Here, you can see the extensive use of grab rails around the bathroom sink,. A summary of key points is.   toilet paper should be located between a least 24 (610 mm) and 42 (1070 mm) from the back wall and at least 18. Toilet Dimensions For Disabled.
     
    
         
        From www.commercialwashroomsltd.co.uk 
                    What are the Dimensions of a Disabled Toilet Room? Commercial Washrooms Toilet Dimensions For Disabled  A summary of key points is. The typical room size for an accessible toilet is at least 1900 x 2700mm or 2330.   what does the dda say about accessible toilet dimensions?   figure 43 details a floor plan of an accessible toilet and shows the installation location of the toilet pan (i.e.  below is a basic floor plan. Toilet Dimensions For Disabled.
     
    
         
        From www.iiitl.ac.in 
                    Dimensions For Disabled WC, 58 OFF www.iiitl.ac.in Toilet Dimensions For Disabled  The typical room size for an accessible toilet is at least 1900 x 2700mm or 2330. One of the most common questions we get asked in our. As 1428.1 has extensive detail on the design of accessible toilets.  below is a basic floor plan and dimensions for your disabled bathroom design.  how big is an accessible (disabled) toilet.. Toilet Dimensions For Disabled.
     
    
         
        From www.pinterest.com 
                    Best Of Handicap Accessible Bathroom Designs handicapaccessible Toilet Dimensions For Disabled  As 1428.1 has extensive detail on the design of accessible toilets. One of the most common questions we get asked in our.  how big is an accessible (disabled) toilet. Here, you can see the extensive use of grab rails around the bathroom sink,. A summary of key points is.   what does the dda say about accessible toilet dimensions?. Toilet Dimensions For Disabled.
     
    
         
        From www.diy.com 
                    Armitage Shanks Assisted bathroom suite DIY at B&Q Toilet Dimensions For Disabled  As 1428.1 has extensive detail on the design of accessible toilets.   toilet paper should be located between a least 24 (610 mm) and 42 (1070 mm) from the back wall and at least 18 above the finished floor, per the. One of the most common questions we get asked in our.   figure 43 details a floor plan of. Toilet Dimensions For Disabled.
     
    
         
        From www.moreability.co.uk 
                    What Size Should A Disabled Toilet Be More Ability Toilet Dimensions For Disabled  The typical room size for an accessible toilet is at least 1900 x 2700mm or 2330. A summary of key points is. One size does not fit all!  below is a basic floor plan and dimensions for your disabled bathroom design.  how big is an accessible (disabled) toilet.   toilet paper should be located between a least 24. Toilet Dimensions For Disabled.
     
    
         
        From www.pinterest.com.au 
                    Accessible Bathroom Design Plan Toilet Dimensions For Disabled  A summary of key points is. As 1428.1 has extensive detail on the design of accessible toilets.   what does the dda say about accessible toilet dimensions?  below is a basic floor plan and dimensions for your disabled bathroom design. Here, you can see the extensive use of grab rails around the bathroom sink,. One of the most common. Toilet Dimensions For Disabled.
     
    
         
        From www.pinterest.com 
                    Pin on Bathroom Toilet Dimensions For Disabled   below is a basic floor plan and dimensions for your disabled bathroom design. The typical room size for an accessible toilet is at least 1900 x 2700mm or 2330. One of the most common questions we get asked in our. Here, you can see the extensive use of grab rails around the bathroom sink,.   toilet paper should be. Toilet Dimensions For Disabled.
     
    
         
        From nymas.co.uk 
                    Types of disabled toilet NYMAS Group Toilet Dimensions For Disabled    what does the dda say about accessible toilet dimensions? One size does not fit all!  below is a basic floor plan and dimensions for your disabled bathroom design. A summary of key points is. One of the most common questions we get asked in our. Here, you can see the extensive use of grab rails around the bathroom. Toilet Dimensions For Disabled.
     
    
         
        From www.rethinkaccess.com 
                    ADA Accessible Single User Toilet Room Layout and Requirements Toilet Dimensions For Disabled    figure 43 details a floor plan of an accessible toilet and shows the installation location of the toilet pan (i.e. The typical room size for an accessible toilet is at least 1900 x 2700mm or 2330.  below is a basic floor plan and dimensions for your disabled bathroom design.   toilet paper should be located between a least. Toilet Dimensions For Disabled.
     
    
         
        From www.vb-c.com.au 
                    Are we in Australia Designing Functional Unisex Accessible Toilets Toilet Dimensions For Disabled  As 1428.1 has extensive detail on the design of accessible toilets. One size does not fit all! Here, you can see the extensive use of grab rails around the bathroom sink,.   figure 43 details a floor plan of an accessible toilet and shows the installation location of the toilet pan (i.e.  how big is an accessible (disabled) toilet.. Toilet Dimensions For Disabled.
     
    
         
        From www.artcomcrea.com 
                    What Is The Minimum Size For A Disabled Bathroom Toilet Dimensions For Disabled   below is a basic floor plan and dimensions for your disabled bathroom design.   figure 43 details a floor plan of an accessible toilet and shows the installation location of the toilet pan (i.e. A summary of key points is. As 1428.1 has extensive detail on the design of accessible toilets. Here, you can see the extensive use of. Toilet Dimensions For Disabled.
     
    
         
        From archi-monarch.com 
                    TOILET FOR AMBULANT DISABLED PEOPLE ⋆ ArchiMonarch Toilet Dimensions For Disabled  As 1428.1 has extensive detail on the design of accessible toilets. Here, you can see the extensive use of grab rails around the bathroom sink,.   toilet paper should be located between a least 24 (610 mm) and 42 (1070 mm) from the back wall and at least 18 above the finished floor, per the. One of the most common. Toilet Dimensions For Disabled.
     
    
         
        From www.pinterest.com.au 
                    Disabled Accessible Cubicle. Source http//cubicowashrooms.co.uk Toilet Dimensions For Disabled    figure 43 details a floor plan of an accessible toilet and shows the installation location of the toilet pan (i.e.   what does the dda say about accessible toilet dimensions? A summary of key points is.  below is a basic floor plan and dimensions for your disabled bathroom design. The typical room size for an accessible toilet is. Toilet Dimensions For Disabled.
     
    
         
        From exyshludx.blob.core.windows.net 
                    Standard Toilet Door Size Singapore at John Shockley blog Toilet Dimensions For Disabled    figure 43 details a floor plan of an accessible toilet and shows the installation location of the toilet pan (i.e. As 1428.1 has extensive detail on the design of accessible toilets.  below is a basic floor plan and dimensions for your disabled bathroom design.   what does the dda say about accessible toilet dimensions?   toilet paper should. Toilet Dimensions For Disabled.
     
    
         
        From wapenang.blogspot.com 
                    Wheelchair Access Penang (wapenang) Toilet (WC) For Disabled People Toilet Dimensions For Disabled  The typical room size for an accessible toilet is at least 1900 x 2700mm or 2330. Here, you can see the extensive use of grab rails around the bathroom sink,. One size does not fit all! One of the most common questions we get asked in our.   figure 43 details a floor plan of an accessible toilet and shows. Toilet Dimensions For Disabled.
     
    
         
        From www.firstinarchitecture.co.uk 
                    Metric Data 11 Accessible Bathroom and WC Toilet Dimensions For Disabled  One of the most common questions we get asked in our.  how big is an accessible (disabled) toilet. As 1428.1 has extensive detail on the design of accessible toilets. Here, you can see the extensive use of grab rails around the bathroom sink,. A summary of key points is.   what does the dda say about accessible toilet dimensions?. Toilet Dimensions For Disabled.
     
    
         
        From www.vrogue.co 
                    How Big Or What Size Is A Disabled Accessible Toilet vrogue.co Toilet Dimensions For Disabled    figure 43 details a floor plan of an accessible toilet and shows the installation location of the toilet pan (i.e.  how big is an accessible (disabled) toilet.   what does the dda say about accessible toilet dimensions? Here, you can see the extensive use of grab rails around the bathroom sink,. A summary of key points is. . Toilet Dimensions For Disabled.
     
    
         
        From www.dunhamswashrooms.com 
                    Toilet Cubicle Sizes & Dimensions [Guide] Dunhams Washroom Toilet Dimensions For Disabled  The typical room size for an accessible toilet is at least 1900 x 2700mm or 2330. One size does not fit all!  how big is an accessible (disabled) toilet.  below is a basic floor plan and dimensions for your disabled bathroom design.   figure 43 details a floor plan of an accessible toilet and shows the installation location. Toilet Dimensions For Disabled.
     
    
         
        From carpet.vidalondon.net 
                    Handicap Toilet Floor Plan Carpet Vidalondon Toilet Dimensions For Disabled    toilet paper should be located between a least 24 (610 mm) and 42 (1070 mm) from the back wall and at least 18 above the finished floor, per the. A summary of key points is. One size does not fit all! One of the most common questions we get asked in our. Here, you can see the extensive use. Toilet Dimensions For Disabled.