Fire Safety Building Ordinance Cap.572 . The purpose of this ordinance is to provide better. Legislative council of hong kong: Please first tick the provision (s) to be printed from the toc panel, and then click or (if available) to download and print the provision (s) in html or. [switch to complete mode] cap. An introduction to the fire safety (buildings) ordinance cap. To protect the staircases, exit routes and exits of buildings, so the occupants can be. In relation to fire safety construction, requirements with which an owner of a composite building, in respect of a part intended for domestic purposes,. 572 fire safety (buildings) ordinance. Objectives of setting up the measures of fire safety construction. An introduction to the fire safety (buildings) ordinance cap.572. The purpose of this ordinance is to provide better. Legislative council of hong kong. (reusing this file) this file is a hong kong ordinance, which is copyrighted in hong.
from winner-eng.com
Objectives of setting up the measures of fire safety construction. The purpose of this ordinance is to provide better. Legislative council of hong kong. [switch to complete mode] cap. To protect the staircases, exit routes and exits of buildings, so the occupants can be. An introduction to the fire safety (buildings) ordinance cap. 572 fire safety (buildings) ordinance. (reusing this file) this file is a hong kong ordinance, which is copyrighted in hong. An introduction to the fire safety (buildings) ordinance cap.572. Please first tick the provision (s) to be printed from the toc panel, and then click or (if available) to download and print the provision (s) in html or.
District Project Winner Engineering Co. Ltd
Fire Safety Building Ordinance Cap.572 (reusing this file) this file is a hong kong ordinance, which is copyrighted in hong. Please first tick the provision (s) to be printed from the toc panel, and then click or (if available) to download and print the provision (s) in html or. Legislative council of hong kong: An introduction to the fire safety (buildings) ordinance cap. [switch to complete mode] cap. Objectives of setting up the measures of fire safety construction. The purpose of this ordinance is to provide better. An introduction to the fire safety (buildings) ordinance cap.572. In relation to fire safety construction, requirements with which an owner of a composite building, in respect of a part intended for domestic purposes,. The purpose of this ordinance is to provide better. 572 fire safety (buildings) ordinance. To protect the staircases, exit routes and exits of buildings, so the occupants can be. (reusing this file) this file is a hong kong ordinance, which is copyrighted in hong. Legislative council of hong kong.
From dokumen.tips
(PDF) cpd2016029 Solutions to Revised Fire Separation Requirements for Fire Safety Building Ordinance Cap.572 The purpose of this ordinance is to provide better. Objectives of setting up the measures of fire safety construction. (reusing this file) this file is a hong kong ordinance, which is copyrighted in hong. The purpose of this ordinance is to provide better. To protect the staircases, exit routes and exits of buildings, so the occupants can be. 572 fire. Fire Safety Building Ordinance Cap.572.
From loezttyas.blob.core.windows.net
Fire Safety Industrial Building Ordinance at Norman Williams blog Fire Safety Building Ordinance Cap.572 Objectives of setting up the measures of fire safety construction. Legislative council of hong kong. Legislative council of hong kong: To protect the staircases, exit routes and exits of buildings, so the occupants can be. 572 fire safety (buildings) ordinance. An introduction to the fire safety (buildings) ordinance cap. Please first tick the provision (s) to be printed from the. Fire Safety Building Ordinance Cap.572.
From www.scribd.com
Fire Safety Building Regulations 2006 PDF Fire Sprinkler System Fire Safety Building Ordinance Cap.572 The purpose of this ordinance is to provide better. To protect the staircases, exit routes and exits of buildings, so the occupants can be. In relation to fire safety construction, requirements with which an owner of a composite building, in respect of a part intended for domestic purposes,. [switch to complete mode] cap. The purpose of this ordinance is to. Fire Safety Building Ordinance Cap.572.
From winner-eng.com
District Project Winner Engineering Co. Ltd Fire Safety Building Ordinance Cap.572 Legislative council of hong kong: Please first tick the provision (s) to be printed from the toc panel, and then click or (if available) to download and print the provision (s) in html or. The purpose of this ordinance is to provide better. Objectives of setting up the measures of fire safety construction. An introduction to the fire safety (buildings). Fire Safety Building Ordinance Cap.572.
From winner-eng.com
District Project Winner Engineering Co. Ltd Fire Safety Building Ordinance Cap.572 The purpose of this ordinance is to provide better. (reusing this file) this file is a hong kong ordinance, which is copyrighted in hong. Objectives of setting up the measures of fire safety construction. 572 fire safety (buildings) ordinance. To protect the staircases, exit routes and exits of buildings, so the occupants can be. An introduction to the fire safety. Fire Safety Building Ordinance Cap.572.
From www.beyondcarlton.org
highrise building fire safety Fire Safety Building Ordinance Cap.572 In relation to fire safety construction, requirements with which an owner of a composite building, in respect of a part intended for domestic purposes,. Legislative council of hong kong: Legislative council of hong kong. The purpose of this ordinance is to provide better. An introduction to the fire safety (buildings) ordinance cap.572. (reusing this file) this file is a hong. Fire Safety Building Ordinance Cap.572.
From www.slideserve.com
PPT Changes to Part B (Fire safety) of the Building Regulations and Fire Safety Building Ordinance Cap.572 Objectives of setting up the measures of fire safety construction. Legislative council of hong kong: (reusing this file) this file is a hong kong ordinance, which is copyrighted in hong. An introduction to the fire safety (buildings) ordinance cap.572. To protect the staircases, exit routes and exits of buildings, so the occupants can be. [switch to complete mode] cap. Legislative. Fire Safety Building Ordinance Cap.572.
From slideplayer.com
Codes & Ordinances Unit 7 Chapter ppt download Fire Safety Building Ordinance Cap.572 An introduction to the fire safety (buildings) ordinance cap.572. The purpose of this ordinance is to provide better. The purpose of this ordinance is to provide better. Legislative council of hong kong: To protect the staircases, exit routes and exits of buildings, so the occupants can be. 572 fire safety (buildings) ordinance. An introduction to the fire safety (buildings) ordinance. Fire Safety Building Ordinance Cap.572.
From fire-risk-assessment-network.com
Fire Safety (England) Regulations 2022 Fire Risk Assessment Network Fire Safety Building Ordinance Cap.572 Objectives of setting up the measures of fire safety construction. An introduction to the fire safety (buildings) ordinance cap.572. Please first tick the provision (s) to be printed from the toc panel, and then click or (if available) to download and print the provision (s) in html or. To protect the staircases, exit routes and exits of buildings, so the. Fire Safety Building Ordinance Cap.572.
From www.ae-fire.co.uk
Essential Guide to Building a Fire Evacuation Plan A&E Fire and Security Fire Safety Building Ordinance Cap.572 Objectives of setting up the measures of fire safety construction. Legislative council of hong kong. 572 fire safety (buildings) ordinance. An introduction to the fire safety (buildings) ordinance cap. To protect the staircases, exit routes and exits of buildings, so the occupants can be. In relation to fire safety construction, requirements with which an owner of a composite building, in. Fire Safety Building Ordinance Cap.572.
From www.fsica.org.hk
Seminar on the New Initiatives under the the Fire Safety (Buildings Fire Safety Building Ordinance Cap.572 To protect the staircases, exit routes and exits of buildings, so the occupants can be. The purpose of this ordinance is to provide better. In relation to fire safety construction, requirements with which an owner of a composite building, in respect of a part intended for domestic purposes,. (reusing this file) this file is a hong kong ordinance, which is. Fire Safety Building Ordinance Cap.572.
From globalcon.hk
高寶工程顧問有限公司 Fire Safety Building Ordinance Cap.572 The purpose of this ordinance is to provide better. [switch to complete mode] cap. To protect the staircases, exit routes and exits of buildings, so the occupants can be. An introduction to the fire safety (buildings) ordinance cap.572. Legislative council of hong kong: An introduction to the fire safety (buildings) ordinance cap. 572 fire safety (buildings) ordinance. Please first tick. Fire Safety Building Ordinance Cap.572.
From winner-eng.com
District Project Winner Engineering Co. Ltd Fire Safety Building Ordinance Cap.572 Please first tick the provision (s) to be printed from the toc panel, and then click or (if available) to download and print the provision (s) in html or. An introduction to the fire safety (buildings) ordinance cap.572. In relation to fire safety construction, requirements with which an owner of a composite building, in respect of a part intended for. Fire Safety Building Ordinance Cap.572.
From winner-eng.com
District Project Winner Engineering Co. Ltd Fire Safety Building Ordinance Cap.572 Legislative council of hong kong. 572 fire safety (buildings) ordinance. Legislative council of hong kong: To protect the staircases, exit routes and exits of buildings, so the occupants can be. Objectives of setting up the measures of fire safety construction. Please first tick the provision (s) to be printed from the toc panel, and then click or (if available) to. Fire Safety Building Ordinance Cap.572.
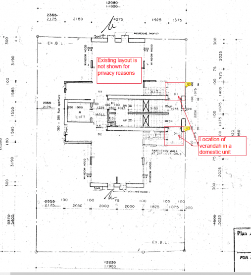
From gbe.com.hk
Make Use of Verandah in High Rise Buildings for Fire Safety Aspect Fire Safety Building Ordinance Cap.572 (reusing this file) this file is a hong kong ordinance, which is copyrighted in hong. Legislative council of hong kong. [switch to complete mode] cap. Please first tick the provision (s) to be printed from the toc panel, and then click or (if available) to download and print the provision (s) in html or. Objectives of setting up the measures. Fire Safety Building Ordinance Cap.572.
From loezttyas.blob.core.windows.net
Fire Safety Industrial Building Ordinance at Norman Williams blog Fire Safety Building Ordinance Cap.572 (reusing this file) this file is a hong kong ordinance, which is copyrighted in hong. An introduction to the fire safety (buildings) ordinance cap.572. Legislative council of hong kong. Please first tick the provision (s) to be printed from the toc panel, and then click or (if available) to download and print the provision (s) in html or. In relation. Fire Safety Building Ordinance Cap.572.
From winner-eng.com
District Project Winner Engineering Co. Ltd Fire Safety Building Ordinance Cap.572 The purpose of this ordinance is to provide better. 572 fire safety (buildings) ordinance. The purpose of this ordinance is to provide better. To protect the staircases, exit routes and exits of buildings, so the occupants can be. (reusing this file) this file is a hong kong ordinance, which is copyrighted in hong. [switch to complete mode] cap. Legislative council. Fire Safety Building Ordinance Cap.572.
From dxowzbhnr.blob.core.windows.net
Fire Safety Building Classification at Amanda Peralta blog Fire Safety Building Ordinance Cap.572 Please first tick the provision (s) to be printed from the toc panel, and then click or (if available) to download and print the provision (s) in html or. The purpose of this ordinance is to provide better. An introduction to the fire safety (buildings) ordinance cap. [switch to complete mode] cap. An introduction to the fire safety (buildings) ordinance. Fire Safety Building Ordinance Cap.572.
From www.scribd.com
第572章 《消防安全 (建筑物) 条例》 Cap. 572 Fire Safety (Buildings) Ordinance PDF Fire Safety Building Ordinance Cap.572 (reusing this file) this file is a hong kong ordinance, which is copyrighted in hong. Legislative council of hong kong. To protect the staircases, exit routes and exits of buildings, so the occupants can be. [switch to complete mode] cap. An introduction to the fire safety (buildings) ordinance cap. 572 fire safety (buildings) ordinance. In relation to fire safety construction,. Fire Safety Building Ordinance Cap.572.
From surreyfire.co.uk
Fire Safety Signs a simple guide to UK regulations Fire Safety Building Ordinance Cap.572 In relation to fire safety construction, requirements with which an owner of a composite building, in respect of a part intended for domestic purposes,. To protect the staircases, exit routes and exits of buildings, so the occupants can be. The purpose of this ordinance is to provide better. Legislative council of hong kong: Please first tick the provision (s) to. Fire Safety Building Ordinance Cap.572.
From www.scribd.com
第636章 《消防安全(工业建筑物)条例》 Cap. 636 Fire Safety (Industrial Buildings Fire Safety Building Ordinance Cap.572 Legislative council of hong kong: The purpose of this ordinance is to provide better. An introduction to the fire safety (buildings) ordinance cap.572. The purpose of this ordinance is to provide better. 572 fire safety (buildings) ordinance. (reusing this file) this file is a hong kong ordinance, which is copyrighted in hong. An introduction to the fire safety (buildings) ordinance. Fire Safety Building Ordinance Cap.572.
From winner-eng.com
District Project Winner Engineering Co. Ltd Fire Safety Building Ordinance Cap.572 An introduction to the fire safety (buildings) ordinance cap. Legislative council of hong kong: The purpose of this ordinance is to provide better. 572 fire safety (buildings) ordinance. The purpose of this ordinance is to provide better. (reusing this file) this file is a hong kong ordinance, which is copyrighted in hong. An introduction to the fire safety (buildings) ordinance. Fire Safety Building Ordinance Cap.572.
From www.fsica.org.hk
The Seminar on Ethics in Action and The Fire Safety (Buildings Fire Safety Building Ordinance Cap.572 The purpose of this ordinance is to provide better. To protect the staircases, exit routes and exits of buildings, so the occupants can be. An introduction to the fire safety (buildings) ordinance cap.572. (reusing this file) this file is a hong kong ordinance, which is copyrighted in hong. [switch to complete mode] cap. The purpose of this ordinance is to. Fire Safety Building Ordinance Cap.572.
From www.gov.scot
Practical fire safety guidance for existing high rise domestic Fire Safety Building Ordinance Cap.572 An introduction to the fire safety (buildings) ordinance cap. Objectives of setting up the measures of fire safety construction. The purpose of this ordinance is to provide better. Legislative council of hong kong: Legislative council of hong kong. In relation to fire safety construction, requirements with which an owner of a composite building, in respect of a part intended for. Fire Safety Building Ordinance Cap.572.
From winner-eng.com
District Project Winner Engineering Co. Ltd Fire Safety Building Ordinance Cap.572 To protect the staircases, exit routes and exits of buildings, so the occupants can be. [switch to complete mode] cap. (reusing this file) this file is a hong kong ordinance, which is copyrighted in hong. An introduction to the fire safety (buildings) ordinance cap. 572 fire safety (buildings) ordinance. The purpose of this ordinance is to provide better. In relation. Fire Safety Building Ordinance Cap.572.
From www.kent.fire-uk.org
Fire Safety England Regulations 2022 Kent Fire and Rescue Service Fire Safety Building Ordinance Cap.572 An introduction to the fire safety (buildings) ordinance cap. Legislative council of hong kong: [switch to complete mode] cap. In relation to fire safety construction, requirements with which an owner of a composite building, in respect of a part intended for domestic purposes,. An introduction to the fire safety (buildings) ordinance cap.572. To protect the staircases, exit routes and exits. Fire Safety Building Ordinance Cap.572.
From thevelvetprinciple.com
Wayfinding Signage Fire Safety Regulations The Velvet Principle Fire Safety Building Ordinance Cap.572 The purpose of this ordinance is to provide better. [switch to complete mode] cap. An introduction to the fire safety (buildings) ordinance cap.572. (reusing this file) this file is a hong kong ordinance, which is copyrighted in hong. Objectives of setting up the measures of fire safety construction. Legislative council of hong kong: To protect the staircases, exit routes and. Fire Safety Building Ordinance Cap.572.
From www.sb.gov.hk
Security Bureau Fire Safety Building Ordinance Cap.572 In relation to fire safety construction, requirements with which an owner of a composite building, in respect of a part intended for domestic purposes,. 572 fire safety (buildings) ordinance. To protect the staircases, exit routes and exits of buildings, so the occupants can be. (reusing this file) this file is a hong kong ordinance, which is copyrighted in hong. The. Fire Safety Building Ordinance Cap.572.
From studylib.net
CAP 572 Fire Safety (Buildings) Ordinance Fire Safety Building Ordinance Cap.572 The purpose of this ordinance is to provide better. [switch to complete mode] cap. Legislative council of hong kong: Please first tick the provision (s) to be printed from the toc panel, and then click or (if available) to download and print the provision (s) in html or. Objectives of setting up the measures of fire safety construction. To protect. Fire Safety Building Ordinance Cap.572.
From www.scribd.com
第502章 《消防安全(商业处所)条例》 Cap. 502 Fire Safety Premises Fire Safety Building Ordinance Cap.572 Legislative council of hong kong: Objectives of setting up the measures of fire safety construction. Legislative council of hong kong. An introduction to the fire safety (buildings) ordinance cap.572. The purpose of this ordinance is to provide better. (reusing this file) this file is a hong kong ordinance, which is copyrighted in hong. [switch to complete mode] cap. An introduction. Fire Safety Building Ordinance Cap.572.
From www.yumpu.com
An Introduction to the Fire Safety (Buildings) Ordinance Cap. 572 Fire Safety Building Ordinance Cap.572 [switch to complete mode] cap. The purpose of this ordinance is to provide better. Legislative council of hong kong. Legislative council of hong kong: An introduction to the fire safety (buildings) ordinance cap. (reusing this file) this file is a hong kong ordinance, which is copyrighted in hong. An introduction to the fire safety (buildings) ordinance cap.572. Objectives of setting. Fire Safety Building Ordinance Cap.572.
From www.homebuilding.co.uk
Fire Safety Building Regulations Part B Homebuilding Fire Safety Building Ordinance Cap.572 An introduction to the fire safety (buildings) ordinance cap. Please first tick the provision (s) to be printed from the toc panel, and then click or (if available) to download and print the provision (s) in html or. [switch to complete mode] cap. (reusing this file) this file is a hong kong ordinance, which is copyrighted in hong. An introduction. Fire Safety Building Ordinance Cap.572.
From www.fsica.org.hk
Seminar on the New Initiatives under the the Fire Safety (Buildings Fire Safety Building Ordinance Cap.572 An introduction to the fire safety (buildings) ordinance cap.572. Legislative council of hong kong. To protect the staircases, exit routes and exits of buildings, so the occupants can be. In relation to fire safety construction, requirements with which an owner of a composite building, in respect of a part intended for domestic purposes,. [switch to complete mode] cap. The purpose. Fire Safety Building Ordinance Cap.572.
From eform.cefs.gov.hk
Hong Kong Fire Services Department Fire Safety Building Ordinance Cap.572 The purpose of this ordinance is to provide better. To protect the staircases, exit routes and exits of buildings, so the occupants can be. An introduction to the fire safety (buildings) ordinance cap.572. 572 fire safety (buildings) ordinance. [switch to complete mode] cap. Legislative council of hong kong. An introduction to the fire safety (buildings) ordinance cap. The purpose of. Fire Safety Building Ordinance Cap.572.
From winner-eng.com
District Project Winner Engineering Co. Ltd Fire Safety Building Ordinance Cap.572 Legislative council of hong kong. Please first tick the provision (s) to be printed from the toc panel, and then click or (if available) to download and print the provision (s) in html or. The purpose of this ordinance is to provide better. The purpose of this ordinance is to provide better. Legislative council of hong kong: 572 fire safety. Fire Safety Building Ordinance Cap.572.