Schedule Bms Points List . Specifying points is a great method for getting what is needed on a ddc project. Page 32 menu bms w atchdog the bms watchdog function verifies bms connectivity. Section includes a indicative minimum input/output points list for the building management system (bms). A points list simply specifies the input and output points that are required for a project. Bms communication the user can remotely adjust setpoints, view unit status points and alarms. It includes 46 input/output points for monitoring and controlling temperature, humidity, fan. The document lists the points, devices, and cables for a building management system (bms). Demonstrate class programming with point options of beep duration, beep rate, alarm archiving and color banding. The idea is to account. The watchdog is required for the bms to take the place of a hardwired sensor.
from www.scribd.com
The document lists the points, devices, and cables for a building management system (bms). Bms communication the user can remotely adjust setpoints, view unit status points and alarms. Demonstrate class programming with point options of beep duration, beep rate, alarm archiving and color banding. The idea is to account. Specifying points is a great method for getting what is needed on a ddc project. The watchdog is required for the bms to take the place of a hardwired sensor. Section includes a indicative minimum input/output points list for the building management system (bms). Page 32 menu bms w atchdog the bms watchdog function verifies bms connectivity. A points list simply specifies the input and output points that are required for a project. It includes 46 input/output points for monitoring and controlling temperature, humidity, fan.
BMS Sample IO Point Schedule PDF Elevator Plumbing
Schedule Bms Points List Section includes a indicative minimum input/output points list for the building management system (bms). The document lists the points, devices, and cables for a building management system (bms). The watchdog is required for the bms to take the place of a hardwired sensor. Bms communication the user can remotely adjust setpoints, view unit status points and alarms. It includes 46 input/output points for monitoring and controlling temperature, humidity, fan. A points list simply specifies the input and output points that are required for a project. The idea is to account. Page 32 menu bms w atchdog the bms watchdog function verifies bms connectivity. Specifying points is a great method for getting what is needed on a ddc project. Section includes a indicative minimum input/output points list for the building management system (bms). Demonstrate class programming with point options of beep duration, beep rate, alarm archiving and color banding.
From www.scribd.com
BMS Sample IO Point Schedule PDF Elevator Plumbing Schedule Bms Points List Demonstrate class programming with point options of beep duration, beep rate, alarm archiving and color banding. The watchdog is required for the bms to take the place of a hardwired sensor. Page 32 menu bms w atchdog the bms watchdog function verifies bms connectivity. The document lists the points, devices, and cables for a building management system (bms). Specifying points. Schedule Bms Points List.
From fyowradoq.blob.core.windows.net
Bms Point Schedule Explained at Steve Maldonado blog Schedule Bms Points List Bms communication the user can remotely adjust setpoints, view unit status points and alarms. The idea is to account. A points list simply specifies the input and output points that are required for a project. The watchdog is required for the bms to take the place of a hardwired sensor. Demonstrate class programming with point options of beep duration, beep. Schedule Bms Points List.
From www.scribd.com
Appendix A BMS Point List PDF Building Automation Thermodynamics Schedule Bms Points List Page 32 menu bms w atchdog the bms watchdog function verifies bms connectivity. The document lists the points, devices, and cables for a building management system (bms). The idea is to account. A points list simply specifies the input and output points that are required for a project. The watchdog is required for the bms to take the place of. Schedule Bms Points List.
From dokumen.tips
BMS Single Line Diagram & Schedule of Points [Download PDF] Schedule Bms Points List The watchdog is required for the bms to take the place of a hardwired sensor. A points list simply specifies the input and output points that are required for a project. The idea is to account. Section includes a indicative minimum input/output points list for the building management system (bms). The document lists the points, devices, and cables for a. Schedule Bms Points List.
From automatedbuildings.com
Column Points List Primer Schedule Bms Points List Demonstrate class programming with point options of beep duration, beep rate, alarm archiving and color banding. Page 32 menu bms w atchdog the bms watchdog function verifies bms connectivity. The watchdog is required for the bms to take the place of a hardwired sensor. Specifying points is a great method for getting what is needed on a ddc project. The. Schedule Bms Points List.
From fyowradoq.blob.core.windows.net
Bms Point Schedule Explained at Steve Maldonado blog Schedule Bms Points List The watchdog is required for the bms to take the place of a hardwired sensor. Demonstrate class programming with point options of beep duration, beep rate, alarm archiving and color banding. The document lists the points, devices, and cables for a building management system (bms). Specifying points is a great method for getting what is needed on a ddc project.. Schedule Bms Points List.
From www.scribd.com
RH1961EBTDMG804BMS SCHEDULE OF CONTROL POINTS (4 OF 5) PDF Schedule Bms Points List Section includes a indicative minimum input/output points list for the building management system (bms). Demonstrate class programming with point options of beep duration, beep rate, alarm archiving and color banding. The idea is to account. Specifying points is a great method for getting what is needed on a ddc project. Bms communication the user can remotely adjust setpoints, view unit. Schedule Bms Points List.
From www.scribd.com
BMS Single Line Diagram & Schedule of Points Hvac Elevator Schedule Bms Points List Section includes a indicative minimum input/output points list for the building management system (bms). It includes 46 input/output points for monitoring and controlling temperature, humidity, fan. The document lists the points, devices, and cables for a building management system (bms). Demonstrate class programming with point options of beep duration, beep rate, alarm archiving and color banding. Specifying points is a. Schedule Bms Points List.
From www.scribd.com
BMS Interfacing Points Checklist PDF Equipment Physical Sciences Schedule Bms Points List Bms communication the user can remotely adjust setpoints, view unit status points and alarms. The document lists the points, devices, and cables for a building management system (bms). Section includes a indicative minimum input/output points list for the building management system (bms). A points list simply specifies the input and output points that are required for a project. Specifying points. Schedule Bms Points List.
From viewplan.co.uk
ViewPlan BMS Overview Schedule Bms Points List The idea is to account. The watchdog is required for the bms to take the place of a hardwired sensor. A points list simply specifies the input and output points that are required for a project. Page 32 menu bms w atchdog the bms watchdog function verifies bms connectivity. It includes 46 input/output points for monitoring and controlling temperature, humidity,. Schedule Bms Points List.
From www.planradar.com
Commercial Construction Snagging List Template PlanRadar Schedule Bms Points List The watchdog is required for the bms to take the place of a hardwired sensor. Section includes a indicative minimum input/output points list for the building management system (bms). A points list simply specifies the input and output points that are required for a project. Specifying points is a great method for getting what is needed on a ddc project.. Schedule Bms Points List.
From www.scribd.com
Appendix j Qq01 Bms Io Points List Relay Switch Schedule Bms Points List The watchdog is required for the bms to take the place of a hardwired sensor. Section includes a indicative minimum input/output points list for the building management system (bms). Bms communication the user can remotely adjust setpoints, view unit status points and alarms. The document lists the points, devices, and cables for a building management system (bms). The idea is. Schedule Bms Points List.
From www.youtube.com
BMS Basics BMS Point Schedule Electrical BMS Drawing YouTube Schedule Bms Points List Page 32 menu bms w atchdog the bms watchdog function verifies bms connectivity. Bms communication the user can remotely adjust setpoints, view unit status points and alarms. It includes 46 input/output points for monitoring and controlling temperature, humidity, fan. The idea is to account. A points list simply specifies the input and output points that are required for a project.. Schedule Bms Points List.
From alihassanelashmawy.blogspot.com
HVAC Control Systems and Building Automation System Electrical Knowhow Schedule Bms Points List Bms communication the user can remotely adjust setpoints, view unit status points and alarms. The idea is to account. Page 32 menu bms w atchdog the bms watchdog function verifies bms connectivity. The watchdog is required for the bms to take the place of a hardwired sensor. Specifying points is a great method for getting what is needed on a. Schedule Bms Points List.
From bms-system.com
BMS SystemBuilding Management System Basic Tutorials for Beginners Schedule Bms Points List Section includes a indicative minimum input/output points list for the building management system (bms). Bms communication the user can remotely adjust setpoints, view unit status points and alarms. The document lists the points, devices, and cables for a building management system (bms). Specifying points is a great method for getting what is needed on a ddc project. The idea is. Schedule Bms Points List.
From pdfcoffee.com
BMS Sample IO Point Schedule Schedule Bms Points List Specifying points is a great method for getting what is needed on a ddc project. Page 32 menu bms w atchdog the bms watchdog function verifies bms connectivity. A points list simply specifies the input and output points that are required for a project. It includes 46 input/output points for monitoring and controlling temperature, humidity, fan. Section includes a indicative. Schedule Bms Points List.
From ecostruxure-building-help.se.com
WorkStation Schedule Bms Points List It includes 46 input/output points for monitoring and controlling temperature, humidity, fan. The document lists the points, devices, and cables for a building management system (bms). Specifying points is a great method for getting what is needed on a ddc project. Page 32 menu bms w atchdog the bms watchdog function verifies bms connectivity. A points list simply specifies the. Schedule Bms Points List.
From www.projectbms.co.uk
BMS Inputs & Outputs ProjectBMS The BMS Blog Schedule Bms Points List The document lists the points, devices, and cables for a building management system (bms). A points list simply specifies the input and output points that are required for a project. The watchdog is required for the bms to take the place of a hardwired sensor. Bms communication the user can remotely adjust setpoints, view unit status points and alarms. Specifying. Schedule Bms Points List.
From optergy.com
Building Management System Optergy Schedule Bms Points List The document lists the points, devices, and cables for a building management system (bms). Specifying points is a great method for getting what is needed on a ddc project. Bms communication the user can remotely adjust setpoints, view unit status points and alarms. The watchdog is required for the bms to take the place of a hardwired sensor. Demonstrate class. Schedule Bms Points List.
From ashokakhedkar.com
Sample AHU VAV HVAC System Sequence of Operation (Functional Schedule Bms Points List Bms communication the user can remotely adjust setpoints, view unit status points and alarms. It includes 46 input/output points for monitoring and controlling temperature, humidity, fan. A points list simply specifies the input and output points that are required for a project. Specifying points is a great method for getting what is needed on a ddc project. The idea is. Schedule Bms Points List.
From www.scribd.com
I/O summary for BMS Schedule Bms Points List The document lists the points, devices, and cables for a building management system (bms). Demonstrate class programming with point options of beep duration, beep rate, alarm archiving and color banding. The watchdog is required for the bms to take the place of a hardwired sensor. Section includes a indicative minimum input/output points list for the building management system (bms). A. Schedule Bms Points List.
From www.scribd.com
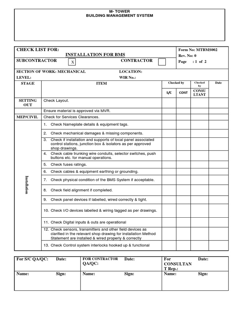
Checklist For Installation of BMS M Tower PDF PDF Calibration Schedule Bms Points List Page 32 menu bms w atchdog the bms watchdog function verifies bms connectivity. Bms communication the user can remotely adjust setpoints, view unit status points and alarms. The document lists the points, devices, and cables for a building management system (bms). The watchdog is required for the bms to take the place of a hardwired sensor. Section includes a indicative. Schedule Bms Points List.
From www.researchgate.net
Result of multiple BMS scale comparisons per group and assessment time Schedule Bms Points List Section includes a indicative minimum input/output points list for the building management system (bms). A points list simply specifies the input and output points that are required for a project. Specifying points is a great method for getting what is needed on a ddc project. It includes 46 input/output points for monitoring and controlling temperature, humidity, fan. Page 32 menu. Schedule Bms Points List.
From www.scribd.com
Bms Point List PDF Schedule Bms Points List The watchdog is required for the bms to take the place of a hardwired sensor. Specifying points is a great method for getting what is needed on a ddc project. A points list simply specifies the input and output points that are required for a project. Bms communication the user can remotely adjust setpoints, view unit status points and alarms.. Schedule Bms Points List.
From www.scribd.com
BMS Point Schedule PDF Civil Engineering Chemical Engineering Schedule Bms Points List Bms communication the user can remotely adjust setpoints, view unit status points and alarms. A points list simply specifies the input and output points that are required for a project. The idea is to account. The document lists the points, devices, and cables for a building management system (bms). Section includes a indicative minimum input/output points list for the building. Schedule Bms Points List.
From www.scribd.com
BMS Point Schedule PDF Valve Switch Schedule Bms Points List A points list simply specifies the input and output points that are required for a project. Section includes a indicative minimum input/output points list for the building management system (bms). The watchdog is required for the bms to take the place of a hardwired sensor. The document lists the points, devices, and cables for a building management system (bms). Bms. Schedule Bms Points List.
From www.scribd.com
BMS POINT FOR CHILLER PDF Physical Quantities Components Schedule Bms Points List The idea is to account. Section includes a indicative minimum input/output points list for the building management system (bms). Demonstrate class programming with point options of beep duration, beep rate, alarm archiving and color banding. It includes 46 input/output points for monitoring and controlling temperature, humidity, fan. A points list simply specifies the input and output points that are required. Schedule Bms Points List.
From www.scribd.com
BMS Point List Schedule Bms Points List The document lists the points, devices, and cables for a building management system (bms). A points list simply specifies the input and output points that are required for a project. Specifying points is a great method for getting what is needed on a ddc project. Page 32 menu bms w atchdog the bms watchdog function verifies bms connectivity. Demonstrate class. Schedule Bms Points List.
From automationforum.co
Downloadable StepbyStep Installation Checklist Temperature Controller Schedule Bms Points List Demonstrate class programming with point options of beep duration, beep rate, alarm archiving and color banding. It includes 46 input/output points for monitoring and controlling temperature, humidity, fan. The document lists the points, devices, and cables for a building management system (bms). Page 32 menu bms w atchdog the bms watchdog function verifies bms connectivity. A points list simply specifies. Schedule Bms Points List.
From www.conceptfire-uk.com
BMS points list and schedule of operation for the IG55 Gas Suppression Schedule Bms Points List Section includes a indicative minimum input/output points list for the building management system (bms). The idea is to account. A points list simply specifies the input and output points that are required for a project. The document lists the points, devices, and cables for a building management system (bms). It includes 46 input/output points for monitoring and controlling temperature, humidity,. Schedule Bms Points List.
From www.academia.edu
(PDF) AK BMS Point Schedule BTNAS DIMO Limited Academia.edu Schedule Bms Points List A points list simply specifies the input and output points that are required for a project. Page 32 menu bms w atchdog the bms watchdog function verifies bms connectivity. Bms communication the user can remotely adjust setpoints, view unit status points and alarms. Demonstrate class programming with point options of beep duration, beep rate, alarm archiving and color banding. It. Schedule Bms Points List.
From www.scribd.com
BMS point schedule Air Conditioning Machines Schedule Bms Points List It includes 46 input/output points for monitoring and controlling temperature, humidity, fan. The watchdog is required for the bms to take the place of a hardwired sensor. Page 32 menu bms w atchdog the bms watchdog function verifies bms connectivity. A points list simply specifies the input and output points that are required for a project. Section includes a indicative. Schedule Bms Points List.
From www.youtube.com
How to a BMS Engineer part 5 (BMS Data Point Schedule) YouTube Schedule Bms Points List Specifying points is a great method for getting what is needed on a ddc project. Demonstrate class programming with point options of beep duration, beep rate, alarm archiving and color banding. The watchdog is required for the bms to take the place of a hardwired sensor. The document lists the points, devices, and cables for a building management system (bms).. Schedule Bms Points List.
From www.youtube.com
Building Management System Schematic Diagram & IO List BMS Training Schedule Bms Points List Bms communication the user can remotely adjust setpoints, view unit status points and alarms. The watchdog is required for the bms to take the place of a hardwired sensor. Section includes a indicative minimum input/output points list for the building management system (bms). The document lists the points, devices, and cables for a building management system (bms). Demonstrate class programming. Schedule Bms Points List.
From www.scribd.com
H202_BMS Point Schedule (MV) PDF Transformer Battery Charger Schedule Bms Points List The idea is to account. Demonstrate class programming with point options of beep duration, beep rate, alarm archiving and color banding. Page 32 menu bms w atchdog the bms watchdog function verifies bms connectivity. Section includes a indicative minimum input/output points list for the building management system (bms). Specifying points is a great method for getting what is needed on. Schedule Bms Points List.