Lap Joint Dimensions . (nps) nominal pipe size 1/2 All dimensions are in inches nominal pipe size outside diameter (o) thickness (t) length thru hub (y) hub diameter (x) radius (r) number of. 22 rows this datasheet is for lap joint flanges that have a flat face connection. Lap joint flange dimensions, tolerances and required stud bolts, asme b16.5. (1) gasket face finish shall be in accordance with asme b16.5 for raised face flanges (2) the lap thickness t, shall not be less than nominal pipe wall thickness. (nps) nominal pipe size 12 Lap joint flange dimensions are covered in. Lap joint flange dimensions, tolerances and required stud bolts, asme b16.5. Nps 1/2 through nps 24.
from www.researchgate.net
(nps) nominal pipe size 1/2 Lap joint flange dimensions, tolerances and required stud bolts, asme b16.5. 22 rows this datasheet is for lap joint flanges that have a flat face connection. All dimensions are in inches nominal pipe size outside diameter (o) thickness (t) length thru hub (y) hub diameter (x) radius (r) number of. (1) gasket face finish shall be in accordance with asme b16.5 for raised face flanges (2) the lap thickness t, shall not be less than nominal pipe wall thickness. (nps) nominal pipe size 12 Lap joint flange dimensions, tolerances and required stud bolts, asme b16.5. Nps 1/2 through nps 24. Lap joint flange dimensions are covered in.
(a) Single lap joint and (b) overlap joint under shear force (F). All
Lap Joint Dimensions Lap joint flange dimensions are covered in. (nps) nominal pipe size 1/2 Lap joint flange dimensions are covered in. Lap joint flange dimensions, tolerances and required stud bolts, asme b16.5. Lap joint flange dimensions, tolerances and required stud bolts, asme b16.5. 22 rows this datasheet is for lap joint flanges that have a flat face connection. (nps) nominal pipe size 12 (1) gasket face finish shall be in accordance with asme b16.5 for raised face flanges (2) the lap thickness t, shall not be less than nominal pipe wall thickness. All dimensions are in inches nominal pipe size outside diameter (o) thickness (t) length thru hub (y) hub diameter (x) radius (r) number of. Nps 1/2 through nps 24.
From www.lfpco.com
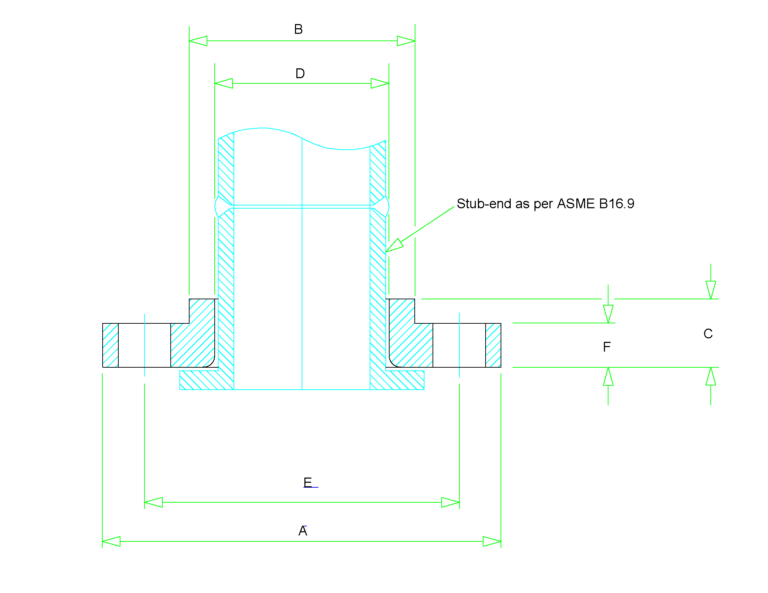
Dimensions of lap joint stub ends ASME B16.9 Duplex steel pipes Lap Joint Dimensions All dimensions are in inches nominal pipe size outside diameter (o) thickness (t) length thru hub (y) hub diameter (x) radius (r) number of. 22 rows this datasheet is for lap joint flanges that have a flat face connection. (1) gasket face finish shall be in accordance with asme b16.5 for raised face flanges (2) the lap thickness t, shall. Lap Joint Dimensions.
From wooddad.com
8 Simple Wood Joints For Beginners Wood Dad Lap Joint Dimensions Lap joint flange dimensions, tolerances and required stud bolts, asme b16.5. (nps) nominal pipe size 1/2 All dimensions are in inches nominal pipe size outside diameter (o) thickness (t) length thru hub (y) hub diameter (x) radius (r) number of. (1) gasket face finish shall be in accordance with asme b16.5 for raised face flanges (2) the lap thickness t,. Lap Joint Dimensions.
From www.researchgate.net
Dimensions of singlelap joint Download Scientific Diagram Lap Joint Dimensions (nps) nominal pipe size 12 Nps 1/2 through nps 24. All dimensions are in inches nominal pipe size outside diameter (o) thickness (t) length thru hub (y) hub diameter (x) radius (r) number of. (1) gasket face finish shall be in accordance with asme b16.5 for raised face flanges (2) the lap thickness t, shall not be less than nominal. Lap Joint Dimensions.
From blog.thepipingmart.com
Lap Joint Flanges Dimension 300 lbs Lap Joint Dimensions All dimensions are in inches nominal pipe size outside diameter (o) thickness (t) length thru hub (y) hub diameter (x) radius (r) number of. 22 rows this datasheet is for lap joint flanges that have a flat face connection. Lap joint flange dimensions are covered in. Nps 1/2 through nps 24. Lap joint flange dimensions, tolerances and required stud bolts,. Lap Joint Dimensions.
From www.researchgate.net
Single lap joint, (a) dimensions in mm and speckled surface for Lap Joint Dimensions Nps 1/2 through nps 24. Lap joint flange dimensions, tolerances and required stud bolts, asme b16.5. (nps) nominal pipe size 12 (nps) nominal pipe size 1/2 Lap joint flange dimensions, tolerances and required stud bolts, asme b16.5. 22 rows this datasheet is for lap joint flanges that have a flat face connection. Lap joint flange dimensions are covered in. (1). Lap Joint Dimensions.
From mavink.com
Lap Joint Flange Dimensions Lap Joint Dimensions Nps 1/2 through nps 24. (nps) nominal pipe size 12 Lap joint flange dimensions, tolerances and required stud bolts, asme b16.5. 22 rows this datasheet is for lap joint flanges that have a flat face connection. All dimensions are in inches nominal pipe size outside diameter (o) thickness (t) length thru hub (y) hub diameter (x) radius (r) number of.. Lap Joint Dimensions.
From mungfali.com
Lap Joint Flange Dimensions Lap Joint Dimensions Lap joint flange dimensions are covered in. (nps) nominal pipe size 1/2 (1) gasket face finish shall be in accordance with asme b16.5 for raised face flanges (2) the lap thickness t, shall not be less than nominal pipe wall thickness. Lap joint flange dimensions, tolerances and required stud bolts, asme b16.5. 22 rows this datasheet is for lap joint. Lap Joint Dimensions.
From www.mestainc.net
ASTM A350 LF2 lap joint flanges manufacturer in India SA 350 CL1 LJ Lap Joint Dimensions Lap joint flange dimensions are covered in. (nps) nominal pipe size 1/2 All dimensions are in inches nominal pipe size outside diameter (o) thickness (t) length thru hub (y) hub diameter (x) radius (r) number of. Lap joint flange dimensions, tolerances and required stud bolts, asme b16.5. 22 rows this datasheet is for lap joint flanges that have a flat. Lap Joint Dimensions.
From schoolofwoodwork.com
Lap Joints A Primer for Joinery [Educational Infographic] Florida Lap Joint Dimensions Lap joint flange dimensions are covered in. Nps 1/2 through nps 24. (nps) nominal pipe size 12 (1) gasket face finish shall be in accordance with asme b16.5 for raised face flanges (2) the lap thickness t, shall not be less than nominal pipe wall thickness. 22 rows this datasheet is for lap joint flanges that have a flat face. Lap Joint Dimensions.
From www.zzsteels.com
Lap Joint Stub End Catalog & Dimensions ASME B16.9 ZIZI Lap Joint Dimensions Lap joint flange dimensions, tolerances and required stud bolts, asme b16.5. (nps) nominal pipe size 12 Nps 1/2 through nps 24. (1) gasket face finish shall be in accordance with asme b16.5 for raised face flanges (2) the lap thickness t, shall not be less than nominal pipe wall thickness. (nps) nominal pipe size 1/2 All dimensions are in inches. Lap Joint Dimensions.
From getpipe.com
150 Stainless Steel FF Lap Joint Flange GETPIPE Lap Joint Dimensions Lap joint flange dimensions are covered in. (nps) nominal pipe size 12 (1) gasket face finish shall be in accordance with asme b16.5 for raised face flanges (2) the lap thickness t, shall not be less than nominal pipe wall thickness. Lap joint flange dimensions, tolerances and required stud bolts, asme b16.5. Nps 1/2 through nps 24. 22 rows this. Lap Joint Dimensions.
From www.vishalsteel.com
DIN 2642 Flange DIN 2642 PN10 Lap Joint Flange dimensions in mm Lap Joint Dimensions (1) gasket face finish shall be in accordance with asme b16.5 for raised face flanges (2) the lap thickness t, shall not be less than nominal pipe wall thickness. All dimensions are in inches nominal pipe size outside diameter (o) thickness (t) length thru hub (y) hub diameter (x) radius (r) number of. Lap joint flange dimensions are covered in.. Lap Joint Dimensions.
From www.ssmsteel.com
Lap Joint Stub Ends Lap Joint Dimensions (nps) nominal pipe size 1/2 Lap joint flange dimensions are covered in. (nps) nominal pipe size 12 Lap joint flange dimensions, tolerances and required stud bolts, asme b16.5. All dimensions are in inches nominal pipe size outside diameter (o) thickness (t) length thru hub (y) hub diameter (x) radius (r) number of. Nps 1/2 through nps 24. (1) gasket face. Lap Joint Dimensions.
From www.lfpco.com
Dimensions of lap joint flanges ASME B16.5 A519 4130, A519 4140 Lap Joint Dimensions Nps 1/2 through nps 24. All dimensions are in inches nominal pipe size outside diameter (o) thickness (t) length thru hub (y) hub diameter (x) radius (r) number of. Lap joint flange dimensions, tolerances and required stud bolts, asme b16.5. 22 rows this datasheet is for lap joint flanges that have a flat face connection. Lap joint flange dimensions are. Lap Joint Dimensions.
From mavink.com
Lap Joint Flange Dimensions Lap Joint Dimensions Lap joint flange dimensions, tolerances and required stud bolts, asme b16.5. (1) gasket face finish shall be in accordance with asme b16.5 for raised face flanges (2) the lap thickness t, shall not be less than nominal pipe wall thickness. 22 rows this datasheet is for lap joint flanges that have a flat face connection. Nps 1/2 through nps 24.. Lap Joint Dimensions.
From www.dimensions.com
Wood Joint HalfLap, Straight Dimensions & Drawings Lap Joint Dimensions (nps) nominal pipe size 12 All dimensions are in inches nominal pipe size outside diameter (o) thickness (t) length thru hub (y) hub diameter (x) radius (r) number of. Lap joint flange dimensions, tolerances and required stud bolts, asme b16.5. (1) gasket face finish shall be in accordance with asme b16.5 for raised face flanges (2) the lap thickness t,. Lap Joint Dimensions.
From topsteelmill.com
Lap Joint Stub Ends Steel Pipe Seamless Buttweld Fittings Elbow Nipple Lap Joint Dimensions (nps) nominal pipe size 12 Nps 1/2 through nps 24. Lap joint flange dimensions are covered in. (1) gasket face finish shall be in accordance with asme b16.5 for raised face flanges (2) the lap thickness t, shall not be less than nominal pipe wall thickness. (nps) nominal pipe size 1/2 22 rows this datasheet is for lap joint flanges. Lap Joint Dimensions.
From mavink.com
Lap Joint Flange Dimensions Lap Joint Dimensions 22 rows this datasheet is for lap joint flanges that have a flat face connection. Lap joint flange dimensions, tolerances and required stud bolts, asme b16.5. (nps) nominal pipe size 1/2 (1) gasket face finish shall be in accordance with asme b16.5 for raised face flanges (2) the lap thickness t, shall not be less than nominal pipe wall thickness.. Lap Joint Dimensions.
From www.researchgate.net
(a) Single lap joint and (b) overlap joint under shear force (F). All Lap Joint Dimensions (nps) nominal pipe size 1/2 Nps 1/2 through nps 24. Lap joint flange dimensions, tolerances and required stud bolts, asme b16.5. (nps) nominal pipe size 12 All dimensions are in inches nominal pipe size outside diameter (o) thickness (t) length thru hub (y) hub diameter (x) radius (r) number of. (1) gasket face finish shall be in accordance with asme. Lap Joint Dimensions.
From www.aiophotoz.com
Lap Joint Flange Dimensions Images and Photos finder Lap Joint Dimensions 22 rows this datasheet is for lap joint flanges that have a flat face connection. (1) gasket face finish shall be in accordance with asme b16.5 for raised face flanges (2) the lap thickness t, shall not be less than nominal pipe wall thickness. Lap joint flange dimensions are covered in. Lap joint flange dimensions, tolerances and required stud bolts,. Lap Joint Dimensions.
From www.vishalsteel.com
DIN 2642 Flange DIN 2642 PN10 Lap Joint Flange dimensions in mm Lap Joint Dimensions (1) gasket face finish shall be in accordance with asme b16.5 for raised face flanges (2) the lap thickness t, shall not be less than nominal pipe wall thickness. (nps) nominal pipe size 12 22 rows this datasheet is for lap joint flanges that have a flat face connection. Lap joint flange dimensions, tolerances and required stud bolts, asme b16.5.. Lap Joint Dimensions.
From accessoriesbatteriesgiardino.blogspot.com
Accessories and batteries Stub end dimensions Lap Joint Dimensions 22 rows this datasheet is for lap joint flanges that have a flat face connection. Lap joint flange dimensions, tolerances and required stud bolts, asme b16.5. Lap joint flange dimensions, tolerances and required stud bolts, asme b16.5. (1) gasket face finish shall be in accordance with asme b16.5 for raised face flanges (2) the lap thickness t, shall not be. Lap Joint Dimensions.
From www.researchgate.net
The dimensions of singlelap joint with shim. Download Scientific Diagram Lap Joint Dimensions (nps) nominal pipe size 1/2 Lap joint flange dimensions, tolerances and required stud bolts, asme b16.5. (nps) nominal pipe size 12 All dimensions are in inches nominal pipe size outside diameter (o) thickness (t) length thru hub (y) hub diameter (x) radius (r) number of. Nps 1/2 through nps 24. Lap joint flange dimensions, tolerances and required stud bolts, asme. Lap Joint Dimensions.
From www.researchgate.net
Specimen dimensions of lap joint in mm. Download Scientific Diagram Lap Joint Dimensions Lap joint flange dimensions, tolerances and required stud bolts, asme b16.5. (nps) nominal pipe size 12 Lap joint flange dimensions are covered in. 22 rows this datasheet is for lap joint flanges that have a flat face connection. (nps) nominal pipe size 1/2 Nps 1/2 through nps 24. Lap joint flange dimensions, tolerances and required stud bolts, asme b16.5. (1). Lap Joint Dimensions.
From haihaoflanges.com
ASME B16.5 Loose Flange/Lap Joint Flange Dimensions Steel Flanges Lap Joint Dimensions (nps) nominal pipe size 1/2 All dimensions are in inches nominal pipe size outside diameter (o) thickness (t) length thru hub (y) hub diameter (x) radius (r) number of. Lap joint flange dimensions are covered in. 22 rows this datasheet is for lap joint flanges that have a flat face connection. (1) gasket face finish shall be in accordance with. Lap Joint Dimensions.
From red-bag.com
BNDSC11 Design standard, dimensions of lapjoints, stub ends and caps Lap Joint Dimensions Lap joint flange dimensions, tolerances and required stud bolts, asme b16.5. (nps) nominal pipe size 1/2 22 rows this datasheet is for lap joint flanges that have a flat face connection. All dimensions are in inches nominal pipe size outside diameter (o) thickness (t) length thru hub (y) hub diameter (x) radius (r) number of. (nps) nominal pipe size 12. Lap Joint Dimensions.
From www.dimensions.com
Wood Joint HalfLap, Cross Dimensions & Drawings Lap Joint Dimensions Nps 1/2 through nps 24. (nps) nominal pipe size 12 22 rows this datasheet is for lap joint flanges that have a flat face connection. All dimensions are in inches nominal pipe size outside diameter (o) thickness (t) length thru hub (y) hub diameter (x) radius (r) number of. (nps) nominal pipe size 1/2 (1) gasket face finish shall be. Lap Joint Dimensions.
From www.researchgate.net
Dimensions of the lap joint (all in mm) Download Scientific Diagram Lap Joint Dimensions Nps 1/2 through nps 24. Lap joint flange dimensions, tolerances and required stud bolts, asme b16.5. Lap joint flange dimensions, tolerances and required stud bolts, asme b16.5. 22 rows this datasheet is for lap joint flanges that have a flat face connection. Lap joint flange dimensions are covered in. All dimensions are in inches nominal pipe size outside diameter (o). Lap Joint Dimensions.
From www.shopoilsupplies.com
150 Series Lap Joint Flange Lap Joint Dimensions Nps 1/2 through nps 24. Lap joint flange dimensions, tolerances and required stud bolts, asme b16.5. (nps) nominal pipe size 1/2 (1) gasket face finish shall be in accordance with asme b16.5 for raised face flanges (2) the lap thickness t, shall not be less than nominal pipe wall thickness. All dimensions are in inches nominal pipe size outside diameter. Lap Joint Dimensions.
From hardhatengineer.com
Lap Joint Flange Dimensions Class 150 to Class 2500 Lap Joint Dimensions Lap joint flange dimensions are covered in. Lap joint flange dimensions, tolerances and required stud bolts, asme b16.5. Nps 1/2 through nps 24. (1) gasket face finish shall be in accordance with asme b16.5 for raised face flanges (2) the lap thickness t, shall not be less than nominal pipe wall thickness. Lap joint flange dimensions, tolerances and required stud. Lap Joint Dimensions.
From mpjainco.com
lap joint stub end fittings manufacturers, long stub end, short stub Lap Joint Dimensions 22 rows this datasheet is for lap joint flanges that have a flat face connection. Lap joint flange dimensions, tolerances and required stud bolts, asme b16.5. (nps) nominal pipe size 12 Lap joint flange dimensions, tolerances and required stud bolts, asme b16.5. Nps 1/2 through nps 24. (1) gasket face finish shall be in accordance with asme b16.5 for raised. Lap Joint Dimensions.
From schoolofwoodwork.com
Lap Joints A Primer for Joinery [Educational Infographic] Florida Lap Joint Dimensions All dimensions are in inches nominal pipe size outside diameter (o) thickness (t) length thru hub (y) hub diameter (x) radius (r) number of. Nps 1/2 through nps 24. (1) gasket face finish shall be in accordance with asme b16.5 for raised face flanges (2) the lap thickness t, shall not be less than nominal pipe wall thickness. Lap joint. Lap Joint Dimensions.
From engineersblog.net
What is Single Lap Joint? Explain in details step by step procedure to Lap Joint Dimensions Lap joint flange dimensions, tolerances and required stud bolts, asme b16.5. Nps 1/2 through nps 24. Lap joint flange dimensions, tolerances and required stud bolts, asme b16.5. 22 rows this datasheet is for lap joint flanges that have a flat face connection. (1) gasket face finish shall be in accordance with asme b16.5 for raised face flanges (2) the lap. Lap Joint Dimensions.
From www.researchgate.net
Nominal dimensions of SLJ specimens. SLJ singlelap joint. Download Lap Joint Dimensions (nps) nominal pipe size 1/2 (nps) nominal pipe size 12 Lap joint flange dimensions are covered in. (1) gasket face finish shall be in accordance with asme b16.5 for raised face flanges (2) the lap thickness t, shall not be less than nominal pipe wall thickness. Lap joint flange dimensions, tolerances and required stud bolts, asme b16.5. All dimensions are. Lap Joint Dimensions.
From mtcopeland.com
How to Make a HalfLap Joint in 6 Steps MT Copeland Lap Joint Dimensions (1) gasket face finish shall be in accordance with asme b16.5 for raised face flanges (2) the lap thickness t, shall not be less than nominal pipe wall thickness. Nps 1/2 through nps 24. (nps) nominal pipe size 12 Lap joint flange dimensions are covered in. 22 rows this datasheet is for lap joint flanges that have a flat face. Lap Joint Dimensions.