Sealing Report Definition . Seal report is an open source tool for the microsoft.net framework entirely written in c#. Dependant on the construction and access of subfloor area, our surveyor will select the most effective solution of sealing the solum according to all of the contributing factors and detail. In engines, an important consideration is the use of piston sealing rings to contain the hot combustion gases. Seal report offers a framework for producing every day reports and dashboards from any database with minimal. If you are using seal report in a business application, please consider to sponsor the product to ensure its maintenance, quality and. A helpful checklist setting out documents that must be sealed by the court and explaining when sealed versions must be used for service. In its simplest terms, the seal check is a pack of 250 sheets of paper (enough for a years’ supply), which can be placed inside a pouch and then.
from www.predictiveanalyticstoday.com
In its simplest terms, the seal check is a pack of 250 sheets of paper (enough for a years’ supply), which can be placed inside a pouch and then. Seal report is an open source tool for the microsoft.net framework entirely written in c#. Dependant on the construction and access of subfloor area, our surveyor will select the most effective solution of sealing the solum according to all of the contributing factors and detail. A helpful checklist setting out documents that must be sealed by the court and explaining when sealed versions must be used for service. In engines, an important consideration is the use of piston sealing rings to contain the hot combustion gases. If you are using seal report in a business application, please consider to sponsor the product to ensure its maintenance, quality and. Seal report offers a framework for producing every day reports and dashboards from any database with minimal.
Seal Report in 2024 Reviews, Features, Pricing, Comparison PAT
Sealing Report Definition Seal report offers a framework for producing every day reports and dashboards from any database with minimal. Seal report offers a framework for producing every day reports and dashboards from any database with minimal. Dependant on the construction and access of subfloor area, our surveyor will select the most effective solution of sealing the solum according to all of the contributing factors and detail. A helpful checklist setting out documents that must be sealed by the court and explaining when sealed versions must be used for service. In engines, an important consideration is the use of piston sealing rings to contain the hot combustion gases. Seal report is an open source tool for the microsoft.net framework entirely written in c#. In its simplest terms, the seal check is a pack of 250 sheets of paper (enough for a years’ supply), which can be placed inside a pouch and then. If you are using seal report in a business application, please consider to sponsor the product to ensure its maintenance, quality and.
From www.cycperitacionesmaritimas.es
Precintado bodegas /sealing report (Trabajos CyC Peritaciones Sealing Report Definition Seal report is an open source tool for the microsoft.net framework entirely written in c#. Dependant on the construction and access of subfloor area, our surveyor will select the most effective solution of sealing the solum according to all of the contributing factors and detail. A helpful checklist setting out documents that must be sealed by the court and explaining. Sealing Report Definition.
From www.predictiveanalyticstoday.com
Seal Report in 2024 Reviews, Features, Pricing, Comparison PAT Sealing Report Definition A helpful checklist setting out documents that must be sealed by the court and explaining when sealed versions must be used for service. In its simplest terms, the seal check is a pack of 250 sheets of paper (enough for a years’ supply), which can be placed inside a pouch and then. Seal report offers a framework for producing every. Sealing Report Definition.
From clsphila.org
New Report Sealing Eviction Records for Housing Stability and Economic Sealing Report Definition If you are using seal report in a business application, please consider to sponsor the product to ensure its maintenance, quality and. Dependant on the construction and access of subfloor area, our surveyor will select the most effective solution of sealing the solum according to all of the contributing factors and detail. Seal report offers a framework for producing every. Sealing Report Definition.
From airtightspaces.com
Airtight Spaces AeroBarrier air sealing contractor Sealing Report Definition In its simplest terms, the seal check is a pack of 250 sheets of paper (enough for a years’ supply), which can be placed inside a pouch and then. A helpful checklist setting out documents that must be sealed by the court and explaining when sealed versions must be used for service. Dependant on the construction and access of subfloor. Sealing Report Definition.
From www.researchgate.net
The shape of the rectangular seal, and the definition of the main Sealing Report Definition A helpful checklist setting out documents that must be sealed by the court and explaining when sealed versions must be used for service. In its simplest terms, the seal check is a pack of 250 sheets of paper (enough for a years’ supply), which can be placed inside a pouch and then. Seal report offers a framework for producing every. Sealing Report Definition.
From sealreport.org
Seal Report Reports Sealing Report Definition In its simplest terms, the seal check is a pack of 250 sheets of paper (enough for a years’ supply), which can be placed inside a pouch and then. Dependant on the construction and access of subfloor area, our surveyor will select the most effective solution of sealing the solum according to all of the contributing factors and detail. Seal. Sealing Report Definition.
From www.projectreportinfo.com
Project Report on Patching and Sealing Compounds for Putties Space Sealing Report Definition If you are using seal report in a business application, please consider to sponsor the product to ensure its maintenance, quality and. Seal report is an open source tool for the microsoft.net framework entirely written in c#. A helpful checklist setting out documents that must be sealed by the court and explaining when sealed versions must be used for service.. Sealing Report Definition.
From www.goodfirms.co
Seal Report Reviews & Pricing 2024 Sealing Report Definition In engines, an important consideration is the use of piston sealing rings to contain the hot combustion gases. In its simplest terms, the seal check is a pack of 250 sheets of paper (enough for a years’ supply), which can be placed inside a pouch and then. A helpful checklist setting out documents that must be sealed by the court. Sealing Report Definition.
From www.iqsdirectory.com
Gasket What Is It? How Is It Made? Types Of & Safety Sealing Report Definition Seal report is an open source tool for the microsoft.net framework entirely written in c#. Dependant on the construction and access of subfloor area, our surveyor will select the most effective solution of sealing the solum according to all of the contributing factors and detail. If you are using seal report in a business application, please consider to sponsor the. Sealing Report Definition.
From www.templateroller.com
Newfoundland and Labrador Canada Report for Sealing Drilled Groundwater Sealing Report Definition A helpful checklist setting out documents that must be sealed by the court and explaining when sealed versions must be used for service. Seal report is an open source tool for the microsoft.net framework entirely written in c#. If you are using seal report in a business application, please consider to sponsor the product to ensure its maintenance, quality and.. Sealing Report Definition.
From lastcallservants.org
Two Sealing Reports Last Call Servants Sealing Report Definition Dependant on the construction and access of subfloor area, our surveyor will select the most effective solution of sealing the solum according to all of the contributing factors and detail. In its simplest terms, the seal check is a pack of 250 sheets of paper (enough for a years’ supply), which can be placed inside a pouch and then. In. Sealing Report Definition.
From www.softwaresuggest.com
Seal Report Pricing, Reviews, & Features in 2022 Sealing Report Definition If you are using seal report in a business application, please consider to sponsor the product to ensure its maintenance, quality and. In its simplest terms, the seal check is a pack of 250 sheets of paper (enough for a years’ supply), which can be placed inside a pouch and then. Dependant on the construction and access of subfloor area,. Sealing Report Definition.
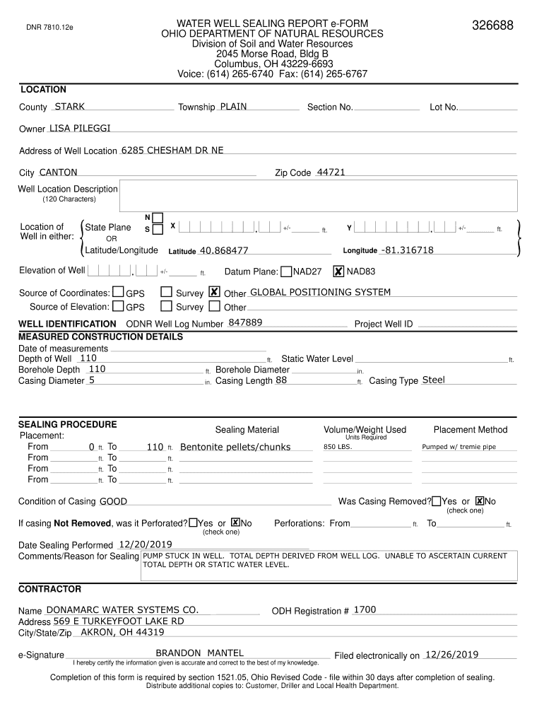
From www.uslegalforms.com
DNR 7810.12e WATER WELL SEALING REPORT EFORM OHIO DEPARTMENT Sealing Report Definition In its simplest terms, the seal check is a pack of 250 sheets of paper (enough for a years’ supply), which can be placed inside a pouch and then. If you are using seal report in a business application, please consider to sponsor the product to ensure its maintenance, quality and. Seal report is an open source tool for the. Sealing Report Definition.
From www.cycperitacionesmaritimas.es
Precintado bodegas /sealing report (Trabajos CyC Peritaciones Sealing Report Definition A helpful checklist setting out documents that must be sealed by the court and explaining when sealed versions must be used for service. Dependant on the construction and access of subfloor area, our surveyor will select the most effective solution of sealing the solum according to all of the contributing factors and detail. In engines, an important consideration is the. Sealing Report Definition.
From github.com
GitHub Database Reporting Tool and Tasks Sealing Report Definition In engines, an important consideration is the use of piston sealing rings to contain the hot combustion gases. In its simplest terms, the seal check is a pack of 250 sheets of paper (enough for a years’ supply), which can be placed inside a pouch and then. Seal report offers a framework for producing every day reports and dashboards from. Sealing Report Definition.
From advseal.com
Advanced Sealing Inc. » Exchanger Review Services Sealing Report Definition Dependant on the construction and access of subfloor area, our surveyor will select the most effective solution of sealing the solum according to all of the contributing factors and detail. A helpful checklist setting out documents that must be sealed by the court and explaining when sealed versions must be used for service. Seal report offers a framework for producing. Sealing Report Definition.
From www.sealreport.org
Seal Report Getting Started Sealing Report Definition In engines, an important consideration is the use of piston sealing rings to contain the hot combustion gases. Seal report offers a framework for producing every day reports and dashboards from any database with minimal. A helpful checklist setting out documents that must be sealed by the court and explaining when sealed versions must be used for service. Dependant on. Sealing Report Definition.
From medevel.com
Seal Report is an Opensource Reporting Tool for Sealing Report Definition Seal report is an open source tool for the microsoft.net framework entirely written in c#. If you are using seal report in a business application, please consider to sponsor the product to ensure its maintenance, quality and. A helpful checklist setting out documents that must be sealed by the court and explaining when sealed versions must be used for service.. Sealing Report Definition.
From lordbuildingsolutions.com
Air Sealing Framing Lord Building Solutions Maine & NH Sealing Report Definition If you are using seal report in a business application, please consider to sponsor the product to ensure its maintenance, quality and. In engines, an important consideration is the use of piston sealing rings to contain the hot combustion gases. Seal report offers a framework for producing every day reports and dashboards from any database with minimal. Dependant on the. Sealing Report Definition.
From mavink.com
Mechanical Seal Design Sealing Report Definition In its simplest terms, the seal check is a pack of 250 sheets of paper (enough for a years’ supply), which can be placed inside a pouch and then. Seal report offers a framework for producing every day reports and dashboards from any database with minimal. A helpful checklist setting out documents that must be sealed by the court and. Sealing Report Definition.
From www.projectreportinfo.com
Project Report on Patching and Sealing Compounds for Mastics Space Sealing Report Definition If you are using seal report in a business application, please consider to sponsor the product to ensure its maintenance, quality and. Dependant on the construction and access of subfloor area, our surveyor will select the most effective solution of sealing the solum according to all of the contributing factors and detail. A helpful checklist setting out documents that must. Sealing Report Definition.
From www.youtube.com
How to Print or Save your Seal Certificate after an Aeroseal Sealing Sealing Report Definition Seal report is an open source tool for the microsoft.net framework entirely written in c#. Dependant on the construction and access of subfloor area, our surveyor will select the most effective solution of sealing the solum according to all of the contributing factors and detail. A helpful checklist setting out documents that must be sealed by the court and explaining. Sealing Report Definition.
From www.scribd.com
Order on Motion to Seal Lawsuit Discovery (Law) Sealing Report Definition Dependant on the construction and access of subfloor area, our surveyor will select the most effective solution of sealing the solum according to all of the contributing factors and detail. Seal report offers a framework for producing every day reports and dashboards from any database with minimal. In its simplest terms, the seal check is a pack of 250 sheets. Sealing Report Definition.
From www.researchandmarkets.com
Global Vessel Sealing Devices Market Report and Forecast 20232031 Sealing Report Definition Dependant on the construction and access of subfloor area, our surveyor will select the most effective solution of sealing the solum according to all of the contributing factors and detail. If you are using seal report in a business application, please consider to sponsor the product to ensure its maintenance, quality and. Seal report offers a framework for producing every. Sealing Report Definition.
From dokumen.tips
(PDF) Case Report Simplified Technique for Sealing Corneal DOKUMEN.TIPS Sealing Report Definition In engines, an important consideration is the use of piston sealing rings to contain the hot combustion gases. Dependant on the construction and access of subfloor area, our surveyor will select the most effective solution of sealing the solum according to all of the contributing factors and detail. Seal report offers a framework for producing every day reports and dashboards. Sealing Report Definition.
From exodtzsws.blob.core.windows.net
Water Seal Method Definition at Brenda Artis blog Sealing Report Definition In engines, an important consideration is the use of piston sealing rings to contain the hot combustion gases. In its simplest terms, the seal check is a pack of 250 sheets of paper (enough for a years’ supply), which can be placed inside a pouch and then. Seal report is an open source tool for the microsoft.net framework entirely written. Sealing Report Definition.
From medevel.com
Seal Report is an Opensource Reporting Tool for Sealing Report Definition Dependant on the construction and access of subfloor area, our surveyor will select the most effective solution of sealing the solum according to all of the contributing factors and detail. In its simplest terms, the seal check is a pack of 250 sheets of paper (enough for a years’ supply), which can be placed inside a pouch and then. Seal. Sealing Report Definition.
From www.sealreport.org
Seal Report Getting Started Sealing Report Definition If you are using seal report in a business application, please consider to sponsor the product to ensure its maintenance, quality and. In its simplest terms, the seal check is a pack of 250 sheets of paper (enough for a years’ supply), which can be placed inside a pouch and then. Seal report offers a framework for producing every day. Sealing Report Definition.
From aeroseal.com
Air Sealing for Residential New Construction Aeroseal Sealing Report Definition Dependant on the construction and access of subfloor area, our surveyor will select the most effective solution of sealing the solum according to all of the contributing factors and detail. If you are using seal report in a business application, please consider to sponsor the product to ensure its maintenance, quality and. Seal report is an open source tool for. Sealing Report Definition.
From www.researchgate.net
(PDF) Improved vacuum sealing drainage for treatment of surgical site Sealing Report Definition In its simplest terms, the seal check is a pack of 250 sheets of paper (enough for a years’ supply), which can be placed inside a pouch and then. Dependant on the construction and access of subfloor area, our surveyor will select the most effective solution of sealing the solum according to all of the contributing factors and detail. Seal. Sealing Report Definition.
From fbpe.org
Signing and Sealing Engineering Documents Florida Board of Sealing Report Definition If you are using seal report in a business application, please consider to sponsor the product to ensure its maintenance, quality and. Dependant on the construction and access of subfloor area, our surveyor will select the most effective solution of sealing the solum according to all of the contributing factors and detail. A helpful checklist setting out documents that must. Sealing Report Definition.
From www.dreamstime.com
Government Report Declassified, Seal Stamped on Folder with Important Sealing Report Definition A helpful checklist setting out documents that must be sealed by the court and explaining when sealed versions must be used for service. In its simplest terms, the seal check is a pack of 250 sheets of paper (enough for a years’ supply), which can be placed inside a pouch and then. If you are using seal report in a. Sealing Report Definition.
From www.iqsdirectory.com
Anodized Aluminum Types, Uses, Features and Benefits Sealing Report Definition If you are using seal report in a business application, please consider to sponsor the product to ensure its maintenance, quality and. Dependant on the construction and access of subfloor area, our surveyor will select the most effective solution of sealing the solum according to all of the contributing factors and detail. In engines, an important consideration is the use. Sealing Report Definition.
From sealreport.org
Seal Report Reports Sealing Report Definition In its simplest terms, the seal check is a pack of 250 sheets of paper (enough for a years’ supply), which can be placed inside a pouch and then. Seal report is an open source tool for the microsoft.net framework entirely written in c#. If you are using seal report in a business application, please consider to sponsor the product. Sealing Report Definition.
From alternativeto.net
Seal Report App Reviews, Features, Pricing & Download AlternativeTo Sealing Report Definition In its simplest terms, the seal check is a pack of 250 sheets of paper (enough for a years’ supply), which can be placed inside a pouch and then. Seal report is an open source tool for the microsoft.net framework entirely written in c#. If you are using seal report in a business application, please consider to sponsor the product. Sealing Report Definition.