Swansea Mall Redevelopment . According to one of the owners of the property, dick anagnost, the group has finalized negotiations with walmart but the ecrs are not complete yet. After years of stalled progress, plans to bring new life to the site of the defunct swansea mall are once again picking up now that developers have reached an agreement. The mall’s ring road and parking lot deteriorated rapidly after the mall’s closing;. Established in manchester — in that city, a. On the road’s west side, the former swansea mall is in the midst of a massive redevelopment. With negotiations finalized with walmart, plans are taking shape at the former swansea mall property. If the town votes in favor of a redevelopment authority, the swansea mall should have new owners by late next week.
        
         
         
        from www.walesonline.co.uk 
     
        
        On the road’s west side, the former swansea mall is in the midst of a massive redevelopment. After years of stalled progress, plans to bring new life to the site of the defunct swansea mall are once again picking up now that developers have reached an agreement. If the town votes in favor of a redevelopment authority, the swansea mall should have new owners by late next week. According to one of the owners of the property, dick anagnost, the group has finalized negotiations with walmart but the ecrs are not complete yet. Established in manchester — in that city, a. The mall’s ring road and parking lot deteriorated rapidly after the mall’s closing;. With negotiations finalized with walmart, plans are taking shape at the former swansea mall property.
    
    	
            
	
		 
	 
         
    This is how the new Parc Tawe will look as £15m redevelopment gets under way in Swansea Wales 
    Swansea Mall Redevelopment  After years of stalled progress, plans to bring new life to the site of the defunct swansea mall are once again picking up now that developers have reached an agreement. After years of stalled progress, plans to bring new life to the site of the defunct swansea mall are once again picking up now that developers have reached an agreement. The mall’s ring road and parking lot deteriorated rapidly after the mall’s closing;. Established in manchester — in that city, a. On the road’s west side, the former swansea mall is in the midst of a massive redevelopment. If the town votes in favor of a redevelopment authority, the swansea mall should have new owners by late next week. With negotiations finalized with walmart, plans are taking shape at the former swansea mall property. According to one of the owners of the property, dick anagnost, the group has finalized negotiations with walmart but the ecrs are not complete yet.
            
	
		 
	 
         
 
    
         
        From www.walesonline.co.uk 
                    Swansea redevelopment Wales Online Swansea Mall Redevelopment  Established in manchester — in that city, a. The mall’s ring road and parking lot deteriorated rapidly after the mall’s closing;. On the road’s west side, the former swansea mall is in the midst of a massive redevelopment. After years of stalled progress, plans to bring new life to the site of the defunct swansea mall are once again picking. Swansea Mall Redevelopment.
     
    
         
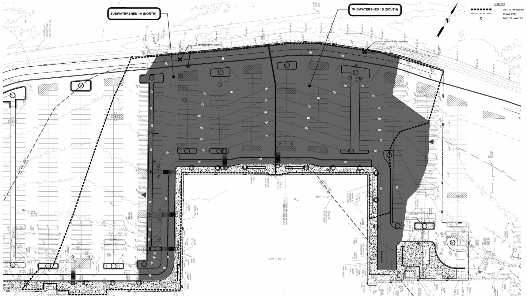
        From www.fando.com 
                    Swansea Mall Redevelopment and Adaptive Reuse Fuss & O'Neill Swansea Mall Redevelopment  After years of stalled progress, plans to bring new life to the site of the defunct swansea mall are once again picking up now that developers have reached an agreement. According to one of the owners of the property, dick anagnost, the group has finalized negotiations with walmart but the ecrs are not complete yet. On the road’s west side,. Swansea Mall Redevelopment.
     
    
         
        From www.walesonline.co.uk 
                    Swansea redevelopment Wales Online Swansea Mall Redevelopment  Established in manchester — in that city, a. If the town votes in favor of a redevelopment authority, the swansea mall should have new owners by late next week. According to one of the owners of the property, dick anagnost, the group has finalized negotiations with walmart but the ecrs are not complete yet. On the road’s west side, the. Swansea Mall Redevelopment.
     
    
         
        From fallriverreporter.com 
                    Swansea receives good news on Swansea Mall redevelopment plan Fall River Reporter Swansea Mall Redevelopment  Established in manchester — in that city, a. After years of stalled progress, plans to bring new life to the site of the defunct swansea mall are once again picking up now that developers have reached an agreement. On the road’s west side, the former swansea mall is in the midst of a massive redevelopment. According to one of the. Swansea Mall Redevelopment.
     
    
         
        From www.tripadvisor.com 
                    Quadrant Shopping Centre (Swansea) All You Need to Know BEFORE You Go Swansea Mall Redevelopment  According to one of the owners of the property, dick anagnost, the group has finalized negotiations with walmart but the ecrs are not complete yet. Established in manchester — in that city, a. If the town votes in favor of a redevelopment authority, the swansea mall should have new owners by late next week. On the road’s west side, the. Swansea Mall Redevelopment.
     
    
         
        From www.heraldnews.com 
                    Renderings show possibilities for Swansea Mall site Swansea Mall Redevelopment  Established in manchester — in that city, a. With negotiations finalized with walmart, plans are taking shape at the former swansea mall property. According to one of the owners of the property, dick anagnost, the group has finalized negotiations with walmart but the ecrs are not complete yet. If the town votes in favor of a redevelopment authority, the swansea. Swansea Mall Redevelopment.
     
    
         
        From www.bbc.co.uk 
                    Swansea Central plan Work starts on city redevelopment BBC News Swansea Mall Redevelopment  The mall’s ring road and parking lot deteriorated rapidly after the mall’s closing;. According to one of the owners of the property, dick anagnost, the group has finalized negotiations with walmart but the ecrs are not complete yet. On the road’s west side, the former swansea mall is in the midst of a massive redevelopment. After years of stalled progress,. Swansea Mall Redevelopment.
     
    
         
        From currently.att.yahoo.com 
                    How does Robert Kraft fit into Swansea Mall redevelopment plans? Swansea Mall Redevelopment  If the town votes in favor of a redevelopment authority, the swansea mall should have new owners by late next week. On the road’s west side, the former swansea mall is in the midst of a massive redevelopment. According to one of the owners of the property, dick anagnost, the group has finalized negotiations with walmart but the ecrs are. Swansea Mall Redevelopment.
     
    
         
        From www.southcoasttoday.com 
                    Swansea Mall redevelopment project at a crossroads Swansea Mall Redevelopment  According to one of the owners of the property, dick anagnost, the group has finalized negotiations with walmart but the ecrs are not complete yet. If the town votes in favor of a redevelopment authority, the swansea mall should have new owners by late next week. The mall’s ring road and parking lot deteriorated rapidly after the mall’s closing;. After. Swansea Mall Redevelopment.
     
    
         
        From www.fando.com 
                    Swansea Mall Redevelopment and Adaptive Reuse Fuss & O'Neill Swansea Mall Redevelopment  With negotiations finalized with walmart, plans are taking shape at the former swansea mall property. After years of stalled progress, plans to bring new life to the site of the defunct swansea mall are once again picking up now that developers have reached an agreement. According to one of the owners of the property, dick anagnost, the group has finalized. Swansea Mall Redevelopment.
     
    
         
        From www.walesonline.co.uk 
                    Swansea redevelopment Wales Online Swansea Mall Redevelopment  With negotiations finalized with walmart, plans are taking shape at the former swansea mall property. According to one of the owners of the property, dick anagnost, the group has finalized negotiations with walmart but the ecrs are not complete yet. Established in manchester — in that city, a. If the town votes in favor of a redevelopment authority, the swansea. Swansea Mall Redevelopment.
     
    
         
        From www.loopnet.com 
                    262 Swansea Mall Dr, Swansea, MA 02777 Swansea Center Swansea Mall Redevelopment  Established in manchester — in that city, a. According to one of the owners of the property, dick anagnost, the group has finalized negotiations with walmart but the ecrs are not complete yet. After years of stalled progress, plans to bring new life to the site of the defunct swansea mall are once again picking up now that developers have. Swansea Mall Redevelopment.
     
    
         
        From www.walesonline.co.uk 
                    Swansea redevelopment Wales Online Swansea Mall Redevelopment  On the road’s west side, the former swansea mall is in the midst of a massive redevelopment. After years of stalled progress, plans to bring new life to the site of the defunct swansea mall are once again picking up now that developers have reached an agreement. With negotiations finalized with walmart, plans are taking shape at the former swansea. Swansea Mall Redevelopment.
     
    
         
        From dalpos.com 
                    Swansea Mall Dalpos Swansea Mall Redevelopment  After years of stalled progress, plans to bring new life to the site of the defunct swansea mall are once again picking up now that developers have reached an agreement. The mall’s ring road and parking lot deteriorated rapidly after the mall’s closing;. According to one of the owners of the property, dick anagnost, the group has finalized negotiations with. Swansea Mall Redevelopment.
     
    
         
        From www.youtube.com 
                    Swansea Mall, MA last days at a dead mall before it’s abandoned during redevelopment ExLog Swansea Mall Redevelopment  With negotiations finalized with walmart, plans are taking shape at the former swansea mall property. Established in manchester — in that city, a. On the road’s west side, the former swansea mall is in the midst of a massive redevelopment. According to one of the owners of the property, dick anagnost, the group has finalized negotiations with walmart but the. Swansea Mall Redevelopment.
     
    
         
        From www.heraldnews.com 
                    Walmart, Swansea Mall owners near agreement; redevelopment could start Swansea Mall Redevelopment  The mall’s ring road and parking lot deteriorated rapidly after the mall’s closing;. With negotiations finalized with walmart, plans are taking shape at the former swansea mall property. According to one of the owners of the property, dick anagnost, the group has finalized negotiations with walmart but the ecrs are not complete yet. If the town votes in favor of. Swansea Mall Redevelopment.
     
    
         
        From www.heraldnews.com 
                    Walmart, Swansea Mall owners near agreement; redevelopment could start Swansea Mall Redevelopment  Established in manchester — in that city, a. If the town votes in favor of a redevelopment authority, the swansea mall should have new owners by late next week. According to one of the owners of the property, dick anagnost, the group has finalized negotiations with walmart but the ecrs are not complete yet. The mall’s ring road and parking. Swansea Mall Redevelopment.
     
    
         
        From www.abc6.com 
                    Initial renderings of multiphase Swansea Mall redevelopment rev Swansea Mall Redevelopment  The mall’s ring road and parking lot deteriorated rapidly after the mall’s closing;. According to one of the owners of the property, dick anagnost, the group has finalized negotiations with walmart but the ecrs are not complete yet. Established in manchester — in that city, a. After years of stalled progress, plans to bring new life to the site of. Swansea Mall Redevelopment.
     
    
         
        From www.heraldnews.com 
                    Swansea Mall redevelopment project at a crossroads Swansea Mall Redevelopment  If the town votes in favor of a redevelopment authority, the swansea mall should have new owners by late next week. Established in manchester — in that city, a. After years of stalled progress, plans to bring new life to the site of the defunct swansea mall are once again picking up now that developers have reached an agreement. On. Swansea Mall Redevelopment.
     
    
         
        From turnto10.com 
                    Selectman reveals conceptual renderings of Swansea Mall redevelopment WJAR Swansea Mall Redevelopment  On the road’s west side, the former swansea mall is in the midst of a massive redevelopment. Established in manchester — in that city, a. With negotiations finalized with walmart, plans are taking shape at the former swansea mall property. According to one of the owners of the property, dick anagnost, the group has finalized negotiations with walmart but the. Swansea Mall Redevelopment.
     
    
         
        From turnto10.com 
                    Selectman reveals conceptual renderings of Swansea Mall redevelopment WJAR Swansea Mall Redevelopment  On the road’s west side, the former swansea mall is in the midst of a massive redevelopment. After years of stalled progress, plans to bring new life to the site of the defunct swansea mall are once again picking up now that developers have reached an agreement. According to one of the owners of the property, dick anagnost, the group. Swansea Mall Redevelopment.
     
    
         
        From www.walesonline.co.uk 
                    This is how the new Parc Tawe will look as £15m redevelopment gets under way in Swansea Wales Swansea Mall Redevelopment  The mall’s ring road and parking lot deteriorated rapidly after the mall’s closing;. With negotiations finalized with walmart, plans are taking shape at the former swansea mall property. According to one of the owners of the property, dick anagnost, the group has finalized negotiations with walmart but the ecrs are not complete yet. Established in manchester — in that city,. Swansea Mall Redevelopment.
     
    
         
        From www.bldup.com 
                    Swansea Mall Renovations Making Headway BLDUP Swansea Mall Redevelopment  According to one of the owners of the property, dick anagnost, the group has finalized negotiations with walmart but the ecrs are not complete yet. On the road’s west side, the former swansea mall is in the midst of a massive redevelopment. Established in manchester — in that city, a. After years of stalled progress, plans to bring new life. Swansea Mall Redevelopment.
     
    
         
        From www.walesonline.co.uk 
                    Swansea redevelopment Wales Online Swansea Mall Redevelopment  On the road’s west side, the former swansea mall is in the midst of a massive redevelopment. Established in manchester — in that city, a. According to one of the owners of the property, dick anagnost, the group has finalized negotiations with walmart but the ecrs are not complete yet. The mall’s ring road and parking lot deteriorated rapidly after. Swansea Mall Redevelopment.
     
    
         
        From www.loopnet.com 
                    262 Swansea Mall Dr, Swansea, MA 02777 Swansea Center Swansea Mall Redevelopment  According to one of the owners of the property, dick anagnost, the group has finalized negotiations with walmart but the ecrs are not complete yet. After years of stalled progress, plans to bring new life to the site of the defunct swansea mall are once again picking up now that developers have reached an agreement. With negotiations finalized with walmart,. Swansea Mall Redevelopment.
     
    
         
        From www.heraldnews.com 
                    Former Swansea Mall ring road being repaved as redevelopment continues Swansea Mall Redevelopment  The mall’s ring road and parking lot deteriorated rapidly after the mall’s closing;. After years of stalled progress, plans to bring new life to the site of the defunct swansea mall are once again picking up now that developers have reached an agreement. Established in manchester — in that city, a. If the town votes in favor of a redevelopment. Swansea Mall Redevelopment.
     
    
         
        From fallriverreporter.com 
                    Paving begins at Swansea Mall property as ECRs with Walmart allows at Swansea” to begin Swansea Mall Redevelopment  After years of stalled progress, plans to bring new life to the site of the defunct swansea mall are once again picking up now that developers have reached an agreement. On the road’s west side, the former swansea mall is in the midst of a massive redevelopment. With negotiations finalized with walmart, plans are taking shape at the former swansea. Swansea Mall Redevelopment.
     
    
         
        From turnto10.com 
                    Swansea selectman unveils proposal to revitalize Swansea Mall Swansea Mall Redevelopment  According to one of the owners of the property, dick anagnost, the group has finalized negotiations with walmart but the ecrs are not complete yet. With negotiations finalized with walmart, plans are taking shape at the former swansea mall property. Established in manchester — in that city, a. After years of stalled progress, plans to bring new life to the. Swansea Mall Redevelopment.
     
    
         
        From www.fando.com 
                    Swansea Mall Redevelopment and Adaptive Reuse Fuss & O'Neill Swansea Mall Redevelopment  After years of stalled progress, plans to bring new life to the site of the defunct swansea mall are once again picking up now that developers have reached an agreement. According to one of the owners of the property, dick anagnost, the group has finalized negotiations with walmart but the ecrs are not complete yet. If the town votes in. Swansea Mall Redevelopment.
     
    
         
        From www.heraldnews.com 
                    Swansea Mall Drive redesign meeting shares safety, access proposals Swansea Mall Redevelopment  With negotiations finalized with walmart, plans are taking shape at the former swansea mall property. If the town votes in favor of a redevelopment authority, the swansea mall should have new owners by late next week. According to one of the owners of the property, dick anagnost, the group has finalized negotiations with walmart but the ecrs are not complete. Swansea Mall Redevelopment.
     
    
         
        From fallriverreporter.com 
                    OPINION Remembering the Swansea Mall in photos, video, and text Fall River Reporter Swansea Mall Redevelopment  If the town votes in favor of a redevelopment authority, the swansea mall should have new owners by late next week. With negotiations finalized with walmart, plans are taking shape at the former swansea mall property. Established in manchester — in that city, a. The mall’s ring road and parking lot deteriorated rapidly after the mall’s closing;. After years of. Swansea Mall Redevelopment.
     
    
         
        From www.fando.com 
                    Swansea Mall Redevelopment and Adaptive Reuse Fuss & O'Neill Swansea Mall Redevelopment  Established in manchester — in that city, a. After years of stalled progress, plans to bring new life to the site of the defunct swansea mall are once again picking up now that developers have reached an agreement. The mall’s ring road and parking lot deteriorated rapidly after the mall’s closing;. On the road’s west side, the former swansea mall. Swansea Mall Redevelopment.
     
    
         
        From turnto10.com 
                    Selectman reveals conceptual renderings of Swansea Mall redevelopment WJAR Swansea Mall Redevelopment  According to one of the owners of the property, dick anagnost, the group has finalized negotiations with walmart but the ecrs are not complete yet. After years of stalled progress, plans to bring new life to the site of the defunct swansea mall are once again picking up now that developers have reached an agreement. With negotiations finalized with walmart,. Swansea Mall Redevelopment.
     
    
         
        From turnto10.com 
                    Selectman lays out plan to redevelop Swansea Mall, find new owner Swansea Mall Redevelopment  On the road’s west side, the former swansea mall is in the midst of a massive redevelopment. After years of stalled progress, plans to bring new life to the site of the defunct swansea mall are once again picking up now that developers have reached an agreement. The mall’s ring road and parking lot deteriorated rapidly after the mall’s closing;.. Swansea Mall Redevelopment.
     
    
         
        From fallriverreporter.com 
                    Swansea Mall officially sold to developer Fall River Reporter Swansea Mall Redevelopment  With negotiations finalized with walmart, plans are taking shape at the former swansea mall property. On the road’s west side, the former swansea mall is in the midst of a massive redevelopment. According to one of the owners of the property, dick anagnost, the group has finalized negotiations with walmart but the ecrs are not complete yet. The mall’s ring. Swansea Mall Redevelopment.