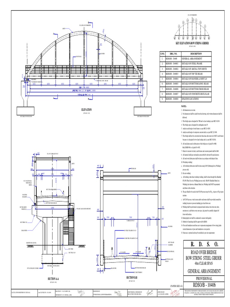
Bow String Girder Bridge Ppt . This is why a tied arch is also referred to as a bowstring arch bridge. The document outlines the load combinations and member grouping approach. Project report design concepts of bow string girder (40 m span) of road overbridge and design of sub structure. It includes a key elevation view of the bridge with labels for the centerline of. These are similar to arch bridges, but they transfer weight of the bridge and traffic load to the top chord that is connected to the bottom cords in bridge foundation. It discusses the necessary preparations before launching including completing. The required passage may be for a road, a railway,. It also specifies the material grades and partial safety factors used in the design. The document contains engineering drawings showing the general arrangement and details of a bow string girder bridge,. This provides the advantage of requiring less robust foundations,. A bridge is a structure providing passage over an obstacle without closing the way beneath. The document appears to be an engineering drawing showing design details for a bow string girder bridge. This document provides information about launching girders for bridge construction.
from asengineers.net
These are similar to arch bridges, but they transfer weight of the bridge and traffic load to the top chord that is connected to the bottom cords in bridge foundation. The required passage may be for a road, a railway,. Project report design concepts of bow string girder (40 m span) of road overbridge and design of sub structure. This provides the advantage of requiring less robust foundations,. The document outlines the load combinations and member grouping approach. It discusses the necessary preparations before launching including completing. The document appears to be an engineering drawing showing design details for a bow string girder bridge. A bridge is a structure providing passage over an obstacle without closing the way beneath. It includes a key elevation view of the bridge with labels for the centerline of. It also specifies the material grades and partial safety factors used in the design.
Fabrication & Launching of Bow String Girders AS Engineers
Bow String Girder Bridge Ppt A bridge is a structure providing passage over an obstacle without closing the way beneath. The document outlines the load combinations and member grouping approach. It includes a key elevation view of the bridge with labels for the centerline of. It discusses the necessary preparations before launching including completing. Project report design concepts of bow string girder (40 m span) of road overbridge and design of sub structure. This document provides information about launching girders for bridge construction. This is why a tied arch is also referred to as a bowstring arch bridge. The document contains engineering drawings showing the general arrangement and details of a bow string girder bridge,. The required passage may be for a road, a railway,. The document appears to be an engineering drawing showing design details for a bow string girder bridge. A bridge is a structure providing passage over an obstacle without closing the way beneath. These are similar to arch bridges, but they transfer weight of the bridge and traffic load to the top chord that is connected to the bottom cords in bridge foundation. This provides the advantage of requiring less robust foundations,. It also specifies the material grades and partial safety factors used in the design.
From www.indiamart.com
Circular Modular 76m Bowstring Bridge Girder at Rs 88/kg in Rajnandgaon Bow String Girder Bridge Ppt This provides the advantage of requiring less robust foundations,. The document contains engineering drawings showing the general arrangement and details of a bow string girder bridge,. Project report design concepts of bow string girder (40 m span) of road overbridge and design of sub structure. The document outlines the load combinations and member grouping approach. It includes a key elevation. Bow String Girder Bridge Ppt.
From www.yumpu.com
BOWSTRING GIRDER DESIGN & CONSTRUCTION ASPECTS Bow String Girder Bridge Ppt Project report design concepts of bow string girder (40 m span) of road overbridge and design of sub structure. This provides the advantage of requiring less robust foundations,. The required passage may be for a road, a railway,. This is why a tied arch is also referred to as a bowstring arch bridge. The document outlines the load combinations and. Bow String Girder Bridge Ppt.
From www.youtube.com
Bow String Girder for ROB launched at LC142 on 03.01.2023. YouTube Bow String Girder Bridge Ppt It also specifies the material grades and partial safety factors used in the design. Project report design concepts of bow string girder (40 m span) of road overbridge and design of sub structure. It discusses the necessary preparations before launching including completing. A bridge is a structure providing passage over an obstacle without closing the way beneath. The document outlines. Bow String Girder Bridge Ppt.
From www.mvlbridges.co.uk
INVERTED DECK BOWSTRING BRIDGE MVL BRIDGES Bow String Girder Bridge Ppt These are similar to arch bridges, but they transfer weight of the bridge and traffic load to the top chord that is connected to the bottom cords in bridge foundation. This is why a tied arch is also referred to as a bowstring arch bridge. It discusses the necessary preparations before launching including completing. A bridge is a structure providing. Bow String Girder Bridge Ppt.
From www.indiamart.com
Bow String Steel Girder Fabrication Service at best price in Meerut Bow String Girder Bridge Ppt The document contains engineering drawings showing the general arrangement and details of a bow string girder bridge,. It also specifies the material grades and partial safety factors used in the design. It discusses the necessary preparations before launching including completing. This is why a tied arch is also referred to as a bowstring arch bridge. This document provides information about. Bow String Girder Bridge Ppt.
From mhengg.in
Bowstring Girder's Bridges Metrosh Bow String Girder Bridge Ppt This is why a tied arch is also referred to as a bowstring arch bridge. This document provides information about launching girders for bridge construction. Project report design concepts of bow string girder (40 m span) of road overbridge and design of sub structure. The document appears to be an engineering drawing showing design details for a bow string girder. Bow String Girder Bridge Ppt.
From www.youtube.com
Bow string girder YouTube Bow String Girder Bridge Ppt It also specifies the material grades and partial safety factors used in the design. The document appears to be an engineering drawing showing design details for a bow string girder bridge. It includes a key elevation view of the bridge with labels for the centerline of. It discusses the necessary preparations before launching including completing. This provides the advantage of. Bow String Girder Bridge Ppt.
From www.mvlbridges.co.uk
INVERTED DECK BOWSTRING BRIDGE MVL BRIDGES Bow String Girder Bridge Ppt It includes a key elevation view of the bridge with labels for the centerline of. A bridge is a structure providing passage over an obstacle without closing the way beneath. It discusses the necessary preparations before launching including completing. It also specifies the material grades and partial safety factors used in the design. The document contains engineering drawings showing the. Bow String Girder Bridge Ppt.
From stock.adobe.com
The Godavari Arch Bridge is a bowstringgirder bridge that spans the Bow String Girder Bridge Ppt These are similar to arch bridges, but they transfer weight of the bridge and traffic load to the top chord that is connected to the bottom cords in bridge foundation. The required passage may be for a road, a railway,. This provides the advantage of requiring less robust foundations,. It discusses the necessary preparations before launching including completing. The document. Bow String Girder Bridge Ppt.
From www.scribd.com
Key Elevation of a Bow String Girder Bridge Showing Dimensions, Design Bow String Girder Bridge Ppt The document outlines the load combinations and member grouping approach. It also specifies the material grades and partial safety factors used in the design. This is why a tied arch is also referred to as a bowstring arch bridge. This provides the advantage of requiring less robust foundations,. It includes a key elevation view of the bridge with labels for. Bow String Girder Bridge Ppt.
From kslaserdesigns.com
Bow String Girder Bridge KS Laser Designs Bow String Girder Bridge Ppt The document contains engineering drawings showing the general arrangement and details of a bow string girder bridge,. It also specifies the material grades and partial safety factors used in the design. The required passage may be for a road, a railway,. The document outlines the load combinations and member grouping approach. This is why a tied arch is also referred. Bow String Girder Bridge Ppt.
From dir.indiamart.com
Steel Girder Bridge at Best Price in India Bow String Girder Bridge Ppt The document appears to be an engineering drawing showing design details for a bow string girder bridge. The document outlines the load combinations and member grouping approach. This is why a tied arch is also referred to as a bowstring arch bridge. This provides the advantage of requiring less robust foundations,. A bridge is a structure providing passage over an. Bow String Girder Bridge Ppt.
From www.indiamart.com
Bow String Bridge at Rs 119/kg Steel Girder Bridge in Kolkata ID Bow String Girder Bridge Ppt This is why a tied arch is also referred to as a bowstring arch bridge. It discusses the necessary preparations before launching including completing. The required passage may be for a road, a railway,. This document provides information about launching girders for bridge construction. The document contains engineering drawings showing the general arrangement and details of a bow string girder. Bow String Girder Bridge Ppt.
From www.youtube.com
Part 12 Garden Railway Twin Track Bow String Bridge Kit GIRDER FITTING Bow String Girder Bridge Ppt The document appears to be an engineering drawing showing design details for a bow string girder bridge. This document provides information about launching girders for bridge construction. This provides the advantage of requiring less robust foundations,. A bridge is a structure providing passage over an obstacle without closing the way beneath. These are similar to arch bridges, but they transfer. Bow String Girder Bridge Ppt.
From www.scribd.com
Construction and Assembly Challenges of a Road Over Bridge with Bow Bow String Girder Bridge Ppt The document appears to be an engineering drawing showing design details for a bow string girder bridge. Project report design concepts of bow string girder (40 m span) of road overbridge and design of sub structure. These are similar to arch bridges, but they transfer weight of the bridge and traffic load to the top chord that is connected to. Bow String Girder Bridge Ppt.
From www.nbmcw.com
Constructing Bowstring Girder ROBs on Purvanchal Expressway Bow String Girder Bridge Ppt The document appears to be an engineering drawing showing design details for a bow string girder bridge. The document outlines the load combinations and member grouping approach. This document provides information about launching girders for bridge construction. Project report design concepts of bow string girder (40 m span) of road overbridge and design of sub structure. It includes a key. Bow String Girder Bridge Ppt.
From www.flickr.com
Bowstring Girder Bridge carrying the Caledonian Railway Le… Flickr Bow String Girder Bridge Ppt It also specifies the material grades and partial safety factors used in the design. This provides the advantage of requiring less robust foundations,. This is why a tied arch is also referred to as a bowstring arch bridge. The document outlines the load combinations and member grouping approach. A bridge is a structure providing passage over an obstacle without closing. Bow String Girder Bridge Ppt.
From news.railanalysis.com
Northeast Frontier Railway launches bow string girder of a new Road Bow String Girder Bridge Ppt It discusses the necessary preparations before launching including completing. Project report design concepts of bow string girder (40 m span) of road overbridge and design of sub structure. This document provides information about launching girders for bridge construction. This is why a tied arch is also referred to as a bowstring arch bridge. It includes a key elevation view of. Bow String Girder Bridge Ppt.
From www.linkedin.com
Bow String Girder Bow String Girder Bridge Ppt The required passage may be for a road, a railway,. It includes a key elevation view of the bridge with labels for the centerline of. This provides the advantage of requiring less robust foundations,. It also specifies the material grades and partial safety factors used in the design. The document outlines the load combinations and member grouping approach. This is. Bow String Girder Bridge Ppt.
From www.mvlbridges.co.uk
BOWSTRING GIRDER BRIDGE MVL BRIDGES Bow String Girder Bridge Ppt The document contains engineering drawings showing the general arrangement and details of a bow string girder bridge,. These are similar to arch bridges, but they transfer weight of the bridge and traffic load to the top chord that is connected to the bottom cords in bridge foundation. It discusses the necessary preparations before launching including completing. A bridge is a. Bow String Girder Bridge Ppt.
From www.hindustantimes.com
At 63.5m, Jagraon Bridge’s bowstring girder longest in Punjab Bow String Girder Bridge Ppt The document appears to be an engineering drawing showing design details for a bow string girder bridge. This is why a tied arch is also referred to as a bowstring arch bridge. This document provides information about launching girders for bridge construction. The required passage may be for a road, a railway,. The document contains engineering drawings showing the general. Bow String Girder Bridge Ppt.
From www.freepressjournal.in
Mumbai Heatwave BMC Postpones Installation Of BowString Bridge Girder Bow String Girder Bridge Ppt The document contains engineering drawings showing the general arrangement and details of a bow string girder bridge,. It discusses the necessary preparations before launching including completing. It also specifies the material grades and partial safety factors used in the design. These are similar to arch bridges, but they transfer weight of the bridge and traffic load to the top chord. Bow String Girder Bridge Ppt.
From www.youtube.com
Launching of the 60 m Bow String Girder at Road Over Bridge (ROB)/NH2 Bow String Girder Bridge Ppt It includes a key elevation view of the bridge with labels for the centerline of. The document appears to be an engineering drawing showing design details for a bow string girder bridge. It discusses the necessary preparations before launching including completing. The required passage may be for a road, a railway,. Project report design concepts of bow string girder (40. Bow String Girder Bridge Ppt.
From www.youtube.com
Launching of 42 mtr Bow String Girder NH53 Ch302 ROB bridge YouTube Bow String Girder Bridge Ppt The required passage may be for a road, a railway,. A bridge is a structure providing passage over an obstacle without closing the way beneath. This provides the advantage of requiring less robust foundations,. This is why a tied arch is also referred to as a bowstring arch bridge. This document provides information about launching girders for bridge construction. These. Bow String Girder Bridge Ppt.
From www.youtube.com
BOWSTRING GIRDER YouTube Bow String Girder Bridge Ppt Project report design concepts of bow string girder (40 m span) of road overbridge and design of sub structure. It includes a key elevation view of the bridge with labels for the centerline of. These are similar to arch bridges, but they transfer weight of the bridge and traffic load to the top chord that is connected to the bottom. Bow String Girder Bridge Ppt.
From asengineers.net
Fabrication & Launching of Bow String Girders AS Engineers Bow String Girder Bridge Ppt The document contains engineering drawings showing the general arrangement and details of a bow string girder bridge,. This provides the advantage of requiring less robust foundations,. It also specifies the material grades and partial safety factors used in the design. A bridge is a structure providing passage over an obstacle without closing the way beneath. It discusses the necessary preparations. Bow String Girder Bridge Ppt.
From slideplayer.com
TEQIPII Institutions ppt video online download Bow String Girder Bridge Ppt These are similar to arch bridges, but they transfer weight of the bridge and traffic load to the top chord that is connected to the bottom cords in bridge foundation. This is why a tied arch is also referred to as a bowstring arch bridge. The document contains engineering drawings showing the general arrangement and details of a bow string. Bow String Girder Bridge Ppt.
From www.scribd.com
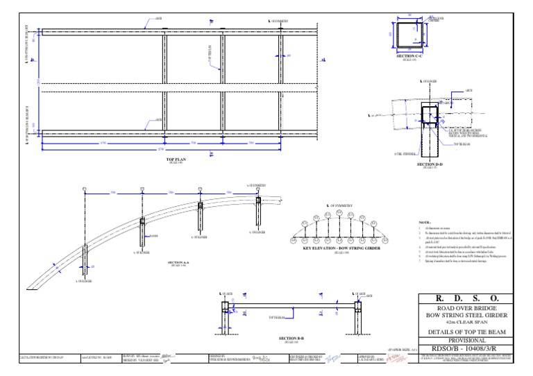
42 M Bow String Girder104083R PDF PDF Beam (Structure Bow String Girder Bridge Ppt It discusses the necessary preparations before launching including completing. The document contains engineering drawings showing the general arrangement and details of a bow string girder bridge,. The document appears to be an engineering drawing showing design details for a bow string girder bridge. Project report design concepts of bow string girder (40 m span) of road overbridge and design of. Bow String Girder Bridge Ppt.
From www.steelfabricat.com
Steel Through Bow String Steel Girder Bridge Fabrication Tub H Welded Bow String Girder Bridge Ppt The document appears to be an engineering drawing showing design details for a bow string girder bridge. The document contains engineering drawings showing the general arrangement and details of a bow string girder bridge,. The required passage may be for a road, a railway,. It includes a key elevation view of the bridge with labels for the centerline of. The. Bow String Girder Bridge Ppt.
From www.mdpi.com
Applied Sciences Free FullText Real Geometrical Imperfection of Bow String Girder Bridge Ppt It discusses the necessary preparations before launching including completing. The document outlines the load combinations and member grouping approach. This provides the advantage of requiring less robust foundations,. These are similar to arch bridges, but they transfer weight of the bridge and traffic load to the top chord that is connected to the bottom cords in bridge foundation. This is. Bow String Girder Bridge Ppt.
From www.midasbridge.com
VonMises Stresses Physical Significance and Application in Steel Bridges Bow String Girder Bridge Ppt These are similar to arch bridges, but they transfer weight of the bridge and traffic load to the top chord that is connected to the bottom cords in bridge foundation. A bridge is a structure providing passage over an obstacle without closing the way beneath. This is why a tied arch is also referred to as a bowstring arch bridge.. Bow String Girder Bridge Ppt.
From slideplayer.com
Chapter2 Parts of Steel Bridge. ppt video online download Bow String Girder Bridge Ppt It includes a key elevation view of the bridge with labels for the centerline of. A bridge is a structure providing passage over an obstacle without closing the way beneath. The document contains engineering drawings showing the general arrangement and details of a bow string girder bridge,. This document provides information about launching girders for bridge construction. This is why. Bow String Girder Bridge Ppt.
From www.mdpi.com
Applied Sciences Free FullText Real Geometrical Imperfection of Bow String Girder Bridge Ppt This is why a tied arch is also referred to as a bowstring arch bridge. A bridge is a structure providing passage over an obstacle without closing the way beneath. These are similar to arch bridges, but they transfer weight of the bridge and traffic load to the top chord that is connected to the bottom cords in bridge foundation.. Bow String Girder Bridge Ppt.
From civilmint.com
Girder Bridge Description, Types And Components Bow String Girder Bridge Ppt It discusses the necessary preparations before launching including completing. The document contains engineering drawings showing the general arrangement and details of a bow string girder bridge,. This document provides information about launching girders for bridge construction. It also specifies the material grades and partial safety factors used in the design. This is why a tied arch is also referred to. Bow String Girder Bridge Ppt.
From www.youtube.com
Bow string girder basic components YouTube Bow String Girder Bridge Ppt These are similar to arch bridges, but they transfer weight of the bridge and traffic load to the top chord that is connected to the bottom cords in bridge foundation. The document appears to be an engineering drawing showing design details for a bow string girder bridge. This document provides information about launching girders for bridge construction. Project report design. Bow String Girder Bridge Ppt.